brunch

陽明齋양명재-서향 대지에 남향의 햇살이 담기는 집

부산 문현동 상가주택 설계에 담아

by 김정관

건축물을 짓는 대지는 그림을 그리는 캔버스에 비유하기도 한다. 캔버스는 보통 사각형이지만 대지는 택지를 조성한 경우를 제외하고는 각양각색이다. 그나마 평지라면 다행이지만 경사진 땅이면 집을 앉히는데 어려움이 많다. 캔버스를 살 돈이 없어서 담배 내포장지인 은박지에 그림을 그린 이중섭 화가는 못으로 긁어서 명작을 남겼으니 대지의 모양을 탓할 일은 아니다.


이형의 대지라도 땅 생김새가 둔각으로 이루어졌으면 그나마 다행인데 예각으로 뾰족한 부분이 많으면 토지이용에서 허실이 많아진다. 또 대지 면적에 비해 폭이 좁다면 더욱 쓸모가 줄게 되고 대지 주변에 집이 붙어 있으면 공사하는데 다툼이 많을 수밖에 없다. 대지가 가진 모든 악조건을 가진 프로젝트를 소화해서 작업을 마쳤다. 이중섭 화가에 댈 수는 없겠지만 최악의 조건을 극복하고 건축주가 식구들과 행복하게 살 수 있는 좋은 집이 될 것이라 호평을 받고 공사를 시작했으니 내 능력도 자화자찬해도 되지 않을까?

어떻게 해답을 찾을지 실마리를 찾기가 쉽지는 않지만 악조건의 대지일수록 돋보이는 집이 될 가능성이 높다. 정방형에 가까운 평지의 대지는 일부러 비틀고 꺾어서 억지 외관을 만들 수는 없기 때문이다. 대지의 조건이 나쁜 그만큼 특별한 집이 될 소스가 되기 때문이다.

최악의 조건을 가진 대지



대지 형상은 도마에 칼이 붙어있는 것 같아 보인다. 남쪽으로 장방형의 도마가 있고 북쪽으로는 부엌칼이 놓여 있는 셈이다. 게다가 길이 방향으로 남북축이니 도로에 면해 있는 서향이 외관으로 정면이 되어야 할 대지 조건이다.


도로마저 평지가 아니라서 집을 앉히기가 예사로 어려운 땅이 아니다. 대지와 도로가 만나는 각 부분이 높이차를 가지게 되니 집의 전면에 나야 할 출입구의 위치 설정도 신중해야 하겠다. 그나저나 대지가 가진 조건이 설계 작업에 유리한 부분이 아예 없으니 제대로 된 집을 지을 수 있을까?

대지 면적이라도 여유가 있으면 숨 쉴 여지가 있겠는데 건폐율을 악착같이 찾아야만 되는 상황이다. 설계자에게는 이보다 더 어려울 수 없는 대지 조건인데 건축주는 최상의 결과를 바랄 게 뻔하다. 이를 어쩌나 속을 끓이지만 건축사님만 믿겠다며 건축주는 백 퍼센트 신뢰를 보낸다.


대지에 있는 기존 건축물을 철거하고 있다

건축주가 짓고 싶은 집


건축주는 유통업을 하고 있어서 일층은 사업장, 이층을 주택으로 쓰기 위해 이 대지를 매입했다고 한다. 대지 조건으로 볼 때 땅값은 비교적 싸게 지불하지 않았을까 싶다. 누구라도 이런 조건의 땅에 제대로 쓸 수 있는 건축물이 들어설 것이라 생각할 수 있을까?


일층에 있는 사업장이야 대지의 형상에 맞춰 나오는 대로 쓰면 될 것이다. 그렇지만 이층에 들어갈 주택은 사정이 다르다. 아파트보다 거주 여건이 좋아야만 단독주택에 살 이유가 되기 때문이다. 아파트보다 살기 좋은 상가주택, 한정된 조건에 끼워 넣듯이 들어가는 주택이 과연 그런 만족도를 얻을 수 있을까? 평면을 구성할 대지의 폭에 여유가 없는 데다 서향으로 앉혀야 할 상황이기 때문이다.

건축주의 가족 구성은 큰 아이 둘은 독립해서 살고 있고 늦둥이가 있어서 방이 네 개나 있어야 한다. 일상에서는 아이 둘과 부부가 지내고 독립해서 지내는 아이들이 오면 모두 여섯 식구가 써야 하는 집이다. 방이 세 개만 있는 아파트는 이 가족의 구성원에게는 불편한 집이었겠다.

건축주가 살고 있는 아파트보다 살기 좋은 집, 온 식구가 다 모여도 만족하게 쓸 수 있는 집이어야만 계획 설계가 마무리될 수 있을 것이다.

만족하게 나온 설계안


대지에 집을 앉히기 위한 해법은 대지의 형상과 주변 여건을 파악하면 저절로 나오게 될 것이다. 기본적인 배치가 나오게 되면 평면을 구성하면서 불리한 부분을 개선하고나 부족한 내용을 채워나가면 될 것이다. 평면 얼개에서 불리한 부분은 서향집이고 부족한 부분은 평면의 폭이 좁아서 현관에서 집 안 끝까지의 동선이 길어진다는 점이다.


평면과 방위의 관계를 파악하는 건 매우 중요한 일이다. 동과 서는 햇살이 집 안으로 깊숙하게 들어오므로 계절과 상관없이 생활의 피로도를 높게 한다. 남향은 여름에는 태양의 고도가 높아서 햇살이 집 안으로 들지 않고 겨울에는 입사각이 낮으므로 집 안 깊숙이 들어온다. 그래서 남향집에 살기 위해서는 三代積善-삼대에 걸쳐 덕을 쌓아야 한다고 했을까?


삼대 적선의 공덕을 지어야 구할 수 있는 건 사실 대지를 말한다. 남향으로 열리지 않은 대지에 남향집을 지으려면 坐向좌향을 어긋나게 놓아야 하니 보통 어려운 일이 아니다. 그렇지만 주택에 살면서 서향집과 남향집은 생활의 안락함에서 비교할 수 없는 차이를 가지게 된다.


-좌향은 서쪽, 남향은 창으로 들이고


좌향이란 집터에서 등진 방향과 정면으로 바라보이는 방향을 말한다. 집이 바라보는 방향, 좌향은 서향이지만 남향이 주는 혜택을 받을 수 있는 집을 지을 수 있다면 이 또한 적선의 공덕으로 복을 받는 게 아닐까?

김상용 시인의 시 ‘남향으로 창을 내겠소’를 낭송해본다.


남(南)으로/창(窓)을 내겠소 - 밭이 한참갈이/괭이로 파고/호미론 김을 매지요 - 구름이 꼬인다/갈 리 있소 - 새 노래는 공으로 들으랴오 - 강냉이가 익걸랑/함께 와 자셔도 좋소 - 왜 사냐건/웃지요

살면서 웃을 수 있는 일보다 더 좋은 게 있을까? 남향으로 낸 창으로 햇살이 드는 집에 살면 그냥 웃음이 나오지 않을까 싶다. 서향으로 앉은 집이지만 무조건 남향으로 창을 내야 한다는 나의 설계 원칙을 지키는 건 당연한 일이다.


양명재 조감도-아랫마당을 사이에 두고 거실채와 침실채가 채 나눔 되어 있다. 가운데에 비워진 마당이 있어 남향의 햇살이 집 안으로 든다


-거실과 침실 영역을 채 나눔 하고


나의 주택 설계 원칙은 가능한 침실과 거실 영역을 구분하는 것이다. 거실 영역은 한옥의 사랑채처럼 밤늦도록 시끄럽게 무엇을 하더라도 침실 영역에 지장을 주지 않아야 한다. 우리가 아파트에서 살면서 거실에서 TV를 보는 것 말고 무엇을 할 수 있는가?

거실에서는 볼륨을 높여 음악도 듣고 영화도 보고 손님이 와서 밤늦도록 얘기를 나눌 수 있으면 얼마나 좋을까? 그래서 우리집은 거실을 침실과 영역을 구분해서 무엇이든지 할 수 있도록 했다. 거실이 한옥의 사랑채 기능을 할 수 있어야 손님이 들 수 있다.


손님 중에 가장 귀한 손님은 사위와 며느리 이리라. 사위와 며느리가 와서 지내더라도 부모와 자식이 서로 편한 집이라면 하룻밤 묵어가도 좋겠다. 그렇게 되면 손주는 할아버지 할머니 차지가 되니 祖孫조손의 정이 각별해지니 이 얼마나 좋은가?


건축주가 늦게 본 늦둥이가 아직 초등학생이라니 우리집이라면 친구들을 데리고 와서 놀아도 좋다. 거실 공간이 독립되어 있으니 마음껏 놀아도 조용히 하라며 당부할 일이 없다. 이 정도라면 아파트에서는 얻을 수 없는 일상이 아닌가?


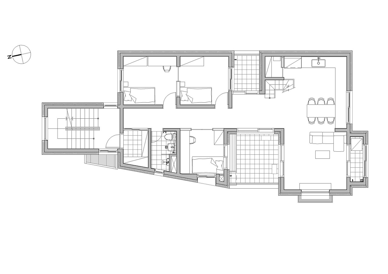
이층과 삼층의 주택 부분, 왼쪽은 침실채이고 오른쪽이 거실채이다


-두 개의 마당이 있는 집


양명재는 두 개의 마당이 있다. 아랫마당은 거실과 서재 사이에 있는데 집 안에 양명한 기운을 들이고 외부 공간을 쓰는 즐거움을 누릴 수 있게 한다. 윗마당은 여유 있는 넓이를 가지고 집에서 다양한 외부 활동을 할 수 있는 공간이다.


아랫마당은 집 안과 밖을 매개하는 영역으로 들인 공간이다. 마당은 남쪽 햇살을 서재에 들이고 현관에서 거실로 이어지는 복도를 통해 집 안에 밝은 기운을 들인다. 거실과 서재, 복도에서 마당으로 바로 드나들 수 있으니 이층에 있는 집이지만 단독주택의 일상을 누릴 수 있다.

윗마당은 남향의 햇살을 드는 큰 방과 이어진다. 거실에서 다락으로 이어지는 동선이 마당으로 바로 연결되니 윗마당은 다양한 쓰임새를 가지게 된다. 거실과 다락, 다락과 윗마당의 관계 맺기는 양명헌의 풍부한 일상을 담아낼 것이다.


설 계 자 : 도반건축사사무소 건축사 김정관

설계담당 : 김풍부

대지위치 : 부산 남구 문현동 79

대지면적 : 231㎡

건축면적 : 132.76㎡

연 면 적 : 277.86㎡

건 폐 율 : 57.47 ‰

용 적 률 : 120.28 ‰

층 수 : 지상 3층

구 조 : 철근콘크리트조


일층에는 건축주의 사업장, 이층에는 거실채가 독립되어 있고 왼쪽으로 침실채가 떨어져 있다.


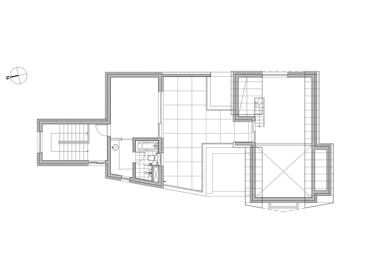
배치도와 이층, 삼층 평면도-이층평면도의 이랫마당과 윗마당을 살펴보면 집의 얼개가 보인다


異形이형의 대지에 집다운 집을 앉히기가 쉬운 일이 아니었다. 작업의 난이도가 꽤 있었지만 완성된 설계안은 건축주도 만족해하니 공사만 잘 되면 좋은 집이 될 것 같다는 확신이 든다. 경사를 가진 도로에 면한 서향의 대지는 너비도 여유가 없었지만 좋은 집이 가져야 할 조건이 충족된 설계안이 나와서 이를 데 없다.

집 안에 남향의 햇살이 가득하여 당호를 陽明齋양명재로 지어보았다. 설계자가 담아낸 남향이 주는 기운으로 건축주 식구들의 일상이 늘 밝고 활기가 넘치길 바란다.



도반건축사사무소-대표 건축사 김정관은

집이 행복의 원천이라는 주거의 인문학적 접근을 통해

부산, 양산, 김해, 울산의 단독주택, 상가주택 및 공동주택을 주로 설계하고 있습니다.


설계상담 :

도반건축사사무소 (T 051-626-6261)


keyword
매거진의 이전글상가주택, 2021년 'BJFEZ건축상' 최우수상 수상