인허가 설계

by 오스칼

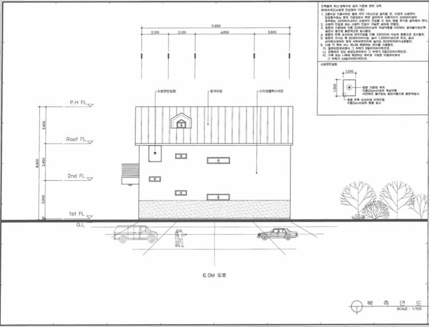
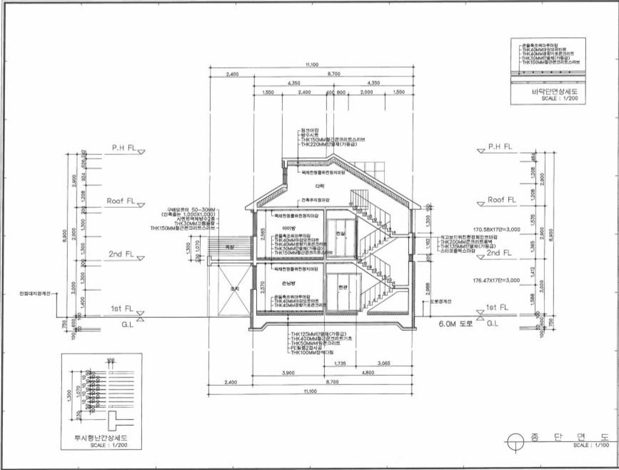
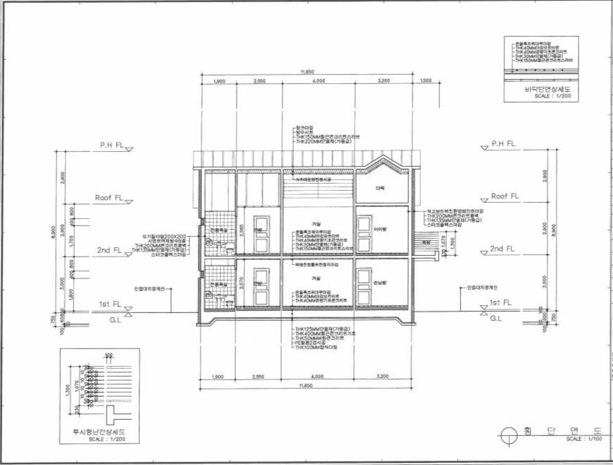
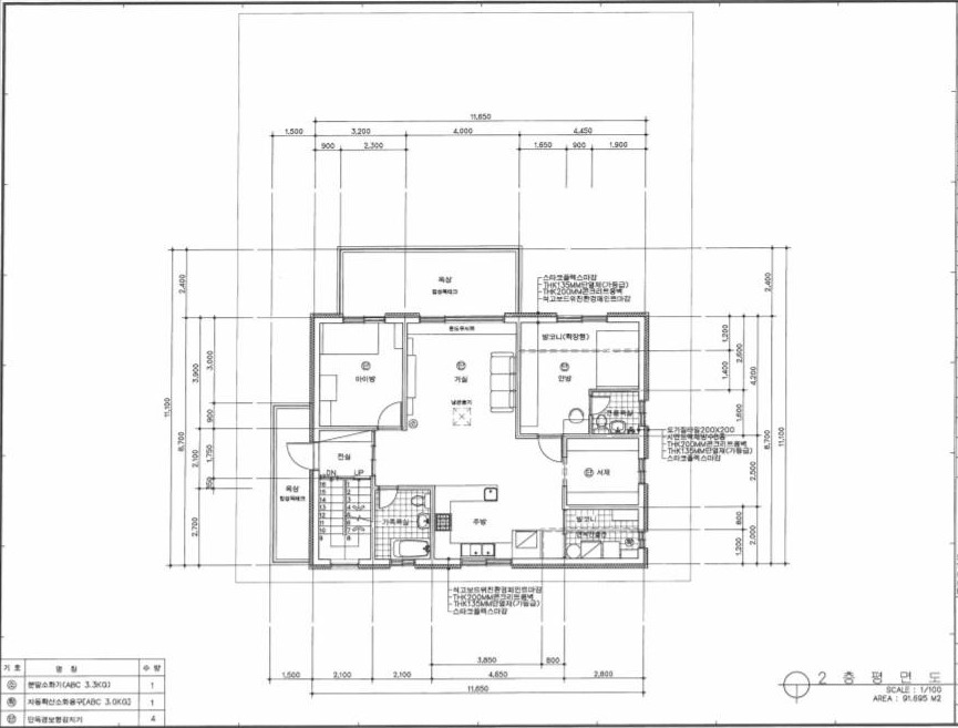
실시 설계, 즉 인허가 설계 작업은 생각보다 길어서 계획 설계 도면을 상의 한 이후 일주일이 넘는 시간이 흘렀다. 그 사이 나와 아내는 인테리어에 뭐가 들어가면 좋을지 생각하고 찾아보기도 하면서 오래간만에 설계의 짐을 내려놓은 느낌을 받았다. 설계의뢰를 하기 전에는 인허가 설계가 간단한 줄 알았지만 도면 몇 장으로 해결 문제가 아니었다. 각 정면, 측면, 후면 내외부 도면과 전등, 전선, 콘센트, 전열 위치, 창문 크기와 종류 등 세세하게 나와서 얼추 이런 느낌과 모양이겠구나 하는 정도까지 나와야 했다. 건축사사무소에 문의해서 인허가 실시설계 도면이 나와서 신청하기 전에 나와 외삼촌이 함께 미팅했으면 좋겠다는 뜻을 알렸다. 9월 7일에 인허가 도면이 완성되어 다음날에 미팅하기로 했다. 일단 완성된 도면을 PDF 파일로 받아 보고 확인하는 작업을 했다. 그렇게 잘 알지는 못하지만 계획 도면과 달라진 부분도 있고 해서 궁금한 부분과 질문하고 싶은 부분, 요청하고 싶은 부분을 찾아서 적어봤다.


주차장 자리, 지붕과 벽, 바닥 단면, 창문 두께 등 궁금한 것들을 적고 외삼촌과 피드백하면서 정리했는데 나보다 더 건축 지식이 있는 외삼촌은 단열과 방수 관련해서 더욱 세심하게 살펴보았다. 그렇게 정리를 하고 수요일 퇴근을 부랴부랴 한 뒤 외삼촌을 픽업하고 건축사사무소를 방문했다. 몇 번 방문해서 그런지 이제는 다소 편안한 분위기를 느낄 수 있다는 게 그래도 시간이 흐르긴 했구나를 느꼈다. 시공 전에 이렇게 미팅을 여러 차례 하는 게 틈을 잡아내는 데 중요했기에 소중한 시간이었다. 건축사와 만나서 하나씩 살펴보며 대화를 이어나갔다. 먼저 주차장 자리는 건축법상 겹치는 구간이 없어야 해서 처음 생각한 곳에서 옮기게 되었다. 창문 두께는 16mm에서 22mm로 변경했다. 지붕과 벽, 바닥의 단면에 대해서도 설명을 듣고 추가할 수 있는 부분은 추가했다. 전등도 다락에 더 달아서 조명을 보완했다. 2층은 시스템 에어컨을 하는데 냉온풍이 되는 것으로 해서 2층과 다락의 열 순환이 더욱 빠르게 될 수 있도록 요청사항에 넣었다. 이런 사항들을 이야기하면서 인허가 설계 피드백을 마쳤는데 크게 변한 것 없이 유연하게 변경할 수 있는 정도라서 큰 문제없이 끝났다.


20211212_145043.jpg
Screenshot_20211212-143539_Office.jpg
20211212_145208.jpg
Screenshot_20211212-143548_Office.jpg
20211212_145345.jpg
Screenshot_20211212-143558_Office.jpg
20211212_145449.jpg
Screenshot_20211212-143607_Office.jpg
20211212_145648.jpg
Screenshot_20211212-143616_Office.jpg 건축사사무소 설계


인허가 설계 허가는 추석 지나고 9월 29일 정도에 될 예정이라고 했다. 그리고 세부 내역 비용이 나오는 소위 상세 설계도 추석 지나면 나올 것 같다는 답변이 들려왔다. 추석 지나면 착공에 들어간다고 하니 이제는 대출 준비를 해야 했다. 코로나19로 인해 경기부양책의 일환으로 저금리가 작년과 올해까지 이어졌는데 9월 들어서 가계부채가 높다 해서 대출 규제로 들어간 상황이라 내가 처음 상담을 받은 8월과는 상황이 많이 달라져 있었다. 신용 대출의 금리와 금액이 많이 달라지고 있어서 추석 이후 상담받고 대출 금액, 금리, 상환 조건을 살펴서 받아야 했다. 이런 상황이 아니었더라면 관련 없다고 느꼈겠지만 지금은 나에게 현실이고 넘어야 할 산이었다.


추석이 지나고는 하루하루가 너무 아쉽게 느껴졌다. 아침 녘에 이불의 따스함을 느끼고 싶어 하는 날이 왔다는 걸 실감했지만 여전히 설계에서 답보상태였다. 올해는 추석 연휴가 월, 화, 수여서 목, 금요일 중 하루를 미팅으로 잡으려고 했지만 아직 견적이 나오지 않았다. 명절이 중간에 있어서 일이 더디게 진행되는 게 있었다. 견적은 다음 주 화요일이나 수요일에 나올 것 같다는 말이 핸드폰 너머로 들려왔을 때는 지난 시간이 못내 아쉬웠다. 이제 10월이 될 것이고 콘크리트 공사를 하려면 날이 따뜻해야 하는데 태풍이 불어서 비가 오거나 날이 쌀쌀해지면 기온이 내려가서 공사하는데 지장이 생길 수 있으니 어쩌지 못하는 답답함도 함께 밀려왔다. 일단 인허가 설계 승인이 되면 곧바로 착공에 들어가는데 그전에 상세 견적 비용에 대해 알아보고 자재 가격도 확인해서 피드백이 있어야 하기 때문이다. 이렇게 하루 이틀 밀려가는 시간이 별 것 아니겠지만 쌓이다 보면 일주일이 되고, 보름이 되고 한 달이 된다고 생각하니 어서 착공이 되어 첫 삽이라도 뜨는 걸 보고 싶었다.


9월 28일, 드디어 견적 미팅을 하는 날이 왔다. 전날 연락을 하고 잠이 들 때는 견적이 어떻게, 얼마가 나올지 궁금해서 잠을 설치기까지 했다. 퇴근을 하고 집에서 아내와 아이를 픽업한 다음 건축사사무소로 약속시간에 늦지 않게 갔다. 이제는 몇 번 와서 친숙한 건축사사무소 안으로 들어가 각자 앉던 자리에 나와 아내, 아이는 앉아서 건축사를 기다렸다. 아이는 관심 없는지 아내 핸드폰으로 만화를 보면서 지루한 시간을 보낼 준비를 했다. 건축사를 만나고 공사비와 공정표를 보고 설명을 들었다. 공사비는 우리가 애당초 생각했던 금액과는 큰 차이가 없어서 일단 다행이었다. 우리의 예산을 알고 최대한 거기에 맞춰서 공사비 책정을 한 듯했다. 코로나 19의 여파가 건축의 세계에서는 가파른 가격 상승으로 보이고 있었기에 우리의 공사비도 작년과 다르게 두 배 가까이 오른 가격으로 책정되었다.


공정 순서는 터파기부터 시작해서 골조공사, 전기 및 통신 공사, 소방, 설비, 단열, 조적, 창호, 미장, 타일, 지붕, 수장, 페인트, 마감, 데크, 빌트인, 청소, 주변 공사 등으로 끝난다고 한다. 단독주택 1채를 짓는 작은 공사지만 공사는 공사이기에 들어가야 할 것은 다 들어가는 것이라 공사비가 만만치 않았다. 어쨌든 이제 시작이라는 생각이 들었다. 10월 초에 시작해서 넉넉잡아 1월 말에 끝나는 공사 일정이었는데 지금은 날씨가 화창하고 정말 좋지만 이제 점점 추워지는 것만 남았기에 마음 한편에 걱정은 있었다. 가을의 시작에서 한겨울에 끝나는 공사였기 때문이다. 그래도 다행인 것은 골조공사와 창호가 10월, 11월이기 때문에 한겨울은 아니라는 점이었다. 겨울 공사는 난방비도 난방비지만 하루 중에서도 날씨가 조금 풀려야 타일도 붙이고 인테리어도 수월하게 진행되기에 공사 시작 시간이 조금 늦는다. 그리고 해가 짧기 때문에 오후 5시만 되어도 깜깜 해지는 날씨가 되기에 하루 중 공사 시간이 그만큼 짧을 수밖에 없다. 이는 공사비 증가로 이어지고, 겨울의 기온이 낮기에 꼼꼼한 공사를 하는데 어려움이 있어서 더욱 신경이 쓰이는 공정이었다.


내부 인테리어 관련해서는 골조 공사 이후에 세세하게 결정을 하기로 했다. 예를 들어 전등 종류는 구체적으로 어떤 디자인으로 확정할지, 현관문은 뭘로 할지, 키친의 디자인 색상은 뭘로 할지 등 세부적인 내용은 공정을 따라가며 결정하는 것이 좋을 듯싶었다. 일단 우리가 하고 싶은 브랜드와 전체적인 느낌은 정했기 때문에 진행 과정을 보면서 카탈로그를 확인하기로 했다. 아직은 공정별로 세부적인 자재의 스펙과 그에 따른 비용 정산 시기 등은 나오지 않았기에 그것은 추후에 받기로 했다.


인허가 설계 허가는 9월 29일, 수요일에 나오기로 했는데 담당자가 휴가라고 해서 그날 당일 되지 않고 목요일 오전에 되었다. 이런 사소한 변수로 인해 하루 늦어지는 것이 별 것 아닐 수 있지만 가을 공사의 마지노선에서 시작하는 나로서는 하루도 소중하게 느껴졌다. 목요일 오후에 설계와 감리 표준 계약으로 인해 급히 미팅을 갖기로 했다. 퇴근 후 건축사사무소를 방문해서 계약서 작성을 하고 시공사 대표와도 잠깐 인사하는 시간을 가졌다. 설계 인허가는 돼서 착공도 준비해놓기로 했다. 착공은 1주일 뒤인 10월 6일에 하기로 했다. 중간에 주말과 개천절 대체공휴일이 있어서 착공 준비 3일을 더하면 다음 주 수요일에 시작할 수 있었다. 아직 시작은 안 했지만 착공 날짜까지 달력에 적어놓으니 설계도면 상으로 이리저리 선을 그어가며 이야기하고 피드백하면서 만들어갈 때보다 더 큰 한 걸음을 내디딘 기분이 들었다.

keyword
이전 07화경계복원측량