열무물, 상가주택

상가주택

열우물, 십정

이번 집은 인천 북구 십정동의 8차선 대로에 면한 2층 ‘상가주택’이다.

이 집은 C가 태어나고 두 번째 집으로 초등학교 들어가지 전에 이사를 왔다고 한다. 처음에 이사 와서는 이곳이 어디인지 잘 몰라 어리둥절했던 기억이 있다고 한다. 그 집은 인천 부평구 십정동에 위치하고 있고 이곳에서 초등학교를 다녔다. 당시는 인천시 북구였으나, 1995년에 북구가 부평구와 계양구로 분리되었고, 그가 살았던 곳은 부평구로 명칭이 변경되었다. 십정(十井)은 열 개의 우물이 있는 지역이라는 뜻으로 십정동 근처에 열우물 고개라는 명칭이 남아 있다. 열(十) 개의 우물이라고도 하고 열(熱)이 나는 우물이라는 뜻이기도 하다.

이 집은 십정사거리에서 동암역으로 가는 대로변에 위치한 집이었다. 당시의 전형적인 2층 상가주택으로 1층 전면에 2칸의 근린생활시설이 있고, 후면에 2가구, 2층에 2가구가 거주할 수 있게 구성되어 있다. 지금 이 집은 사라지고, 4층 업무시설 건물이 신축되어 있어, 원래 집의 모습을 찾아볼 수 없다.

1층 상가에는 산업공구를 만들고 판매하는 곳으로, 근처에 주안 국가산업단지(당시 인천 수출 5,6 공단)가 있어서 공단에 공구 등을 공급하는 업체였다. 집 양쪽 옆에는 자동차 세차장과 수리하는 공장과 철공소가 있었다. 십정사거리를 기준으로 서쪽에는 공단이 위치하여 있고, 동쪽에는 주거지가 위치하여 있었지만, 주거지에도 공장과 연계된 산업용품 관계 업들이 있었다고 한다. 그러했기에 주거지임에도 소음이 지속적으로 있었다. 또한 집 앞 8차선의 큰 대로로 항상 화물차들이 다녀 자다가 큰 트럭이 지나가면 방바닥이 울릴 정도로 진동과 소음이 상당했던 기억이 있다. 그러나, 당시에는 소음과 진동 등에 대해서 민감하지 않았던 탓인지 열우물의 집은 햇살이 따뜻한 보금자리로 기억에 남아 있단다. 당시에는 흔치 않던 넓은 8차선 대로에 면한 2층 주택으로 살구색 타일과 지붕의 기와 장식으로 돋보이는 집이었다.


상가 2호와 4가구가 나누어 쓰는 집

01_십정동 집-조감도.jpg

이 집은 조감도에서 보이는 것과 같이 2층 상가주택으로 1층 전면에 상가 2호와 오른쪽에 집으로 들어가는 대문이 보인다. 이 집은 전면의 길이 대비 깊이가 2배 정도 되는 건물로 1층의 상가의 깊이는 1층의 절반 정도 되었다. 그 뒤쪽은 2가구의 집이 살 수 있게 되어 있었는데, 상가를 운영하는 사람이 뒤쪽 집을 쓸 수도 있게 문이 있어 연결되어 있었다. 상가와 뒤쪽 집을 별도로 쓸 수도 있고, 같이 쓸 수도 있는 변형이 가능한 집이다. 2층 또한 2가구가 나누어서 쓸 수도 있고, 한 집이 모두 사용할 수도 있게 변형이 가능했다. 최대로 하면 상가 2호와 4가구가 쓸 수 있는 변신의 구조를 가지고 있었다.

1층 후면의 집은 대문으로 들어와 뒤쪽으로 돌아가면 2가구의 출입구가 있다. 대문으로 들어와서 2층 계단으로 올라가면 첫 번째 집의 현관이 있고, 외부 복도를 따라서 뒤쪽으로 돌아가면 2층 두 번째 집의 현관이 위치하여 있다. 그 현관을 지나면 옥상으로 올라가는 계단이 있어 옥상 출입이 가능했다.

옥상은 평지붕이었고, 외곽에 짧은 경사를 두어 기와를 올려 마무리를 했다. 옥상 한쪽에 상부로 돌출된 부분은 2층 욕실의 상부에 위치한 다락의 돌출 구조물이다. 당시 다락은 주택의 부엌과 욕실 등의 상부에 위치하여 창고 등으로 쓰였는데, 이곳에도 설치되어 있었다.


2층 C의 집

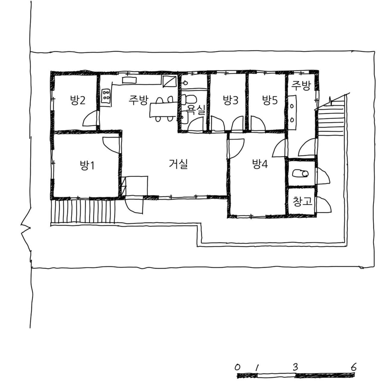
평면도

대문을 지나 2층으로 올라와서 첫 번째 현관으로 들어가는 집이 C의 집이다. 이 집의 평면은 지금의 아파트 평면과 매우 유사하게 LDK통합형으로 거실 중심의 평면이었고, 방 2개, 거실, 주방, 욕실을 사용했다. C가 이 집으로 이사 오기 전에는 화장실이 외부에 있는 재래식 변소의 집이었다. 이곳으로 이사 와서 양변기를 처음 써본 것이다. 재래식 화장실이 밖에 있을 때는 밤에 화장실 가기가 불편하여 요강을 실내에 두고 생활하는 것이 일상이었는데, 화장실이 실내로 들어오면서 요강은 사라졌다고 한다. 또한 화장실과 더불어 씻는 공간인 욕실이 실내로 들어오면서 생활에 많은 변화가 있었다.

이 집은 주방에 입식 식탁이 있고, 거실에 소파와 TV가 있어 거실과 주방이 생활의 중심이 되는 전형적인 입식 생활이었다. 당시 거실의 중심에 있던 TV는 옥상의 안테나가 전파를 수신해서 몇 개 채널이 되지 않는 공영방송을 보여주던 시대였다. 옥상의 작은 안테나로 전파를 수신했기 때문에 바람이 불거나 날씨가 좋지 않은 날은 TV가 잘 나오지 않았다. 그럴 때는 옥상에 올라가서 안테나 방향을 돌리는 일이 자주 있었다고 한다. 거실에서 TV를 보며 '잘 나온다', '안 나온다 돌려라'를 소리치면 옥상에서 안테나를 이리저리 돌리곤 했다. 신기하게도 안테나를 조금씩 돌리고 이동하면 TV가 잘 나오곤 했다.


여름의 더위와 겨울의 추위


C의 기억에 이 집은 여름과 겨울에 너무 살기 힘든 곳이었다. 여름에는 너무 더워서 집에서 제대로 잘 수가 없을 정도였다. 지금은 그래도 최상층 집에 단열재도 넣고, 다락 등 지붕을 별도로 하여 그 열기를 차단할 수 있는데, 아마 이 집은 천정에 단열재도 없었을 것 같고, 지붕의 콘크리트 슬래브도 매우 부실한 것이 원인이었을 것이다. 그래서 여름이면 옥상에 올라가서 돗자리 펴고 자는 것이 일상이었다. 자다가 새벽에는 온도가 급격하게 떨어져 다시 집으로 내려와 자곤 했단다. 여름 내내 콘크리트가 열을 받아서 집 안은 완전 사우나처럼 더웠기 때문이다. 당시는 에어컨도 고가이고, 전기세를 내는 것은 상당한 비용이 드는 문제로 에어컨 설치는 전혀 생각하지 못했을 것이다. 지금은 에어컨을 켜면 여름의 더위를 쉽게 피할 수 있고, 최근 건축된 집들은 벽과 천장의 단열재가 상당히 효율이 좋아져서 그나마 더위를 피하는 것이 수월해졌다.

여름은 더위에 힘들었고, 겨울이면 추위가 상당했다. 보일러는 잘 작동했는데, 보일러가 지하실에 있었기 때문에 2층까지 열기가 올라오지 않았다. 지하에서 2층까지 열기가 올라오는 것이 효율이 좋지 않았기 때문이다. 또한 당시 연탄보일러는 연탄불이 꺼지면 다시 붙이는데 상당한 노력이 필요했기 때문에 연탄 불이 꺼지기 전에 연탄을 갈아야 했기 때문에 새벽에 지하실에 가서 연탄을 갈아야 하는 불편함이 있었다. 연탄을 교체하는 일은 그의 어머니께서 주로 하셨는데, 가끔 새벽에 지하실에 따라가서 연탄을 갈고는 했다고 한다. 추후 이런 불편함을 참을 수가 없어 지하실의 보일러는 폐쇄하고 2층 화장실에 보일러를 새로 설치해서 이전보다는 겨울의 추위가 덜했다고 한다. 추위와 더위도 다 그 당시의 추억이었다고 한다.

keyword
이전 02화석바위, 불란서주택