[스케치 일기] 고속터미널 호남선 천장

아쉬운 건축계획

by 코드아키택트

집에 내려갈 땐 버스를 많이 타는 편이다. 나는 호남선 버스정류장에서 버스를 탄다. 어딘가 놀러 갈 때는 경부선을 타는 일이 많다. 호남선을 타다 보면 경부선에 비해 뭔가 알 수 없는 낡은 느낌과 어두컴컴한 느낌을 지울 수 없었다. 그게 자본의 문제인지 공간의 문제인지 쉽게 말할 순 없었다. 오늘은 스케치를 하며 들었던 생각을 짧게 써본다.


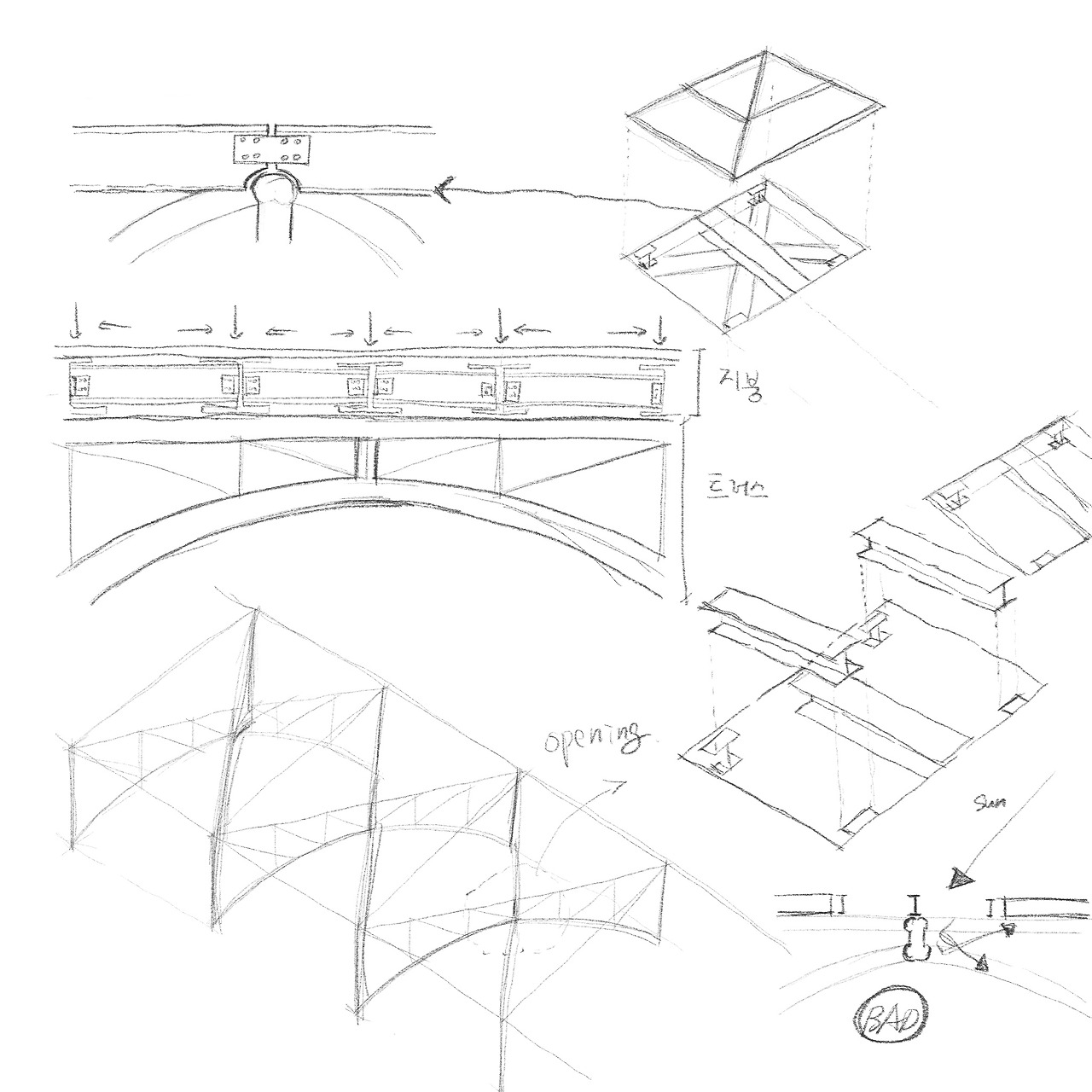
호남선 버스정류장은 구조가 굉장히 강조되어있다. 구조를 그대로 노출한다는 게 때론 아름답지만 때론 황량하게 느껴질 때도 있다. 아무래도 기능을 담당하는 것들이 외부로 노출되면 약간은 황량하고 덜 지어진 거 같은 느낌을 줄 수밖에 없다고 본다. 호남선 버스정류장 플랫폼의 구조는 아름다움 보단 기능에 초점을 둔 듯하다. 스케치를 하면서도 이 육중한 구조로부터 벗어나기 힘들었다.

구조가 우선시되다 보니 아쉬운 점도 눈에 띄었다. 그중 가장 큰 것은 개구부의 선정과 처리였다. 그리고 내가 생각하기에 여기가 우중충해 보이는 가장 큰 이유 기도하다. 개구부를 유심히 살펴보면 트러스가 맞닿는 지점 그 위에 개구부들을 놓은 것을 볼 수 있다. 여기서 1차적인 문제가 발생한다. 구조재가 지나가지 않는 부분에 놓는다면 햇빛을 막는 방해물 없이 빛이 들어올 수 있도록 할 수 있는데, 그렇게 못하게 된다.

더군다나 개구부를 내면 천장 안에 연속적으로 이어지던 구조재가 노출된다. 이런 구조재들을 어떻게 잘 처리하느냐도 관건이다. 개구부에 맞게 사각틀을 만들어서 구조가 제 기능을 하면서 섬세하게 처리하는 것도 하나의 방법이다. 하지만 호남선 천장은 마치 부러진 뼈를 그대로 노출하듯 처리한 점이 아쉬운 점이다. 현장에서 분명 여러 가지 조율에 어려움이 있을 것은 이해한다. 이런 시행착오를 겪고 앞으로 생기는 건축물은 좀 더 섬세한 언어를 썼으면 좋겠다.


IMG_5498.JPG
IMG_5497.JPG
IMG_5499.JPG
IMG_5500.JPG


Untitled_Artwork 3.jpg






keyword
작가의 이전글[스케치 일기] 테이트 모던 핸드레일