수익형 상가주택 설계 제안 2

해남군 해리 상가주택 기본설계

by 집을 그리는 사람

대지가 위치한 지역은 해남군 터미널 주변으로 구 시가지의 끝자락에 위치한 땅으로 과거 군 공용 주차장으로 사용되었던 토지입니다. 북쪽으로는 주택이 자리 잡고 북측 인접대지는 단독주택이 있고 그 뒤로는 아파트가 병풍처럼 둘러 있습니다. 동쪽으로는 4층 원룸이 신축되었는데 창문이 있어 서로 사생활 침해가 우려되고 서쪽과 남쪽은 12m와 6m 도로가 각각 생겼고 상가가 추후 건축 예상됩니다.



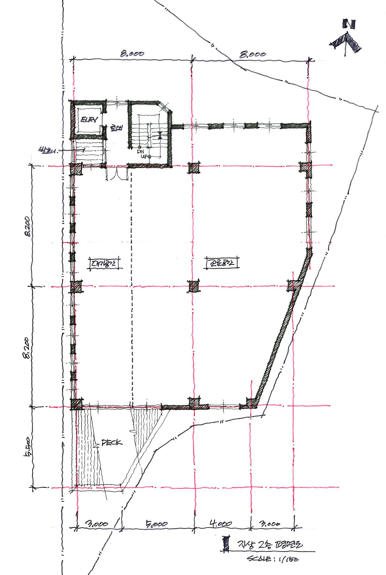
지상 1~2층 평면계획

2차 평면계획_1층.jpg
2차 평면계획_2층.jpg

1층과 2층은 임대 수익을 고려하여 최대한 면적을 확보했고 엘리베이터와 계단이 차지하는 공간도 최소화하였습니다.


또한 1층은 어려가지 용도와 규모로 임대를 할 수 있도록 기둥과 벽체의 간격을 모듈화 하였고 2층은 병원과 같은 단일 규모로 임대가 가능하도록 크게 계획하였습니다.



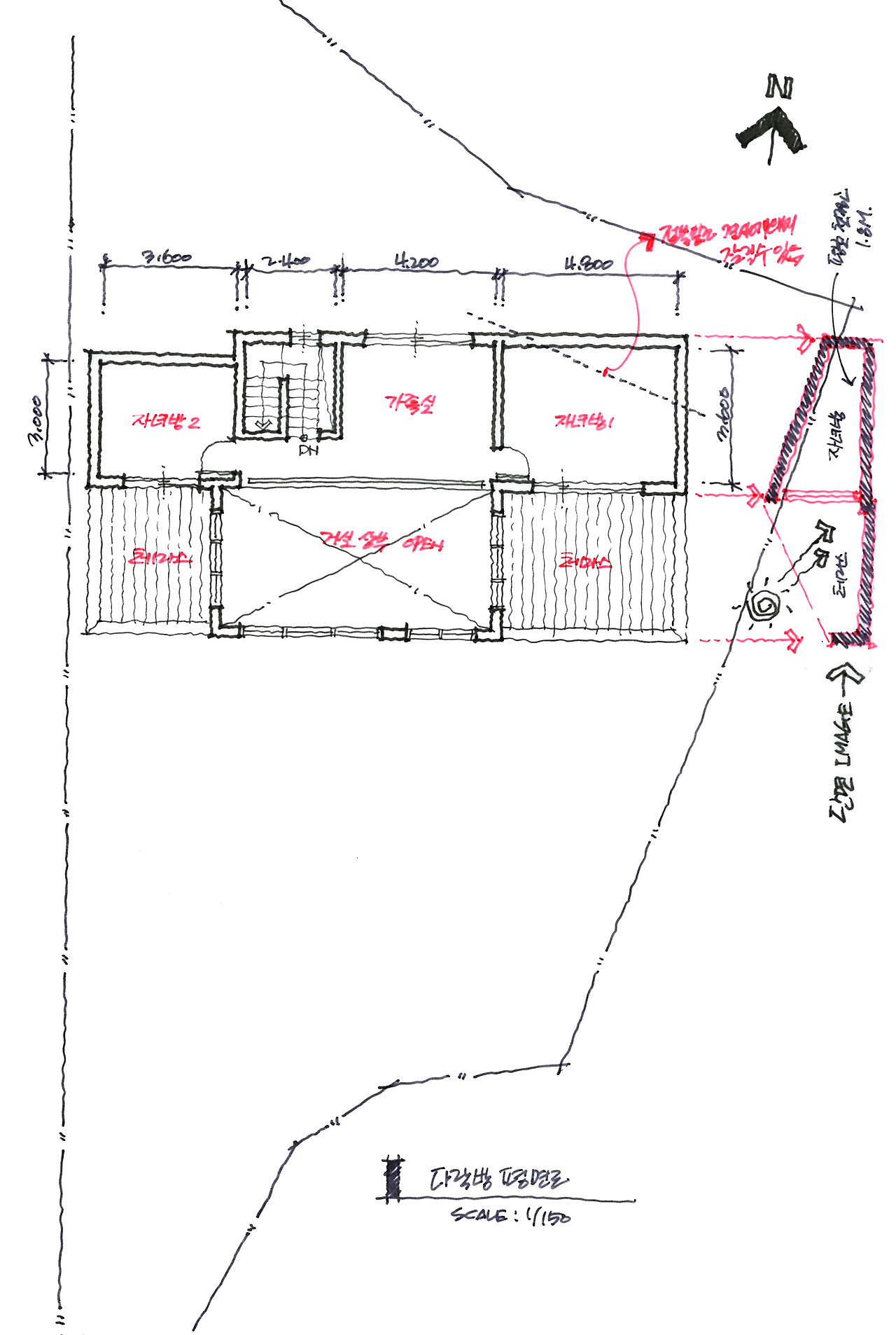
지상 3~4층 평면계획

2차 평면계획_3층.jpg
2차 평면계획_4층(다락방).jpg

1~2층에서 임대면적을 최대한 확보한 까닭에 3층 주택에서는 넓고 시원한 마당을 만들 수 있었습니다. 거실과 주방 식당을 집의 중심에 두었고, 현관 앞 서재의 한쪽 벽을 유리벽이나 분합문으로 계획하면 거실과 서재까지 한 공간으로 크게 사용할 수도 있습니다.


동측 원룸에서의 사생활 침해를 고려하여 동측에는 욕실과 드레스룸을 두고 옥상 정원의 동측에는 난간 높이를 높이고 차폐용 수목을 식재하였습니다.



남서측 조감도

남서측 조감도.jpg


남측 투시도

남측면도-1.jpg



북동측 조감도

북동측 조감도.jpg



북서측 조감도

북서측 조감도.jpg





설계문의 jwi7270@naver.com

keyword
매거진의 이전글두 세대가 거주하는 주택설계 제안