#15 '나주의 자연과 동화되다.' 'ㄱ'자형 전원주택

#15 전남 나주 클래식 스타일 목조 34평 전원주택 완공사례

by 이동혁 건축가

제목 : #15 '나주의 자연과 동화되다.' 'ㄱ'자형 전원주택

소제목 : #15 전남 나주 클래식 스타일 목조 34평 전원주택 완공사례


출발


안녕하세요 이동혁 건축가 입니다.^^

비가 내린다고 하니 날씨가 점점 흐려지고 있네요. 조금 아래 지방에는 이미 비가 내리고 있다던데 서울은 아직인가 봅니다.^^

이번주만 지나면 벌써 8월달이네요. 어! 하는 순간 벌써 2016년도의 반이 지나버렸어요. ㅠㅠ 시간이 왜 이렇게 빨리 지나가는 것인지... 시간이 빠르다는게 요즘 새삼스럽게 느껴진답니다.^^;

오늘 소개시켜드릴 주택은 34평형의 'ㄱ'자형 주택입니다.

모든 실에 채광과 환기가 잘 되며, 특별한 입면 디자인이 아니더라도 입체적인 느낌을 받을 수 있는 주택 사례입니다.^^

일자형이나 박스형의 공간구성이 마음에 안 드셨던 분들께는 이번 주택 사례가 많은 도움이 될 수 있을거라 생각됩니다.

'ㄱ'자형의 장점은 대지의 공간제약을 타 공간구성보다 덜 받는다에 있습니다. 물론 이동공간이 조금 더 들어가는 단점이 있기는 하지만 대지의 제약조건을 설계적으로 풀 수 있는 좋은 방법이므로 대지형태 때문에 고민하고 계시는 분들이 계신다면 한번 쯤 고민해 볼 만한 구성이라고 생각됩니다.

서론이 너무 길었죠?^^; 자 그럼 출발합니다.

*읽고 난 다음에는 위의 하트모양 라이킷과 공유 꾹 눌러주세용~^^


DSC_8037.jpg

HOUSE PLAN

연면적 : 110.89㎡(1층+2층)

1층 : 71.75㎡

2층 : 39.14㎡

총괄 건축가 : 이동혁, 임성재, 정다운

설계·시공 : 홈트리오(주) 1522-4279

Homepage : http://hometrio.kr

이동혁건축가TV : http://tv.naver.com/sunsutu1

크기변환_KakaoTalk_20160706_162914492.jpg

예상 총 건축비 : 168,500,000원(부가세포함)

설계비 및 인허가비 : 8,500,000(부가세포함)

*건축비 외 부대비용 : 대지구입비, 가구(싱크대, 신발장, 붙박이장), 기반시설인입(수도,전기,가스 등), 토목공사, 조경비, 감리비 등(https://brunch.co.kr/@sunsutu/96 참고)


SPEC

공법 : 기초-철근콘크리트 / 1층, 2층구조-경량목구조

구조재 : 1층 : 철근콘크리트 / 2층 :벽-2*6 SPF, 지붕-2*10 SPF

단열재(목조기준) : 외벽/지붕(수성연질폼 '가'등급)

: 내부벽체(Glasswool Insulation R19-15" 다등급)

: 내부천장(Glasswool Insulation R30-15" 다등급)

지붕마감재 : 아스팔트슁글

외벽마감재 : 테라코트

외벽포인트자재 : 파벽돌

실내벽마감재 : 실크벽지

실내바닥마감재 : 강마루

창호재 : 융기 3중 시스템창호

단열재 : 외부벽체(Glasswool Insulation R21HD-15" 나등급)

▷크나우프社 ECOBATT (ECOSE® 특허)

▷HD:저에너지 하우스용 / 15인치(381mm) *동등 제품

: 내부벽체(Glasswool Insulation R19-15" 다등급)

: 천장(Glasswool Insulation R30-15" 다등급)

: 지붕(Glasswool Insulation R37-23" 가등급) ▷ISOVER社에너지세이버

*단열기준은 2016년 7월1일자로 변경되는 단열기준법을 적용하여 강화시켜 놓았습니다.



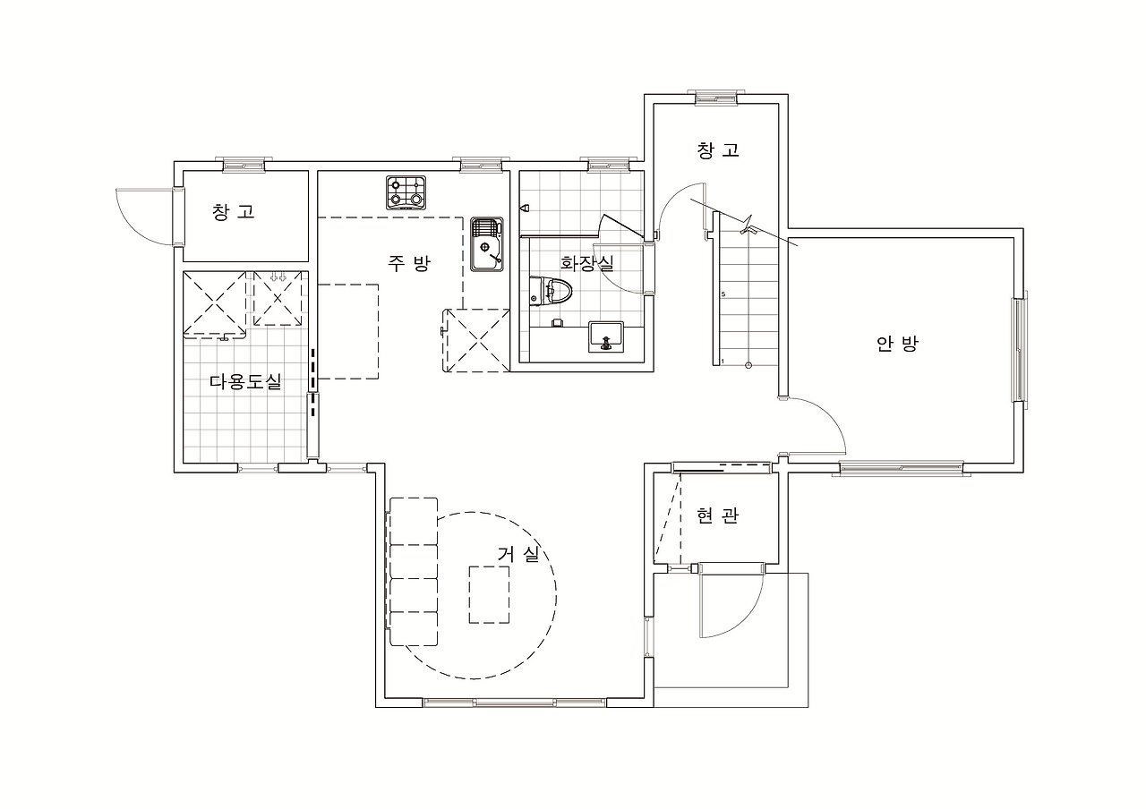
1층평면도.jpg 1층 평면도
2층평면도.jpg 2층 평면도


Q.설계 방향에 대해 설명해주세요.

이번 주택의 특징은 'ㄱ'자형 평면구성에 있을 것 같습니다. 대부분 직사각형의 반듯반듯한 대지위에 집을 짓기 때문에 일자형이나 박스형 등의 평면구성을 많이 하시는데요. 대지가 조금 독특하게 생겼거나 남향의 위치가 조망권의 위치와 엇갈려 있을 때에는 이번에 소개시켜드리는 'ㄱ'자형 주택을 고려해 보시는 것이 좋습니다.

'ㄱ'자형의 주택은 모든 실이 균등한 채광을 받을 수 있다는 큰 장점이 있습니다. 또한 자연스럽게 매스감이 극대화되며, 별도의 포인트가 없고 평수가 작다하더라도 이를 커버할 수 있는 매스감을 가지고 갈 수 있습니다.^^


Q.면적은 얼마나 되는가요?

1층과 2층을 합하여 110.89㎡(34평)으로 구성하였습니다. 1층은 공용공간 위주로 계획하되 건축주 내외분이 거주 가능한 침실을 1개만 구성하였으며, 두 자녀들은 2층을 독립적으로 사용가능하게 공간구성 하였습니다.

최근 설계트렌드는 주방공간을 거실보다 넓게 가지고 가는 것에 있습니다. 예전에는 거실에서 대부분의 생활을 보내셨지만 최근 들어서는 주방과 식당 공간에서 지내는 시간이 거실과 비교하여 거의 균등하게 배치되는 것을 알 수 있습니다.

주방과 다용도실의 공간과 거실공간을 거의 1:1 비율로 맞추었으며, 주방에서의 생활이 거실에 비해 답답함을 느끼지 않게 하기 위해 설계적 요소를 고려해 주었습니다.^^


Q.비용은 얼마가 들었나요?

총 공사비용은 168,500,000원이 들 것으로 예상합니다. 평당가격으로 나눈다면 평당 약 8,500,000이 되어질 것으로 판단됩니다. (부가세가 포함된 금액입니다.)


Q.기간은 얼마나 걸렸나요?

설계기간은 3개월이 소요되었으며, 시공기간은 3.5개월이 소요되어졌습니다. 준공기간이 15일 정도 소요되어 총 설계 및 공사기간은 7개월이 소요되어졌습니다.


Q.AS는 몇년인가요?

건설회사를 선정할 때 가장 많이 고려하시는 부분이 AS 일 것입니다.^^ 저희 회사는 기본 2년을 보증해 드리며, 2년 후 진행되는 AS건에 대해서는 실비를 받고 문제를 해결해 드리고 있습니다. 별도의 AS팀을 보유하고 있어 빠른 서비스를 받을 수 있는 점이 가장 큰 장점이라 생각합니다.^^


Q.지붕재인 아스팔트의 색깔은 다양하게 있나요?

아스팔트 슁글의 경우 가장 대중적으로 쓰여지는 지붕자재 입니다. 가격대비 성능이 높아 효율성면에서는 아직까지도 많이 사용되어지고 있습니다. 아스팔트의 색은 다양하게 구성되어져 있으며, 2중, 3중 그림자 슁글들도 존재합니다.

아마 원하시는 색상은 모두 선택이 가능하지 않을까 생각됩니다.^^


Q.마지막 총평을 한다면?

집을 설계하고 시공하면서 가장 많이 들었던 질문이 비싸다 였습니다. 집이라는 건은 이미 시장가가 형성되어져 있다고 할 수 있습니다. 지역에서 평당 250만원에 지을 수 있다고 하는데 실상 현실적으로 불가능한 금액이라고 생각됩니다. ㅠㅠ 아무리 샌드위치 판넬로 집을 지어도 그 비용보다는 많이 나오기 마련입니다.

제가 홈페이지 및 브런치에 총 공사금액과 설계비를 구체적으로 적는 이유는 금액적으로는 투명하다고 생각하기 때문입니다. 비교견적을 받고 무조건 싸게 집을 지어드릴려고 했다면 금액을 오픈시키지 않았을 것입니다.^^;

저희들의 설계 및 시공 모토는 '합리적인 가격에 고품질의 집을 짓자.' 입니다. 주먹구구식으로 짓는 것이 싫고 싸게 짓기 위해 품질을 낮추는 것들을 너무나도 많이 보아왔기에 그것을 탈피하고자 하였습니다.^^;

금액적인 부분은 절대로 과장된 것이 아니니 너무 오해마시고 믿고 보아주셨으면 합니다.^^

감사합니다.


외관
DSC_8042.jpg
나주1.jpg
나주2.jpg
나주3.jpg
현관

DSC_8030.jpg
DSC_8016.jpg
DSC_8020.jpg


거실
DSC_7992.jpg
DSC_7998.jpg
DSC_8004.jpg
DSC_8009.jpg


주방
DSC_7971.jpg
DSC_7974.jpg
DSC_7981.jpg
DSC_7983.jpg


계단실 및 2층 가족실
DSC_7919.jpg
DSC_7922.jpg
DSC_7925.jpg
DSC_7930.jpg
DSC_7934.jpg
DSC_7952.jpg
DSC_7954.jpg


침실1
DSC_7837.jpg
DSC_7843.jpg


침실2
DSC_7882.jpg
DSC_7885.jpg


침실3
DSC_7895.jpg


화장실1
DSC_7849.jpg


화장실2
DSC_7936.jpg
DSC_7949.jpg


도착


이번 설계제안 어떠셨나요?^^

이번에 제안드린 주택처럼 'ㄱ'자형 평면구성은 좁은 땅에서도 마당과 조망권을 같이 챙겨갈 수 있는 방법 중의 하나랍니다. 다만 복도처럼 이동공간이 조금 더 생긴다라는 평면적 단점이 있지만 평면구성으로 대지가 가진 문제점을 풀 수 있다는 것은 매우 큰 매리트라 생각됩니다.^^

집을 설계할 때 데드스페이스를 없애는 것이 1번이라고 할 수 있습니다. 하지만 너무 그것에 치중하다보면 박스형의 주택이나 밋밋한 입면이 나올 수 있기 때문에 어느 부분 한 곳에서는 설계자의 아이덴티티나 재미있는 공간구성을 넣어준답니다.

집을 설계할 때 공사비에 대한 부분은 무시할 수는 없습니다. 가지고 계신 예산 안에서 원하시는 주택을 모두 구현해 내는 것이 서로 윈윈 할 수 있는 것이라 생각되며, 그것을 해 내야 하는 것이 바로 저희들이라 생각합니다.^^

이번 주택은 'ㄱ'자형 주택의 정석적인 모습을 보여줄 수 있는 사례였던 것 같습니다. 대지가 너무 못생겨서 집을 어떻게 앉혀야 하나 고민이신가요? 그럼 너무 고민마시고 기존의 틀을 깰 수 있는 공간구성을 해 보시기 바랍니다. 아마 유니크하면서도 내 마음에 꼭 드는 평면구성이 나올 것이라 생각됩니다.

오늘은 여기까지 입니다.^^ 다음에 더 좋은 주택 사례로 찾아뵙겠습니다.

감사합니다.^^

*읽고 난 다음에는 위의 하트모양 라이킷과 공유 꾹 눌러주세용~^^


3인방 프로필.jpg (좌측부터) 정다운 건축가, 임성재 건축가, 이동혁 건축가

총괄 건축가 : 이동혁, 임성재, 정다운

설계·시공 : 홈트리오(주) 1522-4279

Homepage : http://hometrio.kr

이동혁건축가TV : http://tv.naver.com/sunsutu1

[집이라는 본질적인 가치에 집중하다.]


글쓴이 : 이동혁 건축가

이메일 : sunsutu@hanmail.net

상담 및 자문 : 010-4567-8413



keyword