#17 '자연과 같이 숨쉬다.' 충북 영동 27평주택

#17 충북 영동 북유럽 스타일 목조 27평 전원주택 완공사례

by 이동혁 건축가

제목 : #17 '자연과 같이 숨쉬다.' 충북 영동 27평 전원주택

소제목 : #17 충북 영동 북유럽 스타일 목조 27평 전원주택 완공사례


출발


안녕하세요 이동혁 건축가 입니다.^^

날씨가 너무 더워 컴퓨터 앞에 앉을 엄두가 안 나다보니 자연스레 글을 연재하지 못했었네요. ㅠㅠ

죄송합니다.

오늘부터 다시 정신차리고 좋은 주택들 소개시켜 드리도록 하겠습니다.

오늘 이야기 드릴 주택은 충북 영동에 지어진 27평 소형 주택입니다. 27평이라고 외관도 작아보일 것이라는 생각은 금물입니다.^^;

오픈천장 및 발코니 등을 활용하여 작은 평수대이지만 35평 이상의 외관을 가지고 간 이번 주택사례. 작은 주택을 생각하시는 분들께는 좋은 주택 완공 사례가 되지 않을까 생각합니다.

다음주 부터 본격적인 박람회 시작입니다. 저희 셋을 찾아오시는 분들께 교통비 이상의 혜택을 드릴 예정이오니 많이 구경와 주세요^^

서론이 또 길어졌네요. ㅠㅠ

자 그럼 출발합니다.^^

*읽고 난 다음에는 위의 하트모양 라이킷과 공유 꾹 눌러주세용~^^


DSC_1706.jpg

HOUSE PLAN

연면적 : 88.98㎡(1층+2층)

1층 : 64.02㎡

2층 : 24.96㎡

총괄 건축가 : 이동혁, 임성재, 정다운

설계·시공 : 홈트리오(주) 1522-4279

Homepage : http://hometrio.kr

이동혁건축가TV : http://tv.naver.com/sunsutu1

크기변환_KakaoTalk_20160706_162914492.jpg

예상 총 건축비 : 167,500,000원(부가세포함)

설계비 및 인허가비 : 6,750,000(부가세포함)

*건축비 외 부대비용 : 대지구입비, 가구(싱크대, 신발장, 붙박이장), 기반시설인입(수도,전기,가스 등), 토목공사, 조경비, 감리비 등(https://brunch.co.kr/@sunsutu/96 참고)

dlovehouse_com_20160811_153130.jpg

SPEC

공법 : 기초-철근콘크리트 / 1층, 2층구조-경량목구조

구조재 : 1층, 2층 :벽-2*6 SPF, 지붕-2*10 SPF

지붕마감재 : 스페니쉬 기와(테릴사 로만TBF카스텔)

외벽마감재 : 스타코플렉스

외벽포인트자재 : 파벽돌

실내벽마감재 : 실크벽지

실내바닥마감재 : 강마루

창호재 : 융기 3중 시스템창호

단열재 : 외부벽체(Glasswool Insulation R21HD-15" 나등급)

▷크나우프社 ECOBATT (ECOSE® 특허)

▷HD:저에너지 하우스용 / 15인치(381mm) *동등 제품

: 내부벽체(Glasswool Insulation R19-15" 다등급)

: 천장(Glasswool Insulation R30-15" 다등급)

: 지붕(Glasswool Insulation R37-23" 가등급) ▷ISOVER社에너지세이버

*단열기준은 2016년 7월1일자로 변경되는 단열기준법을 적용하여 강화시켜 놓았습니다.


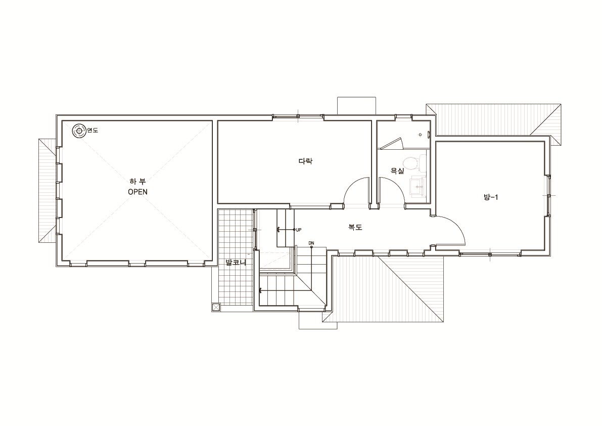
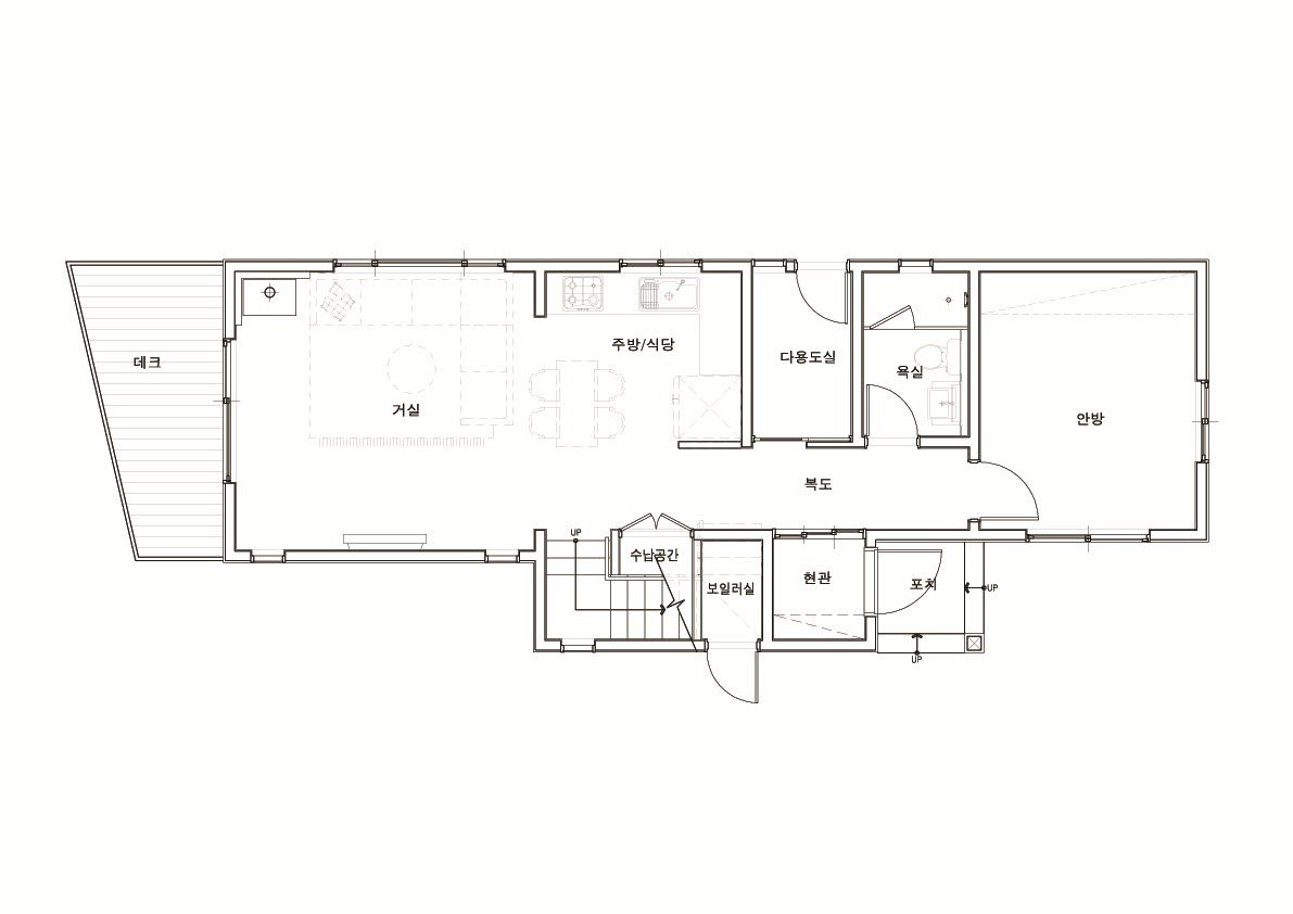
1층평면도.jpg 1층 평면도
2층평면도.jpg 2층 평면도


Q.설계 방향에 대해 설명해주세요.

이번 주택의 설계방향은 '자연과의 동화' 입니다. 충북 영동에 지어진 이번 주택은 주변 자연경과이 매우 뛰어난 곳이었습니다. 자연을 해치고 독특한 느낌으로 집을 짓는 것이 아닌 원래 그 자리에 자연과 함께 있었던 듯한 느낌으로 집을 설계하였습니다. 북유럽식 스타일의 주택으로 설계를 진행하였으며, 27평대의 작은 소형주택이지만 오픈 천장 및 포치, 발코니 등을 입면적으로 활용하여 작지만 커 보이는 주택을 완성시켰습니다.


Q.면적은 얼마나 되는가요?

1층과 2층을 합하여 88.98㎡(27평)으로 구성하였습니다. 1층은 64.02㎡(19평), 2층은 24.96㎡(8평)으로 구성하였으며, 1층 거실부분에 오픈천장을 적용하여 작은 평수대 이지만 큰 입면 이미지를 가지고 갈 수 있게 하였습니다.


Q.비용은 얼마가 들었나요?

총 공사비용은 167,500,000원이 소요되어졌으며, 설계비는 6,750,000만원으로 진행되어졌습니다. 모든 금액은 부가세 포함 금액이며, 별도비용은 위 개요부분에서 정리해 놓았습니다.^^


Q.기간은 얼마나 걸렸나요?

설계기간은 3개월(인허가기간 포함)이 소요되었으며, 시공기간은 3.5개월이 소요되어졌습니다. 준공기간이 15일 정도 소요되어 총 설계 및 공사기간은 7개월이 소요되어졌습니다.


Q.AS는 몇년인가요?

건설회사를 선정할 때 가장 많이 고려하시는 부분이 AS 일 것입니다.^^ 저희 회사는 기본 2년을 보증해 드리며, 2년 후 진행되는 AS건에 대해서는 실비를 받고 문제를 해결해 드리고 있습니다. 별도의 AS팀을 보유하고 있어 빠른 서비스를 받을 수 있는 점이 가장 큰 장점이라 생각합니다.^^


Q.스페니쉬 기와의 경우 시공비가 얼마 정도 추가되나요?

스페니쉬 기와의 경우 국내에서 생산이 안되다 보니 전량 테릴사의 수입 기와를 쓰고 있습니다. 저희들은 기본이 이중그림자슁글을 사용하는데요. '테릴사 로만 TBF카스텔' 기와로 변경 시 평당 37만원의 시공비를 받고 있습니다. 예를들면 이번 주택처럼 27평 주택이라고 하면, 27만원 * 37만원 을 하시면 되십니다. 이번 주택에서 추가된 기와비용은 999만원이 되어집니다. 하지 작업 및 부가세가 모두 포함된 금액입니다.


Q.마지막 총평을 한다면?

노후에 두분이서 거주하시는 집의 경우 솔직히 큰 평수대가 필요 없습니다.^^; 현실적으로 생각했을 때 너무 크게 집을 지어버리게 되면 관리가 안되는 역효과가 나타나기 때문이지요. 그래서 두 분이서 생활하시는 공간을 설계할 때는 최소한의 공간만 배치하여 설계를 진행한답니다.

이번 주택은 아마 작은 평수대의 큰 외관을 생각하고 계셨던 예비건축주님이라면 많은 관심을 가질 수 있는 사례이지 않을까 생각됩니다.

최근에 모던 스타일의 집이 많이 지어지는데 이번 주택처럼 고즈넉한 느낌과 무게감 있는 느낌을 선호하시는 분들이라면 북유럽식 주택도 한번쯤 고려해 보시는 것도 좋습니다.^^

다음주 박람회 준비로 눈코뜰새없이 바쁘게 하루하루를 보내고 있네요. 다음주에는 브런치 연재를 조금 못하더라도 이해해 주시기 바랍니다.

감사합니다.^^


외관
DSC_1704.jpg
DSC_1706.jpg
DSC_1864.jpg
DSC_1868.jpg
DSC_1872.jpg
DSC_1901.jpg
DSC_9099.jpg
DSC_9102.jpg
DSC_9103.jpg
DSC_9104.jpg


현관
DSC_9026.jpg


거실
DSC_8994.jpg
DSC_8995.jpg
DSC_8996.jpg
DSC_8997.jpg
DSC_8999.jpg
DSC_9000.jpg
DSC_9002.jpg
DSC_9012.jpg
DSC_9089.jpg
DSC_9092.jpg


주방
DSC_9031.jpg
DSC_9033.jpg


화장실
DSC_9013.jpg
DSC_9015.jpg
DSC_9017.jpg
DSC_9020.jpg
DSC_9044.jpg
DSC_9050.jpg


계단
DSC_9035.jpg
DSC_9038.jpg
DSC_9039.jpg
DSC_9041.jpg
DSC_9043.jpg
DSC_9073.jpg
DSC_9076.jpg


침실
DSC_9024.jpg
DSC_9055.jpg
DSC_9056.jpg
DSC_9058.jpg
DSC_9059.jpg
DSC_9066.jpg


테라스
DSC_9068.jpg
DSC_9070.jpg


도착


이번 충북 영동 완공사례 어떠셨나요?^^

27평이라고 해서 무조건 작은 느낌만을 가지고 계셨다면 이번 주택을 통해 "아! 30평 미만의 주택도 이러한 외관을 가질 수 있구나." 하는 것을 아셨으면 좋겠습니다.^^ 집이라는 것은 정말 답이 없는 분야 인 것 같습니다. 절대로 고정관념에 사로잡혀 진행해서는 안되는 분야이며, 새로운 아이디어로 중무장해야 서로 만족할 만한 결과가 나오는 것 같습니다.

여러분들의 사랑과 관심 덕분에 올 8월 초에 약속했던 50채의 계약이 모두 완료되었습니다. 내년도 공사도 벌써 20채 가량이 계약 완료되어 정직하게 짓는다는 것에 대해 얼마나 목말라 계셨는지가 새삼 느껴집니다.

앞으로도 정직하고 투명하게 집을 짓도록 할테니 지금처럼 많은 사랑과 관심 부탁드립니다.

감사합니다.^^

*읽고 난 다음에는 위의 하트모양 라이킷과 공유 꾹 눌러주세용~^^


3인방 프로필.jpg (좌측부터) 정다운 건축가, 임성재 건축가, 이동혁 건축가

총괄 건축가 : 이동혁, 임성재, 정다운

설계·시공 : 홈트리오(주) 1522-4279

Homepage : http://hometrio.kr

이동혁건축가TV : http://tv.naver.com/sunsutu1

[집이라는 본질적인 가치에 집중하다.]


글쓴이 : 이동혁 건축가

이메일 : sunsutu@hanmail.net

상담 및 자문 : 010-4567-8413



keyword