1.2 36평 우리 가족의 보금자리/제주

PART1. 기본을 지켜 집을 짓다

by 이동혁 건축가
KakaoTalk_20200521_090546896.jpg

제목 : 우리는 전원주택을 짓습니다

-홈트리오 완공 주택 30채의 이야기-


저자 : 이동혁, 임성재, 정다운


HC051-2588r.jpg

제목 : 우리는 전원주택을 짓습니다

부제 : 홈트리오 완공 주택 30채의 이야기


PART 1. 기본을 지켜 집을 짓다

1.2 36평 우리 가족의 보금자리/제주

0. 메인 HC044-9775.jpg

POINT.1

제주도에서 가장 중요하게 검토되어야 하는 부분은 바로 '비'입니다. 건축으로 정리하면 '누수'라고 이야기될 수 있겠네요. 아무리 예쁜 집도 비 새면 참을 수 없죠. 다른 어떠한 하자보다도 비새는 것은 참을 수 없을 정도의 화가 납니다. 그래서 저희들은 다른 어떠한 것보다도 누수에 대한 부분을 설계 단계에서부터 잡아서 나갑니다. 누수방지에 대한 설계 가이드라인을 자체적으로 가지고 있는 상황이니 얼마나 신경 쓰고 있는지 아시겠죠. 제주도는 비가 전국에서 가장 많이 내리는 지역으로 이미 유명합니다. 그래서 설계 단계에서부터 그러한 디테일 작업들이 필요합니다. 옥상은 가급적 만들지 말아야 하고, 지붕 경사도는 확실히, 그리고 벽 타고 누수가 생기지 않도록 지붕 처마는 15cm 이상 확실히 뽑아 놓을 것. 이것만 잘해도 비 절대 안 샙니다.


POINT.2

제주도는 건축비 할증이 존재합니다. 내륙지역 대비 15~20%의 건축비 할증이 무조건 붙습니다. 왜냐고요? 일단 자재는 다 배로 실어서 날라야 하고, 인력이 한계가 있다 보니 일단 작업자들의 인건비가 높게 형성됩니다. 그리고 날씨가 좋지 않다 보니 공사기간이 30% 정도 길게 형성됩니다. 결과론적으로 모든 공사 조건들이 공사비 상승을 형성될 수밖에 없는 지역인 거죠. 제주도에 집 지으시려고 하시면 꼭 예산 넉넉히 잡아 놓으세요. 아! 혹시 내륙지역과 똑같은 금액에 지어준다는 사람을 찾으셨다고요? 제 경험상 100% 추가비 요구하거나 사기꾼일 확률이 높습니다. 왜? 자재비는 거의 정해져 있고, 회사들마다의 마진율도 거의 정해져 있거든요. 내 마진을 포기하고 남의 집을 지어주는 사람? 이 세상에 그런 사람 없습니다.


POINT.3

제주도 세컨드 하우스의 경우 공간 구성이 매우 중요합니다. 상시 주거도 가능하면서 펜션에 온 듯한 분위기도 같이 가져가야 하거든요. 그래서 설계가 중요하고 인테리어가 중요합니다. 많은 돈을 가지고 있어서 예산에 상관없이 집을 꾸민다면 상관없어요. 하지만 우리의 현실은 항상 돈이 모자란 상황의 연속이죠. 그래서 적정한 금액에 욕심을 버리고 집을 짓는 것이 가장 중요한 핵심이랍니다. 36평은 결코 넓은 공간이 아닙니다. 힘을 줄 공간과 힘을 확실히 뺄 공간을 구분해서 설계해야 합니다. 모든 공간을 다 찾아먹으려고 하면 이도 저도 아닌 공간이 탄생하니 건축가의 의도를 잘 이해해서 짜임새 있는 집을 구성하셔야 합니다.


SPEC

공법 : 경량목구조

설계, 시공 : 홈트리오(주) / 상담문의 : 1522-4279

ARTIST : 건축가 정다운, 임성재, 이동혁

홈페이지 : http://hometrio.kr/

지붕마감재 : 아스팔트슁글 / 외벽 마감재 : 스타코플렉스 / 포인트자재 : 리얼징크, 세라믹사이딩

실내벽마감재 : 실크벽지/ 실내바닥마감재 : 이건 강마루

창호재 : 이건 알루미늄 3중 시스템창호

건축면적 : 118.53㎡(1층 : 71.04㎡, 2층 : 47.49㎡)

예상 총 건축비 : 287,000,000 원(부가세 포함, 산재보험료 포함 / 설계비, 인허가비, 구조계산 설계비 별도)

설계비 : 9,000,000원(부가세 포함) / 인허가비 : 3,600,000원(부가세 포함)

구조계산 설계비 : 3,600,000원(부가세 포함) / 인테리어 설계비 : 5,400,000원(부가세 포함)

*건축비 외 부대비용 : 대지구입비, 가구(싱크대, 신발장, 붙박이장), 기반시설 인입(수도, 전기, 가스 등), 토목공사, 조경비 등



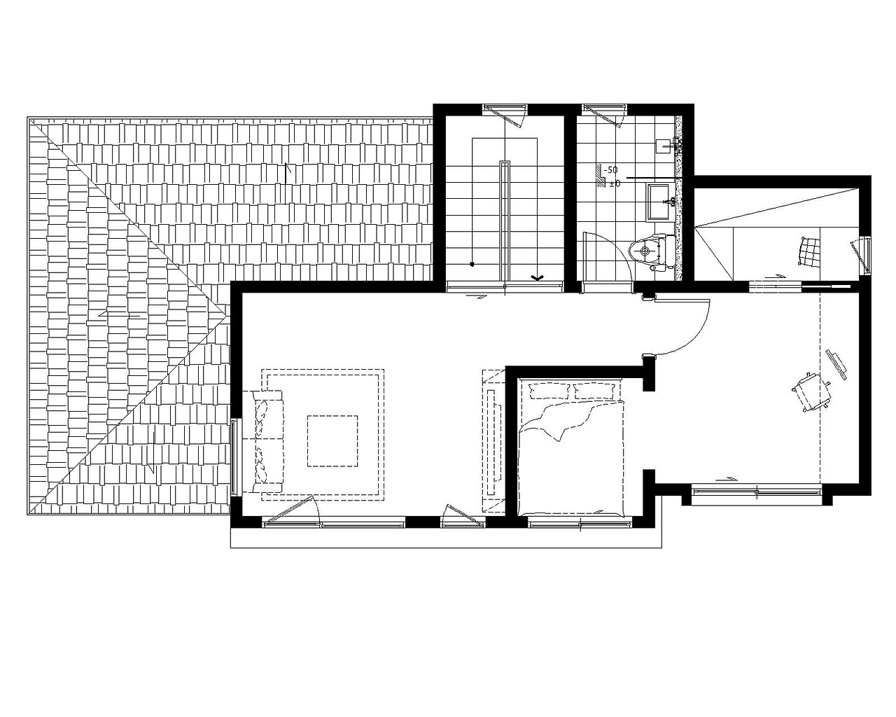
Floor Plan

1층 평면도.jpg 1층 평면도
2층 평면도.jpg 2층 평면도

<외관>

0. 메인 HC044-9775.jpg
HC044-9597.jpg
HC044-9599.jpg
HC044-9607.jpg
HC044-9613.jpg
HC044-9632.jpg
HC044-9634.jpg
HC044-9639.jpg
HC044-9784.jpg

<현관>

HC044-9641.jpg
HC044-9644.jpg
HC044-9649.jpg
HC044-9651.jpg

<거실>

HC044-9673.jpg
HC044-9674.jpg
HC044-9676.jpg
HC044-9678.jpg
HC044-9703.jpg
HC044-9709.jpg

<주방>

HC044-9683.jpg
HC044-9687.jpg
HC044-9689.jpg
HC044-9692.jpg
HC044-9694.jpg
HC044-9697.jpg

<다용도실>

HC044-9698.jpg
HC044-9702.jpg

<1층 욕실>

HC044-9654.jpg

<1층 안방>

HC044-9660.jpg
HC044-9664.jpg
HC044-9669.jpg

<계단실>

HC044-9681.jpg
HC044-9711.jpg
HC044-9714.jpg
HC044-9720.jpg

<2층 방1>

HC044-9725.jpg
HC044-9728.jpg
HC044-9730.jpg
HC044-9734.jpg

<2층 방2>

HC044-9740.jpg
HC044-9744.jpg
HC044-9745.jpg
HC044-9749.jpg

<2층 욕실>

HC044-9715.jpg
HC044-9718.jpg

<건축가 사진>

HC044-9756.jpg (좌측부터) 정다운 건축가, 임성재 건축가, 이동혁 건축가


이동혁 건축가 : 30평형 주택에서 화장실은 두 개 정도가 가장 적당합니다. 1개를 더 만들어도 되지만 그만큼 비용이 더 들어가고 공간을 배정해야 하는 문제가 생기므로 특별한 경우가 아니라면 30평형에서는 1층에 한 개, 2층에 한 개 총 두 개를 배치합니다. 일반적으로 45평 이상부터 3개를 배치하며, 60평이 넘어갈 경우 4개 이상을 배치하는 경우가 보통입니다. 이 기준을 생각하셔서 화장실 배치를 고려하시면 어렵지 않게 화장실 개수를 정할 수 있을 것입니다.

정다운 건축가 : 창문의 경우 입면에 생각보다 많은 영향을 끼칩니다. 정면 부분에서 창이 차지하는 포지션은 외벽의 마감재보다 더 많은 비율을 차지합니다. 이 창을 어떻게 디자인하느냐에 따라 입면의 이미지가 완전히 달라지게 되며, 채광 및 실내의 영향에도 큰 영향을 주게 됩니다. 주방, 거실, 그리고 2층의 일부 공간에서 바닥 라인까지 내려오는 통창을 사용해보세요. 생각보다 달라지는 입면 이미지를 느끼실 수 있게 되실 것입니다.

임성재 건축가 : 회사들마다 추구하는 품질의 기준이 다 다릅니다. 사용하는 창호도 다르며, 골조 기준 및 단열기준도 모두 다릅니다. 예산 대비 품질 적용이 달라지게 되며, 회사가 가진 가치관에 따라서도 완전히 다른 자재와 금액이 나오게 됩니다. 일관적으로 비교하는 것은 크게 의미가 없습니다. 그 회사가 어떠한 기준으로 집을 짓는지 살펴보셔야 하며, 왜 이러한 자재를 적용했는지 알아보시는 것이 좋습니다. 쉽게 설명해 현대자동차에도 중형차가 있고, 벤츠에도 중형차가 존재합니다. 같은 중형차이니 금액이 같아지길 바라는 것은 잘못된 비교 기준입니다. 브랜드에 따라 분명 금액적 차이과 품질적 차이가 발생합니다. 건설회사를 알아볼 때 가장 많이 하는 실수가 바로 이 부분입니다. 설계도조차 없이 평당 단가만을 물어보는 것. 죄송합니다만 그 금액은 아무 의미 없습니다. 하나씩 살펴보시고 가장 중요한 것은 여러분들도 공부를 하셔야 한다는 것입니다. 알아서 잘해주는 것은 이 세상에 존재하지 않습니다.


※모든 저작권은 홈트리오(주)에게 있습니다. 최근 무단으로 디자인과 설계 평면도를 복제해 마치 본인들이 한 것인 듯 홍보하는 업체들이 있는데 법적 책임을 물을 수 있다는 점 고지드립니다.

홈트리오 조직 계열도.jpg
프로필 통합본.jpg (좌측부터) 이동혁 건축가, 정다운 건축가, 임성재 건축가

[집이라는 본질적인 가치에 집중하다.]

Architecture Team : 홈트리오(주)

대표번호 : 1522-4279

홈페이지 : http://hometrio.kr/

KakaoTalk_20191210_164551850.jpg
KakaoTalk_20200521_090546896.jpg
img.jpg


keyword