오늘의집/35평 전원주택 '백고벽돌의 매력'

2024 월간 홈트리오 100 - 017번째

by 이동혁 건축가

http://spacemillion.kr <-ai 스페이스 밀리언

https://dewmillion.kr/ <-듀밀리언 종합건설

스페이스밀리언 배너.jpg

2024 월간 홈트리오 100 - 017번째 / 오늘의 집 / 35평 전원주택 '백고벽돌의 매력'(2024 전원주택)


※모든 저작권은 홈트리오(주), 듀밀리언 종합건설에게 있습니다. 최근 무단으로 디자인과 설계 평면도를 복제해 마치 본인들이 한 것인 듯 홍보하는 업체들이 있는데 법적 책임을 물을 수 있다는 점 고지드립니다.

양평-투시도.jpg

STORY


: 35평 전원주택의 정석이라고 할 수 있는 내부 공간 구성으로 설계된 전원주택입니다.

저희 홈트리오는 35평 이상부터 계약을 의뢰받고 있는데요. 종합건설업체의 관리비 포지션과 수익률 포지션을 따져봤을 때 35평 이하의 경우 저희 인력이 투입되었을 때 오히려 마이너스가 되어버리더라고요. 품질은 높아지는데 시장가 자체가 이미 형성되어 있다 보니 무리하게 돈을 투자하라고 요구하기도 어려운 실정이라 현재는 35평 이상부터 설계를 진행하고 있습니다.


다른 이유는 없었어요. 정말 단순 저희가 생각하는 품질을 시장가 형성에 맞게 짓기 위해서는 35평이 이상이라는 면적이 필요했을 뿐이에요. 전국이 동일한 것은 아니에요. 강화도, 제주도, 강원도 지역은 35평도 힘들어요. 40평 이상은 되어야 1개 팀이 상주하면서 할 수 있는 범위가 됩니다.


정말 많은 분들이 하루에도 수십 통 집을 의뢰하고 싶다고 문의를 주십니다. 다 의뢰받으면 너무 좋겠지만 1년에 30채가 한정 계약이 저희 회사의 품질 철학입니다. 가려 받는다는 말이 있는데 사실이에요. 저희가 잘할 수 있고 저희의 인력비가 들어갔을 때 최상의 결과물이 나온다는 판단이 들어야지만 계약해 드릴 수 있어요.


간혹 저희 회사가 어떤 회사 인지도 모르고 무작정 땅으로 찾아와 가설계를 해 달라는 분들이 계세요. 죄송하지만 저희는 그런 회사가 아닙니다. 정중하게 거절합니다.


지을 짓는 것은 단순 몇십만 원 단위가 아니죠. 억 단위가 들어가는 공사이기 때문에 아무런 조사도 없이 그냥 믿고 회사에게 맡긴다? 죄송하지만 그건 아닙니다. 꼼꼼히 알아보시고 정말 이 회사와 내가 궁합이 잘 맞아서 끝까지 완공을 즐겁게 할 수 있다는 확신이 있을 때 의뢰하세요. 어차피 대충 하는 의뢰는 집이 대충 끝나게 되어있습니다. 꼭 명심하세요. 집은 대충 지어서는 완공 안됩니다. 충분히 검토하고 의뢰하시길 바랍니다.


월간 홈트리오의 마지막 12월호 세 번째 모델은 도심형 전원주택에 어울릴만한 모델로 기획설계를 진행하였습니다. 백고 벽돌의 클래식함과 리얼징크의 세련됨이 조화스럽게 융화되어 완성된 이번 모델은 젊은 층 및 중년층 모든 층에 사랑을 받을 수 있는 그러한 집이라 생각합니다.


박공지붕과 외쪽지붕을 각 부위별로 밸런스 있게 구성해 주었고, 4면 어디에서 보던 입체감과 볼륨감이 넘쳐나는 집으로서 설계하였습니다.


35평이라는 면적이 실재 지어놓고 보면 생각보다 작다는 느낌이 듭니다. 그 이유는 아파트는 35평을 평면적으로 배치하였고, 전원주택은 그 면적은 2층으로 분리하여 배치하였기 때문입니다. 같은 바닥면적이라 하더라도 시각적으로 보이는 부분이 완전히 다릅니다. 꼭 이점 유의하셔서 공간을 설계하시길 바랍니다.


진짜 10분이면 10분 모두 지어놓고 좁다고 해요. 그러니까 설계 때 그렇게 말씀드렸잖아요. 좁다고. 이상하게 저희 말은 믿으면서 모르는 인터넷 글들을 철석같이 믿으세요. 저희 믿고 설계하세요. 그래야 후회 없는 집을 지을 수 있답니다.


마지막으로 최근에 시스템 창호의 유리 부분에 대해서 많은 질의가 있는 것으로 알고 있습니다. 특히 로이코팅에 대한 문의가 심심치 않게 들어오고 있는데요. 눈으로 보면 확인이 불가능하기 때문에 어떤 분은 로이코팅이 안되어져 있다고 문제를 삼는데. 현실상 안되어 있는 창을 찾기는 어렵습니다. 그거 아낀다고 돈 더 버는 게 아니다 보니 모든 시스템창호 업체는 기본 로이유리가 적용되어 있습니다.


그래도 확인을 하고 싶다고요? 그러면 핸드폰을 여시고 핸드폰에 내장된 후뢰시를 켜시고요. 유리창에 대보세요. 그러면 3중 유리라고 하면 6개의 동그란 점이 유리에 맺히게 됩니다. 유리 한 장당 앞뒤로 상이 맺히는 건데요. 맨 안쪽의 창의 두 번째 불빛을 보면 녹색으로 색이 다른 것을 확인할 수 있으실 것입니다. 만일 모든 빛의 색이 비슷하다면 로이코팅이 안된 거예요. 맨 안쪽의 빛 색상이 다르다면 그것은 로이코팅이 잘 되어있는 것입니다.


물론 이것만으로 모든 것을 단정 짓기는 어렵지만 간단한 방법만으로도 로이코팅이 되어있는지 안되어 있는지 확인이 가능하답니다. 오늘 말씀드린 팁은 기억하고 계셨다가 한 번씩 사용해 보세요. 그럼 많은 궁금증이 풀리실 것입니다.


#백고벽돌 #리얼징크 #35평전원주택 #소형주택 #도심형단독주택

양평-투시도.jpg



공법 : 경량목구조

설계, 시공 : 듀밀리언(주), 홈트리오(주) / 상담문의 : sunsutu@hanmail.net(대표번호 : 1522-1035 / 문자상담 : 010-6889-9770 / 문의가 너무 많아 전화가 안 될 수 있습니다. 문자로 내용 남겨주시면 늦더라도 상담드릴께요.^^)

ARTIST : 건축가 이동혁, 임성재

홈페이지

: http://spacemillion.kr <-ai 스페이스 밀리언

: https://dewmillion.kr/ <-듀밀리언 종합건설

지붕마감재 : 리얼징크 / 외벽 마감재 : 백고벽돌(파벽돌) / 포인트자재 : 리얼징크, 합성목재

실내벽마감재 : 실크벽지 / 실내바닥마감재 : 이건 강마루

창호재 : 이건 알루미늄 3중 시스템창호

건축면적 : 116.71㎡(1층 : 77.51㎡, 2층 : 39.20㎡)

예상 총 건축비 : 272,000,000원(부가세 포함, 산재보험료 포함 / 설계비, 인허가비, 구조계산 설계비 별도)

설계비 : 8,750,000원(부가세 포함) / 인허가비 : 3,500,000원(부가세 포함)

구조계산 설계비 : 3,500,000원(부가세 포함) / 인테리어 설계비 : 3,500,000원(부가세 포함)


*건축비 외 부대비용 : 대지구입비, 가구(싱크대, 신발장, 붙박이장), 기반시설 인입(수도, 전기, 가스 등), 토목공사, 조경비 등


*건축비 기준은 24년 06월 14일 기준 금액입니다.


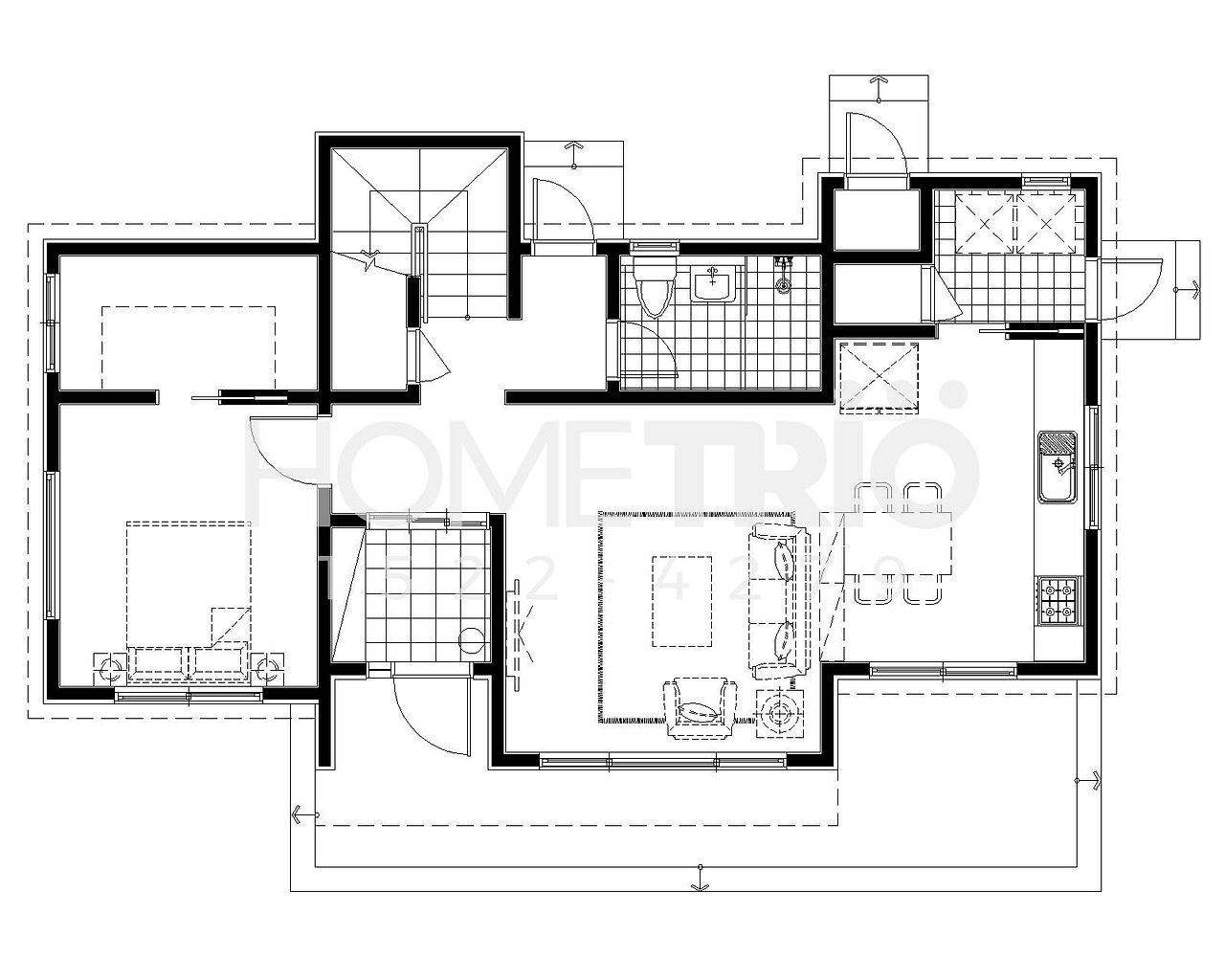
1층.jpg 1층 평면도
2층.jpg 2층 평면도


이동혁 건축가 : 벽돌은 쌓는 방식과 붙이는 방식 두 가지가 존재합니다. 원자재 가격도 당연히 쌓는 조적 방식의 벽돌이 더 비쌉니다. 인건비도 붙인 것 대비 더 어렵다 보니 자재비 및 인건비 모두 저렴하지는 않습니다. 무어이 맞다고 하기 어렵습니다. 옛날에는 파벽돌이 너무 가짜 티가 많이 나다 보니 잘 안 썼는데 최근에는 진짜 벽돌을 얇게 켜서 만드는 파벽돌이 많아졌기 때문에 가짜 느낌 때문에 안 쓴다는 말은 거의 사라졌습니다. 예산에 맞추세요. 좀 더 두께감이 있는 느낌이 좋다면 쌓는 방식의 벽돌을 선정하시고, 그렇지 않고 느낌 정도만 내도 된다고 생각하시는 분들은 과감히 파벽돌로 가세요. 이 디테일 차이 구분할 수 있는 사람 생각보다 많지 않습니다. 그리고 집주인이 아닌 제삼자는 우리 집에 관심 없다는 것. 자기만족 부분이 꼭 예산에 맞추어서 정하세요!!


벽돌과 리얼징크의 조합은 실패할 수 없는 조합이기도 합니다. 오래된 느낌의 클래식한 자재은 벽돌, 그리고 차갑고 세련된 느낌의 징크. 모두 클래식하거나 너무 모던하면 오히려 식상한 느낌이 드는데 완전히 다른 분위기를 자아내는 두 자재를 혼합사용 해 디자인한다면 완전히 새롭고 트렌디한 느낌으로 분위기가 발전합니다. 정말 말도 안 되는 것을 섞으면 안 되겠지만 전 이 조합에 찬성입니다.


임성재 건축가 : 35평을 엄청나게 넓은 공간이다라고 표현하는 사람 없을 거예요. 솔직히 이 공간은 딱 두 명이 살기 좋은 공간 사이즈라 평 하고 싶습니다. 적당한 크기의 거실과, 주방. 하나의 원 스페이스로 공간을 오픈시키고 현관을 중심으로 안방 존과 분리. 거기에 더해 2층의 가족실과 게스트룸. 가족실은 가변형 벽 시공으로 복도와 일체화 사용하기도 하고, 손님이 있을 때는 문을 닫아 방처럼 사용할 수 있습니다. 35평의 최적화된 평면 구성. 저는 이 평면이 35평 전원주택의 정석과도 같은 설계라고 이야기하고 싶습니다.



메스1.jpg
메스2.jpg
메스3.jpg
메스4.jpg
양평-투시도.jpg
양평-투시도-야경.jpg

https://spacemillion.kr/

스페이스밀리언 배너.jpg

[집이라는 본질적인 가치에 집중하다.]

설계, 시공 : 홈트리오(주), 듀밀리언(주)

상담문의 : sunsutu@hanmail.net(대표번호 : 1522-1035 / 문자상담 : 010-6889-9770 / 문의가 너무 많아 전화가 안 될 수 있습니다. 문자로 내용 남겨주시면 늦더라도 상담드릴게요.^^)

ARTIST : 건축가 이동혁, 임성재

홈페이지

: http://spacemillion.kr <-ai 스페이스 밀리언

: https://dewmillion.kr/ <-듀밀리언 종합건설

포트폴리오 : https://brunch.co.kr/@sunsutu

스페이스밀리언 ai.jpg


keyword