오늘의집/45평 전원주택 '북유럽 감성 주택'

2024 월간 홈트리오 100 - 016번째

by 이동혁 건축가

http://spacemillion.kr <-ai 스페이스 밀리언

https://dewmillion.kr/ <-듀밀리언 종합건설

스페이스밀리언 배너.jpg

2024 월간 홈트리오 100 - 016번째 / 오늘의 집 / 45평 전원주택 '북유럽 감성 주택'(2024 전원주택)


※모든 저작권은 홈트리오(주), 듀밀리언 종합건설에게 있습니다. 최근 무단으로 디자인과 설계 평면도를 복제해 마치 본인들이 한 것인 듯 홍보하는 업체들이 있는데 법적 책임을 물을 수 있다는 점 고지드립니다.

용인-투시도.jpg

STORY


: “따뜻한 느낌의 집을 짓고 싶어요.”


도심지에 지어지는 주택들은 어느 순간 모던하면서 차가운 느낌이 주류가 된 것 같습니다.

어찌 보면 건축주의 나이가 젊어지면서 클래식함보다는 깔끔하고 세련된 느낌이 더 부각이 되는 시대가 된 것이죠.


하지만 여전히 따뜻한 느낌의 주황빛 기와를 선호하시는 분들이 계세요. 언제 보아도 고즈넉함을 간직하는 그러한 집. 주황빛 곡선의 기와와 화이트 한 외벽. 거기에 기단부 파벽돌까지 색을 맞추어 준다면, 아마 최고의 북유럽식 주택의 탄생이지 않을까 생각합니다.


45평의 넉넉한 면적과 더불어 아름다움을 간직하고 태어난 이번 주택.

여러분들의 노후를 함께할 주택으로 이 집을 선택해 보시는 건 어떨까요?


오랜만에 기와가 올라간 북유럽 느낌의 집을 선보이는 것 같습니다. 몇 달 전에 강연을 하는데 이런 질문을 받았어요.

"북유럽 스타일이면 기와가 올라간 느낌이 아니라 포카리스웨트 광고에 나오는 파란색 동그란 지붕이 아닌가요?"

네 맞아요. 정확히 말한다면 북유럽 스타일은 위에서 말한 것과 같이 파란색 지붕에 바닷가가 연상되는 집의 모양이 더 정확해요. 하지만 우리나라에서 그러한 집을 보기는 생각보다 쉽지는 않죠.


한국도 다양한 지붕형태와 모양이 있듯 북유럽 스타일이라는 단어가 딱 하나의 느낌으로 통일되지는 않습니다. 다만 전원주택이라는 테마에 있어서는 기와가 올라간 따뜻한 느낌의 집을 통칭하여 북유럽 스타일이라고 부른답니다. 이와 반대되는 이미지는 차가운 도시남자의 분위기를 풍기는 모던 스타일이 있겠지요.


자! 다시 돌아와서 북유럽 스타일을 내가 원한다. 그렇다면 "차갑고 깔끔한 느낌보다는 고즈넉하면서 따뜻하고 클래식한 분위기를 더 좋아한다."라고 생각해주시면 된답니다.


주황빛 기와를 올릴 때에는 지붕의 디자인도 신경을 많이 쓰게 됩니다. 너무 복잡하지 않으면서 단조롭지 않고 무언가 볼륨감이 '뿜뿜' 할 수 있는 그러한 집. 어려워요. 비싼 기와 올렸는데 안 예쁘면 폭망이거든요.


그래서 박공지붕의 경사도를 더 들어 올려 기와가 최대한 4면에서 다 보일 수 있게 하고, 엇갈린 모임지붕 및 박공지붕을 90도 각도로 크기별로 배치하여 볼륨감을 넣어주고자 노력합니다.


이번 주택은 단층 주택입니다. 다락이라는 공간이 존재하지만 2층이라고 보기는 어렵고, 단층 주택의 전체적은 분위기를 입고 태어났다고 보시는 것이 더 정확합니다.


단층 주택은 잘못 설계하고 디자인했다가는 시골집의 분위기를 띄게 되는데요. 그러한 분위기를 나타내지 않으려고 한다면 창호부터 포인트 벽돌, 지붕의 경사도, 외벽의 색상 등 조화롭게 구성을 진행해 주어야 합니다.


평면을 좀 보고 갈게요. 현관부터 내가 이 공간 안에 들어가서 본다는 느낌으로 평면을 보시는 것이 좋습니다. 현관을 들어오면 우측으로는 메인 안방이 구성되어 있고, 앞으로는 약간의 복도를 통해 게스트룸 및 서재 공간에 진입할 수 있습니다.


이 집은 복도라는 공간을 갤러리 형태로 잘 활용한 공간 구성이 눈에 띕니다. 복도를 따라가면 주방과 식당 공간이 보이며, 그 공간을 더 지나가서 거실로 진입하는 형태로 설계가 되었습니다.


작은 평형대의 집에서 오픈공간을 잘못 사용하면 가시적으로 너무 답답한 느낌이 드는데요. 이번 주택에서는 막히는 공간이 발생하면 큰 창을 설치하여 어느 공간이던 밝은 느낌과 개방감을 느낄 수 있도록 하였습니다.


거실과 주방을 하나의 공간으로 하던, 아니면 이번 주택처럼 각각 분리된 공간으로 하던 정답은 없습니다. 굳이 정답을 꼽는다면 개인적 취향대로 선택한 것이 정답이다 말할 수 있겠네요.


개인의 라이프스타일에 맞춰서 설계하는 것! 그것이 전원주택 설계의 핵심이자 장점이라고 말씀드리고 싶습니다. 주변 이야기에 너무 휘둘리지 마세요. 이 집은 다른 사람의 집이 아닌 여러분들의 집이랍니다.

여러분들이 마음에 들면 그것이 베스트!!


이번 주택에서는 정식 계단실이 존재하는 다락을 만들어 주었습니다. 거실 오픈 천장이 없기 때문에 오롯이 지붕 속의 다락 공간이 형성되었는데요. 아무래도 답답하고 어두울 수 있기 때문에 천창을 두 개 설치해주어 채광적인 면을 확보해 주었습니다.


다락 공간은 낮아요. 가중평균 1.8m 내에서 법적기준을 맞추어 공간을 만들어 내야 하기 때문에 활동적인 공간으로서는 역할이 한계가 존재해요.


방송에서 보이는 다락의 경우 다락이라는 이름만 부여했을 뿐, 정확히 건축법적으로는 그냥 2층이에요. 어른이 서서 생활하는데 불편함 없이 생활할 수 있는 공간은 아니랍니다.


다락이 공짜라고 생각하시는 분들도 계세요. 그렇지 않아요. 방을 구성하는 것보다는 저렴하지만 건축비가 아예 안 들어가는 것은 아니에요. 그렇기 때문에 다락도 정확한 목적성을 가지고 돈을 투자세요.


그냥 만들어 놓으면 쓰겠지(?)라는 생각은 안 하시는 것이 좋답니다.


마무리를 지으면 이번 주택은 노후에 두 분이서 거주하시기 최적화된 공간으로 설계가 이루어졌습니다. 4인 가족이 생활하기에는 불편해요. 디자인이 예쁘다고 무조건 여러분들 집에 평면을 적용하시면 안 됩니다.


전원주택은 온전히 우리 가족만을 위한 공간과 동선을 설계되어야 합니다. 이번에 발표한 모델도 참고용으로만 봐주시고 여러분들 집에 필요한 요소들만 뽑아가셔서 나만의 집을 완성하시길 바랍니다.


#주황빛기와 #예쁜전원주택 #매력적인다락방 #천창의매력 #둘만의공간

용인-투시도.jpg



공법 : 경량목구조

설계, 시공 : 듀밀리언(주), 홈트리오(주) / 상담문의 : sunsutu@hanmail.net(대표번호 : 1522-1035 / 문자상담 : 010-6889-9770 / 문의가 너무 많아 전화가 안 될 수 있습니다. 문자로 내용 남겨주시면 늦더라도 상담드릴께요.^^)

ARTIST : 건축가 이동혁, 임성재

홈페이지

: http://spacemillion.kr <-ai 스페이스 밀리언

: https://dewmillion.kr/ <-듀밀리언 종합건설

지붕마감재 : 스페니쉬 기와 / 외벽 마감재 : 스타코플렉스 / 포인트자재 : 파벽돌

실내벽마감재 : 실크벽지 / 실내바닥마감재 : 이건 강마루

창호재 : 이건 3중 시스템창호

건축면적 : 147.6㎡(1층 : 117.36㎡, 다락 : 30.24㎡)

예상 총 건축비 : 337,500,000원(부가세 포함, 산재보험료 포함 / 설계비, 인허가비, 구조계산 설계비 별도)

설계비 : 11,250,000원(부가세 포함) / 인허가비 : 4,500,000원(부가세 포함)

구조계산 설계비 : 4,500,000원(부가세 포함) / 인테리어 설계비 : 6,750,000원(부가세 포함)


*건축비 외 부대비용 : 대지구입비, 가구(싱크대, 신발장, 붙박이장), 기반시설 인입(수도, 전기, 가스 등), 토목공사, 조경비 등


*건축비 기준은 24년 06월 12일 기준 금액입니다.


1층.jpg 1층 평면도
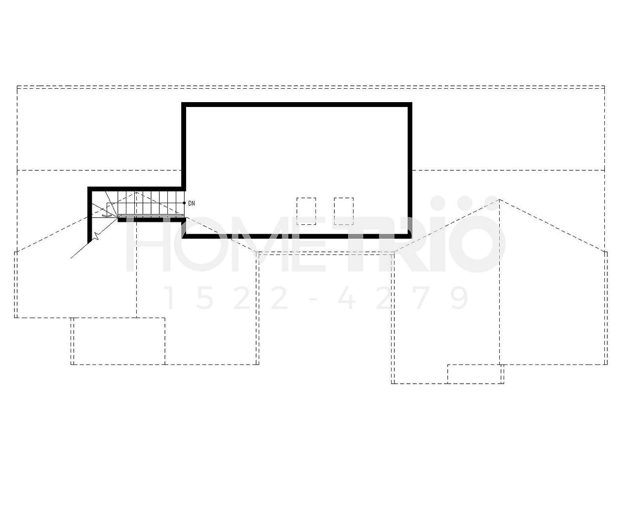
다락.jpg 다락 평면도

이동혁 건축가 : 한국형 북유럽 스타일 전원주택입니다. 주황빛 기와를 얹고 화이트 한 외벽에 톤을 맞춘 포인트 파벽돌을 적용해 북유럽 스타일의 주택 디자인을 완성한 것인데요. 외관의 느낌은 북유럽의 감성을 가져갔지만 내부는 완전 현대적인 평면구성으로 한국식에 맞게 설계된 주택이라 할 수 있습니다. 실내의 경우 한국사람의 경우 아파트에 완벽히 적응되어 있다 할 수 있어요. 북유럽 스타일이라고 해서 꼭 그 나라의 모든 것을 가져올 필요는 없답니다. 전체적인 분위기는 맞추되, 내가 생활할 공간은 그동안 지내오면서 편안하다고 느꼈던 구성으로 해도 괜찮습니다. 너무 갑작스러운 공간의 변화로 인해 생각보다 적응을 잘 못하시는 분들이 계시더라고요. 너무 돌아가려고 하지 마세요. 한국에 맞는 공간을 만드는 것. 어쩔 때는 이것이 정답의 지름길일 수 있습니다.


노후에 두 분이 생활하실 공간으로 설계가 이루어졌습니다. 좁은 느낌보다는 넓고 큰 공간으로의 구성을 주로 설계하였습니다. 답답함이 보이는 공간이 없을 거예요. 스케일을 기존의 라이프스타일보다 넓게 구성해 주었거든요. 1층은 넓은 면적 대비 방을 2개만 구성하였습니다. 대신 가장 많이 활용하는 공간인 주방에 많은 공간을 적용해 주었어요. 많은 가족들이 모여서 요리를 해 먹을 수 있는 공간으로 계획하였으며, 제사를 지내더라도 무리 없는 다용도실까지 구비해 주었답니다.


임성재 건축가 : 다락이라는 공간에 오해가 좀 많으신 거 같아요. 법적 용어인 다락은 가중평균 1.8m 높이의 지붕 속 공간입니다. 간혹 방송에서 층고를 높여 만든 공간을 다락이라고 방송하다 보니 다락이 엄청 넓고 성인이 생활하기에 부족함이 없다 생각하시는데요. 절대 그렇지 않습니다. 다락은 정확히 말하면 창고입니다. 창고에 마감을 해서 생활할 수 있게 한 공간이라 보는 것이 맞습니다. 정리하면 성인 남자가 올라가서 완벽한 일상생활을 하기에는 무리가 있습니다. 손주들의 놀이방 및 손님용 잠을 자는 공간 정도로 활용해야지 그곳에 서재 및 생활공간을 만들면 답답해서 생활이 안된답니다. '방송에서 다락이 나왔는데, 층고가 높고 성인이 서도 공간이 남는다?' 그건 그냥 다락이라고 불렀을 뿐 법적 용어의 다락이 아님을 아셔야 합니다.



메스1.jpg
메스2.jpg
메스3.jpg
메스4.jpg
용인-투시도.jpg

https://spacemillion.kr/

스페이스밀리언 배너.jpg

[집이라는 본질적인 가치에 집중하다.]

설계, 시공 : 홈트리오(주), 듀밀리언(주)

상담문의 : sunsutu@hanmail.net(대표번호 : 1522-1035 / 문자상담 : 010-6889-9770 / 문의가 너무 많아 전화가 안 될 수 있습니다. 문자로 내용 남겨주시면 늦더라도 상담드릴게요.^^)

ARTIST : 건축가 이동혁, 임성재

홈페이지

: http://spacemillion.kr <-ai 스페이스 밀리언

: https://dewmillion.kr/ <-듀밀리언 종합건설

포트폴리오 : https://brunch.co.kr/@sunsutu

스페이스밀리언 ai.jpg


keyword