brunch

공간에 목마르다

by 생각하는 수첩

공간에 목마르다. 나만의 공간이 있으면 좋겠다. 내 취향과 가치관까지 반영한 공간이 한 개가 아닌 좀 많이 있으면 좋겠다. 한 공간에 구겨 넣지 않고 컨셉별 공간이 여기저기 있으면 좋겠다. 그런데 그 공간이 돈까지 되면 어떨까? 돈이 되지 않으면 그저 치기 어린 욕심이고 수익이 나면 사업이 된다. 그 어떤 것도 수익화할 수 있는 게 현시점이라고 생각한다. 아무리 내 취향이라고 하더라도 타인과 접점이 있고 수익화를 위한 대중성을 첨가한다면 할 수 있다. 우리에겐 널리 알릴 수 있는 수단이 많기 때문이다.


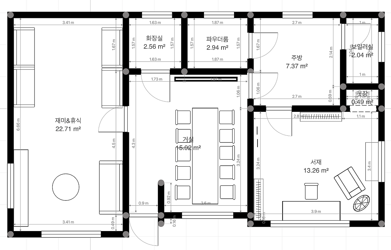
파티룸을 기획했다. 방 두 개, 거실 하나 있는 공간이다. 방 두 개 중 하나는 내 취향 중 하나를 온전히 담고 나머지 두 공간에는 대중성을 첨가했다. 바라만 봐도 설레는 사업장이라니 벌써 신난다. 내 취향은 방해받지 않는 아날로그 공간 더하기 나무와 책이다. LP감성을 추가하여 아날로그 컨셉을 더욱 극대화했다. 천장까지 닿는 책장과 원목 책상, 음악을 감상할 수 있는 가죽 소파를 둔다. 바닥에는 따뜻한 느낌의 카펫을 깔고 중고서점에서 읽고 싶은 책들을 구매해 책장을 채운다. 핸드폰은 잠시 거실에 두고 서재에 들어와, 집중하고 전념한다. 휴식도 마찬가지다. 여기저기 시선을 뺏기지 않고 온전히 휴식에 집중한다. 이런 공간을 상상할 때 나처럼 설레는 사람이 또 있으면 좋겠다. 나와 취향을 공유할 수 있는 사람들을 찾고 싶은 마음도 생겼다.

거실은 10명이 앉을 수 있는 테이블과 빔프로젝터, 화이트보드를 구비한다. 친구들과의 모임이나 소규모 회사 행사를 치를 수 있다. 두 번째 방은 노래방 시설, 보드게임 등 놀이 시설을 두어 대중성을 첨가했다. 야외 테라스에서는 고기도 구워 먹을 수 있다.


11월에 오픈까지 하고 싶었으나 아쉽게도 인테리어 일정이 미뤄져서 12월에 오픈할 수 있을 것 같다. 창호 교체, 천정 보수, 도배/장판, 전기/조명, 부엌 싱크대 교체 작업이 빽빽하게 이루어질 예정이다. 기획하고 견적 짠다고 시공업체 발품만 팔고 다니다, 올해 안에 할 수 있을까 싶었는데 어찌저찌 되어가고 있다. 성수기를 좀 지나서 오픈하는 게 아쉽다. 다음 글에서는 그간 준비했던 광고업과 어떻게 수익 파이프라인을 연결할지 기획 중인 내용에 대해 소개하겠다.


어플의 도움을 받아 작성해 본 도면


keyword
작가의 이전글월급으로 람보르기니 살 수 있어?