안산 단독주택, 깔끔한 외관과 어우러지는 풍경

by 한글주택

오늘 소개할 주택은 경기도 안산에 위치한 단독주택입니다. 큰 특징, 개성이 있는 주택이라기 보다는 심플한 외관이 편안하면서도 주변 풍경과 조화를 이룰 수 있도록 해주는 주는 주택이랍니다. 그럼 지금 바로 살펴보러 가보실까요?


깔끔한 외관과 어우러지는 풍경집
안산 단독주택_02.jpg

[건축정보]

건축위치 경기도 안산시

건축규모 2층

총 평수 36PY

1층평수 20PY

2층평수 16PY


안산 단독주택_03.gif

해당 주택에서 찾아볼 수 있는 가장 큰 특징은 '심플함'입니다. 때문에 보는 이도 머무는 이도 편안하다는 장점이 있으며, 앞으로 들어설 주변 주택들과도 큰 무리없이 조화를 이룰 수 있을 외관입니다. 스타코플렉스 외장재가 주로 사용되었으며, 대비되는 컬러로 밋밋하지 않도록 하였습니다. 또한 집 앞 현관과 1층의 큰 창문은 데크가 있어 마당과의 연결을 더욱 편하게 해줍니다.


1층내부
1층 도면.png 1층도면

1층은 동선을 현관 우측으로는 가족 공용공간인 거실/주방이 자리하고 있으며, 좌측으로는 개인공간과 2층으로 향하는 계단실이 있습니다. 가족공용공간은 우측, 개인공간은 좌측으로 배치하여 건축주님에게 딱맞는 동선을 최대한 반영하였습니다.


안산 단독주택_04.jpg

거실은 밝은 기운을 가질 수 있도록 밝지만 차분한 느낌의 벽지, 바닥재로 시공되었습니다. 또한, 큰 창을 통해서 거실-마당의 연결을 통해 전원생활을 만끽할 수 있도록 하였는데요, 아직 해당 안산 단독주택 주변으로는 건축물이 없기 때문에 탁 트인 시야를 마음껏 즐길 수 있겠습니다.


[포맷변환]안산전원주택_04.jpg

주방은 아주 여유로운 공간이 아니었기 때문에 조리대와 식탁이 'ㄷ'형태로 연결된 형태로 시공되었으며, 한정적인 공간이 답답해 보이지 않도록 밝은 화이트톤 컬러로 가구를 제작하였습니다. 이 외에도 센스있는 조명선택으로 평범한 것 같지만 포인트가 있는 주방이 완성되었지요.


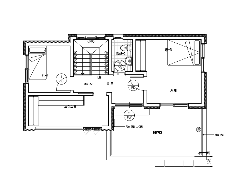
2층내부
2층 도면.png 2층내부

2층은 침실 2개와 넓은 드레스룸, 탁 트인 베란다가 자리하고 있습니다. 개인공간이 주로 있지만 많은분들의 로망인 넓은 드레스룸과 야외 베란다가 있어 단독주택 생활을 즐기기엔 부족함이 없을 것 같습니다.


오늘은 안산 단독주택을 둘러보았습니다. 시공된 주택 주변에 앞으로 건축물이 점점 들어선다면 조금 더 따스한 마을의 느낌이 되고, 오늘 소개한 단독주택은 어떠한 풍경 속에서도 조화를 잘 이룰 것 같습니다.


5초면 상담신청 끝!

▶신청하러가기◀


keyword
매거진의 이전글대가족이 함께! 40평, 50평대 단독주택