brunch

30평 전원주택, 카페같은 힐링 공간 설계사례!

by 한글주택
30평-전원주택_설계_01.png

안녕하세요, 한글주택입니다.

주택의 평수는 보유하고 계시는 대지 상황에 따라 거주하시는 가족 수, 원하는 주택의 규모에 따라서 다를텐데요! 그 중에서도 30평 전원주택 문의가 많은데요, 아무래도 가장 관리 하기에도 편리하면서 필요한 공간을 모두 구성할 수 있기 때문인 것 같습니다. 오늘은 30평대 전원주택을 소개하려 하는데요, 혹시, 30평대 집을 꿈꾸고 계셨다면 오늘 설계사례를 눈여겨 보시면 좋겠습니다.

30평-전원주택_설계_02.jpg

[설계정보]

설계공법 철근콘크리트

설계규모 2층

총 평수 107.46㎡(32.51py)

1층 평수 65.34㎡(19.76py)

2층 평수 42.12㎡(12.74py)


해당 주택은 30평대 콘크리트 주택으로 설계된 사례입니다. 1층은 필로티 구조, 2층은 넓은 테라스가 있어 카페 같은 느낌으로 힐링이 되어주는 주택으로 보여지는데요, 필로티는 뜨거운 햇살 내리는 빗줄기에도 바깥 공기를 마시며 티타임을 즐길 수 있으며, 마당과 연결되는 데크는 거실, 주방과 바로 연결되기 때문에 마당의 활용도가 굉장히 높습니다.

01 (1).jpg
02 (1).jpg
30평-전원주택_설계_02.png
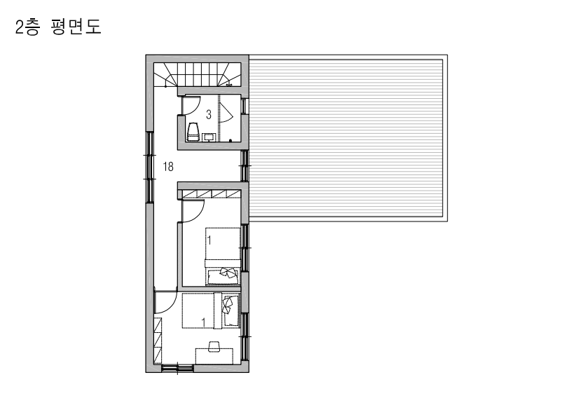
30평-전원주택_설계_03.png

또한 해당 주택은 주방과 거실 겸 식당으로 꾸며진 공간에 폴딩도어를 설치하여 필요에 따라 열고 닫을 수 있도록 해주어 공간 활용성이 좋습니다. 폴딩도어 또한 카페에서도 많이 찾아볼 수 있는 도어 종류 중 하나이지만, 최근에는 공간을 필요에 따라서 변형할 수 있도록 일반 주택에도 많이 적용됩니다. 2층은 침실 2개와 욕실, 그리고 넓은 테라스로 이루어져 있어 2층에서도 여유로운 시간을 보낼 수 있도록 하였습니다.


오늘은 종합건설 한글주택의 30평 전원주택 설계사례를 소개해 드렸습니다. 카페처럼 휴식이 되어주는 공간들이 가득한 이 집이 궁금하시다면 지금 바로 무료 상담 신청 하세요!

무료상담 신청하기

keyword
매거진의 이전글독립성을 확보한 전원주택 설계, 집짓기