brunch

상가주택 설계에 대한 조언이 있다면? 집건축의 설계사례

by 한글주택

안녕하세요 한글주택입니다. 오늘 소개해드릴 상가주택은 적은 공간을 최대한 활용하기 위해 공간을 합리적으로 설계한 사례인데요. 집건축의 사례 중 상가주택은 상가와 일반주택으로 이루어져 내집마련과 수익까지 얻을 수 있는 주택 형태입니다. 직접 거주하면서 임대수익을 창출할 수 있는 상가주택에 대해 더욱 자세히 알아볼까요?

6.jpg


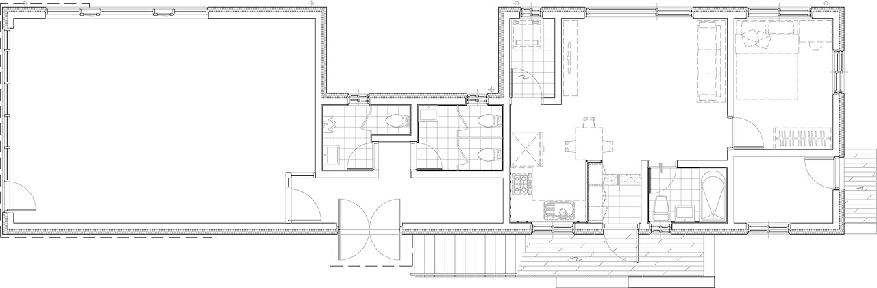
HOUSE PLAN

설계공법 철근콘크리트
설계 규모 지상 2층
총면적 195.25㎡(59.07py)
1층 면적 122.60㎡(37.09py)
2층 면적 72.65㎡(21.98py)

해당 상가주택은 약 50평대의 규모로 설계되어 1층은 37평 2층은 21평으로 시공되었습니다. 상가주택을 계획하실 때에는 주택면적과 다른 면적이 어떻게 되는지 꼭 체크하셔서 세금에 대한 부분을 유의하셔서 결정하시는 것이 좋은데요. 상가주택은 초기에 큰 비용을 투자해야 하는 단점이 있지만, 상가와 주택 두 역할을 모두 잘해야 하기에 경험이 많은 시공사를 선택하셔야 합니다. 한글주택은 여러 상가주택의 시공 경험을 바탕으로 체계적이고 전문적인 상가주택 건축이 가능합니다.

1f.jpg 1층 평면도
2f.jpg 2층 평면도

해당 상가주택은 독특하게 공간을 구분 짓지 않는 간결한 동선이 돋보이는데요. 중앙에는 욕실 및 화장실을 배치하여 구성하였습니다. 외부에 계단을 만들어 1층과 2층의 이동이 편안하도록 하였습니다. 상가주택을 건축할 때에는 접근성이 좋고 유동인구가 많은 위치의 토지를 선택하는 것이 좋습니다. 집과 다기능적인 요소를 포함해야 하는 주택인 만큼, 꼼꼼하게 검토하고 시공하셔야 합니다.

1.png
3.png

상가주택을 시공할 때에는 건축의 방향 또한 매우 중요한데요. 상가와 주택을 함께 고려하여 방향을 결정하셔야 하는 점을 유의하셔야 합니다. 대부분의 전원주택에서는 남향을 선호하지만, 음식점 또는 상가의 경우에는 북향을 선호하기에 상황에 따라서 방향을 결정하심이 좋습니다.

4.png

한글주택의 상가주택의 사례 어떠셨나요? 적은 공간을 최대한 활용한 상가주택은 경제성과 독립성을 모두 갖춘 전원주택이라고 표현할 수 있겠네요. 오늘날의 집은 일상생활을 하는 거주공간뿐만 아니라 수익성을 고루 갖춘 그 이상의 ''으로 변화하고 있습니다. 전원주택에 대한 정확한 정보, 한글주택과 함께 궁금증을 풀어보세요!


무료상담신청하기▶ https://bit.ly/2Q5dajd


keyword
매거진의 이전글전원주택설계도면으로 알아보는 건축디자인!