brunch

집짓는비용 아깝지 않은 독창적인 다양한 주거형태의 변화

by 한글주택

안녕하세요 한글주택입니다. 코로나 19의 장기화로 인해 집에서 머무는 시간이 길어짐에 따라 오늘날의 ''에서의 생활은 단순히 잠을 자고 생활하는 공간을 넘어서, 재택근무를 하기도 하며, 아이들의 온라인 수업하는 스터디룸이 되기도 합니다. 이렇게 다양한 생활들이 늘어남에 따라 주거형태 또한 다양하게 변화하고 있는데요. 오늘 소개해드릴 여수의 단독주택은 본인만의 '주거형태'를 다채롭게 구성한 주택으로 견고하면서 세련된 멋을 자랑합니다. 설계사례를 통해 집짓는비용과 자세한 내용을 알아볼까요?


집짓는비용 하나도 아깝지 않아요, 제 일상이 바뀌었거든요!


여수의 34평 단독주택 건축주님께서 하신 말씀입니다. 건축주님께서는 본인만의 생활양식을 맞춘 주택을 늘 꿈꾸셨는데요. 가족들과의 편안하고 안락한 노후를 위해 고향 여수에 단독주택을 선택하셨다고 합니다.

101.jpg
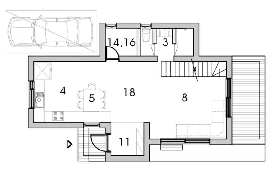
HOUSE PLAN


건축공법 철근콘크리트
설계 규모 지상 2층
총면적 114.71㎡(34.7PY)/다락층 제외
1층 면적 58.01㎡(17.55PY)
2층 면적 56.70㎡(17.15PY)
다락층 11.88㎡(3.59PY)


여수 전원주택은 2층 복층구조로 이루어졌으며 야외 데크와 테라스의 구성하여 외부와의 연결성이 돋보이는 설계를 구성하였습니다. 앞마당에는 돌을 심어 자연스러운 정원을 연출하여 고급스러운 분위기가 느껴집니다.

106.jpg 1층 도면
107.jpg 2층 도면

노출 콘크리트를 사용한 외관은 특별히 가공된 멋이 아니라 자연스러운 재료 본연의 미가 느껴져 세련된 분위기를 연출합니다. 노출 콘크리트는 콘크리트 자체가 구조재이면서 마감재이기에 어떤 마감공사보다 노련한 기술이 필요한 공법인데요. 한글주택에서는 수많은 주거형태의 주택시공경험을 바탕으로 완벽화되고 체계적인 노출 콘크리트 시공이 가능합니다. 노출 콘크리트 건축물은 중후하며 단단한 질감이 표현되는데요. 창문을 배치하여 포인트를 주고 테라스를 시공해 개성 있는 외관을 구성하였습니다.

102.jpg
103.jpg

1층과 2층은 구조를 다르게 배치하여 입체감을 살리고, 주택의 사면에는 테라스를 설계하여 자연친화적인 분위기를 연출하였습니다. 주거형태가 다양하게 나타나기 시작하면서 전원주택의 형태 또한 많이 변화하고 있는데요. 예전에는 사생활 보호가 잘되는 프라이버시를 중점적으로 설계하였다면 요즘은 자연과의 연결성이 좋은 구조의 설계를 더 선호하시는 것을 알 수 있습니다. 자연이 녹아 있는 일상, 모든 사람들의 로망이 아닐까요?

104.jpg
105.jpg

한 설문조사에 따르면 은퇴 후에 거주지를 옮기고 싶은 이유 1위는 '새로운 곳에서 살아보고 싶어서'라는 결과가 있듯이 은퇴 후 단독주택을 계획하셨던 건축주님께서는 어린 시절의 추억이 녹아있는 여수로 보금자리를 계획하게 되셨는데요. 도심을 벗어난 고향에서의 새로운 일상이 행복으로 가득하다고 말씀하셨습니다.


실제 완공된 모습
21.jpg
22.jpg

집짓는비용이 아깝지 않은 세련된 이미지의 전원주택 , 어떠셨나요? 집짓는비용의 부담이 크신 만큼 콘크리트주택의 경우 많은 시공사가 있기에 시공경험이 많은 본인에게 맞는 시공사를 선택하시는 것이 가장 좋습니다. 전원주택의 꿈, 한글주택과 함께 해보시는 건 어떨까요? 한글주택은 똑똑한 집짓기를 응원합니다.


무료상담신청하기


keyword
매거진의 이전글상가주택 설계에 대한 조언이 있다면? 집건축의 설계사례