전원주택건축비 와 건축, 전문화된 시공사를 선택하자!

by 한글주택


콘크리트종류 중 가장 견고한 철근콘크리트

안양 도심지에 위치한 주택,
교통의 편리함과 전원주택 생활을 한 번에!

오차 없는 공간 계획으로 나만의 '집'을 건축하다.

01.jpg
03.jpg

여러분들은 '집'건축을 계획하실 때 어떤 것을 우선순위로 두시나요? 전원주택건축비, 대지위치, 건축공법, 예산 등등 생각해야 할 것들이 많이 있는데요. 오늘 소개해드린 안양 전원주택은 좋은 대지위치에 위치하여 풍부한 생활 인프라를 갖춰 편안한 전원생활이 가능합니다. 안양 전원주택은 40평대 규모로 3층과 옥탑이 시공되었습니다.


콘크리트종류 중 견고하고 다양한 건축물 시공이 가능한 '철근콘크리트'를 선택하였는데요. 주택가에 황금 오리알을 낳은 듯, 한치의 오차 없이 시공되었습니다. 경쾌한 느낌을 주는 주택의 외관은 화이트톤 외장재에 그레이톤으로 포인트를 주어 심플하면서 단아한 분위기를 느낄 수 있습니다.

02.jpg
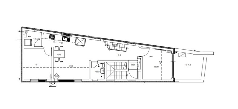
07.jpg 전원주택 설계도면

약 52평의 대지에 사다리꼴로 길게 설계된 전원주택은 간결하고 모던한 '미'가 느껴지는데요. 필로티 구조로 여유 있는 주차공간과 포치의 공간처럼 자전거 보관, 택배물 관리 등 생활에 편리하게 이용할 수 있습니다. 전원주택은 하나부터 열까지 완벽한 주택이라고 표현될 정도로 높은 층고와 테라스, 탁 트인 공간감까지 느낄 수 있는데요. 안에서 바깥을 조망할 때 더 좋은 자연경관을 보며 일상의 힐링을 느낄 수 있습니다.

09.jpg
08.jpg

전원주택의 실내는 간결하고 심플한데요. 크고 작은 창을 통해 채광을 느낄 수 있으며 오픈형 천장에 넓은 개방감으로 편리하고 자유로운 활동을 할 수 있습니다. 콘크리트 종류 중 '현대화된 건축물'의 주재료로 사용되는 철근콘크리트는 튼튼하고 견고하여 차음성이 아주 우수하기 때문에 편안하게 생활할 수 있습니다.

04.jpg
05.jpg

주택의 포인트 중 하나는 바로 옥탑인데요. 옥탑에서는 캠핑의자와 테이블을 배치하여 바비큐 파티를 할 수 있으며 일상의 피로감에서 벗어나 자유로움을 만끽할 수 있는 공간입니다. 한글주택은 전문적인 시공사로 꼼꼼한 시공경험과 섬세한 테크닉을 갖고 있습니다. 가장 유명한 철근콘크리트는 많은 포트폴리오를 살펴보심이 좋은데요. 하청 없는 직영공사이기에 '전원주택건축비가 투명한 믿음직한 건축, 안정감 있는 건축'을 할 수 있습니다.

06.jpg

올바른 건축은 무엇일까요? 집짓기의 첫 순서는 본인에게 맞는 건축법을 찾기 위해 건축공법을

우선으로 정하고, 상황에 맞는 정확한 전원주택건축비 견적을 받아 집짓기를 계획하시는 것이 좋습니다.


전문화된 건축, 믿을 수 있는 시공사 한글주택과 함께 행복한 건축의 꿈 이루세요!


전원주택건축비 무료상담 신청하기 ▶ https://bit.ly/2TPFHeF

keyword
매거진의 이전글단독주택신축 으로 새롭게 변화된 일상의 행복!