brunch

목욕탕 프로젝트

건축학과 프로젝트 이야기

by 김재현

이 프로젝트에서는 도심 속 목욕탕이 우리에게 줄 수 있는 가치에 주목했다. 사회의 변화로 인해 사라져 가는 상황 속에서, 목욕탕이라는 공간이 다시 만들어진다면 어떠한 공간이 되어야 하는지 생각해 보았다. 리가 생각한 목욕탕은 단순히 몸을 씻기 위한 기능적인 공간이 아니라 그곳에서 여유를 찾고 마음을 비울 수 있는 공간이었다. 또 도시인들을 위한 스테이는 이들이 번잡하다고 느끼는 도심 속에서도 고요함과 따뜻함을 줄 수 있는 내밀한 공간이 되어야 한다고 생각했다. 이용자들은 맨몸에 닿는 물을 느끼고 울리는 소리를 들으며 이곳만의 특별한 방식으로 휴식을 취할 수 있을 것이다.

- 프로젝트의 설명글


2023 정림학생건축상 - 취향거처, 다름의 여행

지난해 우리가 참가했던 공모전의 주제는 스테이 stay에 대한 것이었다. 공모전은 '취향거처, 다름의 여행'이라는 표어를 가지고 있었다. 쉽게 말해 여행과 숙박에 대한 이야기라 할 수 있다.


프로젝트를 할 때에 있어서 우리가 가장 중요하게 생각했던 부분은 이랬다.


주제에 대한 새로운 관점을 담는 것이다.


쉽게 말해 '이걸 이렇게 생각할 수도 있네?'라고 생각할 만한 걸 하려는 것이었다. 그러고 나서 이런 생각을 적용해 설득력 있는 결과물을 만들어낼 수만 있다면 완벽하다.



여행에 대하여

여행에 대한 나의 생각이자 팀원 세 명이 공유하고 있던 생각이 있었다.


여행이 뭘까? 여행은 일상에서 벗어나 새로운 감정, 감각을 찾기 위한 일이다. 그렇기 때문에 시간이 지나 미디어가 발달하고 교통이 발전할수록 사람들은 이런 비일상을 찾기 위해 점점 더 먼 곳으로 떠나게 되었다. 근데, 그렇게 공간적으로 먼 곳으로 떠나는 것 만이 여행일까.


여행이 새로움을 찾기 위한 행동이라면,

일상에서 느끼지 못했던 감각을 깨울 수 있는 공간이 있다면 그곳이 여행지라고 할 수 있지 않을까?

먼 곳으로만 떠나던 여행에서, 가깝지만 새로움을 찾을 수 있는 여행으로.


목욕탕에 대하여

그래서 익숙한 도심에서도 새로움을 느낄 수 있는, 그런 가능성이 있는 곳이 어딜까 찾았다. 막막했다. 결국 셋이서 괜찮은 아이디어가 나올 때까지 테헤란로를 따라 걸어가 보기로 했다. (집에 가고 싶다면 빨리 아이디어를 내야 한다는 의도다) 그날이 하필이면 영하 10도쯤 되던 유난히도 추운 날이었다. 그래서 10분도 채 못 걷다 결국 카페에 들어가서 서로 이야기했다. 목욕탕에 가 따뜻한 물에 들어가고 싶다고.


그렇게 목욕탕이야기를 시작했다.

- 2000년대에만 해도 동네에 목욕탕이 꽤 있었던 것 같은데 사라져서 아쉽다.

- 맨몸으로 물에 들어가는 행위가 주는 편안함과 온기는 어떤 공간도 주지 못하는 편안한 감각이다.

- 목욕탕 찜질방에서 느낄 수 있는 편안함은 왜일까

- 요즘은 목욕을 어디서 할 수 있나

- 안 그래도 사라지던 목욕탕들이 코로나를 겪으면서 더 사라진 것 같다

- 어떻게 하면 지금 세대에 맞는 목욕탕을 만들 수 있을까?


요약하자면

목욕탕이 가진 가치는 분명한데,

기존의 목욕탕은 사라지고 있었다.


여기서 기존의 목욕탕들이 가진 문제들을 해결하고, 현세대에 맞는 목욕탕을 만든다면

이 공간은 우리에게 새로운 감각을 깨워주고, 편안함을 줄 수 있는 공간이 될 수 있겠다는 생각이 들었다.

그리고 이런 공간이 도심 속 가까운 곳에 있다면 이곳에 가는 것이 번잡한 도심 속에서 여유를 찾고 마음을 정리할 수 있는 일종의 휴양이 될 수 있지 않을까 했다.



어떻게 만들었나

우선 삼성역 건너편 좁은 땅에 지어진 10층짜리 피스건물을 우리가 만들 목욕탕건물의 사이즈로 잡았다.


기존의 목욕탕 공간이 지하나 건물 한 층에 넓게 퍼져 있으면서 채광, 환기가 부족하고 위생상의 문제가 되었기에 이를 해결하려면 공간이 지상으로 올라와 외기를 접해야 한다고 생각했다.


또한 기존처럼 다수의 사람이 한 공간에서 한꺼번에 탕에 들어가는 것보다는 작은 공간들로 나누어 있어서 사람들이 각각의 공간에서 고요함을 느낄 수 있어야 한다고 생각했다. 마치 명상을 위한 공간처럼 내면에 집중하고, 물이 주는 온도와 감촉에 집중할 수 있는 공간이 되었으면 했다.



매스 다이어그램


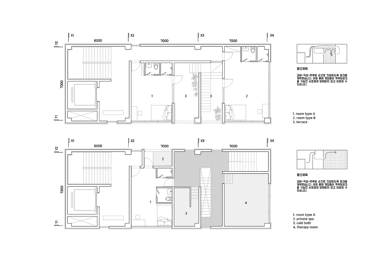
공간배치

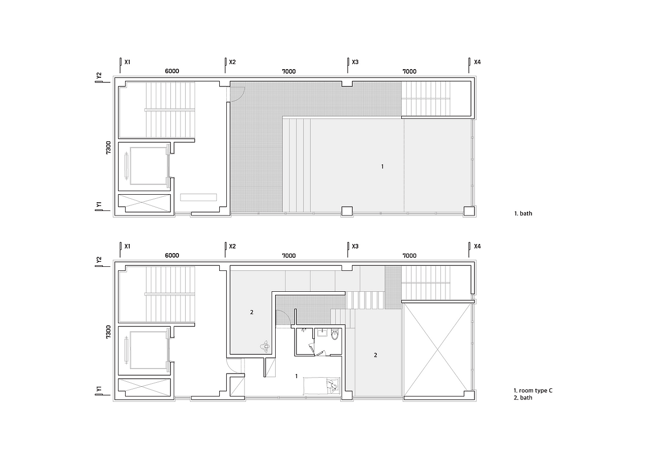
선정했던 대지는 25x10m 정도의 작고 길쭉한 대지였는데, 이번 건물의 전체적인 매스도 기존의 10층짜리 홀쭉한 건물을 그대로 따라가기로 했다. 사이트의 특수성을 반영하기보다는 의도적으로 도시의 어디에나 들어갈 수 있고, 미래의 목욕탕은 이러해야 한다는 점을 보여주고자 했기 때문이었다.


그렇다 보니 이런 작은 건물이 가지는 문제, 특징들이 있었다.


선은 은 공간이다 보니 목욕탕의 공간들이 모두 계단을 통해 이어져야 한다는 점이었다. 한 사람이 이 목욕탕을 전부 즐기기 위해 10층을 오르내리게 하는 게 아무래도 부담이라 생각했다. 래서 가능한 건물의 중간층인 6층을 중심으로 가장 public 한 공간들이 배치될 수 있게 했다.


조닝 Zoning


스테이

또한 이런 목욕탕과 연계되어 숙박이 이루어지는 스테이 공간을 함께 배치해야 했다. 좁은 건물에서 어떻게 스테이 공간을 넣을 수 있을까 생각했다. 목욕탕 따로, 스테이 따로 있기보다는 스테이가 마치 찜질방처럼 목욕탕에 속한 공간이어야 한다고 생각했다.


그래서 이곳의 스테이공간들은 외부에서 출입할 수 있는 문 하나, 목욕탕으로 진입할 수 있는 문 하나를 두 투숙객들은 자신의 숙소에서 목욕탕 공간으로 바로 들어갈 수 있도록 했다.



목욕탕 공간들

목욕탕은 기본적으로 수영복을 입고 들어가는 남녀 공용 방식으로 획했다. 이제는 알몸으로 들어가던 기존 목욕탕에 대한 거부감이 있는 세대도 많아졌고, 무엇보다도 남녀가 나뉘어있던 때보다 더 많은 공간들을 즐길 수 있도록 할 수 있기 때문이었다.



목욕탕 공간들은 지만 다양한 공간감을 느낄 수 있도록 했다. 좁고 높은 간에서 물을 맞는다던지, 깊숙한 곳에서 홀로 물소리를 들을 수 있는 공간이라던지 하는 물과 관련된 감각을 자극하는 공간들을 계획했다. 또한 외부를 향한 창들이 있다는 점을 살려서 목욕탕이지만 빛이 들어오는 곳들이 있고, 외부를 볼 수 있도록 했다. 외부에서는 내부의 이용자가 잘 노출되지 않으면서도 이용자들의 관점에서는 외부 풍경을 볼 수 있도록 탕 안에서의 시야에 맞게 창을 배치하고, 채광을 위한 높은 창을 두는 등 나름의 아이디어들을 적용했었다.



외형

이런 목욕탕의 특성 때문에 창들은 좁고 긴 형태를 띠게 되었고, 기본적으로 투명하기보다는 매스감이 강한 외형을 띄게 되었다. 그래서 나는 이참에 이 건물의 외관이 이런 목욕탕의 특성들을 담고 있으면 좋겠다고 생각했다. 투명성 높은 커튼월 오피스건물이 많은 이 동네에서 무게감 있고 약간은 비밀스러운 분위기를 전할 수 있어야 한다고 생각했다. 그래서 외형은 마치 돌을 쌓아 만든 것 같은, 굴뚝과 같은 느낌이 나도록 의도했다.



셀프크리틱

목욕탕이 가지는 가치를 이야기했지만 결과물을 보면 과거의 목욕탕이 아니라 스파, 수공간이 가진 가치에 가깝던 것이 아닌가 하는 생각이 좀 든다. 공중목욕탕만이 가지고 있던 문화나 찜질방 문화등에 대해 조금 더 공간적으로 다룰 수 있었으면 좋았을 것이란 아쉬움이 있다. 또한 개인적으로는 숙소공간을 배치하는 것이 약간은 억지스러워 보이는 부분이 있었다. 어쩌면 스테이라는 개념이 반드시 숙박을 해야 하는 것이 아니라 자신의 시간을 그곳에서 보내면서 그곳만의 특별함을 즐길 수 있으면 되는 것 아닌가? 하는 생각도 든다.


요약하자면

우선 도심 속 여행, 목욕탕이라는 점에서 우리의 주제에 대해 만족도가 높았다. 그리고 반면에 이것을 공간화하는 데에는 부족했던 것 같다.


우리가 처음 회의를 할 때 머리를 짜내다 보니 외딴곳으로의 여행, 우리가 발견하지 못한 장소를 발굴한다는 취지의 장소들이 많이 나왔었고, 다른 팀들의 주제들도 우리가 이야기했던 그 주제와 비슷한 경우가 많았다. 그래서 물리적인 장소에 중심을 두지 않는 이 프로젝트만이 가진 가치, 차별점이 있었던 것 같다. 기존의 먼 곳으로만 떠나는 일들을 뒤집어서 가깝지만 새로운 경험, 감각을 깨울 수 있는 공간을 만들고 이를 통해 비일상을 느낄 수 있도록 한 것이다.


다만 이런 생각이 구체회되는 과정이 다소 부족했다고 생각한다. 과거 목욕탕의 가치를 살린다면 어떤 것을 살릴 것인지, 도심 속 작은 건물에서 비일상적인 경험을 한다고 했을 때 어떤 경험을 할 것인지에 대해 조금 더 깊은 토론이 필요했던 것이 아닌가 생각이 든다.



팀 프로젝트에 대해

이 프로젝트는 친구인 이수원, 신효근과 함께 했다. 능력자체도 대단한 친구들이지만, 지금 생각해 보면 성향적으로 기획력이 좋은 친구 한 명, 디자인적 감각이 좋은 친구 한 명이 있어서 짧은 기간 동안 프로젝트가 착착 진행이 되었던 것 같다. 이 둘과 함께 작업하면서 나는 언제나 이들에게 많은 걸 배울 수 있는 시간이었다.

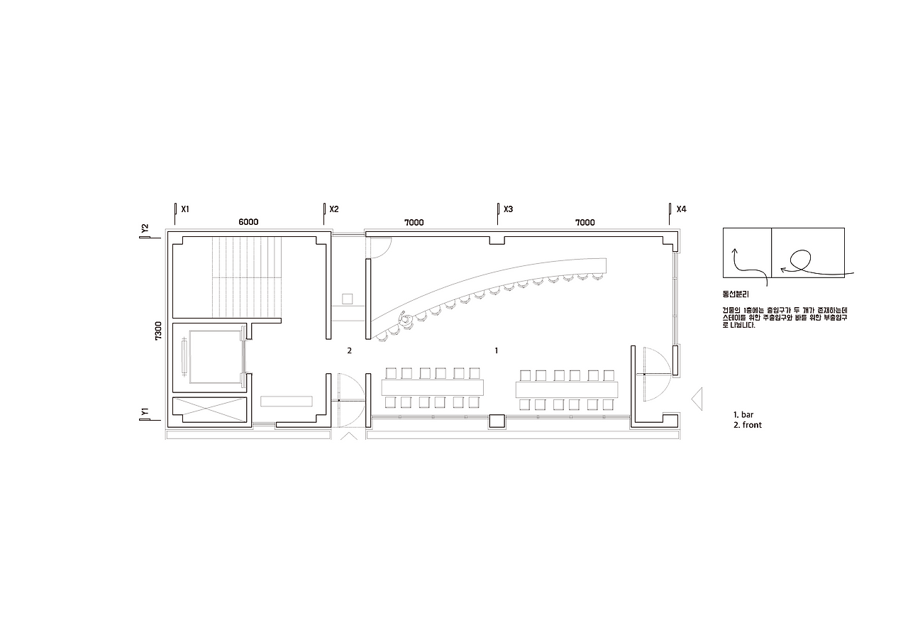
1,2,3층의 평면
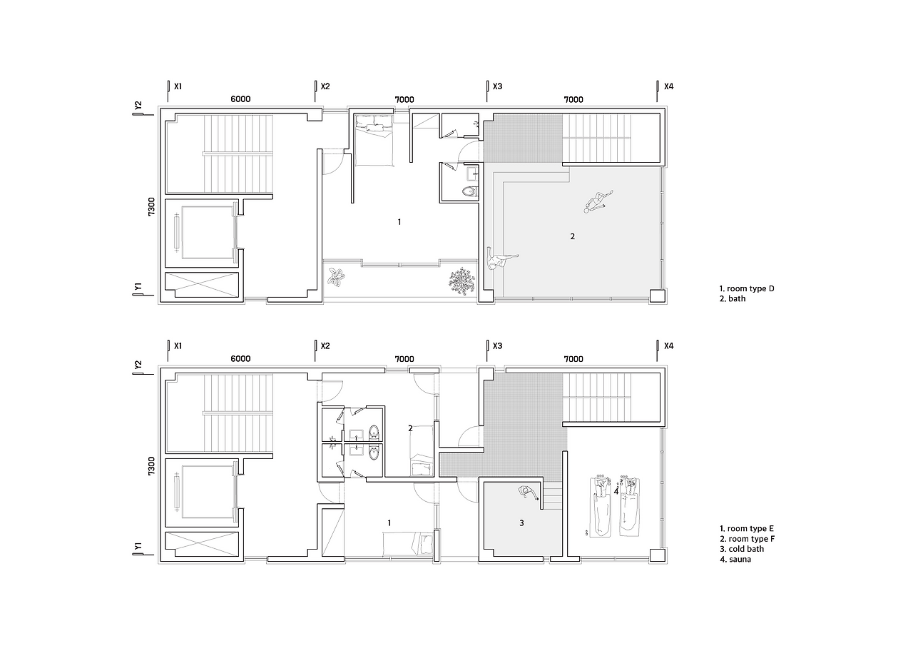
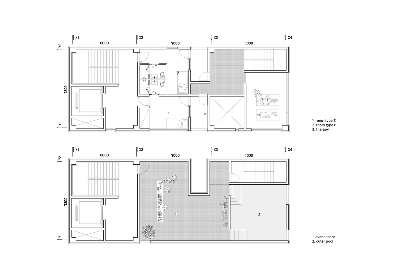
4~7층의 평면
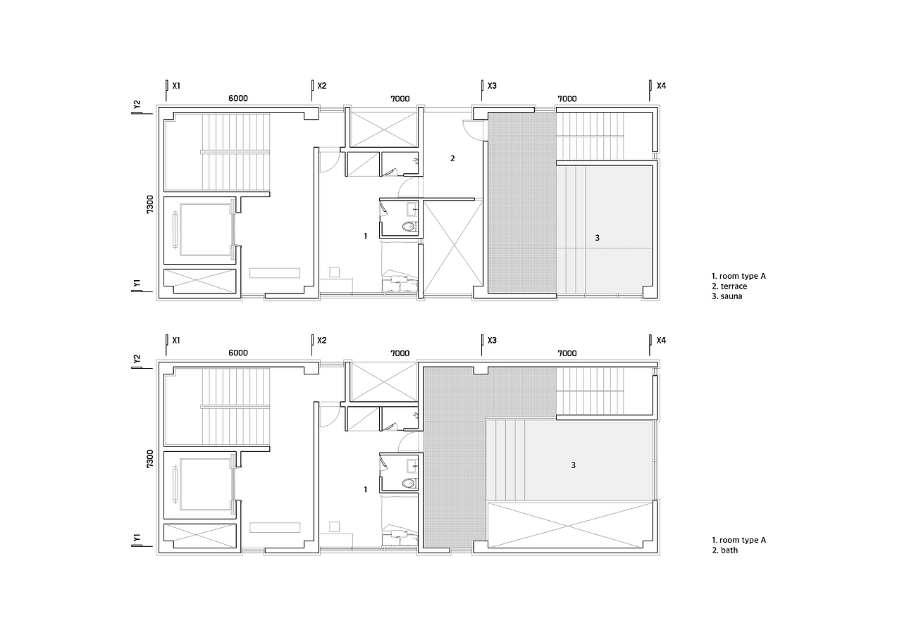
8~옥상층 평면


참고로 발표영상은 이곳에서 볼 수 있다.

https://www.youtube.com/watch?v=RUciOblqDfw&ab_channel=%EC%A0%95%EB%A6%BC%EA%B1%B4%EC%B6%95%EB%AC%B8%ED%99%94%EC%9E%AC%EB%8B%A8






keyword
작가의 이전글Steilneset Memorial