집을 짓다

도면 그리기

by Richard Joe

토지 예산 건축방식이 모두 선택되었다. 이제 설계를 해야 할 때, 우선 상시 거주인원 한 번씩 방문하는 인원을 고려하고 토지모양 주변환경등을 확인하여 평면도를 그린다. (방, 거실, 화장실, 다용도, 부엌) 생활에 꼭 필요한 공간을 결정하고 토지의 모양과 햇볕의 방향 주변의 풍경들을 고려하여 집이 지어질 곳을 선정한다. 평면도를 한번 그려보자. 그렇게 어려운 일은 아니다. 필자를 따라 한번 해보자! 처음에 현관을 정한다. 집으로 들어오는 동선을 고려하여 선택한다. 다음에 거실을 선택한다. 그럼 자연스럽게 부엌이 만들어진다. 여기서부터 각자의 생활을 생각하여 방과 화장실을 덧붙이면 일차는 완성이 된다. 한 사람이 생각하지 말고 전가족이 생각하고 회의하면서 만들어간다. 보통의 경우 전문가와 미팅하여 도면을 확정하는 경우가 있는데, 필자는 가족회의를 추천한다. 아무리 가족이라고 해도 가족 개인의 성향을 전부 다 아는 것이 아니다. 개인의 성향과 가지고 싶은 것들을 같이 회의하고 전가족이 만족할 공간을 만들자.

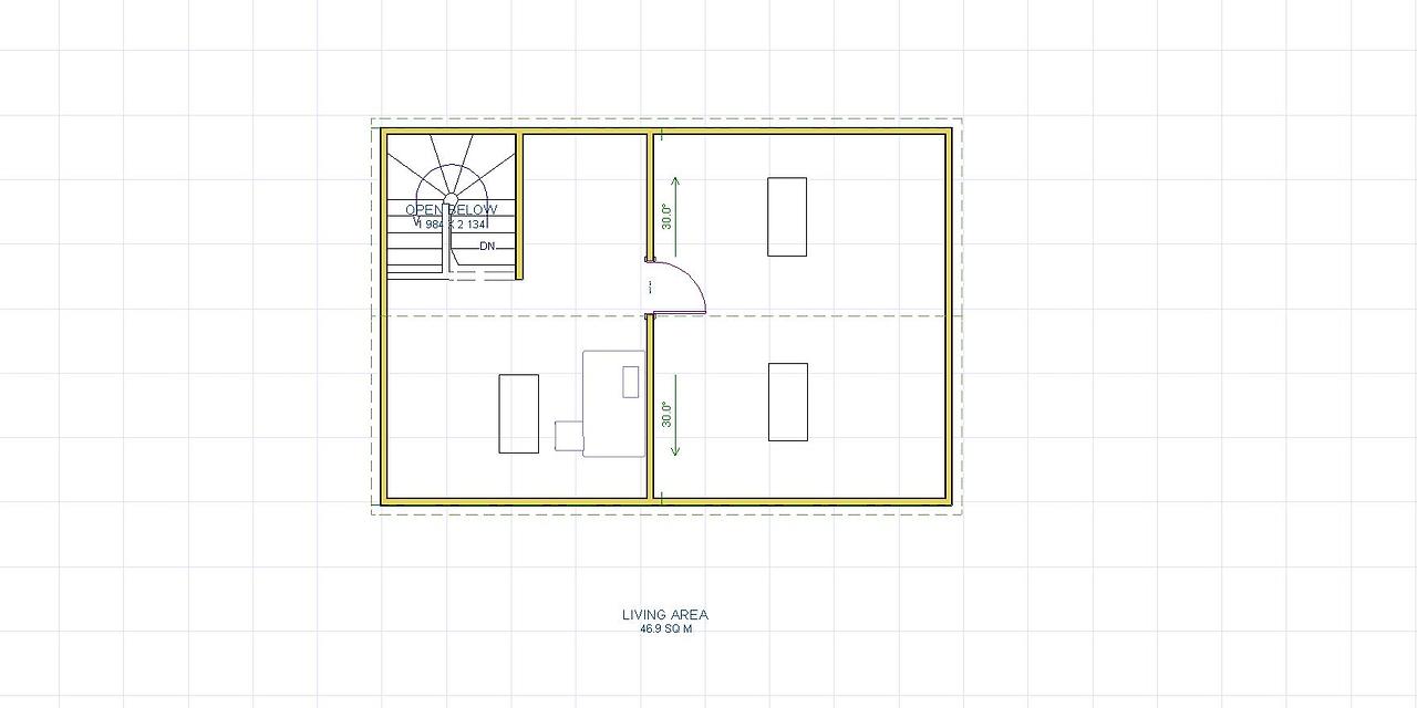
1층평면도.jpg 1층 평면도
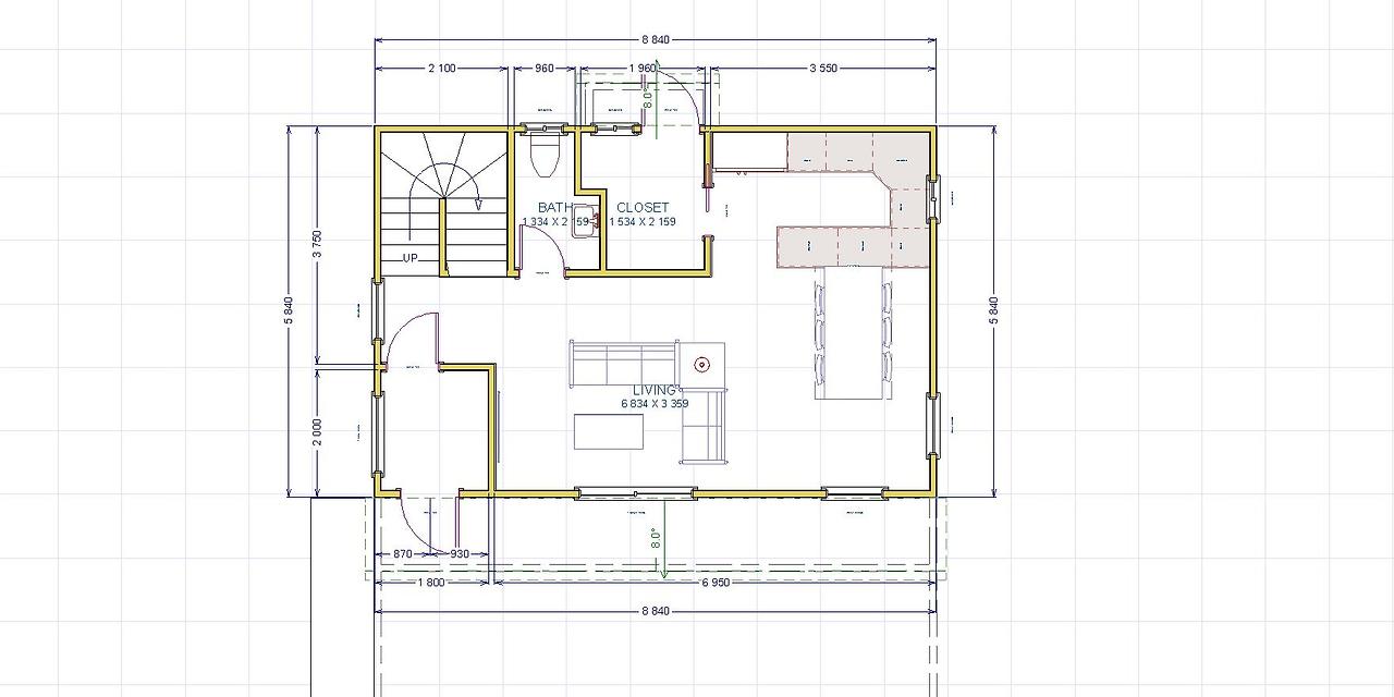
2층평면도.jpg 2층평면도

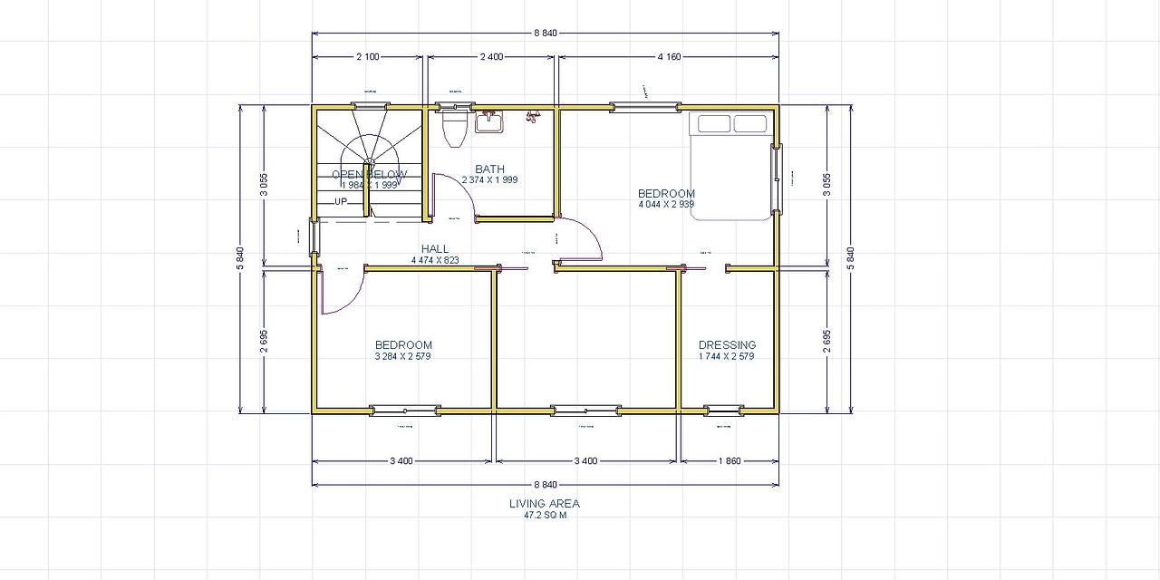
필자가 그린 1.2. 층과 다락이 전부로 그린 평면도이다.

다락평면도.jpg 다락평면




가족과 회의가 끝나고 평면도가 완성되면, 두 번째로 가족회의에서 선택할 것이 하나 더 있다. 집의 스타일이다. 모던, 세미모던, 클래식, 프로방스. 등 여러 방식의 스타일이 존재한다. 잡지나 인터넷으로 원하는 스타일을 정해야 한다. 건축 박람회를 찾아보는 것 또한 좋은 일이다. 하나 더 중요한 일은 지어진지 2~3년 정도 지난 집을 한번 둘러보기를 권한다. 새로 지어진 집은 정리가 잘되어 있고, 아직 생활하기 전이어서 전부를 아는 것은 무리가 있다. 10년 치 공부를 한 번에 할 생각은 하지 않는 것이 좋다. 너무 오랜 시간 걸리면 문제지만 서로의 의견을 교환하고 합의점을 찾는 것은 정말 소중한 것이다. 나만의 공간이면 자신이 알아서 하면 되지만 이것은 우리 가족이 머무를 곳이기에 서로 양보하여 멋진 주택을 짓기를 바란다. 여기까지 가족회의로 결정되면 다음은 일사천리로 진행된다. 고민하고 싸우고 우기고 합의하여 결정되는 과정 또한 행복한 여정이다. 이제 창작의 영역을 벗어나 선택하고 실행에 옮겨 만들어야 하는 시간이다.

IMG_20120924_110854.jpg 클래식


_MG_0892.JPG 지중해풍(프로방스)
IMG_0279.JPG 모던
이전 11화집을 짓다