숲은 깊고 땅은 높은 곳에 주택 의뢰가 들어왔다.
서종면 문호리 수대울이라 불리는 곳이었는데, 일단의 주택단지로 조성된 2개의 필지였다.
건축주는 중견 기업을 이끄는 부부였고 집은 부부와 직원들의 휴식처로 사용될 예정이었다. 부부에게는 주말주택, 직원들에게는 잠시 머물다가는 스테이의 기능을 담당할 것이었다.
건축주는 두 가족이 동시에 사용할 수 있는 주택을 원했다. 그러면서 두 가족이 서로에게 방해가 되거나 방해 받지 않는 환경을 요구했다. 직원 가족을 위한 배려이자 부부 만의 오롯한 휴식을 위한 당연한 바람이었다.
이 간명한 요구를 이 땅에 적용하는 것은 쉽지 않았다. 계획적인 어려움 보다 이 땅에 적용되는 법적인 사항 때문이었다. 땅은 수변구역에 위치해 있다. 하수처리구역이 아닌 수변구역에서는 단독주택 외 거의 모든 용도의 시설이 제한된다. 다가구주택의 형식으로 각각의 필지에 두 채의 집을 계획하면, 요구하는 조건을 비교적 쉽게 만족시킬 수 있었겠지만 아쉽게도 다가구주택 마저도 허용되지 않았다.
결국 단독주택의 형태로 독립적인 두 가족의 장소를 계획해야 했다. 이에 우리는 3m 단차를 가지며 둘로 나뉜 땅에 동일한 형태의 두 집을 각각 위치시키고 2개 층으로 구성된 현관과 응접실로 두 집을 묶어내었다.
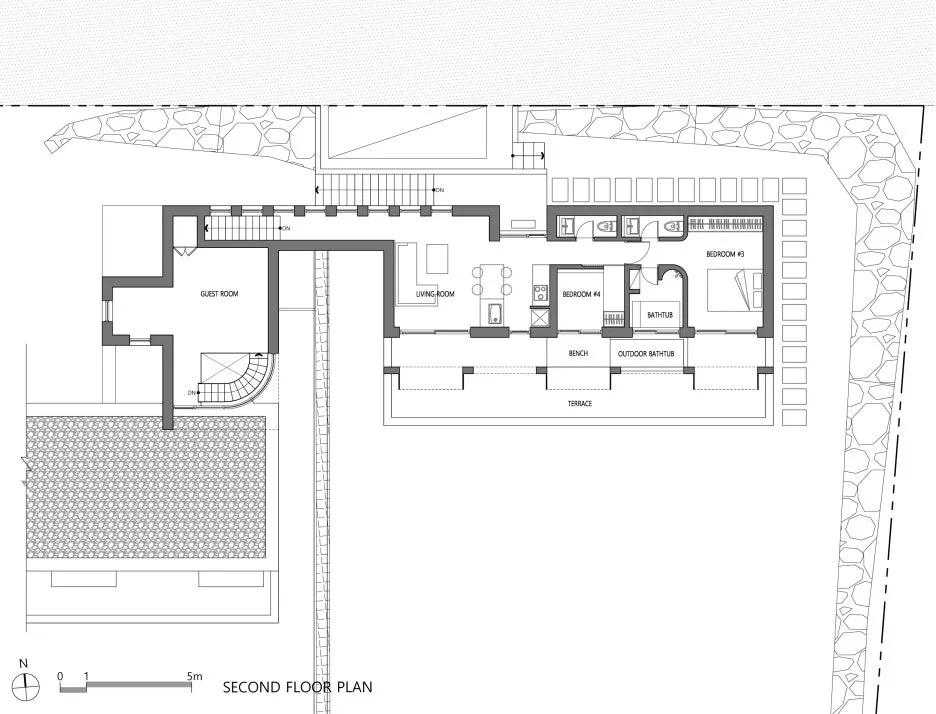
이 집의 가장 큰 특징은 연속된 아치로 형성된 회랑이다.
회랑의 사전적 정의는 ‘건물의 중요 부분을 둘러싸고 있는 지붕이 달린 복도‘이다.
하지만 이 집에서 회랑은 복도로서 기능하기 보다는 ’잠시 머물다 가는 곳’의 의미를 가진다. 한낮에는 남향의 햇빛이 아치 안에 머물다 가는데 집 안으로 간접광의 편안한 빛을 들이게 된다. 방과 이어진 회랑의 툇마루는 방의 나른한 머무름을 집 밖으로 옮겨오는 장소다. 그 옆에는 작은 욕조가 이어지는데, 툇마루가 변용된 머무름의 다른 모습이다. 가장 의미 있는 머묾은 회랑의 직각 방향으로 열린 아치의 프레임을 통해서 일어난다.
원경의 산과 하늘, 근경의 정원 풍경이 아치 안으로 들어와 시선을 잡아둔다. 아치 안에서 사계절이 머물다, 갈 것이었다.
머묾은 집에서만 그치지 않는다. 아래 단의 정원과 윗 단의 정원에는 특별한 머묾의 장소가 있다. 위에는 집에서 다른 집을 마실 온 듯 다른 공간의 분위기를 가진 ‘티하우스’가 설치되며, 아래에는 불을 피우고 즐길 수 있는 화로가 설치된다.
둘 다 혼자 보다는 함께 머묾을 즐기고 추억하기 위한 장소다.
음식을 만들고 집의 체온을 유지하는 불은 집의 심장 같은 것이다. 집의 심장 소리가 가장 강하게 들리는 곳에서 벌어질 사건과 기억은 짧게 머물다 가는 누구에게라도 집의 인상을 강하게 남길 것이었다.
머묾은 곧 떠나갈 것을 예고한다.
다시 돌아와 머물기 위한 까닭이 이 집에는 꼭 필요하다.
그 건 아마도 이 집에서 보낸 행복한 기억이 아닐까 싶다.
대지위치 : 경기도 양평군 서종면 문호리 1041-133
대지면적 : 1,234 M2
지역지구 : 보전관리지역
용 도 : 단독주택
건축면적 : 227.25 M2
건 폐 율 : 18.42 %
연 면 적 : 215.92 M2
용 적 률 : 17.50 %
규 모 : 지상 2층
구 조 : 철근콘크리트
외부마감 : 스터코
창 호 : 3중유리 알루미늄 시스템 창호
바 닥 : 타일
설 계 : 투닷건축사사무소 주식회사
시 공 : 춘 건축
조 경 : 가든 더 베란다
사 진 : 최진보