사각형 속 부드러운 'ㅁ'

대동리에 빈틈없이 짜인 미음字 목조 집

by 황금노트

환갑을 바라보는 여사장님은 험난했던 세월의 흔적들을 지우고 남은 여생을 한가로운 시골에서 보내고 싶어 하셨습니다. 부동산을 알아보던 중 때마침 나지막한 산 중턱에 자리 잡은 토지를 발견하고 매입하게 되었습니다. 임진강과 인접해있고, 관광지로 성장 한 프로방스와도 가깝습니다. 전체적인 형국을 보면 동남 방위가 열려있으며, 서쪽이 높고 동쪽이 낮아 서고동저[西高東低]의 형태를 갖추고 있습니다.


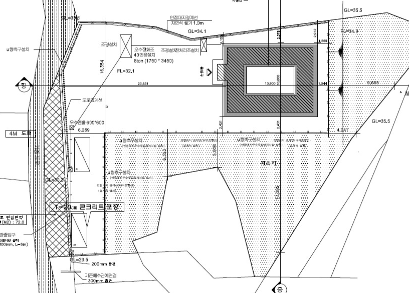
건축물의 배치는 주변의 인접한 낮은 임야를 절토해서 동쪽은 약간 열고 주변을 둘러싸도록 '미음자' 형 건물을 앉히기로 결정했습니다. '미음자' 집의 경우 장단점 있습니다. 내부의 마당을 중정으로 쓰면서 활용도를 높일 수 있다는 것은 장점 중 큰 장점입니다. '미음자' 집에 생기는 중정[中庭] 공간은 외부와 내부를 자연스럽게 연결해 주기도 합니다. 또한 진입도로에서 내부 공간을 쉽게 들여다볼 수 없어 '개방감과 폐쇄감'이 적절한 조화를 이룰 수 있습니다.


단점이라고 하면 '일자형'에 비해 건물 배치 면적이 넓어지므로 토지 매입 부담이 있을 수 있고, 공사비에 대한 증가도 고려해야 합니다. 도시지역에서는 선뜻 시도해보기 어려운 배치 형식입니다. 중정에 면한 각실들은 일조를 받기가 쉽지 않을 수도 있는데 단점을 보완하려면 층고 높이를 최대한 낮춰서 단면을 고려해야 합니다.




향을 고려한 건물 배치도 / 건축주와 협의된 평면 스케치 안



낮은 임야라고는 하지만 진입도로에서 높이 3M 이상 고저차를 극복해야 하는 문제가 발생했습니다. '미음자' 배치를 하기 위해서 풀어야 할 문제가 몇 가지 있었습니다. 가운데 중정을 둘로 나누면 높이 단차를 극복할 수는 있었지만 실내에서 단을 주어야 불편함이 생겼습니다. 낮은 곳은 높이고 높은 곳은 낮추는 스킵플로어 형식은 건축계획에서 자주 이용하는 방식입니다. 균형을 중요하게 생각하는 이유이기도 합니다. 진입로를 따라 계단을 밟고 올라가면 큰 대문이 설치가 되는데 권위 있는 높은 지붕보다 중정에서 시원하게 하늘을 볼 수 있는 낮은 지붕으로 계획되어야 했습니다.


'미음자' 형태의 목조 건물 : design by 건축사사무소회인



건물 주변에 산재해 있는 바람, 풀 그리고 하늘까지도 모두 포함하여 '미음자' 중정 안에 담아내어 자연을 품고 있음을 느낍니다. 지금의 주거 기술과 가스보일러가 아무리 발전했다고 해도 목조주택에 담긴 구들방 기능을 이길 수는 없습니다. 단지 옛것이라고 치부하지 않고 그 가치를 다시금 찾아내 보고 현실적으로 접목시켜가면서 건축 공간의 대한 미학을 찾아내고 모색해 봐야 했습니다.


손님을 넉넉한 마음으로 반길수 있는 중정 마당 한구석에 가끔 피는 민들레 풀 한 포기조차도 '미음자' 집에 보살핌을 받을 수 있도록 생활과 밀접한 연출을 하고 싶었습니다. 시대마다 요구하는 시대적 가치가 있듯이 그것이 적합하고 필요하다면 골동품처럼 소중히 수집하고 보관할 것이 아니라 가치를 재발견하고 써서 계속 발전시켜 나가야 한다고 생각합니다.



스케치업 작업 과정 : design by 건축사사무소회인


어찌 되었든 건축주가 요구하는 플랜과 기능이 있었고 조건과 관계없는 '미음자' 형태의 배치를 하고 보니 여러 가지 풀어야 할 문제점과 보완해야 할 동선이 생겼습니다. 설계를 옮기는 세부적인 실시설계 단계에서 정리를 하여 검토할 사항이었습니다. 프로젝트를 진행하다 보면 목조주택 설계가 가장 어려움이 많습니다. 새로운 기능성과 변수를 지니고 있고 자연과의 관계까지 고려해서 실제적인 공간을 연출해야 하는 아주 까다로운 설계입니다. 주변 경관요소와 잘 어울리고 사치스럽지 않으면서 궁색해 보이지 않는 디자인을 요구합니다. 빛을 조절하는 깊은 처마와 추위와 더위에 잘 대응하는 자연 흙덩이 벽체는 일상적으로 살고 있는 아파트에서는 흉내 낼 수가 없는 깊은 기능을 가지고 있습니다.




대동리 목조주택 설계 시공 / design by 건축사사무소회인






동그라미 ●
네모 ■
세모 ▲


건축물이 조화롭고 세련된 스타일까지 갖추어야 한다는 생각은 분명해 보입니다. 설계를 하다 보면 친숙하고 자주 쓰는 디자인 패턴을 사용하게 됩니다. 설계를 하는 입장에서 스타일이라는 게 자연스럽게 몸에 익숙해서 나오는 건지 아니면 어떤 체계적인 근거가 있는 것인지는 대학원에 다닐 때도 배우지 못했던 '본질'이었습니다. 건축의 스타일을 찾아 개념의 한계를 파악하는 것은 단순히 피상적인 스케치만으로는 한계가 있음을 많이 느낍니다. 누구나 자신이 제일 잘하는 일을 하고, 그 일에 재능이 발현될 때 전문가 다운 풍채가 느껴집니다.


건축은 다른 예술 분야와 비슷한 특성을 지닙니다. 시대의 흐름에 따라 유행하는 스타일이 있습니다. 표준에서 벗어나 아치 곡선을 자유자재로 구사한 건축물도 있습니다. 미래형 건축기술과 융합하여 발전적인 건축물이 탄생하기도 합니다. 결국은 동그라미 , 네모, 세모가 건물 형태를 만듭니다. 그 안에서 건축사의 경험을 더해 디자인의 변형을 일으켜서 다양한 건축물로 탄생된다고 생각하면 이해하기 쉬울 것입니다.



운정신도시 근생 5 신축건물 (동그라미 세모 네모) : design by 건축사 사무 소회인



건축에서 스타일을 가지고 미의 기준으로 삼을 수 없는 이유는 구성하는 방식에 따라 각자의 미학이나 철학이 있기 때문입니다. 변모하는 세상에서 다양한 디자인 패턴이 생겨나는데 그것이 나와 맞지 않는다고 해서 배척하고 연구하지 않는다면 발전이 없다고 생각합니다. 미술과 마찬가지로 끊임없이 창조적 연구과정을 거치고 다양한 디자인 패턴을 익혀서 나만의 색을 만들어내면 그것이 곧 나의 스타일이 되는 것입니다.




넷플릭스 [오징어게임] 진행요원 도형 서열 관계
20211020_073743.png 영화 [오징어게임] 도형 명함







keyword
매거진의 이전글시간의 흔적이 된 건축