brunch
매거진 BLANK DESIGN

동네, 정미소 서교

밥을 짓고, 사람을 잇는 우리 동네 문화공간 ‘동네, 정미소 2호점’

by BLANK
1.JPG ‘동네, 정미소 서교’ 전면


끝날 것 같지 않았던 이 여름의 끝. 드디어 가을입니다. 9월의 시작, 작년 겨울 문을 연 ‘동네, 정미소 성산’에 이어 ‘동네, 정미소 서교’가 활짝 문을 열었습니다.


위치 서울특별시 마포구 동교로15길 32 어쩌다가게 서교




공간 기획 방향

‘동네, 정미소 서교’는 ‘동네, 정미소 성산’에 이은 ‘동네, 정미소 2호점’입니다. 2017년 블랭크는 ‘밥을 짓고, 사람을 잇는 문화공간’이란 개념 아래 쌀과 관련한 다양한 ‘경험’을 할 수 있는 공간으로 ‘동네, 정미소 성산’을 계획하였습니다.


‘동네, 정미소 성산’ 더 궁금하시다면?

https://brunch.co.kr/@blankin/12


‘동네, 정미소 성산’에서는 갓 도정한 쌀로 만든 밥을 먹을 수 있습니다. 또한 한 달 분량(1~2kg 단위) 정도로 소분한 쌀을 판매하고 있으며 쌀 관련 디자인 상품 또한 전시, 판매하고 있습니다. 단순히 쌀만 판매하는 곳이 아니라 그야말로 ‘새로운 라이프스타일을 만날 수 있는 장소’인 것입니다.


1.jpg ‘동네, 정미소 서교’ 공간 개념 PT 일부


‘동네, 정미소 서교’ 또한 ‘동네, 정미소 성산’과 공간 기능상 크게 다르지 않습니다. 그러나 망원역 1차 역세권에 포함되는 ‘동네, 정미소 서교’의 위치적인 이점과 ‘따로 또 같이’란 슬로건 아래 공유를 실천하는 복합문화공간 ‘어쩌다가게 서교’ 내 입점이라는 조건으로 보아, 공간 및 콘텐츠로 유입되는 개인/단체가 ‘동네, 정미소 성산’보다는 많을 것으로 예상하였습니다.


외부 유입된 개인 및 단체뿐만 아니라 서교동 지역 주민들에게 쌀을 소비하는 경험을 더욱 적극적으로 보여주는 공간으로 만들고자 하였습니다.




공간 구성

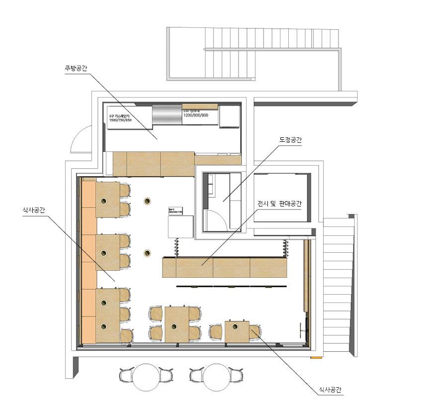
‘동네, 정미소 서교’는 식사공간, 전시 및 판매공간, 주방공간, 도정공간으로 구성하였습니다.


‘동네, 정미소 서교’ 계획안 3D 이미지


‘동네, 정미소 서교’ 공간 전체는 주로 목재와 간접조명을 사용하여 따뜻하게 연출하고자 하였습니다.


IMG_3150.JPG ‘동네, 정미소 서교’ 모듈 디자인


쌀을 소비하는 경험을 더욱 적극적으로 보여주기 위해 목재를 사용한 모듈을 디자인하였으며 모듈 중앙부를 통하여 다양한 장면을 연출하고자 하였습니다. 중앙부 프레임이 뚫린 부분으로, 셰프가 정성스럽게 음식을 만드는 모습을 보거나 매니저의 친절한 응대를 느끼길 바랐습니다. 중앙부 프레임이 막힌 부분에서는 소분된 쌀 패키지, 쌀 관련 디자인 상품 등을 전시 및 판매할 수 있도록 다양한 크기 및 형태의 선반을 계획하였습니다.


공간 주재료 목재는 자작 합판을 사용하였습니다. 자작 합판 고유 색을 자연스레 살려 밝은 공간이 되도록 하였습니다. 각 테이블 상판은 엘더 집성목을 사용하여 제작하였습니다.


8.JPG 자작합판 고유 색을 자연스레 살린 내부
4.JPG 입구로 들어오면 보이는 식사공간


조명은 의도적으로 간접조명을 많이 사용하였습니다. 모듈 상·중·하부에 각각 간접조명을 설치하였습니다. 모듈 상부는 투명 폴리카보네이트를 부착, 간접 조명이 공간 전체를 은은하게 비추어 따뜻한 분위기가 되도록 하였습니다. ‘집 밥’을 먹는 듯한 포근함이 들만큼 말이지요. 각 테이블 위마다 쌀알 모양의 펜던트가 떨어지도록 연출하여 ‘동네, 정미소 서교’만의 분위기를 만들었습니다.


3.JPG 모듈 내 간접조명
178768BF-F584-4920-A075-E0DAE954607F.jpg ‘동네, 정미소 서교’ 따뜻한 분위기를 자아내는 펜던트 조명


서울에 폭염특보가 발령된 7월 말부터 진행된 시공현장은 아주 더웠습니다. 현장에 계신 모든 분의 피부가 스멀스멀 나오는 땀이 햇빛에 반사되어 반짝이는 정도였으니까요. 찌는 더위에도 저희는 시공을 맡아주신 '디자인 하울'과 함께 머리를 맞대고 디자인 디테일을 제작 가능한 방식으로 풀어내기 위하여 고민해가면서 공간을 만들어 나갔습니다.


1.JPG 이전 모습
2.JPG 현재 도정공간이 된 이전 화장실
KakaoTalk_20180906_134231669.jpg 목공사
1.JPG 주방공사
2.jpg 타일공사


2017년 ‘동네, 정미소 성산’을 기획하며 브랜딩 또한 진행하였습니다. 당시 ‘동네, 정미소 성산’ 브랜딩 결과물을 이용, ‘동네, 정미소 서교’ 공간에도 다양하게 적용하였습니다. 가장 먼저 눈에 띄는 외부 간판과 유리창의 큰 ‘쌀 미’자 로고는 저 멀리에서도 이곳이 쌀과 관련된 공간이라는 것을 지나가는 모두에게 전달할 것입니다. 매장 내부에는 일러스트 액자 5개가 걸려있습니다. 이 다섯 개의 일러스트에는 ‘쌀’이 자라 동네정미소의 ‘밥’이 되기까지의 과정을 담았습니다. 좌석 맞은편에는 타일에 로고를 인쇄해서 부착했습니다. 차분하고 정갈한 전체 분위기에 어느 정도는 경쾌함과 귀여움을 주고 싶었달까요. 이렇게 내·외부 사인물을 구현, 전체 디자인의 완결성을 높일 수 있었습니다.


동네정미소서교점 샷_1.jpg ‘동네, 정미소 서교’ 계획안 3D 이미지 - 전면부 로고 표현 및 외부 간판
8.jpg ‘동네, 정미소 서교’ 계획안 3D 이미지 - 로고 타일 인쇄
7.JPG 전면부 로고 표현 및 외부 간판
8.JPG ‘쌀’이 자라 동네정미소의 ‘밥’이 되기까지
9.JPG 로고 타일 인쇄




농부의 노력, 맛있는 밥, 온전한 전달, 밥과 삶을 짓는 동네

‘동네, 정미소 성산’ 매장 명함에 쓰여 있는 글귀입니다. ‘동네, 정미소 서교’를 찾는 분들께도 정성스러운 한 끼가 온전히 전달되어 행복하고 소중한 추억이 되길 바랍니다. 나아가 ‘동네, 정미소 서교’를 통하여 ‘쌀’ 자체에 관심을 갖고, ‘쌀’을 매개로 한 맛있는 일상을 만들어 가시길 기대합니다.


10.JPG ‘집 밥’ 이 생각나는 따뜻한 분위기
11.JPG ‘동네, 정미소 서교’ 많이 찾아주세요!



프로젝트명 동네, 정미소 서교 디자인 및 디자인감리 용역

발주처 동네정미소

위치 서울특별시 마포구 동교로15길 32 어쩌다가게 서교

프로그램 일반음식점

규모 지하 1층, 지상 5층

계획면적 지상 1층 56.86㎡

준공연도 2018


작업자 BLANK

설계 손희경 디자이너, 강현구 디자이너

시공 주식회사 디자인하울

손희경 디자이너, 강현구 디자이너

keyword
매거진의 이전글서울하우징랩