25세 청년, 내 집 만들기 [12장]

닭장은 싫다! 열혈 청년의 협소 주택 건축 도전!

by 장도리


25세 청년이 집을 손수 지은 경험담을 토대로 작성하였습니다.

본 글을 통하여, 불확실성의 연속에 살아가는 청년들이 집에 대한 걱정을 조금이나마 덜고,

닭장 같은 아파트가 아닌, 삶이 살아 숨 쉬는 의미 있는 주거 환경에서 살았으면 하는 바람입니다.



제 12장 - 협소주택 건축설계!


이번장의 시작은 나짐 히크메트의 진정한 여행이라는 시로 시작한다.


진정한 여행(A True Travel)


나짐 히크메트(Nazim Hikmet)


가장 훌륭한 시는 아직 씌여지지 않았다.

가장 아름다운 노래는 아직 불려지지 않았다.

최고의 날들은 아직 살지 않은 날들

가장 넓은 바다는 아직 항해되지 않았고

가장 먼 여행은 아직 끝나지 않았다.

불멸의 춤은 아직 추어지지 않았으며

가장 빛나는 별은 아직 발견되지 않은 별

무엇을 해야 할 지 더 이상 알 수 없을 때

그 때 비로소 진정한 무엇인가를 할 수 있다.

어느 길로 가야할 지 더 이상 알 수 없을 때

그 때가 진정한 여행의 시작이다.


– 시집 ‘사랑하라 한번도 상처받지 않은 것처럼’에서


A True Travel

Nazim Hikmet

The most magnificent poem hasn’t been written yet

The most beautiful song hasn’t been sung yet

The most glorious day hasn’t been lived yet

The most immense sea hasn’t been pioneered yet

The most prolonged travel hasn’t been done yet

The immortal dance hasn’t been performed yet

The most shine star hasn’t been discovered yet

When we don’t know any more what we are supposed to do

It’s the time when we can do true something

When we don’t know any more where we are supposed to go

It’s the start when the true travel has just begun.



nazimhikmet.jpg Nazim Hikmet(1902~1963)





사실, 25세 꼬맹이가 무엇을 알았을까? (만 24세)

처음 땅에는 '땅'이란 녀석을 이해하지도, 이해할 수도 없었다.


100평의 땅을 구매하면 100평짜리 내 집을 지을 수 있을 것이라고 믿었다.

정말 순진했던 것 같다.


건축 기본 용어 중에 '건폐율'과 '용적률'도 몰랐다.

건폐율은 땅 1층에 몇 평의 건축물을 앉힐 수 있는가?라고 생각하면 쉽다.

용적률은 몇 층까지? 지을 수 있는가?라고 생각하면 쉽다.



그 당시 나의 지인이 부동산 사기를 당했고, 그녀의 인생이 한방에 무너지는 것을 직접 목격했다.

산전수전 겪은 중년들도 저렇게 당하다니.. 건축에 대한 두려움이 증폭되어 있던 상태였다.


무식하지만 용감했던 나는 혁명시인 나짐 히크메트의 '진정한 여행'이라는 시를

여물을 씹는 소처럼 되새김질했다. 진정한 여행이라는 시는 나 자신에게 희망의 바람을 불어 넣었다.


zzzohmy_128386_32[196663].jpg 냠냠



지인 김여사는 은퇴 후의 삶을 위해 용인 수지에 땅을 샀다.


용인 수지는 코코몽 파크가 있는 명당이다.

265FD434570CB0F9026BF8 코코몽 파크!


언덕 곳곳에 나무들 사이에 멋진 주택들이 면사포를 쓴 신부처럼 숨어있다.

서울에서도 가깝고, 인근에 백화점도 위치해 있기 때문에 돈 많은 사람들이 투자를 즐겨한다.


김여사는 400평짜리 낮은 언덕을 4명에서 공동으로 구매했다.


그들은 사이좋게 100평씩 땅을 쪼개 필지분할을 했다.


공동 구입자 중에 한 명은 주택단지 개발업자였다.

그리고 중간에 도로를 만든다는 명목 하에 10평씩을 개발업자에게 판매했다.


도로를 넘겨준 순간과 동시에 비극의 시작되었다.


일명 기획 부동산에 당한 것이다.

20091113150020880.jpeg 기획부동산 조심!


그녀는 결국 집을 짓지 못했다.


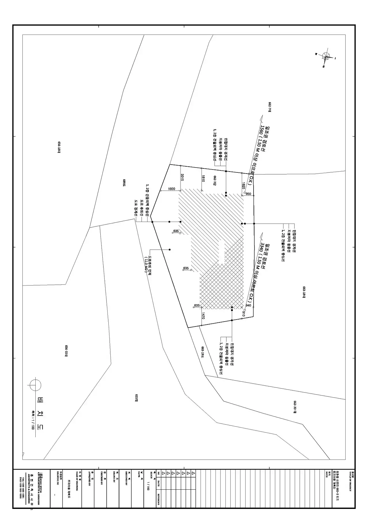
이전에 언급하였듯, 건축에서 가장 중요한 것은 '도로'이다.



?fname=http%3A%2F%2Ft1.daumcdn.net%2Fqna%2Fimage%2F05b32830bacc163d5d94cd02e1b54374566ff87a 슬램덩트의 명언! 캬!


리바운드를 지배하는 자가 시합을 지배한다.

도로를 지배하는 자가 건축을 지배한다.


인접대지에 4m 도로가 없다면, 건축허가 자체가 승인이 안 된다!


이 사실을 아는 개발업자가 고의적으로 도로를 구매했다.

공동구매자들은 아차! 싶어 다시 땅을 돌려달라고 했다.

개발업자는 10배가 넘는 가격을 불렀고, 법적 분쟁까지 갔으나

그를 이길 수 없었다.


닭똥 같은 눈물을 흘려봤자 소용없었다.


땅을 사기 전 필수적으로 '토지이용규제정보서비스' 사이트에 가서 확인해보자.


사이트에 접속해서 우리 집 토지 주소를 적어보았다.


아래 링크를 눌러보면 알 수 있다.

http://luris.molit.go.kr/web/actreg/arservice/ArLandUsePrintFrame.jsp?selSido=28&selSgg=710&selUmd=0250&selRi=21&landGbn=1&bobn=656&bubn=5&pnu=2871025021106560005&scale=&isNoScr=script&chk=0&mode=search&selGbn=umd

1123.JPG



관계법들이 쭉! 나온다. 강화도에는 역사적 유적지가 참 많다.

땅을 파면, 전쟁 유골 및 문화재가 자주 나온다. 문화재청에 신고해야만 한다.

그럼 모든 건축공사는 중지가 된다.


강화에서 도로건설을 하면서 6.25 전사자 유골들이 나와 유골을 수습을 하며 더디게 진행되었다.

결국, 2년짜리 공사가 5년이 걸렸다.


땅을 구매하고 보니 군사경계지역이라면? 건축에 제한이 걸린다.

이렇게 건축에는 변수들이 무궁무진하다.


돌다리도 두들겨 보고 건너는 습관을 들이자!


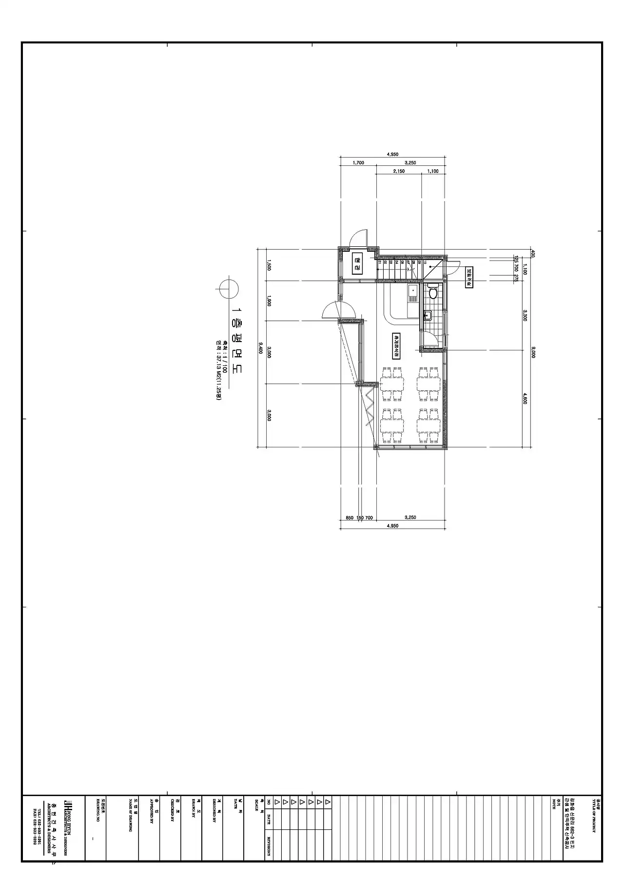
나는 건축사와 계약서를 작성하고, 설계를 본격적으로 들어갔다.

설계 및 허가는 건축사가 알아서 해주니 건축주는 건축사에게 요구를 정확하게 하면 된다.


건축사와의 미팅을 위해 책, 신문, 인터넷 등을 뒤져가며

까마귀 금붙이 모으듯 수백 가지의 자료를 긁어모아 비교하며 공부했다.


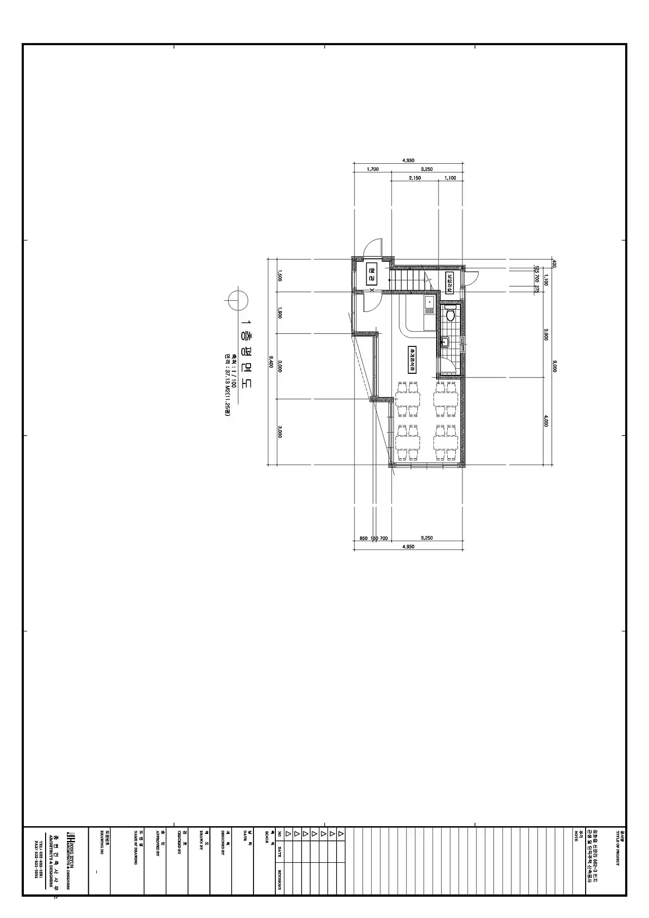
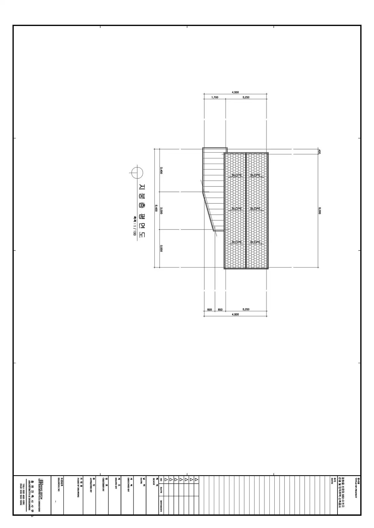
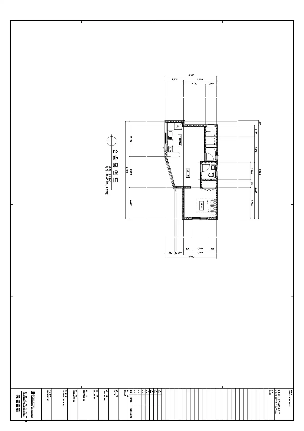
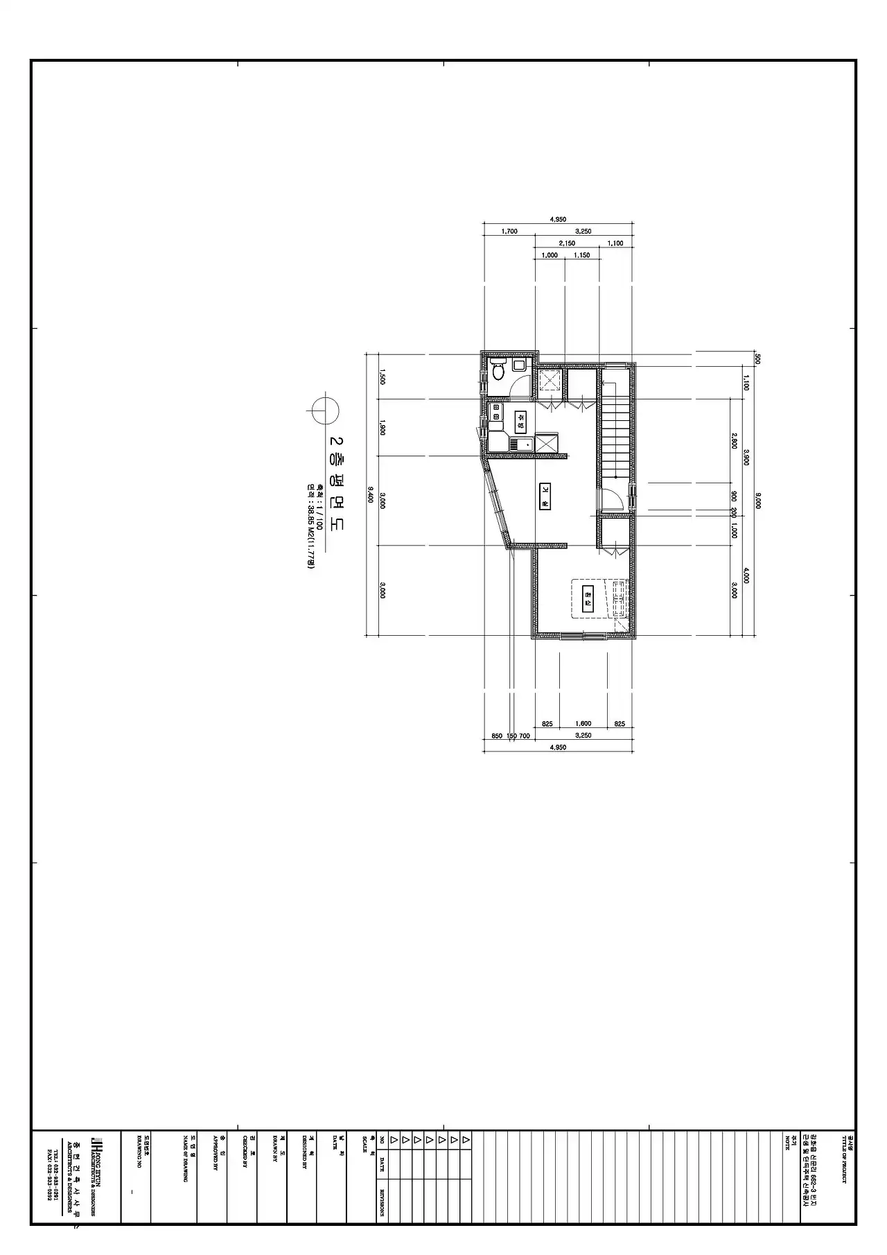
결국 나는 '서비스 면적'이라는 꿀팁을 얻는 것에 도달했고, 즉시 건축에 반영했다.

21평에 대지에 실제 면적 30평이 넘는 집을 지을 수 있었다.


다락방, 발코니 등은 서비스 면적으로 연면적에 산입 되지 않는다.

즉, 집의 실제 면적을 더 넓게 사용할 수 있다는 이야기!


나는 더욱 디테일한 설계를 하기 위해서 구글사의 스케치업 프로그램을 배웠다.

건축학도 들이면 누구나 사용하는 프로그램이지 않을까?


무역학과를 졸업한 건축 문외한이지만,

'부지런한 소' 님의 강의를 들으며 따라 하니 2주 만에 프로그램을 사용할 수 있었다.


https://www.youtube.com/watch?v=QhAEHo0ywZg&list=PLFfezChOCgC_-HRoWf7q9OwYYf5Masyo1


그리고 건축사에게 스케치업으로 도면을 그려달라고 요청하여

싱크대나 책장 같은 비품도 배치해보며 디테일을 잡아갔다.


1411362483861.jpeg
1411362477921.jpeg
1411362482885.jpeg
1411362487030.jpeg
1411362479656.jpeg
1411362481897.jpeg
1411362488019.jpeg
1411375384199.jpeg
1411375398262.jpeg
1411362480840.jpeg
1411362484723.jpeg
1411362488960.jpeg
1411362485638.jpeg
1411375399455.jpeg
1411375387886.jpeg
1411617715581.jpeg
1411643500147.jpeg
1411545550105.jpeg
1411545548983.jpeg



13장은 첫 삽질 시작!이라는 주제로 진행됩니다.

keyword
작가의 이전글25세 청년, 내 집 만들기 [11장]