스며든다

첫 번째 봄

by 새봄


2학기가 되어서야 비로소 ‘작은 건물’이라고 불릴 만한 것을 설계하기 시작했다. 내가 직접 꾸리는 내 프로젝트인 것이다. 모든 것이 자유로웠다. 5학년 1학기의 졸업 전시는 충분한 경험을 쌓은 상태에서 진행하는 자유 주제의 프로젝트이지만, 1학년 2학기의 과제는 ‘거의 알지 못하는 상태’로 자유롭게 진행하는 프로젝트였다. 마치 다 쓴 스케치북을 오려 다시 책으로 만들라는 것과 스케치북 안 빈 종이에 그림을 그리는 것의 차이랄까? 망원동과 노들섬을 통해 본 책방이라는 공간, 즉 책을 읽을 수 있는 공간에 관심이 갔지만 정확히 무슨 용도의 건물을 설계할지, 크기는 어느 정도인지, 사용할 수 있는 디자인 요소에는 어떤 것이 있을지 궁금해졌다.


화면 캡처 2025-07-10 160355.jpg


그러던 중 우연한 기회로 먼 지인분께서 운영하시는 책방에 방문하게 된 적이 있었다. ‘이런 곳에 책방이 있을까’ 싶은 성북동 작은 주택가의 골목길을 오르다 보면 나무 대문으로 둘러싸인 책방의 외관이 나온다. 책방 문의 벨을 누르면 책방지기(즉 지인분)께서 문을 열어주셨다. 문이 열리자마자, 그 이유를 알 수 있었다. 작은 입구와 반야외 복도, 그리고 귀여운 고양이 두 마리—하로와 하동이—가 나를 맞이했다. 고양이가 놀랄까 봐 손님이 방문할 때마다 손수 문을 열어주시는 책방지기분의 세심함에 감탄할 새도 없이 부드럽게 스며드는 햇살과 함께 한옥 공간이 눈에 들어왔다. 한옥들을 개조해서 마치 동화책에 나오는 숲속의 비밀 기지와 같이 아늑했다. 내가 살고 있는 거주 공간에 한 번쯤은 배치해 두면 좋은 야외의 작은 마당으로 햇살이 너무나도 멋진 모습으로 나에게 다가왔다.


KakaoTalk_20250604_193018656_01.jpg
KakaoTalk_20250604_193018656_04.jpg


햇살을 따라 시선의 끝을 옮겼다. 부엌 겸 계산하는 공간의 작은 창문을 통해 바깥으로 옆집의 개량 한옥이 눈에 띄었다. 작업책상 앞 창문을 열면 거실과 부엌, 마당이 유기적으로 연결된 모습이 눈에 띄었다. 소중한 공간들이 한눈에 들어오는 매력 있는 아지트였다. 하로, 하동이를 구경하다가 추천해 주신 부채를 만들며 책방지기분과 이런저런 이야기를 나누었다. 알고 보니 책방지기분도 건축을 전공하셨던 분이었다. 건축학도 시절에도 사진 찍는 것과 그림 그리는 것을 좋아하셔서 지금까지 개인전을 열었고, 책이 어떻게 유통되는지도 모르고 시작한 책방이 그를 지금의 책방지기로 이끌었다. 경제적인 수익을 기대하기보다는 개인 작업과 병행하며 책방을 운영하고, 독립 서점으로 자리 잡는 동시에 이곳을 방문하는 손님들과 자연스럽고 편하게 이야기하는 것을 꿈꾸며 노력하고 있었다.


책방지기이자 작가의 일상은 단순하면서도 분주했다. 오후 1시에 오픈하는 책방을 위해 오전 10시쯤 청소를 하고, 책을 찾아보며 어떤 책을 들여놓을지 검색도 하고 동시에 작업을 하면 시간이 순식간에 지나간다. 전에 구매한 책을 보고 그것에 관련된 글을 쓰면 하루가 흘러간다. 나 또한 건축을 전공한다는 말을 들은 책방지기분께서는『가가묘묘』라는 책 한 권을 추천해 주셨다. 책 안에는 가구와 사람이 배치된 집의 설계 평면도 혹은 단면도에서 귀가 쫑긋한, 꼬리를 세우고 있는 고양이들을 발견할 수 있었다. 고양이들의 이동 반경을 표시한 부분도 고양이의 시선에서 집을 바라본 것도 흥미로웠다. 지금까지 사람만이 건축을 느낄 수 있다고 알았던 나의 고정 관념을 깨는 책이었다.


책을 구입하고, 책방 밖을 나서려는데 어느새 날이 어둑해졌다.


이곳이 누군가의 아지트가 되면 좋겠다고 한 책방지기분과 고양이들을 뒤로 하고 다시 성북동 길가를 지나 한성대역입구에 다다른 그날의 달 아래, 나는 왜인지 모르는 이끌림에 작가가 직접 여는 책방 즉 독립 서점을 설계하기로 마음먹었다.


그리고 불현듯 하나의 공간이 떠올랐다.


책을 읽는 공간, 책을 전시하는 공간, 작가가 작업하는 공간.

무엇보다도, 그날 내가 잊을 수 없었던 따뜻한 빛을 온전히 담아낼 수 있는 공간.


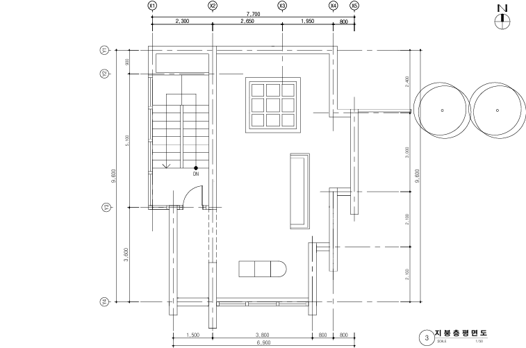
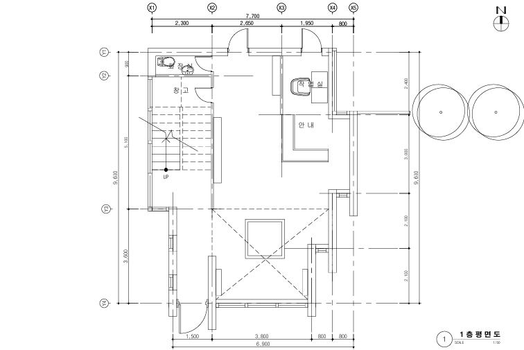
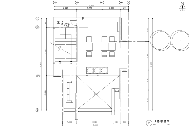
따스하게 스며들던 그 빛을 잊지 못해 빛을 공간으로써 온전히 그리고 다양하게 느꼈으면 좋겠다고 생각했다. 벽 사이로 스며들어온 빛 즉 레이어드 월(layered wall)을 컨셉으로 설계를 시작했다. 메인의 큰 축 역할을 하는 벽과 부속의 벽들을 중첩하기도 하고, 나열하기도 하며 공간을 구성했다. 건물은 크게 세 개의 층으로 이루어져 있다.


책을 전시하며 작가의 작업 공간으로 쓰이는 1층은 조금은 프라이빗한 공간이다. 본래 입구는 사람들을 이끌 수 있는 개방적인 성격을 가지지만, 나는 오히려 입구를 사적인 영역으로 설정했다. 입구에 다다르다 보면 통창을 통해 공간 안의 ‘경험’에 대한 일종의 예견을 하고, 통창과는 상당히 다른 프라이빗한 입구를 가진 책방 또한 재미있을 거 같았다.



스크린샷 2025-06-04 195219.png
스크린샷 2025-06-04 195235.png
스크린샷 2025-06-04 195251.png



책방 문을 열고 좁은 실내 복도를 지나 문을 열면, 탁 트인 복층의 공간이 나타난다. 1층에는 책을 전시하고 작가의 작업 공간으로 쓰이는 작업실을 두었다. 작업실을 1층에 둔 이유는 작가가 쉽게 오가며 손님들과 소통할 수 있게 하기 위해서다. 마당 또한 작가를 위한 ‘더 사적인 마당’과 손님들이 바깥에 나가서 책을 자유롭게 읽을 수 있는 ‘조금은 공적인 성격의 마당’ 두 개로 나뉘었고, 출입구를 분리하여 전용 외부 공간으로 나가는 동선을 확보하였다. 2층은 만남의 공간이며, 사람들이 실내에서 자신의 의견들을 공유하면서 책을 읽을 수 있다. 건물의 전면에는 통창을 두어 빛이 쉽게 유입되도록 하였고 계단에는 반투명한 유리를 사용하여 공간마다 느낄 수 있는 빛의 정도가 다르게끔 연출하였다. 옥상 또한 사람들이 드나들 수 있으며 주변의 풍경도 감상할 수 있는 곳이다. 천창을 통해 빛이 유입되기 어려운 2층 구석에도 채광을 느낄 수 있다.



스크린샷 2025-06-04 194257.png
스크린샷 2025-06-04 194314.png


이렇게 구성된 공간들은 단순히 층층이 쌓인 것이 아니라 서로 긴밀히 연결된 유기적인 관계를 맺고 있다. 빛과 공간의 조화 그리고 다양한 공간 경험의 연출을 통해 나는 이 프로젝트에서 ‘책방’이라는 공간의 새로운 가능성을 탐구하고자 했다. 저마다의 빛과 이야기가 스며든 자리에는 머무는 이들의 시간과 기억이 켜켜이 쌓여 또 다른 의미의 건축이 된다.


각자의 햇살이 모여 공간을 완성하듯이, 사람과 책 그리고 공간이 함께 지어가는 한 편의 시를 건축가로서 쓰고자 한다.


KakaoTalk_20250604_193018656_03.jpg



keyword
금요일 연재
이전 03화무결