독일에서 집 구매하기 - 1

함부르크 - 하펜시티

by Ladybrown

독일에는 '전세'라는 제도가 없다.

따라서 주택마련에 있어 '월세' 아니면 '매매'가 유일한 선택지다.

한국인으로서 아무래도 월세는 매달 땅에 버리는 기분이 들어 너무 아까운 까닭에, 결혼하면 최대한 빨리 내 집을 마련해야지! 다짐했었더랬다.


처음엔 "2년만 월세로 살다가 3년째에는 내 집을 사서 들어가겠어"가 목표였지만,

코로나 팬더믹으로 여러 상황이 여의치 않아지며 어느덧 지금 집에서 월세살이를 한지도 벌써 3년 차에 접어 선다. (물론 지금 집도 상당히 만족하면서 살고 있지만 단 하나, 내 집이 아니라는 것에 대한 불만)


마음이 점점 조급해진다. 우리는 지금 매년 2만 유로 (한화 2천8백만 원)을 월세로 날리고 있단 말이다!

매달 내는 월세에 조금만 더 투자하면 내 집을 (아 물론 은행과 함께 마련한^^) 마련할 수 있는데, 계속 이렇게 살긴 싫어.라는 마음으로 잠시 뜸하던 집 찾기에 다시 몰두하기 시작했다.



사실 로지를 입양하면서, 로지를 위해 조용한 시골 또는 외곽의 마당 딸린 집에 살까? 하는 생각도 해봤지만,

그렇게 되면 아무래도 재택근무로 집 혹은 집 주변이 생활 반경의 전부인 내가 너무 우울해질 것 같았다.

부모님도 '네가 행복해야 로지도 행복한 것' 이라며, 로지만을 위해 시골에 집을 사는 것은 아닌 것 같다고 조언해주셨다. 하긴 센터 생활 못하면 죽는 내가 시골이 웬 말이니..


꼭 시골이 아니더라도 개를 위한 공원이 곳곳에 잘 마련되어 있는 독일이니, 다시 센터로 눈을 돌렸다.

지금도 초 센터에 살고 있어 센터 라이프의 장점을 너무나도 잘 알고 있는 터라, 돈을 좀 더 지불하는 한이 있더라도 꼭 센터에 살고 싶다는 욕구가 솟구치는 우리 부부였다. 특히 아이 계획 없는 젊은 부부가 살기엔 적당히 번잡하고 활기찬 센터가 아무래도 최고.


사실 센터 중에서도 가장 핫하고 깨끗한 신도시인 '하펜시티'에 마음이 갈 수밖에 없었는데,

하펜시티의 신축 아파트는 매매가가 우선 최소 백만 유로 (한화 약 13억)부터 시작하는 것 같아 엄두도 못 내고 있었다. 그러던 찰나..


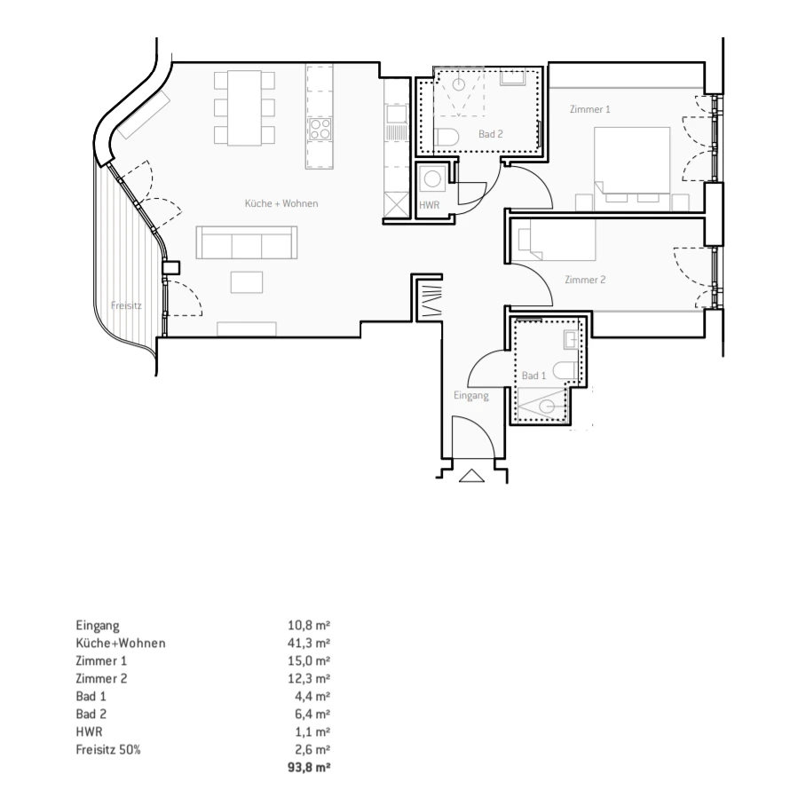
우리가 찾던 조건 (첫 입주, 90m² 이상, 방 3개 (거실 1+침실 2), 화장실 2개, 발코니)으로 백만 유로 이하의 집을 두 개 발견했다. 우선 금액적으로 '그나마' 덤벼볼 수 있는 유일한 하펜시티의 신축 아파트들. (우와, 우선 시도라도 해볼 수 있다는 것에 감사합니다!)


1. Eleven Decks

UL.PNG Eleven Decks

첫 번째로 봤던 Eleven Decks라는 건물은 한국의 주상복합처럼 잘 마련된 커뮤니티 시설에, 스마트홈 시스템까지 우리 한국인의 시선을 끌기에 충분한 건물이었다. 다만 300세대가 넘는, 약간 집이라기 보단 호텔에 가깝게 느껴지는 어떠한 답답한 느낌과.. m²당 5유로 - 그럼 90m²라고 쳤을 때 450유로, 한화 약 61만 원에 달하는 높은 관리비, 너무도 작은 주방과 거실 구조가 마음을 힘들게 했다. (남편과 내린 결론은: 이건 집에서 절대 밥 안해먹고 밖에서 다 사먹을 수 있는 젊은 CEO들이나 살 수 있는 구조다ㅋㅋㅋ)



2. The Wave

캡처.PNG


Eleven Decks의 무시할 수 없는 단점들이 마음을 어지럽히고 있을 때쯤 눈에 들어온 다음 타자 The Wave.

사실 비슷한 평수에 가격이 7만 유로 정도 더 높아서 처음엔 '너무 비싼 거 아닌가?' 하고 보지도 않았지만,

Eleven Decks에 대비되는 이 정상적인 구조를 보고 마음을 빼앗길 수밖에 없었다.

ki..PNG


손님들 초대해서 함께 먹고 마시는 걸 즐기는 우리 부부의 라이프 스타일에는 탁 트인 주방과 거실이 제격이고, 특히 우리 집 전담 요리사 남편을 위해서는 주방의 크기도 상당히 중요한데, 우리의 라이프 스타일에 딱 알맞은 구조라는 생각이 들었다. 72세대로 너무 크지 않은 단지에, 도보 7분 거리의 역 두 개 사이에 위치해서 맘에 들었고, 마트 두 개도 2분 거리, 유동인구가 너무 많지 않은 주택가, 엘베강을 바로 바라보고 있는 위치인 것도 끌렸다.



그렇게 The Wave 쪽으로 맘을 굳히고, 이제 해야 할 일은 건물을 분양하는 부동산과 Finanzberater (대출 상담사 혹은 중개인) 에게 연락하기.


부동산과 당장 그 주말에 showroom에서 만나기로 약속을 잡고,

Finanzberater에게도 이러한 조건의 집 매매를 원하니 대출을 알아봐 달라고 연락을 취해놨다.


-2부에서 계속-



keyword
작가의 이전글개딸 입양 프로젝트 - 상