AI와 함께하는 실내건축

1인가구가 주축이 되는 미래에 1인가구 워크스페이스 원룸

이제 거의 모든 것이 AI로 가능한 시대에 이르렀다. 필자 역시 건축도면이나 실내건축도면을 그려본 경험이 있어서 그런지 AI와 실내건축을 위한 작업은 조금 수월했다. 이제 캐드나 3D Max도 굳이 힘들게 할 필요가 없다. 과거의 집은 하루를 쉬기 위해 돌아오는 장소였지만 1인 가구와 재택 기반 노동이 늘어나면서 집은 더 이상 소비의 공간이 아니라 생산의 공간으로 변하고 있다.


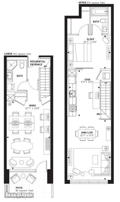
필자가 AI와 작업하면서 기준이 되는 집은 18평(약 59.5㎡)이다. 1인가구라고 하더라도 이 정도 면적이 주거환경의 최적이라는 생각이 드는 공간이다. 인테리어 작업을 위해서는 작업을 요청한 사람의 요구사항을 정리한 스케치를 기반으로 평면도, 입면도, 천장도, 조감도가 그려진다. 그리고 우선 면적 구성을 어떻게 할지에 대한 논의를 하게 된다.

면적구성.png

일반적으로 가로형 구조가 조금 더 편리하다. 채광을 작업공간에 집중이 가능하고 심리적 개방감이 증가한다는 장점이 있다.

d93ed52416b2ea9f2dc331d869b58a87.jpg

복충구조를 통해 워크스페이스 설계를 했다. 워크스페이스는 약 18㎡ (가로 4.5m × 세로 4.0m)로

32인치 × 2 + 보조 세로모니터 1

벽 고정 암 설치 (책상 면적 확보

상부수납은 깊이 300mm 선반에 자료 + 촬영 오브젝트 정리 용도로 활용하게 된다. 리빙존은 쉽게 거실이라고 말할 수가 있는데 거실이 아닌 회복공간으로 소파 하나를 배치하고 벽면은 전체를 책장으로 조성을 한다. 공간의 목적은 어떤 소비가 아니라 생각을 정리하는 공간이다. 이제 집은 쉼의 공간이 아니라 생각이 만들어지고 기록이 생산되는 가장 작은 연구소가 된다.

3d-midpoly-architecthomeoffice-scenedayrender.jpg

전체 디자인 키워드는 Warm Neutral Minimal로 꾸며지며 집중을 방해하지 않는 색을 통해 촬영·글쓰기·사고에 유리한 공간을 조성하는 데 있다.

마감재.png

✔ 맞춤 제작 책상 (공간 핵심)

사이즈 : 2400 × 750 × 720mm

소재 : LPM + 자작합판

벽 고정형 (흔들림 없음)

제작비 : 90~120만 원

✔ 상부 수납장

2400 × 300 × 450mm

오픈 70% + 닫힘 30%

제작비 : 약 60만 원

✔ 작업 의자 (장시간용 기준)

좌판 깊이 470mm 이상
허리 지지 필수 모델

예산 : 40~70만 원

✔ 모니터 암 + 배선정리 시스템

예산 : 약 25만 원

02357f7a95fccaa4ca6106dfb697edff8fe9955b-1998x1449.jpg

18평이라는 면적은 결코 넓지 않지만 이 설계는 면적을 나누는 대신 기능을 정리했다. 불필요한 동선을 줄이고 집 안에서의 이동이 아니라 사고의 흐름이 이어지도록 구성했다. 현관에서 책상까지는 단 몇 걸음이지만 그 짧은 거리가 하루의 시작을 분명하게 만든다.

공간 조닝.png

이 설계는 특별한 미래 기술을 과시하기 위한 것이 아니라 오히려 이미 시작된 변화를 공간의 형태로 정리해 본 하나의 실험에 가깝다. 우리는 이제 회사로 출근하는 대신 네트워크에 접속하고 도면을 직접 그리는 대신 AI와 협업하며 하루의 대부분을 집이라는 장소 안에서 보내는 시대를 살고 있다. 그렇다면 집 역시 과거의 형태를 그대로 유지할 이유는 없다. 거실 중심의 주거에서 작업 중심의 주거로 넓이를 과시하는 공간에서 밀도를 높이는 공간으로의 전환이 자연스럽게 이루어질 것이다.

kHdvTYFIIwvHlFaJJI2oAOR4huvjePo0SFNHDXDcTvzw03YfDRqL7RKnLf4-i43kLtInVx2Zrhc_YlCWi48G18OpcO1kEcor1cnmN_BqmVg.jfif

앞으로의 주거는 몇 평인가가 아니라 얼마나 집중할 수 있는 구조인가로 평가될 가능성이 크다. AI와 함께 일하는 시대에는 집이 곧 가장 작은 연구소이자 작업실이 된다. 그리고 그 공간은 화려할 필요가 없다. 오히려 조용하고 단순할수록 더 많은 생각을 담을 수 있다.

V5GWoDQDbwHuKZdsfaVwN3.jpg

앞으로의 집은 더 이상 단순히 머무는 장소가 아니라 생각을 정리하고, 기록을 만들고, 스스로의 삶을 설계하는 가장 개인적인 작업실이 될 것이다. AI가 설계를 돕는 시대가 되었다는 것은 결국 사람이 자신의 삶의 방식까지 직접 설계하게 되었음을 의미한다. 집을 바꾸는 일은 공간을 바꾸는 일이 아니라 살아가는 방식을 다시 그리는 일이기 때문이다.

매거진의 이전글천재의 길이란...