테이블을 쪼개면 바뀌는 것들...

1인 가구시대의 음식점 생존법

by 잇쭌
동선과 객석배치는 음식점의 매출에 큰 영향을 미친다. 동선과 객석배치는 음식점의 밀도를 좌우하며, 동시에 수용할 수 있는 손님을 최대화 할 수 있다.


일반적으로 음식점에서 많이 하는 실수는 업종과 점포규모에 맞는 객석의 숫자에 대한 추정이다. 단순히 객석의 숫자가 많다고 매출이 높아지지 않는다. 상권과 입지 그리고 목표고객의 니즈(needs)에 맞는 동선과 객석배치라야 효율이 높아지고 매출이 극대화 된다.


객석배치의 형식도 매우 중요하다. 객석배치의 형식은 점포의 콘셉트를 결정할 정도다. 내점 고객도 바꿔버릴 수 있다.


공간 쪼개기는 음식점의 공간을 콘셉트에 적합하게 나누어 효율을 극대화 하는 것이다. 중.대형 음식점은 공간 쪼개기를 통해 다양한 고객의 니즈를 수용할 수 있다. 공간 쪼개기를 통해 음식점은 동시에 수용 가능한 고객을 최대화 할 수 있다. 테이블 쪼개기를 공간 쪼개기와 병행한다면 만석률을 극대화하여 최대 매출을 실현하는 것도 어렵지 않을 수 있다. 공간 쪼개기와 테이블 쪼개기의 효과는 점포의 밀도를 높이는 것이며, 점포를 넓히는 것과 같다.


지금도 많은 음식점들이 동선과 객석배치, 공간 쪼개기, 테이블 쪼개기에 대해 잘 알고 있지 못하는 것 같다. 단순히 구색을 갖추기 위해 객실을 만드는 것이나, 확장할 수 없는 객실을 만드는 것은 공간 쪼개기가 아니다. 공간 쪼개기는 가변형 벽체인 무빙-월(moving wall), 파티션, 이동식 파티션, 붙박이형 의자 등을 사용하여 음식점이 너무 좁아 보이지 않게 하면서도, 다양한 고객요구에 대응할 수 있는 능력을 갖추는 것이다. 그러기 위해서는 처음부터 점포 콘셉트와 동선과 레이아웃을 세심하게 고려하여 최종적인 결과를 상상하면서 디자인해야 한다.



객 단가 높은 일식집 같은 업태는 평소에는 작은 객실이 필요하다. 그러나 객실 중간 벽체를 가변형 벽으로 만들면 중.대형 단체고객을 받을 수 있게 된다. 규모가 큰 한식 고기음식점은 고객의 내점동기가 다양할 수밖에 없다. 이런 업태의 음식점은 적절한 규모의 다목적 객실로 쪼갠다. 평소에는 개방된 홀로 사용할 수 있다. 무빙-월로 막으면 얼마든지 다양한 형태의 고객 요구에 대응할 수 있게 된다. 직장 회식, 상견례, 가족잔치와 같은 수요에 얼마나 탄력적으로 대응이 가능한가는 고객들의 음식점 선택에 큰 영향을 미친다.



공간과 테이블을 쪼개면 똑 같은 음식점이라도 매출에 극명한 차이가 난다. 같은 시간에 더 많은 손님을 받을 수 있다. 만석률도 높아지기 때문에 효율적인 운영이 가능해 진다. 다양한 규모의 단체고객의 요구에 대한 대응력이 극도로 높아진다. 작은 음식점은 테이블 쪼개기를 실천하자. 규모가 큰 음식점은 공간 쪼개기와 테이블 쪼개기를 함께 실천하자. 경영성과는 공간 쪼개기에서 시작된다.



아래의 고깃집은 얼마 전 점포를 근처로 확장해서 이전하게되었다. 인테리어를 마치고 2개월 정도 운영했지만 매출은 생각보다 많이 부진했고 큰 위기감이 몰려왔다. 원인을 진단해 보니 분위기도 문제였지만 오피스 상권의 고객과 니즈에 맞지않는 매장의 동선과 레이아웃, 테이블의 문제였다.


오픈한지 두 달만에 인테리어를 크게 바꾼다는 것은 쉽지 않은 결정이었다. 그러나 다행히 클라이언트는 필자의 의견을 받아들여 인테리어를 대대적으로 고치기로 했다. 상권과 입지, 타깃의 특성과 니즈(needs)에 맞춰 공간 쪼개기와 테이블 쪼개기 등을 실행한 결과, 공사를 끝내고 다시 오픈한지 얼마되지 않아서 단체고객의 예약이 늘게 되었다. 그리고 현재는 매출이 두 배를 넘어섰다.



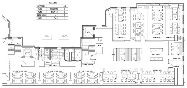
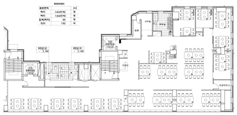
<공간을 쪼개기 전> 객실의 확장성은 객실의 숫자만큼이나 중요하다. 홀 전체가 오픈되어 단체회식을 원하는 고객들의 요구에 적극 대응할 수 없었다.



<공간을 쪼갠 후> 우측 상부의 다목적 객실은 평소에는 하나의 홀(hall)로 사용하지만 4개의 작은 객실로 언제든지 변형이 가능해졌다. 아래 쪽 창가의 객실들은 파티션과 무빙-월로 10~20인 사이의 단체를 얼마든지 받을 수 있게 되었다. 중앙의 붙박이석은 4~10인 단체에 대응이 가능해졌다.


공간 쪼개기를 실천하여 매출이 두 배 이상으로 상승한 이 고기음식점은 테이블 쪼개기를 함께 실천하여 같은 면적을 가지고도 효율이 최대가 되었다.


< 테이블 쪼개기 이 전 포스팅 보러가기 > http://kang8440.blog.me/221071032683


<다목적 객실> 낮에는 일반 홀로 사용한다. 연말에는 85명 규모의 단체를 수용할 수 있다.


<다목적 객실> 저녁에는 가변 형 벽체를 사용해 다양한 직장인 단체를 수용할 수 있다.


<창가 객석> 들여다 보이는 파티션을 설치해서 공간을 나누었다. 프라이빗한 느낌이 들지만 답답하지 않으며 단체석으로 묶어줄 수 있다.


<창가 객석> 접이식 파티션을 설치해서 저녁에는 단체 고객을 받는다. 낮에는 오픈해서 홀이 넓어 보이게 한다.


<도입부> 다목적 객실을 만들면서 도입부가 좁아졌다. 엘리베이터 정면 벽에 브론즈 미러를 설치해서 공간이 확장된 느낌을 주고 있다.


<홀 중앙부 객석> 홀 중앙의 객석은 부스형으로 만들었다. 동선이 간단해서 빠른 서비스가 가능하고 객석은 10인까지 무리 없이 수용할 수 있다.


by 행복한디자이너


https://kang8440.blog.me/

keyword
매거진의 이전글음식점은 어떻게 브랜드가 되는가?