청량리, 남아있던 도시형한옥

작업실 겸 숙소

건축 작업실 겸 숙소

이번 집은 F가 1년 정도 살았던 장소에 관한 이야기이다.

이 집은 개인의 집이었다기보다는 지금의 표현을 빌리자면 공유주택이었다. F는 90년대 후반 건축학과를 다녔고, 대학교 앞에 있던 '건축 작업실 겸 숙소'였다. 이곳에서는 8명의 학생이 같이 숙식하고 공부를 했다. 대학교 4년을 다니는 동안 이 숙소이자 작업실은 2번의 이사로 3곳에서 생활하였는데, 이곳은 그중에 2번째 장소이다. F가 대학교를 다닌 90년대에는 각 건축학과마다 '작업실'이라는 것이 있었다. 그의 학교뿐만 아니라 다른 학교에도 있었고, 어느 작업실은 학교 연합으로 하기도 했다. 실습이 동반되는 예술대학에도 있었던 것을 알고 있다. 이곳은 동아리와 같은 성격인데, 숙식을 같이 한다고 하는 점이 더 강한 연결고리를 갖는 곳이다. 이곳에서 건축설계를 같이 공부하고 연구하고, 세미나 등의 학술활동을 하였다.

합숙의 시작

F가 다닌 대학교 건축과에는 작업실이 5-6개 정도 있었다. 지금은 다 사라져 정확하게 이름이 기억나지 않는다. 이곳 작업실에는 1학년 겨울방학 때부터 시작하며, 원하는 사람이 가입하여 같이 지내는 곳이다. 건축과 학생수의 약 20% 정도 가입하여 활동을 했다. 지금은 완전히 다르지만, IMF사태가 일어나기 이전에는 건축과 졸업하면 취직 1등이 건축사사무소(건축설계)였고, 1997년까지 건축과 커트라인이 의대를 넘어설 정도였다. 당시에는 공부 잘하는 순서대로 건축과에 들어왔고, 건축설계를 지망하여 취직했다. 건축사만 따면 돈을 많이 벌 수 있는 건축 성장기의 시절이었다. 지금은 건설사에 가면 연봉이 제일 많고, 건축설계가 제일 꼴등이다. 건축과 입학 순위도 중하위로 떨어졌다. 졸업생 중에 10% 정도만 건축설계를 한다고 한다.

세상이 바뀔 것이라는 것은 전혀 생각하지 못한 채, 1학년 겨울, 4명의 동기와 함께 작업실에 들어갔다. 설계 공부를 위한 합숙의 시작이었다. 그곳에 왜 들어갔는지 정확히 기억이 나지 않지만, 1학년 지나고 전공에 대해서 어렴풋이 알게 되는 시기이기에 무엇을 해야 하는지 몰랐기 때문이기도 하다. 당시는 학교에 기자재 및 도서 등의 지원이 거의 없어 학교에서 공부하는 것이 불편했지만, 작업실에는 모형 작업 기자재 및 건축 도서 등의 지원이 있었던 것이 가입의 이유이기도 했다. 그리고 그 겨울방학부터 그곳에서 숙식을 하며 건축설계를 공부했다. 그 당시 작업실에 들어가면 '그래도 설계를 열심히 하려고 하나 보다'라고 주변에서 생각했었던 시절이었다.

겨울부터 시작된 작업실 생활은 군대 같았다. 그때는 군대를 가기 전이었기 때문에 몰랐는데, 2학년 끝나고 군대를 가니 작업실과 별반 다르지 않았다. 아침에 일찍 일어나서 밖에 나가서 체조를 하고, 밥 당번을 정해서 돌아가면서 10여 인분의 아침밥을 직접 했다. 아침마다 당시 작업실의 총무에게 식사비용을 받아서 작업실 앞의 슈퍼에 가서 식자재를 구입했다. 기억이 어렴풋하지만 두부, 계란, 콩나물 등 간단히 할 수 있는 식자재를 구입했던 것 같다. 체조를 하고 같이 아침밥을 먹고, 세미나를 시작했다. 같은 건축책을 보고 책의 내용에 대한 이야기를 하고, 유명한 건축물에 대해서 모형도 만들어보고 설계도면도 그대로 다시 그려보는 공부도 했다. 또한, 설계 주제를 정해서 설계를 하고 그것에 대해서 서로 비평하며 더 나은 방향을 연구했다.

01_청량리 작업실-조감도.jpg

도시형 한옥

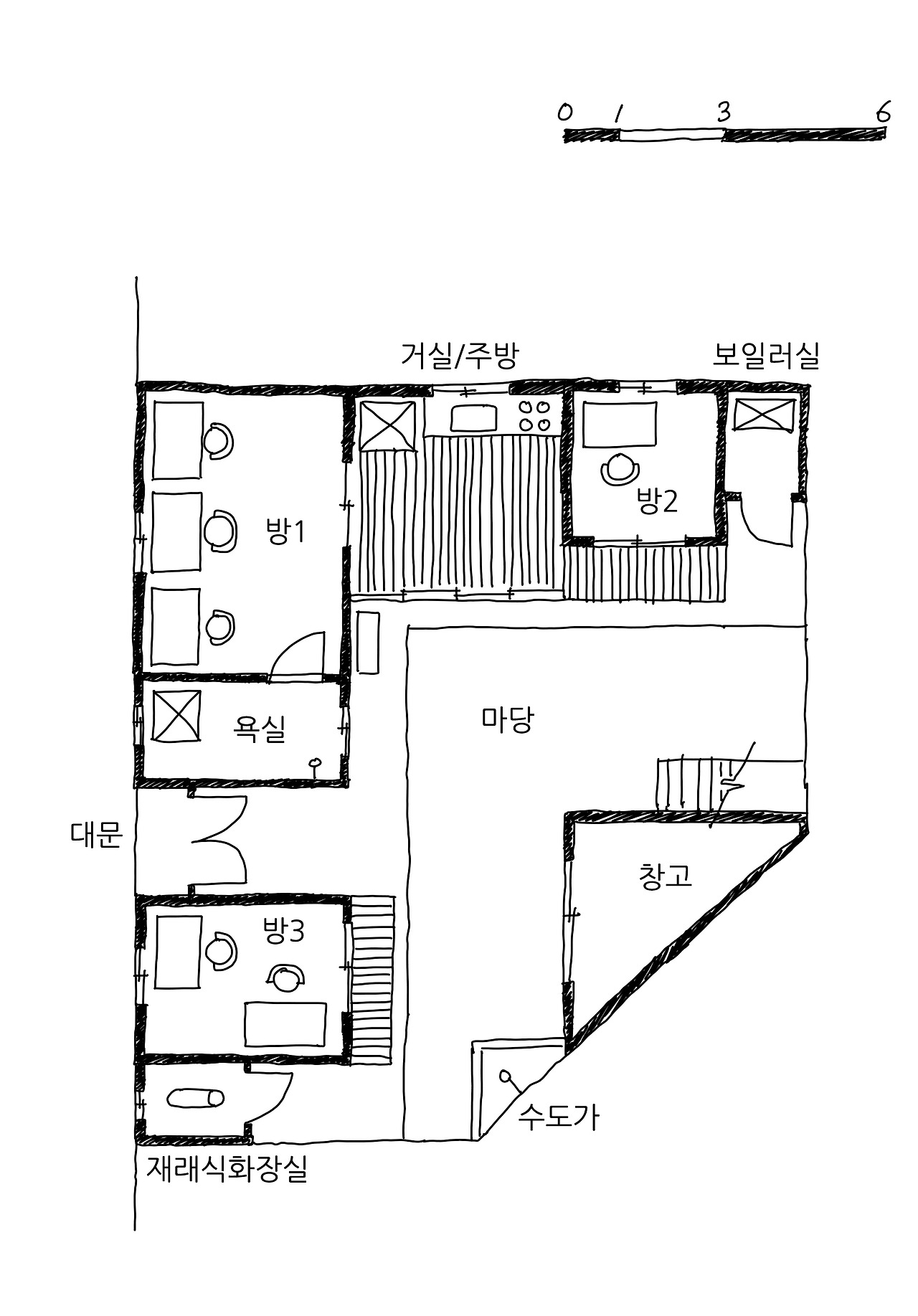
대학교 때 잠시 살았던 작업실 공간은 지금은 재개발이 되어서 없어졌다. 집의 유형은 'ㄱ'자 형태의 아주 전형적인 도시형 한옥이다. 도시형 한옥의 대표적인 유형은 북촌이 시작인데, 1930년대 사업가 정세권에 의해서 집단으로 도시 한복판에 지어진 변형된 한옥의 형태를 통상 ‘도시형 한옥’이라고 한다. 그 이후에 1960~70년대까지 도시형 한옥의 변형 형태들이 서울 곳곳에 건축되었다. 위치는 청량리역 뒤쪽으로 골목골목을 지나서 들어갔던 기억이 있다. 동대문구 전농동으로 지금은 사라지고 동대문 롯데캐슬 노블레스 아파트로 재개발되었다.

기억을 더듬어 보면 지붕에는 기와가 올려져 있었고, 기둥 및 보의 목재도 상당히 건실했다. 대청을 중심으로 양쪽에 방이 1개씩 있었고, 대문 건너편에 또 하나의 방과 재래식 화장실이 구석에 있었다. 마당에는 창고(광)가 있었고, 그 위로 올라가는 계단이 있어서 창고 지붕도 활용할 수 있었다.

대청마루에는 싱크대가 놓여 있어서 그곳이 주방 겸 마루였다. 마루에 주방이 옮겨지기 전에 부엌의 위치가 어디였는지 짐작을 해보면, 아마 욕실 자리쯤이 부엌이었을 것 같다. 지면에 내려앉아 있던 부엌을 돋아서 욕실을 만들고, 부엌은 마루로 옮기고, 마루 전면에 유리문을 달아서 실내로 바꾸었을 것이다. 오래된 도시형 한옥의 형태를 지금의 삶에 맞추어가는 자연스러운 변화였다.

방은 3개였는데, 방마다 2~3명씩 제도판(책상)을 놓고 공부하고 잠을 자는 공간으로 사용했다. 사실 제도판은 이 당시 사라지는 유물이었다. 내가 1학년 때는 제도판에 손으로 도면을 그렸지만, 그 이후는 컴퓨터 캐드로 했으니, 제도판이라는 것이 필요 없게 되었다. 이 당시부터는 제도판이 도면을 그리기 위한 도구가 아닌, 그냥 일반 책상으로 전락해버린 시기였다. 그래서 제도판을 책상으로 쓰고 그 앞에 컴퓨터 모니터를 놓고 썼다.

오래된 집이라 화장실은 재래식 변소였다. 어릴 때 재래식 변소가 있는 집에서 살았었기 때문에 거부감은 없었지만, 불편한 것은 어쩔 수 없었다. 더구나 내가 쓰는 방은 문간방이면서 화장실 옆에 붙어 있는 방이라서 냄새가 조금 나기는 했다. 그러나, 오래된 한옥의 나무와 흙냄새가 더 강해서 화장실 냄새에 그리 불편하지는 않았었다.

한옥의 로망

도시형 한옥은 여름과 겨울에는 덥고 추워서 매우 살기 어려웠지만, 봄과 가을에는 최고인 집이었다. 아침에 눈을 뜨면 신선한 공기와 밝은 햇살이 창호지 문을 통해서 들어오고, 문을 열면 바로 마당이 시원하게 보이는 곳이었다. 이것이 마당 있는 한옥의 가장 큰 매력이라면 매력이지 않았나 싶다.

그러나, 여름에 너무 덥고, 겨울에 너무 추웠다. 집은 단열은 전혀 없었고, 문도 창호지 1장만 발려진 아주 옛날 문 그대로였다. 봄, 가을의 환상적인 창호지 문은 여름, 겨울에는 완전 정반대의 역할을 했다. 여름에 마당에서 뜨거워진 공기가 집안으로 들어왔지만, 방들이 옆집과 거의 붙어 있어 창을 열어도 틈이 거의 없어 뜨거운 공기가 밖으로 나가지 못하여 완전히 찜질방과 다름없었다.

그리고 겨울에는 보일러가 고장 나서 피난을 갔었다. 보일러에서 터져 나온 물이 얼어 보일러실이 얼음으로 가득 차 올랐기 때문이다. 도시가스가 들어오지 않아서 기름보일러였는데, 겨울에 기름 값도 만만치 않게 들었다. 집이 상당히 불편한 점이 많았지만, 여러 명이 살기에는 매우 저렴한 월세로 살았기 때문에 불평을 하면서도 저렴한 월세를 떨쳐 버릴 수 없었다. 그러나, 이곳에서 1년 정도 살고 다시 이사했다. 봄과 가을은 좋았지만, 여름과 겨울을 한 번씩 지내고 나니 도저히 살 수 있는 집이 아니었다는 것을 알고 나서였다.

최근 도시형 한옥이 사람들이 한 번은 살아보고 싶은 로망이 있는 집을 되어 있다. 북촌이나 서촌 즈음에 고쳐지거나 새로 지은 한옥에 살고 있는 사람을 부러워하곤 한다. 지금의 수리된 한옥은 단열이 잘되고 냉난방 설비가 잘 갖추어져 있어, 한옥의 장점은 살리고 단점은 보완한 누구나 살아보고 싶은 곳이 되었다

keyword
이전 04화관교택지, 마당 있는 다가구주택