brunch

기후 위기와 주거공간

기후변화와 위기로 날씨의 변화가 심상치 않다.

어느 해에는 여름과 겨울의 기온 차이가 70도 가까이 차이나기도 했다. 겨울에는 영하 30도까지 내려가기도 했고, 여름에는 영상 40도까지 오르기도 한다. 어릴 적 배울 때는 우리나라가 금수강산으로 사계절이 있어 풍요로운 나라라고 배웠는데, 언제인가부터 이렇게 여름과 겨울의 온도 차이가 크게 나는 경우를 체험하고 나서는 몸이 잘 견디어낼 수 있는 온도의 편차인가 하는 의구심이 들지 않을 수 없다. 또한 최근에는 월동하던 꿀벌들이 모두 사라져 봄에 수분을 하지 못하는 사태도 일어나고, 감당하기 힘든 기록적인 폭우로 생각지 못한 재난이 일어나기도 한다. 이 모든 것이 기후위기의 단면일 것이다.

지구 온난화의 영향으로 제트기류가 불안정해서 여름에는 적도의 더위가, 겨울에는 북극의 추위가 밀려들어와 생기는 현상이다. 이러한 위기로 우리나라는 극서의 더위와 극한의 추위가 1년 동안 반복되는 한반도가 되었고, 기습적인 구름의 발달로 감당하지 못하는 폭우가 내리곤 한다.

점점 날씨가 극한으로 달리면서 여름에는 에어컨과 겨울에는 난방에 의존할 수밖에 없다. 그래서 더욱더 설비와 더불어 건축물의 에너지 절약 설계는 더 중요해질 수밖에 없다. 쉽게 말하면 단열재를 효율적으로 시공하고 냉난방 설비를 설치하는 것이다.

IMG_20220829_103314_773.jpg

지금은 모든 건축물을 신축할 때 단열재를 넣고, 냉난방 설비를 기본적으로 한다. 현행 법령은 ‘녹색건축물 조성 지원법’이 있고, 단열재의 두께 등을 정하는 법령은 ‘건축물의 에너지 절약 설계기준’이 있다. 현재 법령에 의하면 공동주택의 외벽의 경우 가등급 단열재가 22cm를 설치하게 되어 있다. 최근 녹색건축을 향한 정부의 정책에 따라서 단열재의 두께가 급격하게 증가하고 있는 추세이다. 그러나 이렇게 두꺼운 단열재를 설치하게 된지는 얼마 되지 않았다. 1970년대에 고급주택으로 인식되었던 아파트조차 단열재가 없었다. 외벽은 콘크리트 블록 벽이 전부였다. 건축물에 단열재가 설치되지는 않았지만, 겨울 추위를 막기 위한 연탄 바닥난방 또는 라디에이터 난방이 설치되어 있었다. 여름에는 선풍기와 부채가 더위를 막아주는 장치의 전부였다.


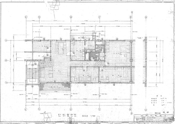
한강맨션 도면.jpg 한강맨션아파트 준공도면 <출처:대한주택공사>

이 도면은 이촌동의 한강맨션 건축 당시의 건축도면이다. 외벽은 블록 벽 한 장 두께이고, 창은 단창이다. 우리나라 법규에 단열에 관한 기준이 처음 등장한 것은 1975년 12월 31일로 건축법 제23조 4 (건축물에 있어서의 열손실 방지)이었다. 법령 문구는 “건축물을 건축할 때에는 대통령령으로 정하는 바에 따라 열의 손실을 방지함에 필요한 조치를 하여야 한다.”였다. 이 당시만 해도 주택을 공급하는데 중점이 있었지 따뜻한 집, 또는 에너지를 절감할 수 있는 집을 공급한다는 생각은 전혀 하지 못할 시기였다. 아마 이 당시를 살았던 분들은 한겨울 밤에 방에 떠 놓은 물이 얼어 버리는 상황을 기억할 수도 있을 것이다. 이후 점차 상황이 나아지면서 집을 지을 때 단열재를 시공하게 되었고, 창도 단열기능을 가지게 되었으며, 집에는 더 효율이 좋은 난방방식이 점차 발전하게 되었다.

IMG_20210821_102246_007.jpg

날씨가 극한으로 갈수록 집은 단열을 더욱 강화해서 할 수밖에 없고, 건축물에 난방과 냉방을 위한 시설에 더욱 신경 쓸 수밖에 없다. 더 나아가서는 단열도 내단열보다는 외단열로 하여 단열재가 건축물 전체를 감싸는 방식으로 하여 열의 손실 및 유입이 최소화되게 하여야 한다. 또한 폐열회수장치를 통해서 실내 공기를 외부 공기와 순환하되 열손실을 최소화하는 장치를 설치해야 한다. 세심한 단열 및 창호의 시공과 더불어 몇 가지 장치를 설치하면 제로에너지 건축물에 가까이 갈 수 있다.

신축은 이렇게 하면 해결할 수 있지만, 오래된 주택은 집 전체를 리모델링하거나 신축하는 것 이외에는 방법이 없다. 통계청 자료에 의하면 우리나라의 주택 재고는 약 2,000만 호이고 이 중에서 20년 이상 오래된 주택은 약 절반인 약 1,000호다. 우리나라에서 절반의 사람들이 오래된 주택에 살고 있다. 최근의 더위에 에어컨 전기비를 보전해주는 것을 복지로 해야 한다고 논의가 있다. 대단한 것이 아닌 단열재 시공과 냉난방 설비의 개선이 우선적으로 이루어지는 주거복지가 이루어져야 할 시점이다.

keyword
이전 06화서울시 건축설계 공모 공개심사