27. 시작이 반이다

발리에 <집짓기>

by JEN

이전 내용을 바탕으로 설계 도면이 완성 됐을 때쯤, 도면을 토대로 프로젝트 전체 견적이 나왔다. 이대로 진행되면 좋았겠지만 견적을 줄이기 위해 다시 한번 도면을 수정하고 인테리어에서 빼야 할 것들을 빼는 과정을 반복했다.

동시에 필지에서는 지반의 강도와 안정성을 평가하는 지내력 검사를 했다. 발리는 크고 작은 지진들이 날 수 있는 지역이라 땅이 너무 무르지는 않을까 걱정했는데 다행이게도 아주 단단하고 강한 지반이라는 결과를 받았다. 더불어 필지에 있는 큰 나무들을 정리하는 작업이 시작되었다. 빼곡하게 나무로 가득했던 정글 같던 필지가 깔끔하게 정리가 되었다. 그리고 그 옆에는 집을 지어 줄 인부들이 지낼 임시 숙소가 지어졌다.

지내력 검사의 결과에 따라 콘크리트 기초 파일을 시공하게 된다.
정글 같았던 필지가 어느세 모습을 드러냈다.

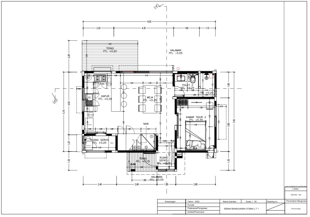
차근차근 집을 지을 준비가 되어 가는 도중 드디어 마지막 최종 설계 도면이 완성되었다. 조로님께서 완성된 설계 도면을 낑낑대며 가방에서 꺼내셨다. 5절 스케치북 정도의 큰 크기였는데 두께도 마치 백과사전처럼 두꺼웠다. 완성된 설계도면에는 집의 평면도, 입면도, 단면도는 물론 전기, 배관, 설비 도면에서부터 부엌, 방, 다용도실, 화장실 각각의 입면도까지 집에 들어가야 할 모든 것이 아주 자세하고 빽빽하게 들어 있었다. 조로님은 이제 이 설계도 대로 집을 짓기만 하면 되는 거라고 웃으며 말씀하셨다. 시작이 반이라는 말이 틀린 말이 아니었다.

이렇게 집을 짓는 과정이 진행되는 와중에도 나는 월요일부터 금요일까지 매일 아침 스쿠터를 타고 왕복 두 시간을 운전해 학교로 갔다. 몸이 고단하기도 했지만 매일 아침 미소가 지어졌다.

학교를 마치고 오는 길에 공사 사이트에 들려 건축 상황을 살펴보았다. 사실 나는 봐도 자세한 건 알지 못했다. 그래도 매주 조로님이 해 주시는 브리핑 덕분에 지금 무엇을 하고 있고 진행 상황을 몇 프로이고 앞으로 어떠한 것들을 해 나갈 것 인지에 대해 이해할 수 있었다.

학교 앞 도로는 언제나 출퇴근을 하는 로컬들로 분주했다. 오토바이를 타고 두시간 이상 푹푹찌는 길 위에 있는 다는게 생각보다 쉽지 않았다.

더불어 인도네시아도 코로나19 백신 접종이 시작되었다. 백신 접종이 시작되니 이제 막혔던 해외 여행이 곧 가능할 거라는 희망 찬 이야기들이 곳곳에 퍼져나갔다. 나도 이 집이 완공될 쯤에는 지긋지긋한 팬데믹이 어서 끝났으면 좋겠다는 생각이 들었다.

그리고, 집이 지어지는 동안은 조금 힘들고 불편해도 곰팡이 집에서 버텨보기로 했다. 일단 학교 생활과 일을 병행하고 있어 이사를 할 여력이 없었고 지금 지내는 곳이 홈스테이 중에서도 가격이 가장 저렴한 곳이었다. 앞으로 집이 완성되면 돈 쓸 일이 더 많아질 테니 입주하기 전까지는 생활비를 최대한 아껴야지 싶었다.


이전 08화26. 인테리어가 체질