설계의 재료 : (건축주의) 기다림

설계 완료를 기다리는 영겁의 시간

by 제미쓴 일단 해봐

두 아이의 아빠이며 16년 차 직장인이었던 나는

우연한 기회에 상가주택을 짓는 일에 몰입하게 되었다.

처음부터 강력한 소망이 있는 것은 아니었지만

일이 진행될수록 점점 더 강한 확신이 들었다.


아마 토지를 계약할 즈음

'끌어당김의 법칙'에 대한 영상을 주구장창 봐왔기 때문이 아닐까 싶기도 하다.


https://youtu.be/a4ZjO2c-stY


2개월 넘게 집중해서 찾아다닌 결과,

서울 외곽의 42평 토지를 계약할 수 있었다.

5호선 지하철역까지 580미터, 걸어서 7~8분 정도 되는 거리.

공원과 작은 재래시장이 멀지 않았다.


https://brunch.co.kr/@may1st/77


초기투자금을 최소화하기 위해 지방에서의 신축도 검토를 하였고

실제로 토지 매물을 찾아서 보고 오기도 했지만

토지에서 예산을 절감하는 만큼 임대료가 낮고 건축 연면적은 넓어지기 때문에

수익성을 기준으로 생각하니 결국 서울이었다.

(개인적인 판단입니다.)




토지 매수를 위한 가설계(계획설계)를 맡겼던 건축사무소에

본 설계를 의뢰하기 위한 계약을 했다.

지금 생각해 보면 아쉬웠던 부분은, 조금 손이 가고 시간이 걸리더라도

여러 건축사무소의 견적을 받아보고 미팅을 해봤어야 한다는 것이었다.


한 곳 하고만 일을 해보니 지금의 설계사무소가

일을 잘하는지, 합리적인 견적을 주었는지에 대해 판단하기 어렵기 때문이다.

물론 멘토님들께 여쭤볼 수 있지만

어디까지나 그분들의 경험에 기대야 한다.



설계와 인허가를 위한 시간은 충분했다.

토지 계약은 10월 초,

거주 중이신 분이 전출하시는 날은 2월,

행정처리가 늦어질 것을 대비해 잔금은 4월로 잡았다.


하지만 무려 6개월이라는 긴 시간을 확보하였음에도,

바로 그 긴 여유 때문에 설계가 진행되는 속도는 늦어졌다.

같은 직장인으로 충분히 이해할 수 있다.

데드라인이 가까운 일을 먼저 해야 하니까.

하지만 지금 나는 건축주의 입장이다.


확보해 놓은 시간은 다른 변수들에 대비하는 것이었는데

설계가 변수가 되어버렸다.


현장이 속한 자치구는

인허가 외에 <건축심의>라는 절차가 있기 때문에

설계의 과정은 이렇다.

1. 가설계(계획설계)
2. 중간설계(건축주의 최종 확정)
3. 건축심의도면
4. 인허가도면(=실시설계)


1. 가설계

토지 매수의 수익성을 판단하기 위해

평면 초안을 구성해 보는 단계

수익성 = 원룸, 1.5룸이 몇 개가 나오는지


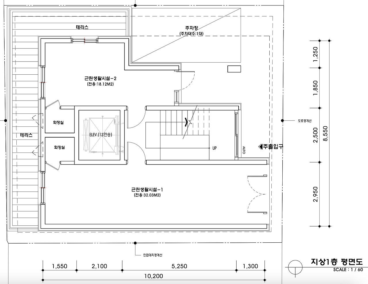
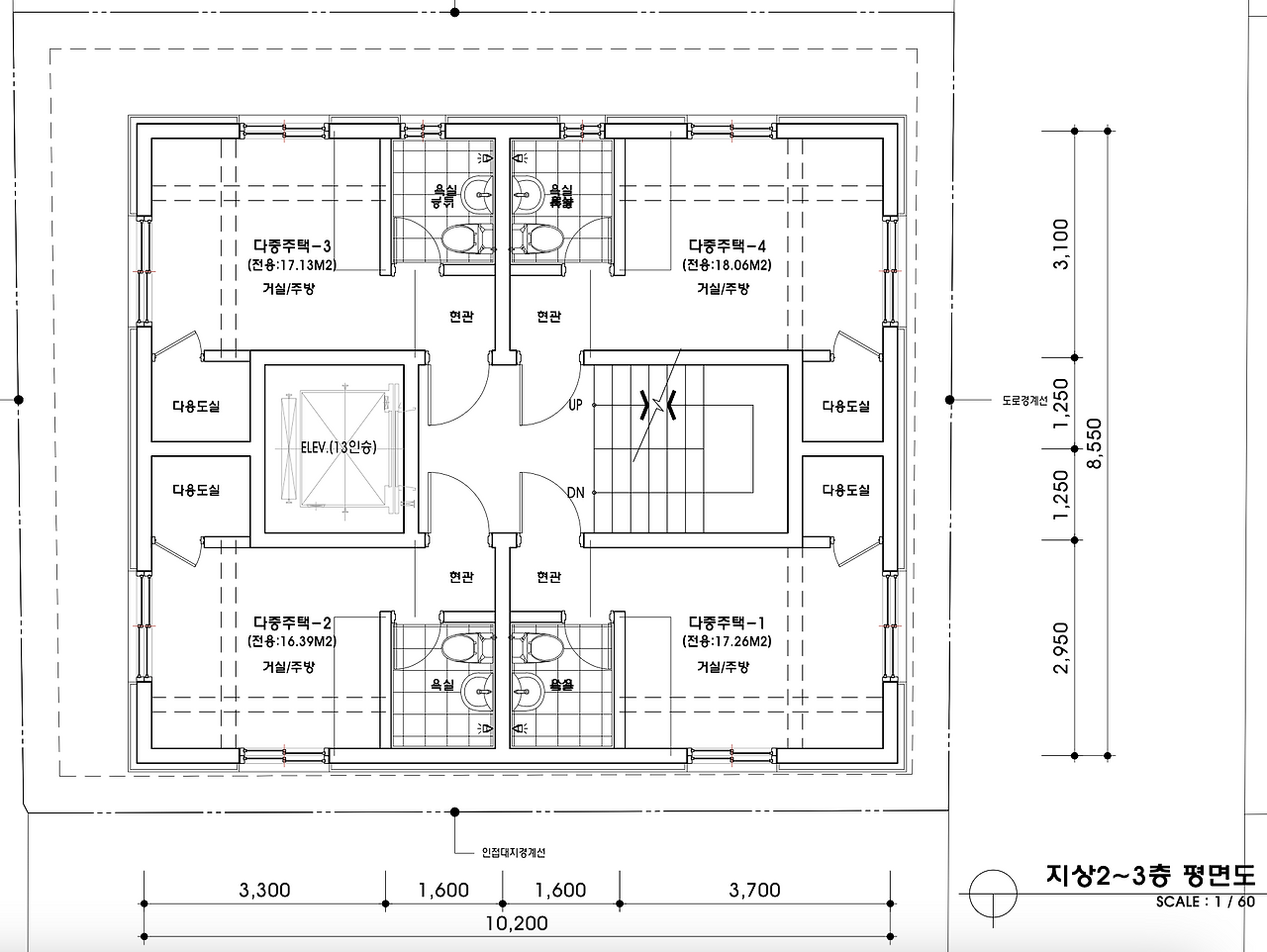
2. 중간설계(평면확정)

건축주의 요구와 실현가능성을 고려한 최종 평면도

화장실을 어디에 둘 것인지, 방 크기는 어느 정도로 할지

평면을 확정해야 다음 과정으로 갈 수 있음


3. 건축심의도면

설계개요, 주차 및 우오수계획, 구조/기계설비/전기설비/통신설비 등

건물을 구성하는 각 요소별 건축 계획


4. 인허가도면 = 실시설계

소규모 신축에서는 인허가도면과 실시설계를 동일하게 표현

설계사무소는 인허가와 평면도에 집중하고,

전기 등 세부적인 도면은 해당 설계를 전문으로 하는 곳에 맡김




나의 경우에는 가설계에서 중간설계로 1개월,

중간설계에서 건축심의도면으로 가는 데에 2개월이 소요되었고,

건축심의에서 한 차례 탈락하는 바람에

다시 그로부터 2개월 후에 인허가도면이 접수되었다.

인허가에 2주 정도가 소요됨을 감안하였을 때에

무려 5.5개월이 설계에 쓰여진 셈이다.


물론 여기에는 구청의 건축심의가 띄엄띄엄 열린다던지,

명절이 끼어있다는지 등의 여러 사정이 포함되어 있다.


하지만 가장 큰 실수는

1) 명확한 프로세스를 인지하지 못한 것

2) 각각의 데드라인을 설정하지 않은 것

이렇게 두 가지라고 본다. 다음에는 절대 실수하지 말아야지..



어쨌든!

설계는 잘 마무리되어가고 있다.

예상만큼 속도가 나지는 않았지만

꾸준히 이만큼 진전되고 있음에 감사한다.

토지를 계약하고 지난 5개월간,

긴장감과 기쁨이 늘 공존하고 있었다.

살짝 떨리는 이 상태가 나는 좋다.

다만..


초보 건축주가 되어보니, 꼭 결혼 준비를 할 때가 생각난다.

혼수 가게에서 "저희 예비 신혼부부예요"라고 말하는 순간,

온 우주가 우리를 향해 미묘한 미소를 짓던 그 모습...


정신 바짝 차려야 한다.


keyword
매거진의 이전글집 지을 땅을 드디어 결정했습니다