한옥, 마당에는 잔디를 깔지 않았다.

한옥 짓기 전 평면과 나무

by 한옥을짓다

한옥은 한국 사람들이 대를 물려 살아온 집이다. 그 속에는 화전민의 너와와 굴피집도 될 수 있고 초가와 기와집도 될 수 있다. 그럴 일이 없길 바라지만 몇 백 년 뒤까지 아파트 형식이 지어진다면 아파트도 한옥이 될 수 있을 것이다. 지금의 한옥은 전통적 집 짓기로 이해되고 있는게 현실이어서 드라마에서 자주 봐오던 기와집만을 한옥으로 생각하기도 한다.


투자의 목적을 제외하고 순수하게 집을 지으려는 분들을 상담하다 보면 당연하게도 잘 모른다. 평생에 한번 질까 말까 하는 집을 어떻게 알 수 있을까? 그래서 맨 처음 하는 질문이 평당 얼마입니까?...

이런 질문들은 대략, 난감....


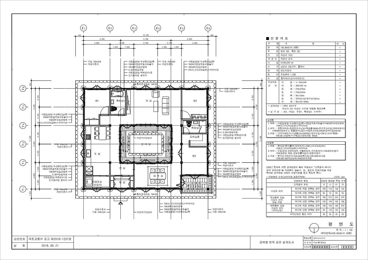
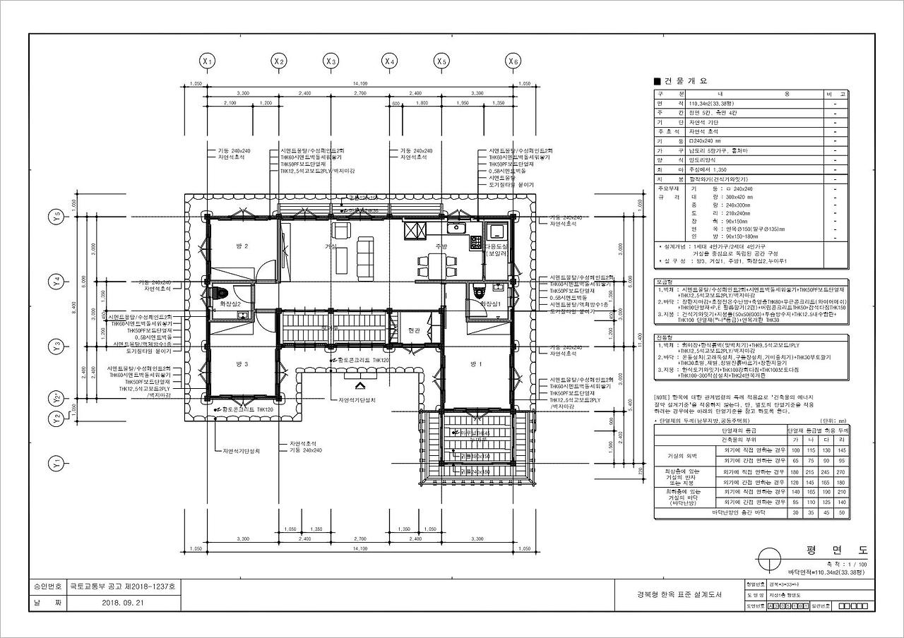
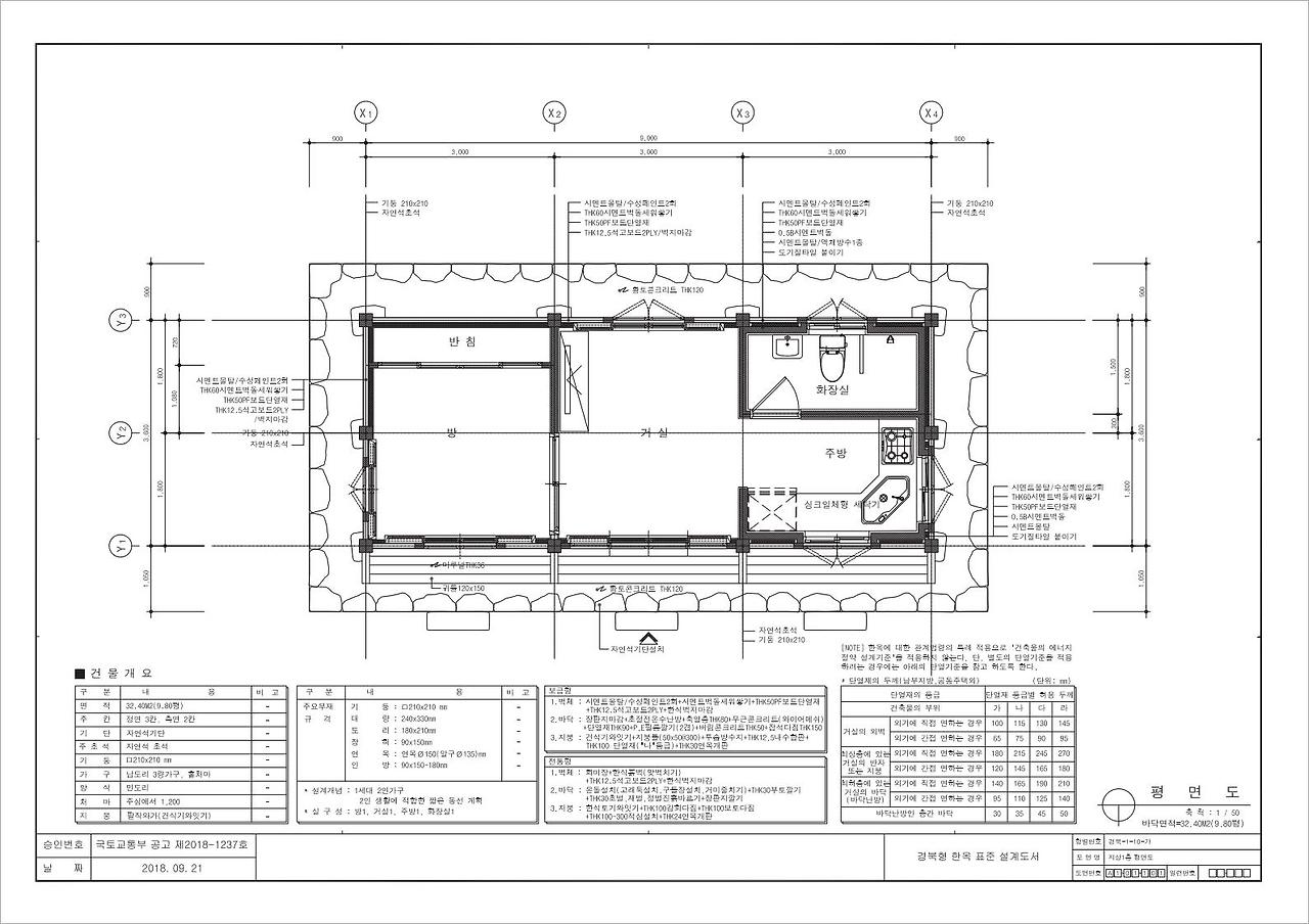
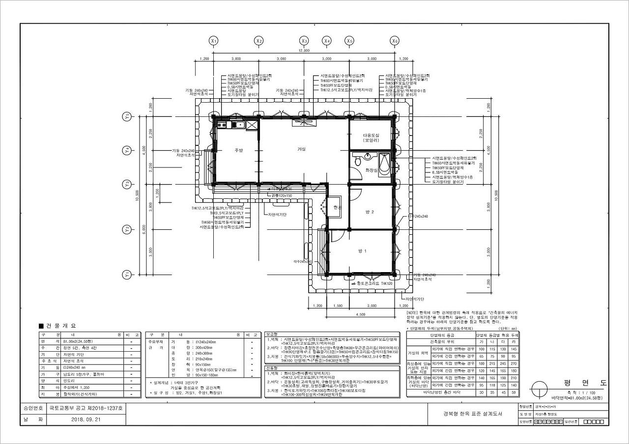
한옥을 지으려면 우선 한옥 표준설계도서를 찾아보자

우선 결정을 해야 한다. 결정은 달라질 수도 있지만 여러 생각을 해보는 것도 좋을 듯하다. 예전의 집을 짓는 이유는 내가 만들어 놓은 터전에 대를 물려 자자손손 번창하길 바라는 마음이었다면 지금의 집은 어떤 의미를 갖는지.. 그곳에 누구와 함께 살 것이며 어떤 경제적 활동을 할 것인지도.. 한옥의 평면 구성은 ㅡ, ㄱ, ㄷ, ㅁ자 등으로 구분한다. 인터넷에 "한옥 표준설계도서"로 검색해 전라남도와 경상북도에서 제공하는 한옥 설계도서를 얻을 수 있는데 여기에는 건물의 모양과 평수가 따로 구분되어 있다. 지금 살고 있는 집을 기준으로 방이나 화장실의 크기를 빼거나 넓혀 자신이 생각하는 내부 공간을 그린 후 상담을 하게 되면 더 많은 정보들을 이해 할 수 있다.


설비_Image.jpg
평면도_Image.jpg
평면도_Image.jpg
평면도_Image1.jpg
경상북도 한옥 표준설계도서


마당에 잔디를 깔지 않는다.

집을 지을 때 마당만큼 중요한 공간도 없다. 텅 비어 있어도 마당이란 이유로 마음이 넓어지는 느낌은, 어릴 적 뛰어놀던 신남과 웃음을 기억하기 때문이다. 처마에서 떨어지는 빗방울을 손에 맞춰보기도 하고 하얀 마당에 발자국을 내어 보는 것도 기분 좋은 일이었다. 시골집 작은 마당은 나에겐 드넓은 공간이었다.

그런 마당을 서울에서 보기 힘들어졌다.


마당은 일반인들에겐 생산을 위한 작업공간으로, 양반가에선 통풍과 채광을 위한 공간이기도 했다. 신분이 귀할수록 마당에 내려서지 않는 불문율은 대청을 지휘하는 처소로 삼아 마당쇠를 부르는 공간으로 낮게 평가됐지만 또 하나의 불문율처럼 마당에는 잔디를 깔지 않았다. 유럽의 베르사이유 궁전에 깔린 그린 카펫, 잔디밭은 부의 상징이기도 했다. 남의 떡이 커 보인다 했던가? 이 부의 상징은 유행처럼 유럽에 퍼지고 영국의 식민지였던 미국에까지 유행되고, [일제는 경복궁 전각을 헐어버리고 그 자리에 빠짐없이 잔디를 심었다. 한국인에게 잔디는 죽은 사람의 집인 무덤에만 심는 풀이었다. 산 사람이 사는 집에 잔디를 심는 것은 금기였다. (중략) 궁궐 안의 잔디밭은 곧바로 ‘왕조의 죽음’과 연결되었다. 그 이후로 지금까지 많은 한국인이 잔디밭을 궁궐의 필수적인 시설로 잘못 인지하고 있다. 잔디와 궁궐 사이에 대한 인상만 강해져 해방 후에는 아예 부잣집의 상징처럼 되었다.” - 전우용 교수] 우리나라에 들어온 미국의 문화를 받아들이면서 잔디에 대한 생각이 바뀌게 된다. 실제로 한옥의 마당에는 나무 심는 것도 꺼려했다. 풍수상 한옥의 마당은 네모난 입 구(口) 자를 닮았다. 여기에 나무(木)를 심으면 피곤할 곤(困) 자가 되어 마당은 비 어두는 공간이었다. 과거 잔디를 가꾸는 일은 많은 인력이 투입되는 일이어서 관리되지 않으면 벌레들의 서식처가 되기도 했다. 잔디의 장점은 좋은 풍광과 태양의 열을 흡수하는 기능을 한다. 잔디는 우리의 집 구조에서 한낮에 데워진 앞마당의 열기가 상승하면서 뒷마당, 그늘에 있던 공기를 끌어들여 집을 시원하게 만드는 공기의 순환을 방해하는 요소였는지도 모른다.


잔디 하시는 분들께 누가되지 않을까 죄송해요. 오해 없으시길 바랍니다. 과거의 기록이고 현재, 잔디에 대한 인식은 다릅니다.



한옥을짓다 블로그 : https://blog.naver.com/dkswnsdk123

keyword