얇고 긴 대지를 위한 단독주택
설계 제안

공주시 장원리 단독주택 계획 설계

by 집을 그리는 사람

60대 부부가 함께 거주할 전원주택으로 취미는 목공과 원예로 취미 생활을 위한 창고와 야외 작업공간이 필요했습니다. 대지의 남쪽으로는 제법 높고 경치 좋은 산이 있고 서쪽으로는 한산하게 굽어 돌아가는 도로와 원경으로 펼쳐지는 산세가 보기 좋은 땅이었고 얇고 긴 대지 안에 주택을 어떻게 자리 잡아야 할지가 설계의 첫 고민이었습니다.


대지 분석과 배치대안

001_대지분석.jpg
102_배치대안 2.jpg
101_배치대안 1.jpg
111_2차 배치계획.jpg

얇고 긴대지 모양을 따라 집 모양도 얇고 길게 하면 마당도 다양한 목적에 맞게 생기면서 넓은 풍경을 맞이할 수 있었습니다.


평면계획 대안 1

201_1차 평면계획_대안1.jpg

1층 평면도 (대안1)은 거실과 창고를 살짝 어긋나게 배치하여 대지에 들어섰을 때 거실의 개방감을 확보하고 동쪽으로 경관을 열어두었습니다.

건물의 배치는 동서 향으로 길게 하여 북측 도로로부터 앞마당을 보호해주자는 생각입니다.

안방과 서재는 연결하여 하나의 실로도 사용할 수 있도록 했으며 전체적으로 대안 1은 공사비를 고려하여 가급적 건물의 형태를 네모 반듯하게 계획하였습니다.



평면계획 대안 2

202_1차 평면계획_대안2.jpg

대안 2는 설계를 의뢰한 부부의 의견을 고민하여 수정한 평면입니다. 대안 1의 계획안이 북쪽에서 앞산의 시야를 너무 가리는 것이 아닌가 하는 걱정 하셨고 설계에서 고민한 끝에 남쪽에 위치한 앞산, 동서 측으로 펼쳐진 깊은 전망을 침실과 거실등에 골고루 나누어 주었습니다. 또한 창고를 건너편에 넓직히 떨어뜨려 배치하여 중정을 만들어 주었습니다.

거실+주방+식당은 남~북측으로 공간을 반듯하게 정리하여 전망도 남, 동, 북측 여러 곳을 바라볼 수 있도록 하였습니다.

진입했을 때 데크와 중정을 바라보면서 집을 들어오면 분위기가 좋을 것 같습니다.




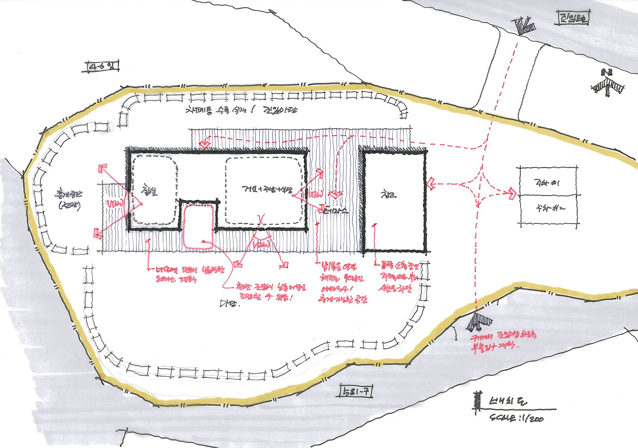
평면계획 대안 3

211_2차 평면계획_1층.jpg

현관에 들어서면 툇마루를 통해 남측 마당을 바라보며 집에 들어올 수 있게 하였습니다.

안방에서는 남측 마당과 서측 마당을 주로 바라볼 수 있게 계획하였고 드레스룸과 욕실을 계획하였고, 욕실은 굳이 2개를 두지 않고 거실에서 안방을 통하지 않고 사용할 수 있도록 하여 2개의 욕실 공간 공간을 절약하였습니다. 2개의 욕실을 합한 결과 공간도 줄이고 널찍한 욕실을 만들 수 있었습니다.


서재는 낮 시간 동안 주로 사용하는 공간인 만큼 거실 및 외부공간과 같은 위치에 있는 것이 좋을 것 같습니다. 거실 사이 벽을 분합문이나 유리벽으로 한다면 거실과 함께 공간이 넓어 보이고 책을 읽으면서 거실, 주방에 있는 가족과 대화할 수 있겠네요..


거실, 주방, 식당 공간의 폭을 일치시켜 한 공간처럼 느끼게 하였고 3면으로 경치를 바라볼 수 있게 하였습니다. 테라스에서는 식사, 휴게, 창고의 공방과 화원과 관계된 취미생활을 하기에 충분할 것 같습니다.



212_2차 평면계획_2층.jpg




설계문의 jwi7270@naver.com

keyword
매거진의 이전글마당이 있는 상가주택 1