야외 식당이 로망인 부부를 위한 주택설계 제안

괴산군 장연면 단독주택 계획설계

by 집을 그리는 사람

설계를 의뢰한 부부는 남을 위한 보기 좋은 조경을 한 집이 아니라, 가족이 중심이 되는 집을 짓고 싶어 했습니다. 도시 생활은 철저히 사생활이 보호된 삶인데 반해 귀농 생활은 너무 개방이 되어 있어서 심리적으로 불안한 마음도 있어서 동네의 시선을 다 모이는 것보다는 새 둥지처럼 아늑한 터를 만들고자 했습니다.


주방은 창문을 시원하게 내고 주방에서 텃밭으로 연결되는 데크가 있었으면 좋겠고 가족들과 단란하게 야외 식사를 하는 것을 바라는 가족이었습니다.



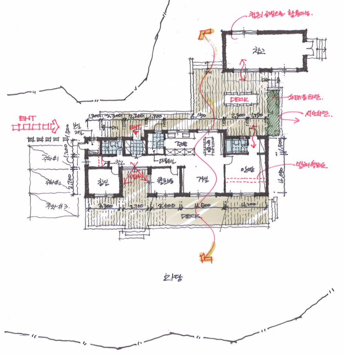
지상 1층 평면도 (대안 1)

004_평면계획_대안4.jpg

주택의 앞 뒤로 데크를 두어 시각적으로도 개방되고 공간으로도 열리게 하였습니다. 거실 전면 데크는 창을 크게 두어 거실을 넓게 보이게 하고 후면 데크는 야외 식사나 취미활동이 가능하도록 의도했습니다.


주방 싱크대에는 상부장을 없애고, 키 큰 장은 냉장고 옆에 확보하였습니다.

안방의 드레스룸 통해 후면 데크로 연결될 수 있도록 하여 저녁 시간이나 늦은 오전에는 차를 마실 수 있는 휴게공간을 겸하도록 하였습니다.


창고는 퀼트 방, 공방으로도 활용할 수 있도록 하고 데크와 연계하여 야외 작업실으로도 사용할 수 있습니다.



지상 1층 평면도 (대안 2)

004_평면계획_대안2.jpg



지상 1층 평면도 (대안 3)

004_평면계획_대안3.jpg



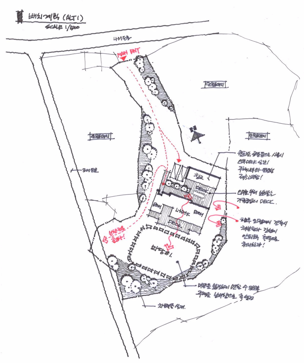
배치대안 검토

002_배치계획_대안1.jpg
002_배치계획_대안2.jpg
002_배치계획_대안3.jpg
002_배치계획_대안4.jpg





설계문의 jwi7270@naver.com

keyword
매거진의 이전글얇고 긴 대지를 위한 단독주택 설계 제안