brunch

아차산아래 구의동집

2010년의 기억

by 최지원

2010년, 구의동의 주택가 언덕길을 곡예하듯 운전하는 승용차 뒷좌석에 종새와 함께 실려 다니며 운전자가 하는 말에 귀를 기울였다. 운전자는 공인중개사였고 종새와 국(종새의 매형)이 당분간 살 집을 보러 돌아다니는 길이었다. 당장은 아니지만 종새와 내가 결혼하게 되면 국이 나가고 그 자리에 내가 들어가 살 집이 될 수도 있어 나도 동행했다. 종새에게는 현금이 5~6천 정도 있었고 집을 위한 대출 같은 건 생각하지 않았다. 집을 구하는 컨셉은 가진 예산을 초과하지 않는 범위에서 필요한 만큼의 공간을 찾는 것이었다.


아파트는 일찌감치 배제했었다. 종새와 나는 둘 다 건축과를 졸업했다. 우리가 받은 건축교육과 읽는 문장들에는 대단지 아파트는 도시를 일정 부분 훼손한다는 내용이 담겨 있었다. 우리는 그 내용에 동의했다. 실제로 아파트 대단지는 경계와 막다른 길을 만들고 다양한 사람들의 삶의 형태를 획일적으로 통일시킨다. 그것에 대한 소소한 혐오를 가지고 있었던 시기에 우리에게 노원구의 소형아파트를 권해주는 공인중개사를 도저히 믿어지지 않는 눈으로 바라보기도 했다. 세상에 우리에게 아파트를 권하다니... (모순되게도 결혼하기 전까지 부모님의 아파트에서 살았다.) 그러면 남은 것은 다세대나 다가구였다.


주거 형태 다음으로 위치를 정했다. 각각 수서동과 청담동의 설계사무소에서 대리, 과장으로 일하고 있을 때였다. 지하철 환승 1회 이하의 기본 조건으로 갖추고 주변에 공원과 산이 있기를 바랐다. 남편의 본가가 경상도이니 고속도로 진입도 고려했다. 이런 여러 조건에 부합하는 위치가 서울의 강동 지역이었고 구의동으로 정해졌다.

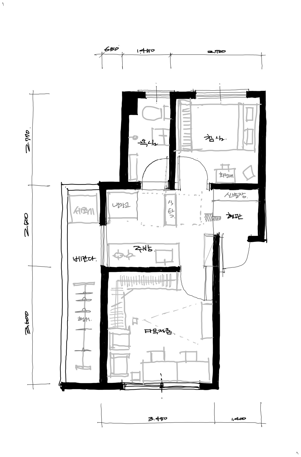
구의동에는 낡은 집이 많다는 것을 공인중개사를 따라다니면서 알게 되었다. 우리는 주로 퇴근 후 집을 보러 다녔는데 그래서인지 본의 아니게 대가족이 저녁에 집에 모두 모여있는 집을 자주 구경했다. 넓은 거실에 목재로 실내마감이 된 넓은 할머니집 같은 느낌의 집이 많았다. 지금은 취향이 좀 변해서 오히려 좋다며 환영했겠지만 그때는 ‘최소한의 필요한 만큼’이 주제였기 때문에 한정된 예산에서 낡고 넓은 집보다 깨끗하고 리모델링된 작은 집을 선호했다.

지하철역으로는 5호선 아차산역이었다. 서울에서 그나마 집값이 겸손한 지역이었다. 아차산역에서 5분 거리라고 했는데 네이버지도상으로는 7분이었고 구두를 신고 걸으면 10분이었다.

아파트를 상대로 잔뜩 미간에 주름을 잡으며 도시의 맥락을 운운할 때와 달리 실제 집을 계약할 시점에는 좀처럼 이론적으로 접근하지 않게 되었다. 예를 들면 자연채광, 자연환기, 프라이버시, 소음차단, 단열을 위한 기밀성 창호 등을 빡빡하게 검토할 것 같았지만 막상 계약하기 전에는 수압체크를 한답시고 수돗물 한번 틀어 보고 말았다. 수압이 낮은 집은 살아본 적도 없는데 이런 행위는 의식적으로 한다. 큰 일을 앞두고 허공에 휘두르는 주먹질 같이 무용했지만 심사숙고하는 세입자처럼 보이고 싶었다.


몇 천만 원짜리 매매 계약서 앞에서도 머릿속이 하얘지던 시절이었다. 나는 그저 도면 안의 건축설계, 디자인적인 질서와 기능에 목에 핏대를 세우던 20대 후반이었다. 나는 예상하지 못한 대출을 받고 1억이 넘는 전셋집을 척척 계약하는 종새가 듬직했다. 그렇게 듬직했던 종새와 집계약 후 몇 달 뒤 결혼식을 하고 신혼여행에 다녀와 종새가 몇 개월 먼저 살고 있던 아차산집에 살러 들어갔다. 이제 나에게 시매부가 된 국은 몇 주 전 이미 다른 곳으로 이사를 했다. 나는 그 집에 열심히 침대와 이케아 가구들과 전자제품을 배송시켰고, 내가 새로 산 물건들과 종새가 먼저 들어가 있던 그 집이 서로 어색해하면서 채워지는 것을 하나의 사이드 프로젝트로 삼았다.


결혼식을 11월에 했고 그해 겨울은 추웠다. 신혼여행을 마치고 집에 돌아와 온몸에 실오라기 하나 걸치지 않은 채 온수를 켜고 온몸에 뜨거운 물을 맞을 준비를 했는데 찬물에서 따뜻한 물로 전환되는 시간이 예상보다 길었다. 나는 다세대의 온수가 데워지는 시간 동안 다 벗은 채 덜덜 떠는 일을 처음 겪고 ‘이제야 인생을 살아본다고 할 수 있겠군.’이라는 허세스러운 감정과 ‘아. 엄마보고 싶다.’ 감정이 함께 튀어나왔다.

부모님과 살아왔던 29년은 참 안온했구나. 부모님을 따라 이사를 다닐 때면 내방은 어디로 해달라고 할까 같은 생각을 했다. 깨끗하고 푹신한 수건이 공급되고 겨울에는 따뜻하고 여름에는 시원한 집이 몸에 배어있았다. 내가 살 집을 스스로 가져보는 것은(물론 종새가 계약한 집) 내 경제적 역량이 바로 나를 부양할 수준이 되는 것을 신랄하게 경험하는 일이었다.


결혼을 했지만 개인적으로는 건축학과를 졸업하고 바로 설계사무소 주니어 생활을 하던 2,000년대 중후반 20대 시절이었다. 밤 12시 이전의 귀가가 드물었다. 주말이나 휴일에는 새로운 건축물을 답사하기 위해 대부분의 시간을 밖에서 보냈다. 남은 여생도 계속 돌아다니면서 건축답사 하는 것으로 모든 휴일들을 채울 예정이었다. 집은 옷을 보관하고 두 다리 뻗고 잘 곳만 있으면 되는 삶이었다. 집에서 뭔가를 만들어 먹는 다던지 집에서의 일상적 행위들이 설익은 날들이었다.

이 집에 살던 시기 전셋집 인테리어가 포털사이트 메인페이지에 자주 올라왔다. 직접 페인트칠하고 몰딩을 붙이는 것을 신기해하며 따라 하기 시작하는 때였다. 지금은 타일줄눈도 집에서 시공하기도 하는 소위 금손이라 불리는 살림기술자들이 많아졌다. 그 당시에는 베이스로 젯소를 칠하고 그 위에 발색이 되도록 페인트를 바르는 일들은 꽤 감각적인 활동이었다. 우리는 벽에 색을 칠하고 우드블라인드를 달고 이케아 가구들로 그럴싸한 우리만의 공간을 만들었다.


다목적 룸엔 소파도 있고 책상도 있고 식탁도 있고 옷장도 있다. 식탁은 접이식으로 옷장은 창문이 있는 벽을 빼고 둘렀다. 옷을 가릴 수 있는 롤블라인드가 있는 옷장으로 방배동 가구거리에 있는 가구점에서 제작했다. 집이 좁아도 각자 작업할 책상은 있어야 한다는 게 암묵적 룰이었기 때문에 책상도 커플로 구매했고 친구들이 자주 놀러 오니까 닌텐도도 있어야 하고 식탁스툴도 몇 개 더 필요하고… 영화를 볼 때는 큰 화면이 필요하니 빔프로젝트 까지 이 모든 것이 놀랍게도 하나의 방에서 이뤄졌다. (집안에서는 아무것도 안 한다며…)

둘이 빔프로젝트를 켜고 영화를 보거나, 친구들이 와서 닌텐도게임을 하고 놀았다.

건축사시험공부 제도판 하나 피면 꽉 찰 거 같은 우리의 또 그 안방에 말이다.

특별한 날의 만찬도 잦았다. 친구들이 네다섯 명이 끼어 앉아서 한 명이 화장실 가려고 할 때 두세 명이 몸을 피해 줘야 하는데도 개표방송을 우리 집에서 함께 보았고 아는 사람의 아는 사람의 조합으로 이 사람 저 사람 자주 불러 여러 요리들을 대접했다.


나오시마 베네세하우스로 신혼여행을 다녀온 뒤 하늘색 벽에 큐브가 달려있는 벽을 집현관에 오마주 해봤다. 해놓고 나니 몹시 조악하고 형편없었다. 남편이 뒤에서 비웃었다. 내가 그렇게 될 줄 알았다며.. 자괴감과 남편의 조소에 부들부들 떨었었다.


침대는 한쪽 통로만 있어 안쪽에는 출근시간이 더 늦은 사람이 잤다. 침실에서는 정말 잠만 잤다. 침실에는 책장이 있었는데 침대에 책장이 꽉 끼어있어 맨 아래칸 책장의 책들은 꺼내기를 체념하고 살았다.

어느 날 집에 혼자 도착해 싱크대에 밥을 차리고 회사에서 명절 선물로 받은 고기를 구워 먹고 있었는데 가스검침원 분이 들어와서 내가 차려놓은 상이 사뭇 부끄러웠던 적이 있다.


집주인은 어떤 사람이었냐면 좋은 사람이었다. 임차인 입장에서 좋은 집주인이란 그저 그 집을 나올 때까지 단 한 번도 연락이 오지 않는 사람이다. 우리 집 위인 3층에 사는 집주인은 그런 분이었다. 사람에 대해서도 공간에 대해서도 5년 정도 집에 불편함을 못 느끼고 살았다. 집에 있는 시간이 적었고 처음에 이 집을 선택할 때의 필요한 것만 최소한으로 있으면 된다는 마음 때문이다.

그러다가 집에 대한 불편함이 자라나기 시작했다. 살림은 점점 나아지는데 종새의 건강이 안 좋아졌다. 나 또한 몇 년간 줄야근을 하는 설계사무소 생활에 지쳐갔다. 마음에 들지 않는 상사와 일의 불합리함, 나는 너희와는 다른 잘난 존재라는 근거 없는 우월감에 잠식당하기도 했다. 주변을 둘러싼 마음에 안 들었던 요소들을 단 하나의 결과로 수렴시켜 이곳을 떠나야 한다는 기적의 논리를 만들었다. 젊을 때 틀에 박히지 않은 일상도 한번 살아봐야 하지 않겠냐며 함께 일을 그만두게 되었다.

돌아보니 집에서도 회사에서 못 견디고 밖으로 튕겨져 나오기 직전의 시기였던 거 같다.

우리는 함께 여행을 다니기도 하고 다른 형제나 부모님 집에 가는 시간도 있었지만 단둘이 아침에 일어나 밥을 해 먹고 평일에 집에 함께 있는 일이 잦아졌다. 그럴 때마다 걸리적거리는 것이 많았다. 눈에 넣어도 안 아팠던 종새가 자주 눈에 보이는 것이 싫었고 집은 더웠다. 필요한 것만 최소한으로 살자던 계획과 달리 취미와 그에 따른 사물들은 이렇게 불어났는지 답답해졌다. 부모님이 집에 찾아와도 편안하게 앉을자리도 없다는 것이 불편하게 느껴졌다. 이사를 결정하게 되었다.


이곳에서 나는 어느 시기 까지는 차가 없어도 집이 좁아도 마음이 부유한 사람이었던 것 같다. 아무렇지 않게 집으로 사람들을 척척 불러 대접하며 밤늦은 시간까지 건축과 커리어에 대해서 이야기했었다.

그곳에서의 웃음과 슬픔과 토론과 젊음이 생각나 떠나는 것이 상상이 되지 않았다.

이 집을 내놨을 때 집을 보러 온 분들이 우리 집을 보면서 감탄하던 장면이 머릿속에서 재생된다. 벽 색깔과 블라인드와 가구 하나하나가 너무 예쁘다며 다 넘겨달라고 했다. 처치곤란했던 여러 가지를 넘기며 회심의 미소를 지었다. 테트리스 하듯 채워 넣은 가구처럼 촘촘하게 살았던 시절이었다.


keyword