8. 파격(破格). 고정관념을 깨자
첫 도면을 보곤 마냥 좋았다. 이 정도면 너무 괜찮은데? 우리가 요구한건 다 담긴게 아닌가? 라며 아내에게 시선을 돌린 순간 내 입가에 번진 미소는 순식간에 사라졌다. 아내는 기대 이하랬다. 1층에 너무 많은걸 욱여넣다 보니 각각의 공간이 작아졌고, 불필요한 동선과 버릴 공간도 많다고 했다. 그리고 무엇보다, 아파트 평면도와 다를게 없다 했다. 아내가 원하는 걸 해야 집안에 평화가 깃드는 법. 나는 입을 다물고 고개를 끄덕였다.
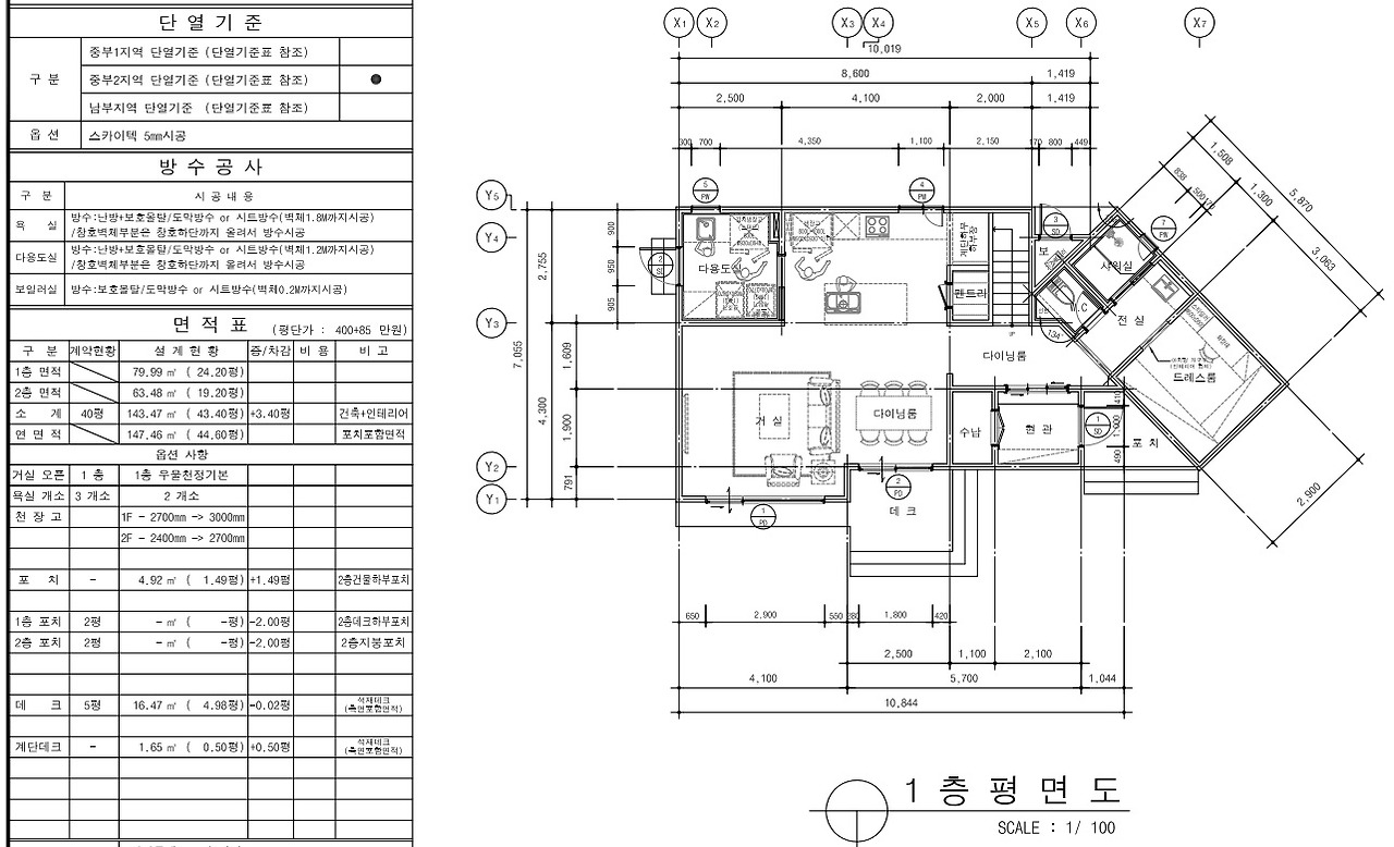
아내는 거실과 주방이 분리되길 원했다. 음식을 하며 발생하는 냄새들이 거실로 들어가길 원치 않았다. 또한 거실에 앉았을 때 잡다한 주방 식기가 안보였으면 했다.
나는 주방엔 눈곱만큼도 관심이 없었다. 내가 원하는건 딱 세 가지. 하나는 현관에 손 씻는 세면대가 있을 것, 두 번째는 빔을 쏠 수 있는 커다란 벽, 마지막으로 세 번째는 다락방이었다. 특히 다락방에 올라가는 계단은 평소에는 책장으로 가려져 있고, 책장을 열어젖히면 비밀 계단이 나오는, 그런 모험심 가득한 비밀의 방으로 만들고 싶었다.
첫 번째와 두 번째는 아내도 마음에 들어 했다. 문제는 세 번째, 다락방이었다. 아내는 다락방을 만들면 얼마나 올라갈 것 같냐며 반대했고, 나는 아이의 모험심과 개인공간을 만들어주기 위해서라도 다락방이 있어야 한다 주장했다. 결국.. 이라기보단 정해진 미래였지만 승자는 아내였고 다락방은 우리의 계획에서 지워졌다. 또한 첫 번째 꿈이었던 현관 앞 세면대 역시 건축 비용 문제로 삭제되었다.
2차 수정 도면은 약간의 꺾임이 있는 구조였다. 설계사는 꺾이는 부분에 주방을 넣어놨는데 아내도 이 구조를 마음에 들어했다. 그런데 오히려 난 뭔가 마음에 걸리는 부분이 있었다. 그 찝찝함은 아이였다. 이제 막 태어난 아이는 새 집에 이사 갈 때 즈음엔 두 살이 되었을 터. 대부분의 놀잇감이 몰려있을 거실과 완전히 분리된 주방이라면, 아이의 동선에 시선이 닿지 않는다. 그래서 거실과 주방의 완전한 분리도 취소되었다.
돌이켜보니 살아오며 단 한 번도 내가 살고 싶은 집을 생각해 본 적이 없다. 국내의 아파트들은 대부분 판상형과 타워형으로 짓고, 많은 사람들이 그런 형태에서 살아왔기에 이걸 가장 편하게 여긴다.
그런데 문득 이런 생각이 들었다. 이 또한 세뇌가 아닐까? 국내 건설사들은 최소 비용으로 최대 효과를 내며, 동시에 동일한 디자인 안에서 최대한 많은 사람들이 만족할 수 있도록 해야 한다. 그렇기에 개인 혹은 가족의 생활 방식이 반영된 것이라기보단, 건설사의 이익과 대한민국 가구의 평균 취향이 반영된 디자인일 것이다. 그러다 보니 단독주택 설계도면 역시 일반적인 아파트의 평면을 기본으로 택한다. 허나, 주택이야말로 가족의 생활방식을 가장 잘 녹일 수 있는 공간이다. 그래서 우리는 과감한 구조변경을 시작했다.
설계를 하며 정말 많은 도면을 봤지만 1층에 방이 하나씩은 꼭 있었다. 그것도 대부분 안방으로. 그런데 신혼집에 살며 알게 된건, 안방은 정말 들어갈 일이 없다는 것이다. 특히 우리처럼 어린아이가 있다면 대부분의 생활을 거실에서 하며, 안방은 잘 때 빼고 들어가지 않았다.
반면, 드레스룸은 정말 자주 왔다 갔다 했다. 최소 하루 4번은 들락거렸다. 그런데 대부분의 아파트들은 안방 옆에 드레스룸이 붙어있다. 이전까진 이걸 이상하게 생각 안 했다. 코로나 시기여서 그랬는지 옷을 벗어놓는 드레스룸이 잠자는 공간을 거쳐야만 갈 수 있다는게 의문이었다. 아내와 깊은 이야기를 나눴다. 우리가 편하면 되는거 아니냐고. 결국 우리의 1층에는 방을 넣지 않았다. 대신 드레스룸만 넣었다. 2차 수정도면에서 주방이 있던 꺾이는 공간에 드레스 룸을 넣고 바로 앞에 전실과 샤워실을 넣었다. 손님이 온다면 현관에서 중문을 거쳐 들어온 후 바로 우회전을 하여 손을 씻을 수 있는 구조, 집에 오면 바로 옷을 벗고 샤워를 하고 나올 수 있는 구조를 만들었다.
거실과 주방의 분리는 적정선에서 타협했다. 거실을 왼쪽 끝으로 빼고 소파를 사이에 두어 다이닝과 분리를 시도했다. 주방은 거실의 오른쪽 뒤편에 배치하여 거실에서 식기 등 모습이 최대한 보이지 않도록 했다.
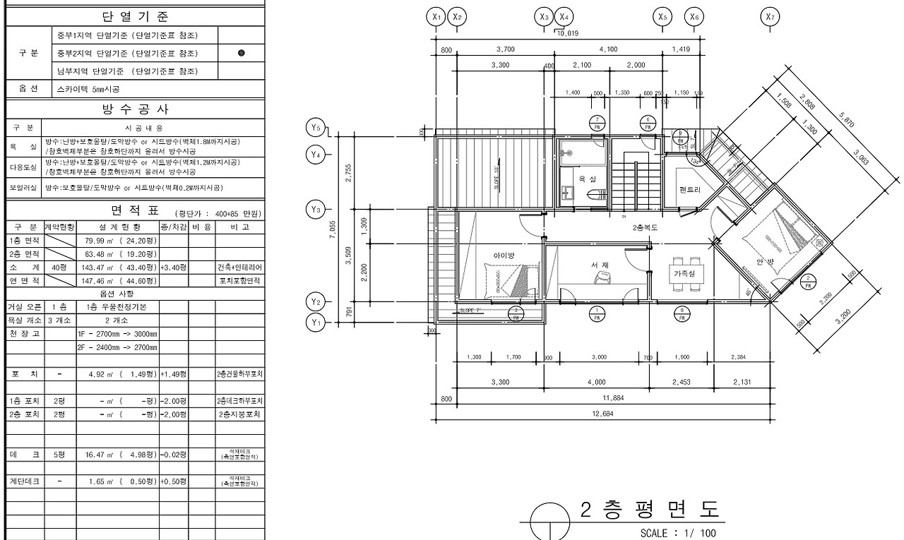
2층에는 방 3개를 넣었다. 그리고 아주 작은 가족실을 만들어서 2층에서도 온 가족이 모일 수 있는 공간을 구성했다. 가족실 창가에는 윈도우시트를 두고 독서하고픈 로망이 있었다. 다만 건축법상 바닥에서 특정 길이 이하로 창을 낼 경우 외부에 반드시 난간을 달아야 한다. 이런 장애물 싫다면 열리지 않는 통창으로 시공해야 해서 통창을 택했다.
아이 하나인 가족이지만 양가 부모님이나 손님이 올 경우를 대비해 평상시는 서재로 쓰고, 손님이 왔을 땐 잘 수 있는 방을 만들었다. 아이 방은 가장 큰 사이즈를 택했다. 내가 꼭 만들어주고 싶은게 있어서다. 반면, 안방은 가장 작은 크기로 만들었다. 앞서 말한 것처럼, 안방엔 잘 때 빼곤 들어갈 일이 없었기 때문이다. 킹사이즈 침대 하나와 협탁 하나가 들어가면 꽉 차는 사이즈. 아내는 자는 방은 아늑해야 한다고 했다. 모든 방을 2층에 넣으니 프라이빗함은 배가 되었다.
주택을 짓는 많은 이들이 1층 천장은 뻥 뚫린 오픈천장을 택한다. 그런데 우린 난방비를 고려하여 오픈천장은 하지 않기로 했다. 대신 천장 층고를 기본보다 높였다(물론 추가금이 있다). 기본이 1층 2.7, 2층 2.4였는데 시스템 에어컨을 하면 20~30센치 정도 단이 내려온다고 했다. 그래서 1층과 2층 모두 평당 10만원을 추가하여 30센치를 높였다. 최종 천장 높이는 1층 우물천장 부분은 2.97, 그외는 2.73, 2층은 2.53 정도였다. 확실히 층고가 높으니 답답함은 덜했다.
이렇게 세부적인 수정을 하며 약 8개월의 시간이 흘렀다. 9월에 최종 도면이 나왔고, 우리는 무리 없이 이 도면으로 착공 신청을 했다.
모든게 잘 풀리는 것 같았다. 그런데 예상치 못한 문제가 발생했다. 바로 땅이었다.