나는 오늘 서울을 떠난다

9. 집 지으며 가장 신경 쓴 것

by 씨티훈

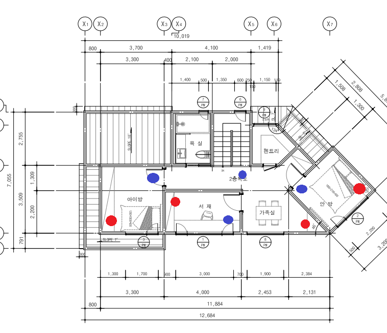
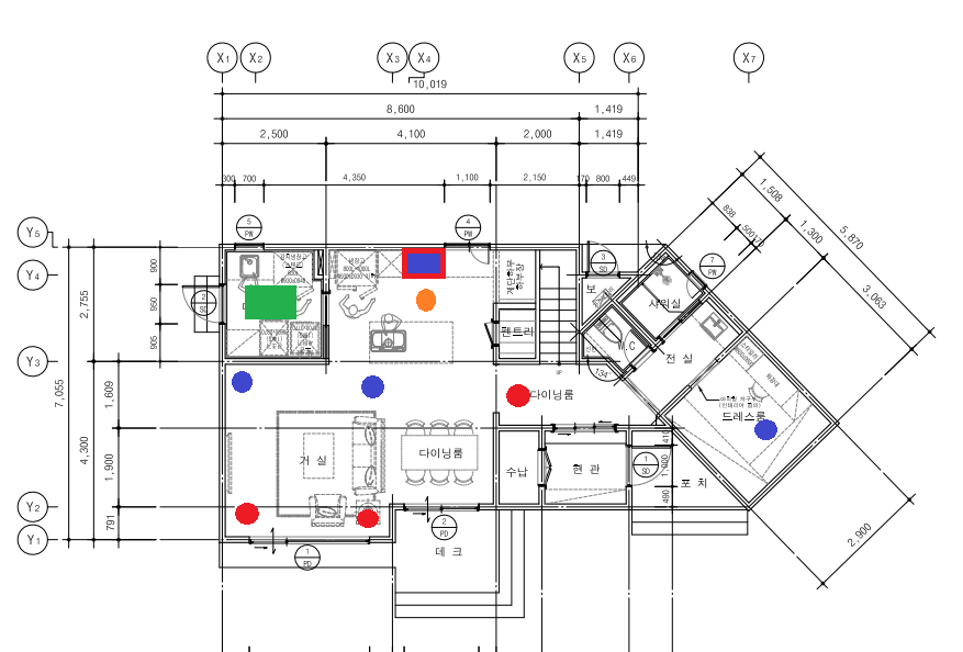
설계와 동시에 시스템 에어컨과 열회수환기장치를 알아보았다.


보통 시스템 에어컨은 아파트 분양 시 옵션으로 선택할 수 있고 알아서 공사를 해주니 어려울게 없다. 그러나 주택을 건축할 땐 시스템 에어컨을 넣는 장소도 건축주가 지정해야 하고, 목조주택이라면 해당 위치에 보강공사도 해야 한다. 처음엔 '대체 시스템 에어컨은 어디서 누가 설치해주나' 싶었다. 국내 가전을 대표하는 두 업체의 홈페이지에 들어가니 시스템 에어컨을 설치하는 공식 업체 리스트가 있었다. 그중 주택을 짓는 지역에 위치한 업체 위주로 연락해 봤다. 무슨무슨 공조, 무슨무슨 시스템 이런 이름이 시스템 에어컨을 설치하는 업체들이다.


방마다 에어컨을 다느냐(거실 2개, 방 3개), 필요한 곳에만 다느냐(거실 1개, 방 2개)가 고민이었다. 예산은 250 정도 차이 났다. 업체 쪽에선 1층 거실과 부엌에 각각 한 대씩 매립하는걸 제안했는데 우린 그렇게까지 많은 에어컨이 필요할까 싶었다. 또한 신혼집에서 두 번의 여름을 겪어보니 안방에 에어컨을 트는 경우가 많지 않았다. 그래서 안방엔 실링팬만 넣고 에어컨은 안 넣기로 했다. 결국 전체 3개로 선택했는데, 이는 단독주택 2층의 더위를 만만히 본 우리의 실책이었다.



2010년대부터 지어진 아파트에는 열회수환기장치를 의무로 설치해야 한다. 그런데 아직까진 많은 사람들이 전열교환기라고도 불리는 열회수환기장치의 위대함을 잘 모르고 있다.


나 역시 신축 아파트에 살고 있다 보니 열회수환기장치 본체가 안방 옆 대피공간 천장에 설치되어 있었다. 다만 그걸 틀어본 적은 손에 꼽을 정도였다. 우선 소음이 너무 심했고, 트나 안트나 차이가 없을 정도로 성능이 좋지 않았다. 열회수 환기장치는 제품명 환기 시 여름에는 에어컨 냉기, 겨울에는 난방의 훈기가 빠져나가는 것을 장치를 통해 일정 부분 회수한다. 그런데 이것도 제대로 설계하고, 좋은 제품을 써야지 그게 아니라면 효과가 전혀 없다.


집 설계 시 향과 더불어 단열에 신경 썼다. 시공사와 계약할 때도 창호만큼은 가장 좋은걸 쓰고 싶다고 말했다. 선택한 창호는 독일식 S 창호였다. 창호 집착은 일종의 트라우마 같은거였다. 신혼집이 신축이었음에도 불구하고, 겨울에는 결로가 어마어마했다. 매일 아침 일어나면 수건 두장이 푹 젖을 정도로 집안 모든 창문이 물바다였고, 아무리 닦아도 첫겨울을 난 후 창틀엔 곰팡이가 생겼다.


난 이때도, 그리고 지금도 결로는 백 프로 하자라고 주장한다. 그러나 아파트 커뮤니티에 결로에 관해 글을 올리면 하자가 아니다, 창을 열고 환기를 안 시켜서 결로가 생기는 거다 란 소리만 들려왔다. 나 외에도 결로가 하자임을 과학적으로 설명하는 주민들도 있었지만, 부동산 공화국인 대한민국에서 아파트 하자를 주장한다는 건 집값을 떨어트리고자 하는 전세입자의 농간 그 이상도 이하도 아닌 취급을 받았다.


결로가 하자로 발생한다는 건 지극히 당연한 상식이다. 창을 열면 외부의 찬 공기가 집안 내부로 들어오며 집 내부의 온도가 떨어져 외부와의 온도차가 줄어드니 결로가 사라질(혹은 마를) 뿐이다. 잘 지은 집이란 결국 단열이 잘되는 집이다. 단열이 잘된다 함은 여름에 에어컨을, 겨울에 난방을 틀었을 때 시원해진 혹은 뜨거워진 공기가 외부로 빠져나가지 않는다는 것이다. 외부와의 공기 교환을 잘 차단한다면 결로는 생기지 않는다. 이걸 '기밀이 잘되었다'라고 한다. 그런데 여기서 문제가 생긴다. 외부와의 공기가 완벽히 차단되면 내부의 공기는 그만큼 탁해지지 않을까? 이산화탄소가 증가하면 어지럽지 않을까? 열회수환기장치는 여기서 등장한다.


환기장치를 통해 외부의 공기가 들어오고, 내부의 공기는 배출된다. 배출된 공기 중 일정량의 열기 혹은 냉기는 잡아두어 에너지 효율성을 증대시킨다. 흡입구와 배출구도 아무렇게 설치하면 되는 것이 아니라 설계 당시부터 별도로 반영하여 위치를 잡아야 한다. 아무데나 설치하면 공기압의 영향으로 배출과 흡입이 엉킬 수도 있기 때문이다.


국내에는 열회수환기장치를 만드는 대기업이 딱 하나 있다. 해외에선 꽤나 대중화된 장치인데 우리나란 아직까지 아니어서 많은 기업들이 뛰어들진 않았고 중소기업 제품이 많다. 신혼집에 설치된 제품도 처음 보는 회사 제품이었다. 해외 직수입 제품을 쓰자니 가격도 가격이지만, 향후 as 발생 시 처리가 어려울 것 같았다. 열회수환기장치만 전문으로 설치하는 업체를 알게 되었고, 설계도면이 완성되자마자 의뢰했다. 내가 집 지으며 가장 잘한 선택이었다. 365일, 24시간 내내 틀어도 한 달 전기료가 1만 원 이하로 나온다.




keyword
이전 09화나는 오늘 서울을 떠난다