#10 실속을 챙겨라! 클래식 단층 38평 전원주택

#10 목조 클래식 스타일 단층 38평 전원주택 설계제안

by 이동혁 건축가

#10 목조 클래식 스타일 단층 38평 전원주택 설계제안


출발


안녕하세요. 이동혁 건축가 입니다.^^

벌써 10번째 설계 기획안을 보여드리게 되었네요. 첫 설계 기획안을 보여드릴 때에는 언제 10개를 만들어내나 하고 한숨부터 쉬었던 기억이 있는데 역시 부지런하게 하면 목표는 달성되나 봅니다.^^

오늘 이야기 드릴 전원주택 설계 기획안의 테마는 '실속'입니다. 집을 지을 때 비용도 생각해야 하고 공간도 생각해야 하고, 외형도 생각해야 하고... 모든 것이 고민과 걱정뿐이실 겁니다.

그래서 이번 설계안은 어떻게하면 가장 합리적인 비용으로 건축주님들이 원하는 옵션과 요소들을 넣어 구현시킬 수 있을까 하는 물음에서 시작되었다고 할 수 있습니다.

궁금하시죠? 자 어떻게 실현시켰는지 같이 살펴보도록 하겠습니다.^^

출발합니다.~^^

*읽고 난 다음에는 위의 하트모양 라이킷과 공유 꾹 눌러주세용~^^


1510-인천주택.jpg

HOUSE PLAN

연면적 : 125.18㎡

1층 : 125.18㎡(37.8평)

총괄 건축가 : 이동혁, 임성재, 정다운

설계·시공 : 홈트리오(주) 1522-4279

Homepage : http://hometrio.kr

이동혁건축가TV : http://tv.naver.com/sunsutu1

예상 총 건축비 : 189,330,000원(부가세포함)

설계비 및 인허가비 : 9,500,000원(부가세포함)

*건축비 외 부대비용 : https://brunch.co.kr/@sunsutu/96 참고


SPEC

공법 : 기초-철근콘크리트 / 1층구조-경량목구조

지붕마감재 : 아스팔트슁글

외벽마감재 : 스타코플렉스

외벽포인트자재 : 파벽돌, eps몰딩

실내벽마감재 : 실크벽지

실내바닥마감재 : 강마루

창호재 : 융기 3중 시스템창호

단열재 : 외부벽체(Glasswool Insulation R21HD-15" 나등급)

▷크나우프社 ECOBATT (ECOSE® 특허)

▷HD:저에너지 하우스용 / 15인치(381mm) *동등 제품

: 내부벽체(Glasswool Insulation R19-15" 다등급)

: 천장(Glasswool Insulation R30-15" 다등급)

: 지붕(Glasswool Insulation R37-23" 가등급) ▷ISOVER社에너지세이버

*단열기준은 2016년 7월1일자로 변경되는 단열기준법을 적용하여 강화시켜 놓았습니다.


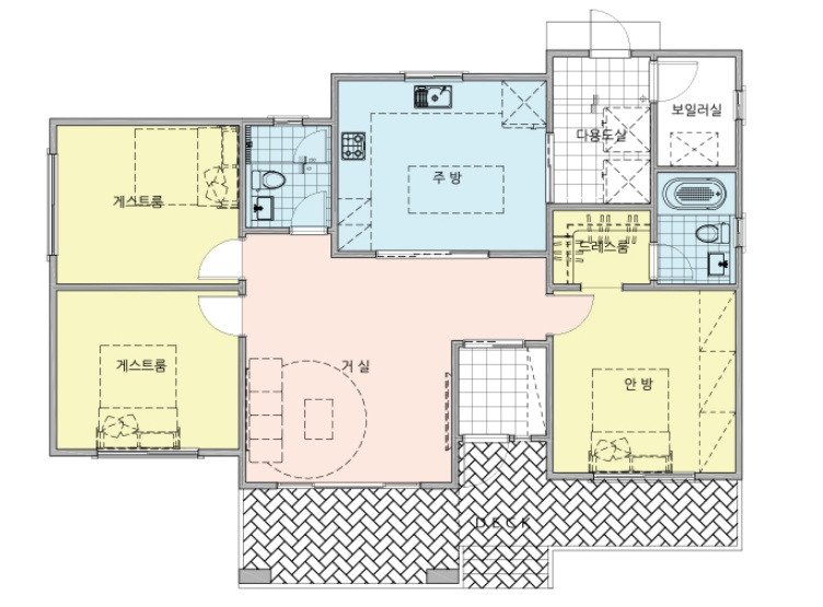
dlhousing_com_20160306_001028.jpg 1층 평면도


Q.설계 방향에 대해 설명해주세요.

이번 설계는 '실속성' 이라는 키워드로 진행된 프로젝트입니다.

정말로 많은 분들이 원하는 넓은 공간과 높은 천장, 그리고 심플한 외관 디자인. 이 삼박자가 갖추어진 모델이라 할 수 있습니다. (너무 자랑하는 거 같지요?ㅠㅠ 조금씩 자재하겠습니다. 꾸벅 ㅡ ㅡ;;)

넓은 공간을 확보하기 위해 데크스페이스를 과감히 없애고 단층으로 구성하여 이동하는 공간에 대한 부분까지도 제약을 가했습니다. 단층으로 구성하되 거실과 주방을 50평 아파트의 공간과 비슷하게 구성하였으며, 다용도실과 보일러실까지 별도로 구성하여 준공 후 외부 벽을 달아내는 듯한 불법적인 행위를 하지 않아도 되게 계획하였습니다.

방은 총 3개로 구성하였으며, 별도의 화장실과 드레스룸도 같이 계획하여 주었습니다.

건축비가 가장 많이 소요되는 부분중의 하나가 외장재 부분입니다. 외장은 스타코플렉스로 정갈하게 마감을 유도하였으며, 박공지붕에 어두운 계열의 아스팔트슁글을 사용하여 집의 분위기를 가볍지 않고 무게감있게 보여줄 수 있도록 하였습니다.


Q.면적은 얼마나 되는가요?

1층으로 구성하였으며, 125.18㎡(37.8평)으로 구성하였습니다. 가장 많이 찾는 35~40평 사이 평수로 계획을 하였으며, 화장실 두 개에 드레스룸, 보일러실 까지 빠짐없이 구성하였습니다.


Q.비용은 얼마가 들었나요?

총 189,330,000원(부가세포함)이 소요될 것으로 판단됩니다. 평당단가로 나눈다면 평당 498만원(부가세포함)이 되어질 것입니다. 오픈천장 및 석재데크, 외부 포인트 및 인테리어부분, 창호까지 포함 가격이기 때문에 조금 높게 보일 수도 있지만 최종 부가세까지포함 된 '완공'금액이니 참고하시면 될 것 같습니다.^^


Q.디자인 컨셉에 대해 설명해주세요?

이번 주택의 디자인 컨셉은 외부 포인트를 최소화 하자였습니다. 아무리 인테리어나 매스디자인에서 돈을 아낀다고 하여도 외장재를 너무 고가로 사용하게 되면 배보다 배꼽이 큰 사태가 발생하기 때문입니다.

실속을 챙기자라는 테마를 기준으로 외부는 최대한 깔끔하게 스타코플렉스만을 사용하여 입면처리를 하였고 대신 심심해 보일 수 있는 입면 디자인을 보강하기 위해 박공지붕을 과감히 도입하고 포치 및 지붕면을 정면에서 최대한 보이게 디자인하여 결코 심심해 보이지 않는 외관을 만들어 내었습니다.


Q.땅은 몇 평 정도 있어야 적당할까요?

위 집으 경우 1층 바닥평수만 약 38평이 되어집니다. 이정도 규모의 집을 앉히고 앞마당을 사용하고자 한다면 최소 평수는 80평 이상이 되어야 주차장을 놓더라도 조금의 마당공간을 확보하실 수 있으실 것입니다.^^


Q.주방과 거실을 분리한 것이 눈에 띄는데 그렇게 한 이유가 있나요?

최근의 전원주택 설계 트랜드를 보면 거실과 주방을 1자로 오픈하는 경우가 많습니다. 이는 작은 공간안에서 넓은 오픈스페이스 효과를 누리기 위해 적용된 기법인데요. 저도 이렇게 일자형이나 가로형으로 오픈된 공간으로 거실과 주방을 많이 설계하였었습니다.

하지만 이렇게 설계하다보니 거실의 소음이 고스란히 주방쪽으로 넘어오는 문제가 발생되어졌습니다. 거실은 남자의 공간이라면 주방은 온전히 여자의 공간이라 할 수 있습니다.

보통 1층과 2층을 나눈다면 각 층별로 각자 독립적인 프라이버시를 지킬 수 있는 공간이 발생되지만 이번 주택의 경우 단층이어서 1층에서 별도의 프라이버시가 보전 가능한 공간을 만들어야만 했습니다.


Q.이번 주택에 적용된 석재데크는 얼마정도 하나요?

요즘에는 관리적인 요소때문에 목재데크보다는 블록이나 타일로 마감하는 석재데크가 유행하고 있습니다. 유행한다는 것은 그만큼 많은 분들이 석재데크의 장점을 알고계시다는 것을 뜻하겠지요. 목재데크가 평균 기초비와 시공비를 합쳐 평당 70만원에 형성되어있는 반면에 석재데크의 경우 평당 110만원 정도에 형성되어져 있습니다. 물론 기초공사비가 포함이며, 한번 시공해 놓으면 유지관리가 별도로 들지 않아 분명 편리한 부분이 있습니다.

다만 초반 공사비가 들어가는면이 있어 금액데크 효율성을 잘 따져보아 시공을 하시길 바라겠습니다.^^


Q.마지막 총평을 한다면?

원하는 요소를 모두 넣고 금액을 적게 산출하는 것은 참 어려운 일인것 같습니다. ㅠㅠ

시간이 지나면 지날수록 건축주님들의 눈은 높아지고 자재들은 고급화 되어지고... 조금씩 양보하면 참 좋은 집을 지을 수 있을텐데 갈수록 높아만 가는 건축비에 건축인의 한 사람으로서 많이 가슴이 아픕니다.

이번 주택은 많은 옵션과 요소들을 가지고 가면서 어떻게하면 좀 더 저렴하게 집을 디자인할 수 있을까? 라는 물음에서 시작되었습니다.

물론 이번 기획설계안만으로 모든 것을 해결하기는 어렵겠지만 앞으로 남은 기획설계안에서 더욱 더 발전있는 기획안을 만들어 내도록 하겠습니다.^^


도착


이번 설계 기획안 어떠셨나요?

원하시는 모델이 나오시지 않아 불만족하셨던 분들도 계실 것이고 생각지도 못한 기획안이 나와 '아! 이렇게도 공간을 그려낼 수 있구나.' 라고 생각하신 분들도 계실 것입니다.^^

평균적으로 집을 2층으로 올리기 위해서는 34평 정도의 공간이 필수적입니다. 2층을 구성하기 위해서 소요되는 복도, 계단실 면적이 방 한개 면적만큼 크기 때문입니다. 어설프게 2층을 올릴바에는 지금처럼 넓은 공간을 단층으로 가지고 가되 거실부분을 1.5층 오픈하여 짓는 것도 한 방법이라고 할 수 있습니다.^^

어제 어떤분이 공사비에 대해 문의를 주셨는데요. "이렇게 금액을 오픈해도 되나요?" 라고 물으셨더라구요. 위에 제가 제시한 금액은 저희 기준대로 산출된 완공 금액이랍니다.^^ 어떤분들이 보았을 때는 비싸보일 수도 있겠지만 금액을 자신있게 공개한 것은 그만큼 금액에 장난치지 않고 투명하게 운영한다는 나름대로의 자부심이 있어서였던 것 같습니다.^^

(금액은 브랜드보다는 분명 저렴하며, 지역의 업체보다는 살짝 높은 중간에 걸쳐져 있다고 생각합니다.)

이번주도 벌써 주말을 향해 달려가고 있습니다.

모든 구독자분들 다들 힘내시구요. 항상 좋은 일만 가득하길 제가 바라겠습니다.

감사합니다.^^

*읽고 난 다음에는 위의 하트모양 라이킷과 공유 꾹 눌러주세용~^^


KakaoTalk_20160226_124302788.jpg (좌측부터) 정다운 건축가, 이동혁 건축가, 임성재 건축가

총괄 건축가 : 이동혁, 임성재, 정다운

설계·시공 : 홈트리오(주) 1522-4279

Homepage : http://hometrio.kr

이동혁건축가TV : http://tv.naver.com/sunsutu1

[집이라는 본질적인 가치에 집중하다.]


글쓴이 : 이동혁 건축가

이메일 : sunsutu@hanmail.net

홈페이지 : http://hometrio.modoo.at/


상담 및 자문

이동혁 건축가 : 010-4567-8413

정다운 건축가 : 010-8560-0477

임성재 건축가 : 010-9941-8899



keyword