brunch

12. C.../12.6 깨끗함 'PURE-N'(38평

12.6 깨끗함 'PURE-N'(38평)

by 이동혁 건축가

순서대로 읽다 보면 완성되는 나의 집

꿈꾸던 전원주택을 짓다

글쓴이 : 이동혁


12. CASE STUDY(사례 검토 편)


12.6 깨끗함 'PURE-N'(38평)


"전원에 짓는다고 해서 꼭 모양이 시골집이어야 하나요? 깨끗하고 청초한 느낌의 집을 앉히고 싶었어요."


바라만 보고 있어도 기분 좋은 집. 집이란 나에게 있어 그런 존재이다. 시골 한적한 마을에 집을 짓는다고 했을 때 모든 사람들이 주변과 맞춰지어야 한다고 했다. 나는 그런 것이 싫었다. 전원에 짓는다고 해서 꼭 시골집처럼 짓는다는 고정관념을 깨고 싶었다. 화이트 외벽에 모던한 느낌이 느껴지는 외관. 모르는 사람에게 이야기해도 저 집이 우리 집임을 알 수 있는 그런 집. 깨끗한 느낌과 무언가 청초한 느낌마저 들게 하는 집. 그 집이 바로 우리 집이다.


HOUSE PLAN

연면적 : 126.51㎡

1층 : 67.00㎡

2층 : 59.51㎡

규모 : 지상 2층

예상 총 건축비 : 210,000,000원(부가세 포함)

설계비 및 인허가비 : 9,500,000(부가세 포함)


SPEC

공법 : 기초-철근콘크리트 / 1층, 2층 구조-경량 목구조

지붕마감재 : 아스팔트 슁글

외벽 마감재 : 테라코트 플렉시텍스

외벽 포인트 자재 : 파벽돌, 리얼징크

실내 벽 마감재 : 실크벽지

실내 바닥마감재 : 강마루

창호재 : 융기 3중 시스템창호

단열재 : 외부벽체(Glasswool Insulation R21HD-15" 나 등급)

: 내부 벽체(Glasswool Insulation R19-15" 다등급)

: 천장(Glasswool Insulation R30-15" 다등급)

: 지붕(Glasswool Insulation R37-23" 가등급)


■ PROJECT STORY

경기 여주의 바람소리마저 여유롭게 지나가는 그곳. 바로 그러한 마을에 지어진 집이다. 주변의 집들은 벽돌이나 기와 같이 그동안 시골에서 볼 수 있었던 마감 자재들을 주로 사용해 집을 지었다. 나에게 집을 의뢰해주신 건축주는 일반적인 시골집이 아닌 모던하면서 무언가 깔끔한 느낌을 받을 수 있는 집을 요청하셨다.

솔직히 시골에 집을 설계할 때 많은 망설임을 가진다. 주변과 맞출 것인가? 아니면 완전히 새로운 느낌으로 집을 탄생시킬 것인가?

이 마을은 점점 새로운 집들이 들어서고 있는 곳이었다. 과감하게 새로운 느낌의 집을 앉히기로 하였고 모던하면서 군더더기 없이 깔끔한 선이 매력적인 집을 설계하게 되었다.

하얀 외벽이 더욱 청초한 빛을 발하는 집. 이번 집은 바로 이러한 깨끗하고 청초한 느낌이 물씬 느껴지는 그러한 집이라 할 수 있다.


0.1층평면도.jpg 1층 평면도

개인적으로 좋아하는 동선으로 거실과 주방을 구성하였다. 30평대 주택에서는 가급적이면 오픈공간을 만들기 위해 벽을 쳐서 공간을 구획하는 것보다는 오픈시켜주는 것이 훨씬 이득이다. 현관을 통해 집에 들어오면 가장 먼저 마주하는 것이 거실과 주방에 이르기까지 뻥 뚫린 오픈스페이스 공간이다. 아마 이 공간을 보고 있노라면 이 집이 30평형대 집이라고는 생각이 들지 않을 것이다.


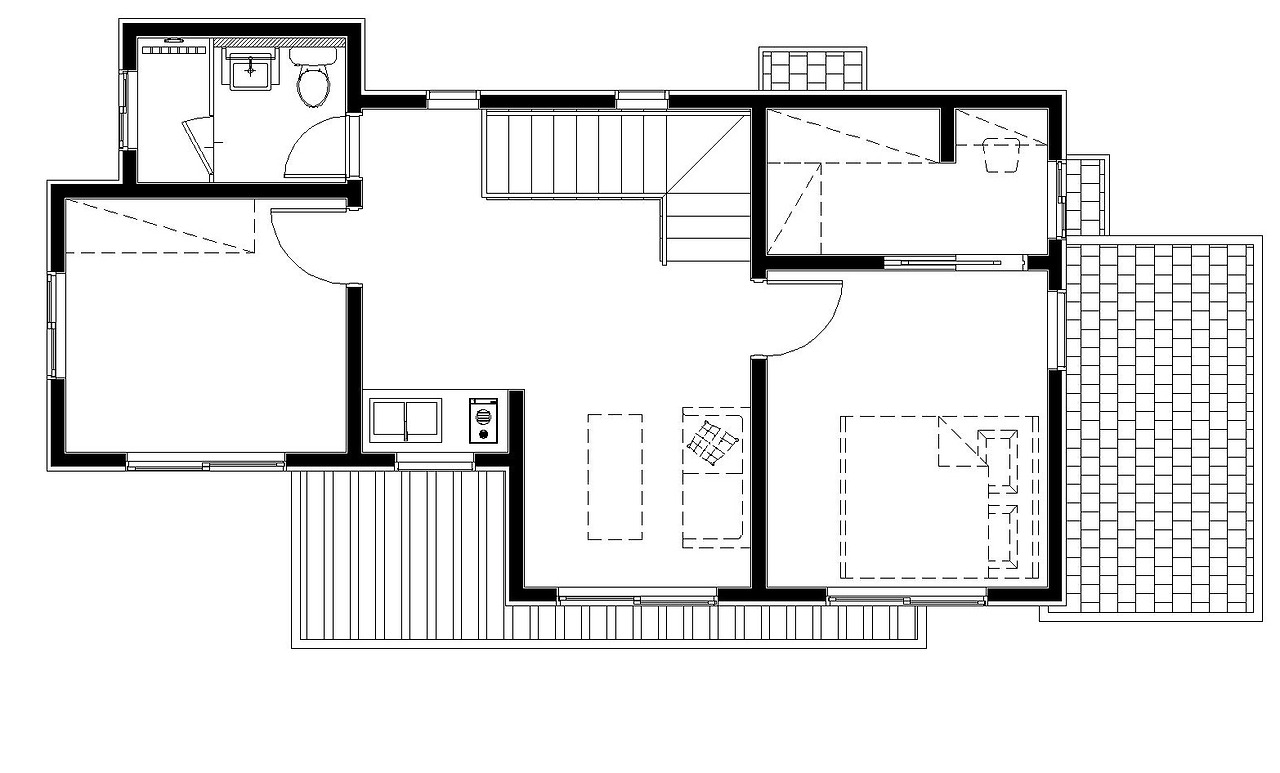
0.2층평면도.jpg 2층 평면도

'ㄱ'자형 계단을 통해 올라오면 간단한 차를 마실 수 있는 간이 주방이 있고 혼자만의 사색에 잠길 수 있는 2인용 소파가 배치되어 있다. 그곳에 앉아 흘러가는 바람을 창을 통해 보고 있으면 그 자체가 나에게 있어 힐링이 된다.


① 별도의 울타리 없이 낮은 식재를 통해 경계선을 확보하였다. 깔끔한 느낌의 집 외관과 더불어 마치 자연 속에 앉힌 집처럼 느껴진다.

1.jpg


② 화이트 외벽은 그 자체로 빛을 발한다. 회색 지붕과 조화가 가장 잘 이루어지며, 박공지붕이 아닌 경사지붕을 통해 집의 모던함을 더욱 부각할 수 있게 하였다. 현관 앞 포치의 공간도 획일적으로 디자인하기보다는 거실부터 이어지는 선을 자연스럽게 지붕선과 이어주게 하였고 마감을 징크로 사용하여 좀 더 세련되고 시크한 이미지를 입혀주었다.

2.jpg


③ 강마루와 회색빛 아트월의 조화. 거기에 깔끔함이 느껴지는 매립등. 창은 전창 3중 시스템창호를 사용해 단열을 강화해 두었고 2중 단열 적용으로 겨울에도 항상 따뜻함을 유지할 수 있다.

3.jpg


④ 브라운톤의 주방. 모던한 느낌으로 디자인하되 레일등과 식탁 포인트 등을 사용해 단조로울 수 있는 주방 공간에 생동감을 불어넣었다. 창을 정면부와 우측에 크게 내어 답답함 자체를 없애주었다.

4.jpg


⑤ 항상 환한 방. 방은 그렇게 밝은 곳이어야 한다. 무언가를 많이 놓기보다는 비워둠의 미학을 실천하는 곳. 책꽂이 스타일의 가벽을 통해 자연스럽게 드레스룸과의 공간 분리를 이루어냈다.

5.jpg


⑥ 아이의 작은방. 큰 창으로 보이는 외부 전경은 공부에 지친 아이의 심신을 어루만져준다.

6.jpg


⑦ 1층의 게스트룸. 깔끔한 붙박이장과 군더더기 없는 공간 인테리어. 창을 통해 들어오는 햇살과 녹빛의 자연은 그 자체로도 이 방의 매력을 증가시킨다.

7.jpg


⑧ 아파트형 욕실 인테리어 적용으로 아파트 생활에 적응되어 있는 건축주의 라이프스타일에 불편함이 없도록 했다. 샤워부스 설치로 욕실 내부에서도 공간 분리를 이루어 냈으며, 난방 배관을 모두 깔아 항상 건조하고 뽀송뽀송한 느낌으로 욕실을 사용할 수 있게 하였다.

8.jpg


⑨ 오픈스페이스가 된 계단실. 보통은 계단실 밑을 창고로 사용하다 보니 항상 막혀있는 공간으로 구성되었었는데 이번 주택의 경우 어두운 느낌 자체를 없애기 위해 과감하게 계단을 오픈시켰다. 거기에 더해 큰 창을 계단 옆면에 배치하여 항상 밝은 느낌을 계단에 불어넣어주었다.

9.jpg


⑩ 젊은 건축주 취향 저격 현관. 블랙톤의 망입 3중 연동도어 설치로 시크하면서 세련된 젊은 느낌이 드는 현관이다. 아트월을 거실에서 끝내지 않고 현관 부분까지 끌고 와 더욱 유니크함을 더했다.

10.jpg


⑪ 월넛 재질을 사용하여 집의 무게감을 잡아주는 역할을 한다. 계단 자체가 하나의 포인트라 할 수 있다.

11.jpg


⑫ 2층의 가족실. 항상 모여있는 것만이 좋은 것은 아니다. 가끔은 나만이 혼자 가지는 시간이 필요하다. 이 공간이 바로 나만의 사색을 즐길 수 있는 공간이라 할 수 있다.

12.jpg


■ 프로젝트를 마치며,

집을 설계하고 지을 때마다 항상 많은 생각이 든다. 과연 어떠한 집을 설계해야 건축주가 생활하기에 편하고 부담이 없을까? 집이란 항상 말하듯 이 공간을 사용하는 사람마다 취향과 라이프스타일이 다르기 때문에 정답을 정확히 이야기하기 어려운 매개체이다.

그럼에도 불구하고 나에게 의뢰한 건축주에게 최대한 맞춘 당신만을 위한 집을 만들고자 노력한다.

나는 젊은 건축가이다. 아직까지는 실용성과 가성비 높은 디자인이 더 마음에 끌린다. 좀 더 비우고 절제하며, 미니멀하게 만들어 가는 것. 욕심보다는 내려놓음의 미학을 더 중요하게 생각한다.

이번 프로젝트는 어찌 보면 이러한 나의 건축적 철학이 담겨서 탄생한 것 같다. 비우고 덜어내고 내려놓는다는 것. 여러분들도 집을 지을 때 너무 과하게만 지을 것이 아니라 조금은 덜 채우면서 집을 디자인하는 것도 괜찮은 방법일 것이다.


0.설계투시도.jpg 설계투시도


keyword