집이 아닌 공간을 짓기로 했다

와랑스튜디오의 탄생

by 애들 빙자 여행러

그냥 포기하려고 했다.


수년간 할까 말까 마음만 졸이던 마음의 짐을 내려놓으니 한껏 가벼워진 것도 같았지만 마음 한 편은 아쉬움이 밀려오긴 했다. 몇 달 정도가 지나 찬바람 불 때였는데 아침에 대장에게 전화가 왔다.


“형님, 건축허가 내시랍니다. 내시면 됩니다!”


어리둥절했다. 이건 또 무슨 소리인지. 자초지종은 이렇다. 대장도 원래 추가 건축을 고려 중이었는데 내가 동네 물이 부족하여 허가받기 실패했다는 소리에 담당 공무원을 찾아가 상황을 알아봤고 담당자가 나와 대장의 건축에 대해 긍정적으로 검토하겠다고 했단다. 아니, 난 안되는데 어찌 자네는 그리 쉽게 되는지. 대장은 웃으면서 제주 사람끼리 통하는 것이 있지 않겠냐고 말했다. 좀 말이 안 된다고 생각했지만 결과적으로 대장의 전화에 다시 가슴이 뛰기 시작했다.


바로 시공사 사장님께 전화드려 다시 시작하겠다고 했다. 사장님은 바로 건축사를 연결시켜 주었다. 나는 굳이 건축사를 직접 소통해야 할 필요성을 모르겠다며 그냥 사장님이 직접 건축사와 소통해 달라고 말씀드렸다. 나의 의도는 소통창구를 일원화하고 설계와 시공이 충분히 협력하길 바랐다.


나는 시공사 사장님께 파워포인트로 전반적인 내가 생각하는 구조 및 스타일을 정리해서 보냈다. 전체적인 공사비 규모를 알려줬는데 결국 내가 생각하는 모든 것을 구현하기는 어렵다는 결과에 도달하였다. 어쩔 수 없이 단계별로 진행하기로 했다. 1차적으로 주택 1동을 짓고 이후 체육관이나 뭔가를 만들 수 있는 창고형 건물은 2차 그리고 수영장 등 놀이공간을 3차로 하여 진행하기로 했는데. 지금 설계해 봐야 그때는 많은 것들이 변경될 수 있고 설계비도 큰 차이가 없으니 모든 공정은 1차에 맞추기로 했다.

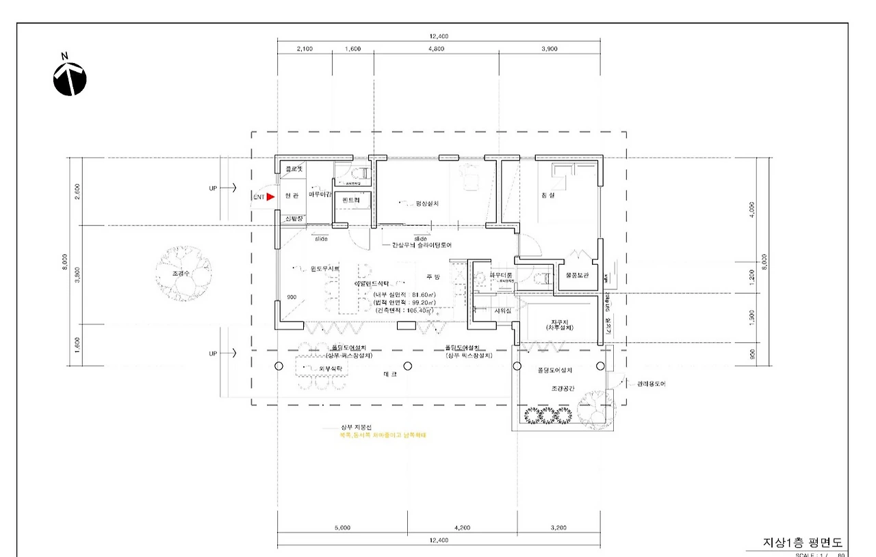
초반 나왔던 평면도. 지금이랑은 완전 다르다.

며칠 후 1차 설계 평면도가 도착했다. 1차 평면도를 받으니 이제 진짜 뭔가 진행되는 느낌이다. 평면도도 나름 나쁘지 않았는데 중요하게 생각했던 부엌이나 욕실이 북쪽에 배치되어 햇빛을 잘 받는 남쪽 배치를 요청했다. 설계 쪽에선 일반적으로 욕실은 프라이빗하여 북쪽에 배치했는데 그럼에도 나는 볕이 잘 드는 욕실을 포기할 수 없었다. 몇 번의 간단한 수정 후 2차 도면이 도착했다. 남쪽에 부엌과 욕실이 크게 배치되니 좀 어색하긴 했으나 나름 원하는 구도가 만들어진 것이다. 이후 설계 측에서 3D 모델링을 보내왔는데 여기서 문제가 발생했다.

평면도를 3D로 모델링을 하니 그 느낌이 완전 달랐다.

평면도에서는 잘 몰랐는데 공간을 3D로 살펴보니 너무 답답했다. 로망 중 하나인 층고를 5미터까지 높였는데 너무 썰렁하고 시공사는 필요 이상으로 층고가 높으니 공사비도 많이 들어갈 수 있다고 했다. 또한 남쪽 거실에 폴딩 도어를 설치했는데 제주에서는 태풍이 심하여 틈새로 물이 차 들어올 수도 있다고 경고했다. 방들의 벽 때문에 그렇잖아도 크지 않은 실내가 더욱 촘촘해 보였다. 모든 것이 내가 생각했던 그 느낌이 아니었다. 딱히 맘에 들지 않는데 이걸 어떻게 수정해야 할지 난감한 상황이었다.


구세주의 등장


아침에 검도를 마치고 커피타임 시간이 됐다. 함께 운동했던 다른 설계사무소 대표님이 내가 표정이 안 좋다며 무슨 일인지 물으셨다. 나는 지금까지의 건축 진행사항을 말씀드리고 평면도를 보여드렸는데 돌아온 건 호통이었다.


“도면을 보니 뭘 하려는 건지 잘 모르겠다. 아무런 특징도 없고 왜 집을 지으려는 건지 어떤 의도도 느껴지지가 않는다. 네가 로망이라고 하니 그냥 지나치지 못하겠다"


나도 웬만하면 지인들과 엮이지 않으려고 했지만 이런 상황에서는 도움이 절실했다. 대표님은 내가 설계사와 직접 소통하지 않는다고 하니 너무나 놀라셨다. 건축설계와 시공은 상호보완적인 동시에 긴장관계라고도 하셨다. 특히, 설계자의 의도가 있을 텐데 시공 쪽에서 비용 때문에 설계를 고치고 있는 상황이 이해가 되지 않는다고 하셨다. 이후 건축 자재 등 비용측면에서 건축설계의 역할이 중요하니 당장 설계사님께 연락하고 직접 소통하라고 하셨다.


나도 뭔가 어려운 점은 시공사 사장님은 정말 열정적이고 최선을 다하고 있다고 의심한 적은 없지만 그의 말을 모두 믿어야 할지 몰랐다. 비용을 줄 일 수 있는 현장 노하우는 많아 보이는데 내가 기본 지식들이 부족하니 이것을 검증할 방법은 현재로선 없어 보였다. 누군가 상호 체크를 해줬으면 했는데 그때 대표님이 어렵게 말씀을 꺼내셨다.


“나도 매우 조심스럽긴 한데. 지금 어느 정도 진행된 것 같기도 하고. 내가 도와줄 수 있는 방법이 있을 것 같은데. “


대표님은 어떤 식으로든 내가 잘못된 방향으로 가는 것을 막고 싶었나 보다.

나도 누군가의 도움이 절실했다.


“집 짓는 과정은 고통이 아니라 즐거움을 선사하는 과정이 되어야 한다.”


나는 집 짓는 과정을 끝없는 투쟁이라 생각했던 것 같다. 어쩌면 대표님과 함께라면 이 과정이 즐거움이 될 수도 있지 않을까 생각했다. 대표님은 이미 베테랑 건축설계사로 검증된 분이며 대학에서 학생들도 가르치고 있었는데 설계비용도 매우 높은 것으로 알고 있다. 매우 타이트한 건축비용에서 엄청난 추가 설계비용까지 더해지는 것이 여간 부담스럽지 않았다. 그럼에도 나중에 적은 확률로라도 시공 쪽에서 추가 건축비를 요구한다면? 아니 나중에 어떤 일이 발생할 수 있을지 알 수 없는 상황이라면 처음부터 대표님과 철저하게 준비하며 진행한다면 미래의 리스크를 줄일 수 있지 않을까? 보통 건축비는 마지막에 추가되는 비용이 많다고 하는데 이것을 줄인다고 생각하기로 했다. 며칠을 고민하다 대표님을 찾아뵈었다. 대표님은 나의 사정을 충분히 이해해 주셨고 대표님의 배려로 2번째 건축설계 계약을 진행했다. 좋은 작품을 함께해 보자고 하셨다. 오히려 마음이 편해졌다.



대표님과의 첫 미팅에 앞서 다시 한번 내가 원하는 것을 정리하는 편지를 써보았다. 사진이나 도면이 아닌 내가 느끼는 감정을 표현하고 싶었다. 처음부터 다시 해보기로 했다.


“바람을 담고 싶다”


나는 아이러니컬하게도 제주의 겨울을 좋아한다. 제주 겨울바람은 매섭다. 언제가 겨울 제주의 오름에 올랐는데 차디차고 스산한 바람이 갈대를 스치며 지나는데 그 순간이 너무나 황홀했다. 아무리 사진으로 담으려 해도 바람을 담을 수 없었다. 한밤중에 기름보일러가 꺼져서 기름통을 이고 기름을 사러 다녀도 말이다. 그리고 눈이 수북하게 내린 겨울밤 은은하게 울리던 풍경종소리도 잊을 수 없었다. 또 달빛이 충만하게 밝았던 어느 밤 그냥 집 앞 차길에 벌러덩 눕기도 했다. - 깜깜한 시골이라 딱히 위험하지 않았다 - 물론 술이 취했던 것이 아니라 달빛에 취했다고나 할까. 나의 집은 그 잊을 수 없는 순간들을 담았으면 했다. 그런 집을 만들어 달라고 했다. 첫 미팅은 그 편지를 읽어가면서 시작했던 것 같다. 그리고 바로 대표님은 로망의 실현과 소박한 공간 간의 나의 혼란함을 깔끔하게 정리해 주셨다.


“늙어서는 시골에 사는 게 아니야. 늙을수록 더욱 세상과 소통해야 해. 이 공간은 세컨드하우스로 그냥 ‘이곳은 제주야’처럼 제주의 느낌이 풍성한 공간으로 채우면 어떨까 해”


나의 뒤통수를 때리는 말씀이셨다. 사는 곳과 로망을 실현하는 공간이 섞여 있으니 모든 것이 혼란스러웠던 것 같다. 대표님 말씀대로 사는 곳이 아니라 세컨드하우스로 힐링하러 오는 공간이라 정의한다면 많은 것들을 정리할 수 있었다. 방과 벽으로 구분된 주택이라는 고정관념에서 벗어나면 새로운 공간을 만들어낼 수 있었다. 힐링이라는 요소에 집중하고 프라이빗과 퍼블릭한 공간을 꼭 벽이나 방으로 구분하지 않을 수 있다. 꼭 필요한 요소만 집어넣는다면 이곳은 집이라기보다는 나에게 집중하는 공간으로 재탄생할 수 있을 것이다. 이런 얘기를 하다 보니 대표님이나 내가 신나게 상상력을 발휘할 수 있었다.


“그냥 모든 게 유리면 어떨까요. 밖에서는 뭔지 모르는 미지의 공간처럼 보였으면 좋겠어요. 지붕은 우주선 모양은 어떨까요? 계절에 따라 공간이 변하면 좋을 것 같아요.”


상상은 끝이 없었다.


대표님은 첫 번째 질문으로 나의 공간-이제 집이란 표현을 안 쓰기로 했다- 이 제주의 자연과 조화로워 튀지 않고 묻혔으면 좋을지 아니면 오히려 강렬하게 대비되면 좋을지 물으셨다. 나는 이미 제주에는 자연과 조화로운 가장 대표적인 ‘포도호텔’ 등 건축물은 많은 것 같고 그러한 건물들은 대부분 돌처럼 무겁고 어둡고 차분하고 때로는 우울한 것 같기도 하다고. 나의 공간은 경쾌했으면 하고 따뜻하고 밝고 오히려 제주의 자연이 도드라질 수 있는 모던한 모양이면 좋겠다고 했다. 이렇게 건축사와 유쾌하고 재미있게 이야기해 본 적은 처음이었다. 우리의 이야기가 어떻게 현실화될지 무척이나 궁금했다. 초기 미팅은 거의 매주 몇 회씩 진행되면서 하나하나 이미지의 형태로 간결하고 거칠게 구체화시켜 나갔다.


“공간이 온전하게 본인에게 집중된다. 모든 걸 해체하여 하나의 공간으로 통합되는데 여기엔 사방이 모두 유리로 되어 있는 거지. 공간이 사방으로 개방되어 있을 순 없는데 ‘담’이란 것이 외부와 내부를 가르는 기호라면 이 ‘담’이란 것을 프라이빗과 퍼블릭함을 구분하는 의미로 해석해 본다면 어떨까”


대표님은 네 면이 유리로 된 직육면체에 ‘ㄷ’ 자로 이를 둘러싼 담을 종이에 그리셨다. 제주의 자연에 대비되는 직선의 아름다움. 제주의 자연을 물씬 느낄 수 있는 사방이 온통 뚫린 내부 공간. 그 공간을 둘러쌓아 남쪽으로만 뚫려 있는 담. 실제 지붕은 경사진 지붕이지만 외부에선 두드러지게 직선으로 지붕 외부를 둘러쌓는다. 이를 통해 전반적인 직사각형의 일체감을 추구하고 바닥은 땅으로부터 약간 들려있다. 멀리서 보면 기다란 직사각형 건물이지만 그 내부는 안과 밖, 프라이빗과 퍼블릭으로 구분되어 있다. 매우 단순하면서도 개방적이고 실험적인 공간이 탄생하게 되었다.

스케치 디자인된 형태를 모형으로 제작해 보았다.
"내부 공간과 담이 하나의 지붕으로 연결된다면 내부 공간과 담사이의 새로운 공간이 탄생하고 이는 내부이기도 하고 외부이기도 한 계절에 따라 또는 기분에 따라서 공간이 확장하고 새로움이 탄생할 수 있는 멋진 공간이 될 것 같아"


대표님이 스케치한 그 모습이 너무나 멋져 보였다. 처음 토지를 선택할 때 고민 지점이 있었다. 원래 집 지을 땅은 도로가 남쪽 앞으로 지나가는 북쪽 땅을 선택했는데 그것이 향후 재산가치가 더 클 것이라 생각했다. 아무래도 도로변에 주차하기 쉬어 장사나 상점 하기가 더 좋을 것 같았다. 하지만 지금은 장사하는 공간이 아니라 매우 개인적인 공간으로 탈바꿈되었다. 최종 선택은 도로가 뒤쪽으로 난 남쪽 땅을 골랐는데 오히려 도로가 뒤쪽으로 나야 프라이버시가 보장될 수 있음을 깨달았다. 우리 공간도 북동서 방향으로 삼면을 담으로 가리고 남쪽은 도로나 사람이 다닐 수 없어 뻥 뚫려 있어도 완벽하게 내부를 보호할 수 있었다. 대표님은 하나하나 나의 혼란을 정리해 주셨다. 나의 로망은 층고가 높은 집이었다.


“너는 이 공간에서 어떻게 지내고 싶어? 사색하고 책 읽으면서 정적으로 지내고 싶어 아니면 액티비티 하고 활동적으로 지내고 싶어?"


나는 당연 정적으로 조용하게 머물고 싶다고 했다. 소장님은 심리적으로 층고가 높으면 사람들이 보다 흥분하면서 뭔가 행동하려는 성향이 있다면서 정적이라면 층고는 낮추고 오히려 와이드 하게 넓게 시야를 가져가는 것이 맞다고. 특히 우리 토지의 뷰는 와이드 한 뷰가 더욱 멋지니 가로로 길게 빼는 것이 더 맞다고 생각한다고. 명확하여 반박할 것이 없었다. 물론 그렇다고 층고를 낮춘 것은 아니었다. 일반적인 층고보다는 더 높게 설계하여 개방감을 완전 포기한 것은 아니었다.


가장 두려웠던 제주의 매서운 겨울. 사면이 유리 즉 창호라면 난방에 문제가 없을지. 멋있긴 하겠지만 추운 건 싫었다. 요즘 건축 기술의 발달로 단열재의 성능이 엄청나다며 창호도 삼중 유리로 압착된 제품 등 적절한 재료를 사용하면 우려를 줄일 수 있다고. 특히 제주는 영하로 내려가는 날씨가 거의 없으니 난방은 특별히 걱정하지 않아도 된다고 했다. 물론 나는 당연히 최고의 제품을 쓴다면 그렇겠지만 삼면을 창호로 배치하는 것이 건축비를 감당할 수 있을지 걱정이 되었다. 대표님은 그런 부분을 모두 고려해서 정리해 보자고 하셨다. 특히 매서운 제주 겨울의 북풍을 막기 위해 북쪽으론 어떤 창도 없이 벽으로만 구성하여 어떠한 열손실도 없도록 설계가 되었다. 사실 건축비는 현실이었다. 코로나와 전쟁 등을 거치면서 건축비는 기하급수적으로 올랐다. 100% 대출로 건축비를 충당하겠다는 허무맹랑한 생각으로 시작했는데 이게 가능할지 잘 가늠이 안 됐다.


건축에 대한 여러 가지 제약도 따라왔다. 우리 땅은 약 300평 정도 됐는데 최소 건축면적은 10% 이상이었다. 즉, 최소 30평 이상을 지어야 했는데 건축비 등 최소한의 투자를 위해 20평대로 생각했는데 고민이 되었다. 허나 이런 부분도 소장님이 해결해 주셨다. 보통 건축에서 건축면적과 연면적은 명확하게 다르다고. 쉽게 건축면적은 바닥이나 지붕 넓이를 말한다면 연면적은 실제 활동하는 내부 공간으로 한정할 수 있다고. 실내 공간은 20평대이지만 전체 건축면적은 40평대 이상으로 설계를 해주셨다. 이는 실내와 담 사이의 공간을 지붕으로 연결하면서 해당 면적만큼 건축면적에 포함되었기 때문이다. 처마와 같이 지붕을 1미터 정도 빼면 해당 면적은 연면적에는 포함이 안되지만 건축면적에는 포함된다고 했다. 지붕의 트랜스포머한 이 공간이 건축 허가에서도 절묘하게 맞아떨어지고 있었다. 우리는 이 공간을 ‘와랑 스튜디오’라고 명명했는데 이를 듣고 현지 분들은 우리 공간을 ‘사진관’이라고 부르기도 하셨다.


연초에 시작된 설계 작업은 3월쯤 마칠 수 있을 것으로 보였으나 6월에 다다르고 있었다. 급하게 추진하진 않겠다 했지만 그렇다고 마냥 시간을 흘러 보내긴 어려웠다. 특히나 수도 문제는 담당자가 구두로 협조를 약속했는데 혹시나 담당자가 교체되거나 시간이 오래되어 딴소리를 할 수도 있지 않을까 해서다. 나는 대표님께 세부설계는 일단 허가부터 넣고 그 후에 할 수 있냐고 여쭤 보았는데 가능하다고 하셨다. 허가는 제주 건축사무소와 함께 진행했다. 중간에 대표님이 합류하면서 기존 계약했던 제주 사무소랑 계약을 해지하지 않고 설계는 서울에서 진행하고 허가는 제주와 역할 분담을 하기로 했다. 아무래도 현지 사정에 밝은 제주사무소가 허가 업무에 더 효율적이라 판단했다. 특히 토목이나 경계 설계 등에서 현지 조례에 밝아 그쪽 부분은 제주 쪽에서 진행했다. 계약해지로 기 지급한 비용을 포기하기보다는 추가 나머지 비용을 조정하면서 2개의 설계사무소를 적절하게 활용했다고 생각한다.


마지막 난관에 봉착하다


허가는 사실 이미 두 집이 허가를 득하였기에 큰 어려움은 없을 것이라 생각했다. 이미 몇 가지 이슈는 과거에 해결되어 또다시 문제를 제기한다면 해결할 수 있다고 생각했다. 수도 문제도 잘 풀릴 수 있을 거라 생각했는데 복병은 역시나 튀어나왔다. 허가에 토지에 대한 ‘지상권설정’ 동의서가 필요했는데 처음엔 별거 아니라고 생각했다.


와랑마을에서 토지 비용이 부족하여 전체 땅을 담보로 대출을 받았었다. 제주 토지라 근처의 제2금융권을 통해 대출을 받았는데 이율이 1 금융권보다는 훨씬 높았다. 나는 건축허가를 위해 대출은행에 동의서가 필요하다고 서명을 요청했는데 거절을 당한 것이다. 토지주와 건축주 명의가 다르다는 이유로.


나는 농지를 소유할 수 없기에 건축허가를 받으면 바로 토지를 구매할 예정으로 해당 대출은 내가 승계하겠다고 했는데 은행 측은 거듭 안된다는 것이었다. 대출을 상환하거나 토지를 분할해서 명의를 같게 하라는 것이었다. 해당 대출이 내가 아니기도 했으나 토지를 소유할 수 없는 상황에서 그리고 임으로 토지를 분할할 수 없는데 두 가지 모두 바로 진행하기 어려워 보였다. 주변 금융권 지인들에게 상담을 했는데 은행 측의 대응은 합리적이라는 것이다. 그 어느 은행도 쉽게 동의서를 내주지 않을 것이라 했다.


만약 동의서를 내주고 내가 토지 구매 않고 바로 건축을 해 지상권을 설정하면 토지의 담보 능력이 현격히 떨어지는데 담당자가 위험을 감수할 이유가 없다는 것이다. 듣고 보니 맞는 말이었다. 일어나기 힘든 확률이지만 일어날 수도 있는 상황이었다. 허가는 실시간으로 건축사무소에서 확인해 주었다. 건축사들만 보는 ‘세움터’라는 건축행정 시스템(https://www.eais.go.kr/)에서 현재 어떤 부서에서 언제 승인했는지 코멘트가 무엇인지도 확인할 수 있었다. 좋은 세상이다. 문제는 동의서가 없으니 한 달 가까이 더 이상 진행이 안되고 있었다. 우리는 부족한 자료는 추후 제출하기로 하고 일단 허가 신청서를 제출한 상태였다.


며칠 고민하다가 해당 대출을 내가 일단 상환하기로 결정했다. 일명 ‘한스론’-유일하게 마을에서 대기업계열 근로소득자로 가장 높은 신용도를 보유하여 생긴 애칭으로 위기 순간엔 한스론의 필요성이 대두되곤 했다-이라고 하는데 해당 대출의 규모는 전체 내 건축비의 25%가량 되었다. 건축비로 사용할 대금이었으나 이것을 해결하지 않으면 진도가 나가지 못했다. 당장 해당 비용을 상환받기 힘들어 보였으나 와랑마을을 믿고 대신 상환했다.


일단 건축 허가가 나오면 땅을 분할한다. 그동안 땅값이 올랐으니 내 땅이 아닌 나머지 필지에서 다시 대출을 추진하여 나의 한스론을 상환하기로 계획했다. 이 문제를 해결하자 건축허가가 바로 나왔냐고? 아니요. 최종적으로 ‘농지보존부과금’를 납부하면 허가해 주겠다고 했다. 이는 농지 개발을 위해 전용하는 면적만큼 부과금을 국가에 지불해야 하는데 전용할 농지의 면적에 개별공시지가의 30%를 곱하면 된다. 이때 개별공시 지가는 평방미터당 5만 원을 초과할 때에는 상한액 5만 원만 곱한다. 이 또한 대략 알고는 있었는데 향후 건축이 완료된 후 납부하는 줄 알았으나 허가 전에 미리 납부하는 것이었다. 공사비는 한정적이었는데 전체 건축비에서 적지 않은 금액이 미리 빠져나가니 다시 현타가 오기 시작했다.


통장은 비워져 가고 있었지만 드디어 건축허가가 바로 나왔다.

keyword
이전 10화좌절의 끝은 어디인가