brunch

일본건축기행 1-4

동경(도쿄 Tokyo, 東京)-4

by 건축가 이영재

[ 2 일차 ] _ 동경의 일상과 일상 건축의 재생


2017년 12월 14일 목요일. 주저앉아 운동화를 끈을 매고 가벼운 등짐을 지고 거리로 나왔다. 한국에 비하면 봄날씨다. 숙소가 오카치마치역(御徒町駅) 근처여서 2일차 첫 목적지와 멀지 않다. 아침 산책 겸 우에노 공원(上野恩賜公園)을 지나 걷다보면 곧 도착할 거리다.


KakaoTalk_20171226_120150389.jpg
IMG_7501-1.jpg
출근길의 많은 사람들이 100엔짜리 커피를 즐긴다. 100엔으로 즐기는 커피 한잔의 여유 그리고 우에노공원과 연(蓮)


캡슐 호텔은 아직 젊은 나에게는 최적의 장소였다. 까탈스러운 성격이었다면 불편했을것 같지만, 나로 인해 다른 사람들이 불편하지 않았을지 모르겠다(수면중 코골이가 심하다보니). 편의점에 들러 커피를 손에 들었다. 100엔이다. 일단 100엔짜리 편의점 커피로 호사를 누려보자. 출근길 많은 사람들이 가던 길을 멈추고 편의점에서 커피를 내려서 한손에는 서류가방 한손에는 커피를 들고 다시 걸음을 재촉한다. 커피는 그들의 일상의 시작인 모양이다. 우리처럼


목적지로 향하던 중, 작은 신사 하나와 그보다 작은 절 하나를 봤다. 먼저 살펴 본 절은 아메요코 상가 거리(アメ横, アメよこ) 내에 있다. 덕대사(徳大寺,とくだいじ)는 액을 물리치고 길한 운을 가져다 준다고 하여, 관동대지진과 동경대공습에서도 소실을 면했다. 그리고 신사인 유시마텐만구(湯島天満宮,ゆしまてんまんぐう)는 예로 부터 '학문의 신_(菅原道真,すがわら の みちざね를 신격화 함)'을 모신 곳으로 동경대와 가까이 있어 입학 시험 합격을 기원하기 위해 발길이 잦은 곳이다.

IMG_7498.JPG
IMG_7495.JPG
IMG_7490.JPG
덕대사(徳大寺,とくだいじ)와 발원을 위하여 걸어두는 나무판, 애마(絵馬,えま)


* 아메요코(アメ横,アメよこ)라 불리게 된 설은 두가지가 있다. 종전 후 설탕을 구하기 어려웠던 시기에 시장 주변에서 '고구마 사탕'을 판매해 단맛에 굶주리 사람들에게 호평을 받았다하여 사탕(飴,あめ)에서 유래했다는 설이 있다. 아마 사탕이라기 보다는 엿이나 조청에 가깝지 않았을까. 그리고 미군의 주둔지에서 방출된 물자들의 거래가 성행하고 상점이 많았다고하여 아메리카의 앞 글자를 딴 아메(アメ)에서 유래했단 설이 있다.


IMG_7486.JPG
P20171214_145829168_ABF2FA6C-B128-4712-8A15-FA74D22EAF24.jpg
(좌) 아침의 아메요코 (우) 오후의 아메요코 | 저녁이 가까와 올 수록 사람들이 많아 진다


일본은 많은 부분이 우리와 유사하다. 그 중에서도 자녀들이 입신양명을 위한 기복은 유난히 닮았다. 심지어 우리는 대학 교문에 큰 생엿을 붙여가며 그 정성에 매달려본다. 어디가서 빌만한 장소만 있다면 기도를 올린다. 이 곳에서의 이방인인 나에게는 도심 속 사찰과 신사가 낯설지만 그 속에 살고 있는 사람들의 모습은 친근하게 다가온다.


'고독한 미식가' 이노가시라 고로(마츠시게 유타카)가 어느 편이었던가. 길을 걸어가다 보이는 신사에서 동전 한닢을 던져 넣고 기도하는 모습이 떠오른다. 그만큼 신사는 일상이다. 입에 담기도 싫은 야스쿠니신사(靖国神社)를 제외하고.


IMG_7509.JPG
IMG_7512.JPG
IMG_7511.JPG
유시마텐만구(湯島天満宮,ゆしまてんまんぐう)에 걸려 있는 에마는 대부분 합격기원이 적혀있다
IMG_7514.JPG
IMG_7515.JPG
일본 도심속 여백이 되고 있고 신사




동경의 일상을 잠시 엿보았다면, 이제 그들의 일상이었던 공간이 어떠한 기억을 공유하면서 새롭게 재생되었는지 보자. 순서를 바꾸어 우선 SCAI THE BATHHOUSE 부터 봐야 겠다.


우에노공원의 북쪽에 위치한 이 미술관은 독특한 이력을 가지고 있다. 200년이나 된 건물이다. 그것도 목욕탕으로. 주변은 주택가들이 밀집되어 있어 어릴적 시골에서 자란 나로선 고향의 작은 동네 목욕탕이 떠올랐다. 물론 이것 처럼 화려한 기와는 아니었지만 납작한 알미늄 열쇠로 여닫던 조그만 신발장이 남아 있어 추억을 돋게 했다.


SCAI THE BATHHOUSE 미술관의 정면 | 사진:석정민
KakaoTalk_20180327_185739244.jpg
IMG_7595.JPG
IMG_7583.JPG
입구의 신발장으로 사용했을 법한 공간은 남겨 놓았다. 그리고 한국 작가의 전시
KakaoTalk_20180327_185726552.jpg
KakaoTalk_20180327_185731501.jpg
미술관의 내부 | 사진_석정민

1787년 개업한 이 목욕탕은 이후 1991년까지 204년간 이용되었다. 가옥에 욕실이 보급이 점차 늘어남으로 인해 점점 이용자 수는 감소를 하였고, 운영을 위한 후계자가 나서질 않아 쇠퇴의 길을 걷다 1991년 1월 폐업을 하게 되었고, 이후 이시바시렌지(石橋蓮司)의 극단인 「제7병동」이 '오르골의 무덤'이라는 공연을 선보이게 된다. 이를 계기로 1993년, 기존 목욕탕이 커뮤니케이션 장소였던 점을 계승하여 시라이시 미사미(白石正美, 東高現代美術館副館長)에 의해 현대 미술 공간으로 창조된다.

KakaoTalk_20180327_185721578.jpg
KakaoTalk_20180327_185718510.jpg
KakaoTalk_20180327_185735963.jpg


이렇게 좁은 골목이 주변을 감싸는 조용한 동네에 왠 미술관일까 싶지 않은가?

1993년 리노베이션을 거쳐 개장한 미술관은 아직 알려지지 않은 작가들을 소개하고 일본 내에서 지명도가 높지 않으나 해외에서 뛰어난 작업을 하는 작가들을 적극적으로 소개하고 있다. 뿐만 아니라 이우환(李禹煥)과 요코오타다노리(横尾忠則) 같은 중진 작가들의 전시도 다루었다. 방문했을 당시는 한국 작가의 작품 [ MOON Kyungwon & JEON joonho _ 'Freedom Village ]이 전시 중이었다.


미술 작품이 근사하게 차려진 도시 외곽에서 멋드러지게 보여지는 것도 좋다. 하지만 피상적 외형만 중시되고 내면을 들여다 보지 못한다면 그 또한 작품의 가치를 바로 보는 것은 아니다. 도심에서 한적한 골목에서 만나게 되는 SCAI THE BATHHOUSE 미술관은 쉽게 작가와 작품을 만날 수 있다. 어떠한 거추장스러운 격식은 버리고 일상에서 만날 수 있게 다가왔다.


그러기 위해서 이 미술관은 현재에 장소에서 가장 잘 흡수 될 수 있는 적절한 방법을 택했다. 바로 재생이었다.


옛 도시의 이면을 고스란히 볼 수 있고, 몇 겹의 기억이 묻어 있는 장소에 이형의 새로운 것을 힘겹게 박아 놓지 않았다. 익숙한 대로 남겨놓았다. 그래서 더욱 가치가 생겨났다.

하지만 그 중에서도 하나 아쉬운 점은 전시장 내에서 옛 목욕탕의 흔적이 남아 있지 않은 건 조금은 아쉬웠다. 그것 마저 이 곳에 남았다면 두가지 기억을 송환하는 역할을 하지 않았을까.



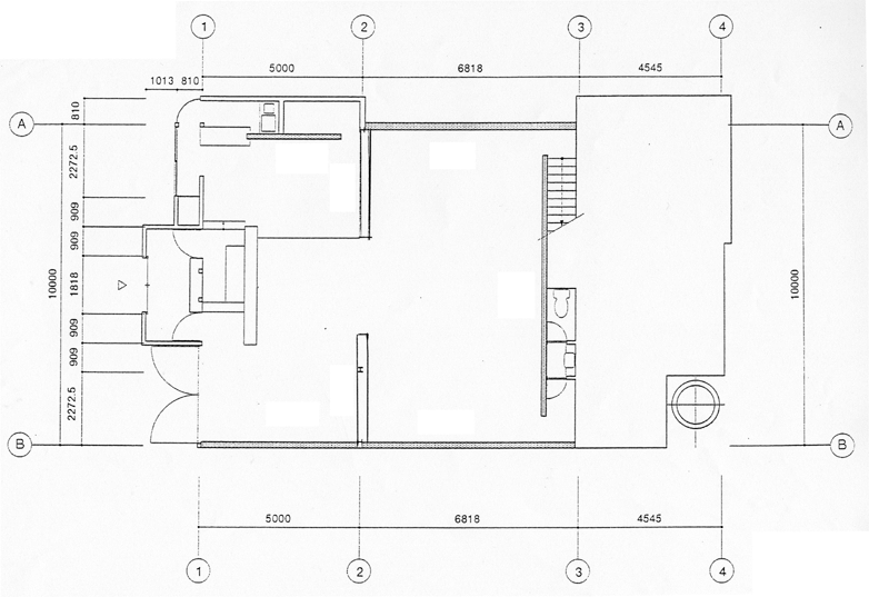
설계 : 미야자키 코이치(宮崎浩一 , Mz design studio)
기와 지붕과 굴뚝 등, 외관은 그대로 남겨 두있다. 갤러리 중앙 부분에는 원래 기둥이 있었지만, 넓은 공간을 확보하기 위해 트러스 빔을 신설하고 기둥을 철거 하였다고 한다. 천장 목틀 창문 등은 그래도 유지 하였고, 주방이었던 장소는 천장 높이가 7m가 넘는 전시 공간으로 탈바꿈 되었다. 물을 끊이던 솥이 있던 공간은 창고 와 소규모 전시 공간으로 그리고 주거 부분은 사무실이 되었다. 욕조가 있던 공간은 계단 과 전시벽이 만들어 졌다.


scaiplan_l.gif
scaisec01_l.gif
scaisec02_l.gif
SCAI THE BATHHOUSE 도면


keyword
매거진의 이전글일본건축기행 1-3