2020년 10월~11월

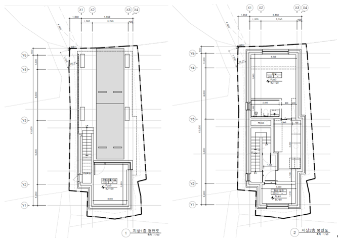
건축사인 지인 찬스를 이용하여 건축도면을 받았다. 실제 설계는 당연히 이후 진행된 외부 건축설계 사무실에 맡기게 되었지만 그 사이 기간 동안 건축설계에 대한 기초적인 개념을 잡아가는데 많은 도움을 받았다. 이 부분은 신길동 집에 대한 설계뿐 아니라 부동산 업무 중 건축에 대한 이해도를 높이는 데에도 큰 도움이 되었다. 무엇보다 그 덕분에 건축을 준비하는 기간 동안 업무 시작과 이후의 시간을 활용하여 인생 가장 즐거운 취미생활을 할 수 있었다. 건축사도 설계회사 직원도 아닌데 이런 즐거운 작업을 할 수 있었다는 것은 큰 복이라 생각한다. 아래는 그때의 도면과 그것을 모형으로 작업한 사진들이다. 이런 모형을 본적은 있지만 직접 만들어본 것은 이번이 처음이다. 전문가들이 보기에는 매우 조잡한 수준이겠지만 도면의 선에 맞춰 ‘폼보드’를 어떻게 자르고 어떻게 붙여야 하는지를 배워본 귀중한 시간이었다.


20년 10월 11월_김선주 도면1.png
20년 10월 11월_김선주 도면2.png
20년 10월 11월_김선주 도면3.png
20년 10월 11월_김선주 도면4.png
20년 10월 11월_김선주 도면5.png
20년 10월 11월_김선주 도면6.jpg


keyword
매거진의 이전글2020년 5월~6월