남편의 말
1. 설계를 시작하며
우리가 구입한 토지는 거의 정사각형에 가까운 모양으로 서측과 남측이 도로에 면해 있었다. 그래서 집의 위치와 진입로(대문)의 위치 문제로 고민을 거듭해야 했다. 설계사에서 여러 개의 배치 대안을 만들어 제시했고 우리는 장단점을 따져가며 협의를 진행했다.
2014년 당시, 주위는 모두 과수원이었다.
문제점으로는
1. 토지가 면해있는 서측과 남측 도로의 너비가 4~6m로 좁으며,
2. 이 경우 차량 교행이 불가능하다.
3. 차량의 진출입에는 회전반경에 상당한 제약이 있다.
몇 차례에 걸친 협의와 대안 검토를 거친 후에 결국 토지의 전 주인이 임시 출입구로 만들어 쓰고 있던 서측의 진입구를 우리 집의 진출입로로 쓰기로 했다. 서측 코너를 진입로로 결정함과 동시에 집의 배치에 대한 대안도 검토했다.
당시 배치에 대한 고려 사항
1. 북측이 남측보다 약 3m 정도 높은 경사지이며
2. 대지의 정중앙(약간 북측)에 위치한 용암 바위를 보존하고
3. 용암 바위 아래에 전 주인이 만들어 놓은 연못도 살린다.
서측 코너가 대문이 되면서 자연스레 집이 동쪽으로는 배치하기 어려운 상태가 되어, 북측에 배치하거나 토지의 중앙에 위치하는 것을 검토하였다. 그러나 북측이 높은 대지의 특성상 원활한 경관 확보를 위해서는 아무래도 대지의 중앙에 집을 배치하는 것보다는 북측에 배치하는 것이 경관 및 토지의 이용계획에도 유리한 점이 많아서 서측 코너를 출입구로 하고, 대문 진입 후 주차하고 북측의 집으로 진입하는 것으로 결정했다.
이 경우 북측의 대지 경계선에서 용암 바위까지가 약 8m밖에 되지 않아 건물의 폭이 충분하지 않다는 판단이 들어, 결국 2층의 남측 일부 구간을 필로티 형식으로 내밀어 용암 바위를 2층에서 내려다보는 구조로 디자인을 시작하게 되었다
2. 집의 층수 결정 및 사용자 결정
우리 땅은 자연녹지지역으로, 건폐율 20%, 용적률 100%, 층수 4층 이하로 제한받는 토지이다. 1층 면적은 약 50평을 넘지 못하지만 평소에 남편과 아내 2인을 위한 집으로서 건폐율과 용적률은 충분하다고 판단되었다.
북측으로는 한라산이 보이고 남측으로는 서귀포 시내와 섶섬, 문섬이 보이는 조망권을 유지하기 위해 2층 이상의 건물로 계획했으며, 손님을 고려하여 최고 3층까지의 층수도 고려했었다. 그러나 동서로 길게 놓이게 된 집의 배치로 인하여 3층을 고려할 시 계단으로 인한 공간 활용도가 떨어져 결국 2층으로 정했다.
1층은 가끔 집에 오는 아이들을 위한 방으로, 2층은 부부가 사용하는 부부의 공간으로 결정하고 설계를 진행했다.
1층 평면도
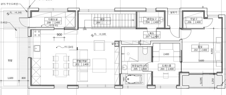
2층 평면도
각층의 사용자를 결정하고 고민했던 부분은
1. 계단으로 인한 공간 손실을 최소화하고
2. 전원주택이라 야외 활동이 많아, 1층에서 외부와의 출입이 용이해야 하고
3. 1층의 아이들 방과 서재는 평상시 공간을 최대화할 수 있어야 한다는 조건이었다.
그런 고민의 결과 일자형 계단을 설치하였고 1층의 아이들 방에 작은 주방을 설치하고 외부로 나가는 문을 설치하였다. 또한 아이들 방의 침대를 월베드 형식으로 하고 매립식 식탁을 설치하게 되었다.