두 번째 봄
처음 보는 시간표 속 ‘건축설계 1’의 글자는 낯설기만 했다. 무려 2시부터 약 7시까지, 일주일에 두 번. 일주일이 이렇게 긴데 약 10시간을 수업하는 셈이다. 학과 자체에 적응하느라 흘러간 1년은 참 길고도 짧았다. 건축을 공부하는 범위와도 같이 전공 선택 시간에는 내 지식으로는 이해하기가 어려운 ‘로마-공화정 건축’ 같은 것들을 배웠다. 글자 하나 아는 것도 어려운데 언제 ‘건축설계 8’까지 갈까 싶었다. (괜찮다. 시간은 빠르다. 정신 차려보니 이 글을 쓰는 시점이 졸업 설계다.)
큰일났다. 나 아무것도 모르는데. 지난 1년을 어떻게 산 걸까. 모두가 할 법한 고민을 해 본다. 이번 설계 주제는 단독주택인데, 주택이면 주택이지 뭘 더 건축적으로 설계하라는 건지 이해가 가질 않았다. 지금 생각해 보면 참 짧은 생각이다. 내가 생각하는 주택이란, LDK의 구조인 아파트의 ‘단층 버전’과도 같았다.
당시 주택 설계를 담당하셨던 교수님께서는 사이트와 거주 대상을 ppt로 만들어 오라고 하셨는데, 그야말로 막막함의 시작이었다. 1학년 때는 건축주가 작가였다면 이번에는 조금 더 활동적으로 움직일 수 있는 문화 예술 관련 분야의 사람으로 서서히 대상을 구체화하였다. 그래야 그나마 지난 설계 경험으로부터 활용할 수 있는 요소를 조금 더 쉽게 뽑아낼 수 있다고 생각했다. (개인적으로는 1-2학기 때와는 다른 설계적 접근을 했어야 2-1의 주택 설계를 하는 데에 더 메리트가 있다고 생각한다) 고민 끝에 3D인 무언가를 만드는 도예가 부부로 클라이언트를 정했다. 사이트는 자연스럽게 예술가들이 모여 사는 대표적인 지역인 ‘헤이리 예술마을’로 정했다.
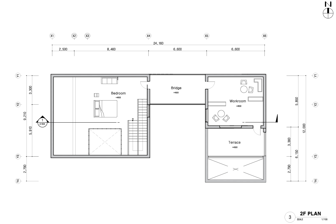
도예가 부부가 작업을 하려면 필요한 것이 대락적으로 침실, 거실, 화장실, 전시 공간, 작업공간, 마당, 연결 통로였는데, 스페이스 프로그램의 위치를 설정하고 매스를 두 개로 나누어 직주근접과 직주분리를 동시에 실현하고자 하였다. 그러려면 깔끔하게 거주 공간과 거주 공간이 아닌 공간으로 나누는 게 나을 거 같았다. 거주 공간은 컴팩트하게 짜자고 마음먹었다. 다른 매스의 1층에는 각각 전시 공간, 2층에는 작업 공간으로 설정하여 층 자체를 분리했다. 그리고 이 두 매스를 잇는 다리가 있는데, 2층의 침실과 작업실을 연결해준다. 하지만 이 글을 쓰는 시점에는 이 도예가의 집에서 고치고 싶은 것이 너무 많다.
1.왜 우측 매스의 1층 공간에는 전시실만 있을까. 전시실을 두 층으로 나누어 다리에 접근하지 않는 선에서 공간의 경험자가 충분히 집에 대해 알아갔다면 좋았을걸.
2.왜 좌측 매스의 1층에만 화장실이 있을까. 어차피 일어나면 씻기 위해 화장실에 가야 하는데. 계단을 두 번이나 오르락내리락하는 수고로움이 특징인 집이 되어버렸네.
3.정원은 왜 쓸데없이 넓은가. 마당의 일부를 전시 공간으로 할애할 순 없었을까.
4.두 매스를 연결하는 다리의 언어가 약했구나. 연결만으로 다 되는 건 아니다. 조금의 경험이 있었다면. 집의 새로운 모습을 볼 수 있었다면.
아쉬운 점을 쓰다 보면 이 글의 끝부분까지 꽉꽉 채울 거 같아 간단하게 4번째를 마지막으로 마치겠다. 그리고 최종 마감 크리틱 시간은 어떻게 되었을까? 불행하게도 그날 아침 생각 없이 지금까지 했던 스터디 모델들을 모두 버려버렸다. 스터디 모형들이 없이 크리틱이 진행되었다.
앞의 메모에서 어느 정도 눈치챘겠지만, 크리틱을 받으며 내가 치명적인 실수를 했다는 점을 깨달았다. 바로 오른쪽 전시 공간과 2층 작업 공간 사이에 계단이 없었던 것이었다. 수직적인 동선을 확보할 만한 요소가 없었다. 또한 다리에는 눈이나 비가 왔을 때, 즉 악천후로부터 피할 수 있는 곳이 하나도 없었다. 헤이리 예술마을은 사막이 아닌데 말이다. 우측 매스에 사다리라도 만들라는 크리틱 평가에 얼굴은 웃고 있었지만 고개를 들 수 없었다. 내 자신이 부끄러웠다.
도면 선의 굵기도 맞지 않았고, 해치도 실수로 빼먹은 부분들이 있다. 모델링도 지금의 눈에서 보면 많이 모자라다. 하지만 이 글의 한 페이지를 빌려 그 때의 미숙했던 작품들을 올려본다. 또 하나 놀라운 점은 2학년 1학기의 설계를 하면서 놀랍게도 나는 ‘핀터레스트’ 라는 사이트를 몰랐다는 것이다. 아키데일리나, 디즌 같은 사이트도 말이다. 책은 몇 권 읽었지만 그마저도 적용하기엔 내 머리가 말랑말랑하지 않았나 보다. 마감이 끝나고 보니 몇몇 동기들은 핀터레스트에서 레퍼런스 (참고 자료)를 찾았다는 사실을 알게 되었다.
이 모든 실수와 아쉬운 점과, 소위 ‘꿀팁’을 알고 나서는 너무 늦은 후였다. 더 많은 건물을 보지 못한 나 자신을 탓해야겠지.