서로, 도서관

세 번째 봄

by 새봄

이 글의 앞부분에서도 여러 번 나왔겠지만 도서관은 내가 가장 흥미 있어하는 공간 중에 하나이다. (정확히는 책 읽는 공간일 수 있다) 3학년 1학기에도, 어김없이 설계가 시작되었다. 주어진 사이트는 관악구 행운동이었다. 하나 알고 있었던 점은 관악구는 서울시에서 문화 예술 분야의 건물들의 비율이 가장 적은 구 중에 하나고, 도서관이 매우 필요하다는 것이었다.


스크린샷 2025-06-05 100952.png
스크린샷 2025-06-05 101329.png


인간의 기억과 경험들은 책으로 기록되고, 기억이 끝나는 곳의 한 지점에 도서관을 짓는다. 도서관이 기억과 기억 사이로 가는 루트, 사람들에게 ‘길’ 이 되어줄 수 있는 도서관을 짓고 싶었다. 시대의 변화에 따라 도서관 또한 바뀐다. 옛날에는 책만 조용히 읽을 수 있는 정적인 공간이었다면 요즘에는 ‘라키비움 (Library + Archive + Museum)이라는 말이 유행할 정도로, 오늘날에는 도서관이 주는 역할을 한정하고 제한하기 어렵다는 것이다. 파편화된 도시의 공간 속 대지 안에 지어질 도서관은 여가 혹은 문화라고 지정되어 있는 소비 활동을 수용할 수 있어야 한다. 그래서 ‘길’이라는 개념을 확장시켜 도서관을 ‘노드(결절지)’라는 컨셉 또한 수용하고자 했다. 대지는 관악구 행운동 안의 까치 어린이공원과 일부 주택이었다. 해당 동네 안에는 마을의 주민들이 편하게 머무를 수 있는 문화 공간이 몇 없었던 걸로 기억한다.


주변 건물의 축에 따라 선을 가져온 다음 그 선들이 만나는 세 개의 노드를 정했다. 각각의 노드는 공간의 컨셉으로 확장되어 주변 상황을 반영해 솔리드-보이드-솔리드의 구조로 반복된다. 가장 핵심적인 축 두 개가 가운데에서 만나는데, 보이드를 통해 주변 도시의 맥락과는 다른 느낌을 형성하면서도 문화적으로 보호할 수 있는 둥지의 역할을 하고자 했다. 솔리드와 보이드는 면으로 확장되어 반복되고, 그 사이의 공간은 길로 인식되어 곧 사람들의 접근 통로임을 나타낸다. 길 또한 외부 길 (산책로)와 내부의 길 (복도)로 나뉘어 한 공간을 형성한다. 보이드 한 중정을 중심으로 양쪽에 솔리드 한 열람실이, 중정과 열람실을 둘러싼 4개의 매스가 주변 집들과 비슷한 스케일로 형성된다.


스크린샷 2025-06-05 101647.png


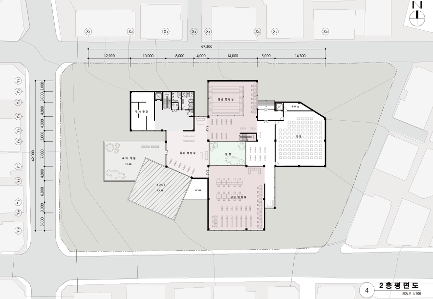
또한 기존 대지의 놀이터에서 뛰놀던 아이들을 위한 공간도 필요했다. 장소성을 새로운 방법으로 해석하며, 어린이 열람실은 1층에서 가장 접근하기 쉬운 곳에 트위스트 하여 배치하였다. 입구 바로 옆에는 어린이들이 자유롭게 책을 읽을 수 있는 어린이 열람실이 위치한다. 그리고 그 옆에는 방과 후 활동과 같이 조금은 동적으로 움직일 수 있는 메이커 스페이스를 두었으며, 밖으로 나가면 어린이 정원과 연결되어 있다. 중정을 기준으로, 길에 면해 있는 카페와 멀티미디어 열람실, 인포 구간이 합쳐져 로비 및 커뮤니케이션 홀과 같은 기능을 한다.


스크린샷 2025-06-05 101700.png


중정을 건너서는 책을 읽을 수 있는 자유 열람실이 있으며 중정과 마주한 넓은 계단 (마치 ECC 잉여계단과도 같다)을 올라가면 2층으로 연결된다. 2층에는 일반 열람실과 정원, 전시 공간이 배치되어 있다. 일반 열람실을 단지 책만 읽는 공간으로 한정하고 싶지 않았다. 봄에는 정원과 연계된 책 읽기 놀이마당, 여름에는 하나의 큰 전시 공간으로 기능하기도 하고, 가을에는 어린이들을 위한 도서관 축제, 겨울에는 크리스마스 공연 등을 할 수 있다. 모든 문을 개방하여 하나의 공간이 되면, 사람들도 하나로 모인다. 반대로 모든 문을 닫는다면 독립된 공간으로 기능할 수 있다.


설계를 하며 꽤나 어려웠던 점은 사람이 경험하는 스케일을 도면으로 나타내는 것이었다. 도서관에 자주 갔지만 서고의 높이와 폭을 잘 몰랐다. 책의 무게, 하중, 개수 등등을 세부적으로 고려해야 하니 마냥 쉽지만은 않았다. 또한 내가 느꼈던 한계는 컨셉에 비해 본 건물의 입면이나 매스감이 한참 부족했다는 것이다. 조금 더 과감한 시도는 어땠을까. 프로그램은 매우 활발한 느낌인데 매스는 이와 반대로 상당히 정직한 느낌이다. 차라리 매스는 구겐하임 빌바오 미술관처럼 미친 듯이 비정형이고, 안은 의외로 정형적인 공간인데 도서관의 기능은 열려 있었다면 이 도서관의 느낌이 완전히 달라졌을 것 같다.


스크린샷 2025-06-05 102105.png
스크린샷 2025-06-05 100810.png


항상 마감을 하면 아쉬운 점이 남는다. 그래도 후회 없이 노력한 것 같다. 이쯤이면 내 설계 작품들에게 ‘쿨하지 못해 미안해’라고 말해주고 싶은 마음이다. 그래도 어쩌지. 아직 많은 관문이 남았는데. 3학년 1학기의 설계는 그렇게 빠르게 지나갔다. 당시 설계를 맡으셨던 교수님께서 추천해 주신 책 ‘우리가 몰랐던 세상의 도서관들’ 에는 이런 대목이 나온다.


‘과거를 갈무리하는 일은 미래를 내다보는 사람만이 할 수 있는 작업이다’


나 또한 과거를 돌아봤기에 미래를 기약할 수 있는 것이 아닐까 싶다. 현대 사회에 오래도록 자리하는 도서관처럼 말이다.


keyword
금요일 연재
이전 12화B EA MYSELF_