brunch

건축설계의 기본, 도면에 대해서-1

설계 PROCESS

by 글쓰는 건축가

단면도 - 각 층과 실의 공간, 높이를 보여주는 도면단면도 - 각 층과 실의 공간, 높이를 보여주는 도면


사실 이 연재는 설계 프로세스에 따라 대지분석 - 프로그램 - 메스구성.. 의 순으로 써보려고 했습니다. 하지만 지금 제가 맡고 있는 설계 스튜디오의 진도가 도면 작성 즈음이 되어서 도면에 대한 이야기를 먼절 해보려고 합니다. 그 이후에 다른 내용에 대해서 말씀드리도록 하겠습니다.





도면의 종류 - 평면도, 단면도, 입면도, 배치도


건축 도면에는 크게 네 가지 종류가 있습니다. 평면도, 단면도, 입면도, 배치도가 그것입니다. 그 밖에도 상세도, 계획도 등 늘어나기 시작하면 한량 없이 늘어나는 것이 도면입니다만, 일단 학생 수준에서는 저 네가지 종류의 도면만 충실히 그리셔도 좋습니다. 추가로 창호 등이 벽에 붙는 방식을 설명하는 상세도 정도를 그리신다면 건물의 구성을 이해하시는 데 많은 도움이 될 듯 싶습니다.


배치도는 전체 대지에 건물이 앉혀지는 위치, 출입구, 레벨 등을 설명하는 도면입니다. 평면도는 각 층을 설명하는 도면인데, 바닥에서 약 1미터 정도의 높이에서 내려다본 것을 상정하여 그린 도면입니다. 단면도는 건물의 실제 공간을 보여주는 도면인데, 설계자가 판단하여 건물의 중요한 부분을 끊어서 보여주는 도면으로 각 공간의 높이, 계단의 형상 등을 표시하는 도면입니다. 입면도는 건물의 각 면에서 보여지는 외관, 껍데기를 표현하는 도면입니다. 우선 이 정도로 설명드리고, 각 도면에 대해서는 각 파트별로 자세히 설명드리겠습니다.



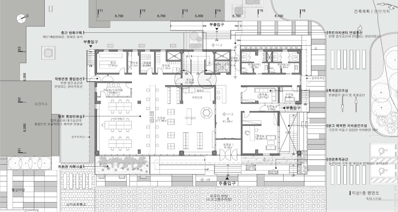
평면도 - 각 층의 구성을 보여주는, 가장 중요한 도면


SE-fab5a6ba-3e3c-44e4-8b6f-b1227277b413.jpg


먼저 평면도입니다. 제가 생각할 때 건축에서 가장 중요한 도면입니다. 각 층의 구성, 실 구획 등을 보여주는 도면이죠. 가장 직관적으로 건물을 이해할 수 있습니다.


보통 평면을 그리실 때 초기 디자인 과정에서 나온 메스 잡은 대로 건물 테두리를 잡아놓고, 코어(엘리베이터와 계단) 위치를 잡습니다. 그리고 정해진 프로그램대로 각 실을 배치하기 시작하는데요. 이렇게 하다보면 복도, 홀 등의 공용 공간이 굉장히 비효율적으로 계획되기 쉽습니다. 큰 생각 없이 구석부터 큰 프로그램부터 하나씩 던지는 식으로 평면을 짜는 거죠. 그러면 굉장히 비상식적인 도면이 되기 쉽습니다. 아래가 제가 그려본, 미숙한 학생 분들이 평면을 그리는 방식입니다. 이렇게 그려서는 안됩니다. 일단 이렇게 시작하시더라도, 정리하는 과정이 꼭 필요합니다.


SE-f1337d2f-f584-4a9b-a198-8afde9950982.png

좌측이 학생들이 흔히 그리는 평면을 따라서 그려본 것입니다. 최소한 우측 정도 수준으로 정리해서 그려주셔야 합니다.



복도 폭은 1.5~2미터, 아주 클 때 3미터 정도면 됩니다. 이 이상의 복도 폭은 사실 너무 큽니다. 법규 상으로 제한하는 최대 복도폭이 2.4미터입니다(유치원, 초등학교 중복도의 경우). 웬만한 건물은 1.5미터 정도면 됩니다. 쉽게 말해 이 정도면 이용하는데 아무 문제가 없다는 뜻입니다. 학생 여러분이 처음 평면을 그리실 때, 콤팩트하게 꽉 짜여진 평면을 그리는 감이 아직은 부족하시기 때문에 이렇게 조금은 비상식적인 도면을 그리실 때가 있는데요. 아무 용도도 주어지지 않은 공용 공간이 너무 커서 방만해보이는 경우가 많습니다. 실제로 쓰는 전용공간보다 공용공간이 훨씬 큰 경우도 자주 봤구요. 아무튼 복도와 홀, 로비 등 공용공간은 특별한 설계 개념이 없다면 최대한 줄여서 전체 평면을 콤팩트하고 효율적으로 짜는 것이 중요합니다. 실제 건물을 설계해고 지을 때는 정해진 공사비 안에서 주어진 프로그램을 다 수용하는 건물을 지어야 하기 때문에 낭비할 면적이 전혀 없습니다. 학생 때는 면적 제한이 상대적으로 느슨하게 적용되기 때문에 이런 감이 떨어지죠. 실무에서 하는 현상설계에서는 공용공간이 생각보다 굉장히 작게 주어집니다. 그래서 평면을 짜고 면적을 맞추기가 정말 어렵죠. 그래서 학생 때부터 평면을 잘 짜는 연습을 하는 것이 중요합니다. 아래는 학생 여러분이 평면을 그리실 때 유의하셔야 할 포인트를 적어본 것입니다.



1. 공용개념 - 홀과 복도 : 공용은 최대한 작게, 공용과 전용의 구분을 확실하게 하여 그리기


건물의 공간은 크게 전용과 공용으로 나뉩니다. 복도, 로비, 홀, 계단, 엘리베이터 등 누구나 접근할 수 있고 같이 이용하는 공간이 공용공간이고 사무실, 작업실, 강당 등등 사람들이 실제로 살고 작업하고 사용하는 공간을 전용공간이라고 하죠.


학생들이 착각 내지는 쉽게 생각하시는 부분이 '전부 다 열린 공간으로 하고 싶다'는 식으로 접근하시는 겁니다. 제가 저번 학기에 전시공간으로 스튜디오를 했었는데, 거의 모든 학생이 전용, 공용 구분 없이 전부 열린 공간으로 계획한다고 해서 난감했던 기억이 있습니다. 그런 공간은 생각보다 그렇게 많지 않습니다. 개방된 분위기의 휴게공간이나 카페, 전시공간 정도일 것 같네요. 같은 전시라고 해도 방해받지 않고 조용하게 해야 하는 것이 있고, 비교적 열린 공간에서 시끌벅적하게 봐도 좋은 전시가 있을 것입니다. 전부 다 열려있다고 하면 지나치기 때문에 완급조절이 필요합니다.


말씀드리고 싶은 것은 복도, 홀 등의 공용공간과 사무실 등의 전용공간이 확실히 구분되도록 그리라는 것입니다. 열린 공간을 만들고 싶다고 하셔도, 일단 구분되게 그려 놓고 경계를 지우는 식으로 작업을 하셔야 개념 잡기가 좋습니다. 열린 공간이라고 하더라도 가구 등을 놓다보면 보이지 않는 복도가 생기기 마련입니다. 그러니 일단 전용, 공용이 구분되게 평면을 그려 놓고 열린 구성으로 하고 싶은 공간은 경계선을 지우는 방식으로 작업 하시기 바랍니다.


그리고 외부에서 전용공간으로 바로 접근하도록 그리시는 건 좋지 않습니다. 아니, 안된다고 말씀드리는 것이 좋겠습니다. 우리가 사는 집을 생각해보시면, 외부에서 문을 열고 바로 침실로 들어가는 경우는 없습니다. 최소한 현관 - 거실 - 복도를 거쳐야 비로소 방으로 가게 되죠. 이렇게 건물의 접근에는 위계가 있기 때문에 최소한 홀을 하나 두고 각 실로 접근하도록 구성을 해주시기 바랍니다.



2. 전체 구성, 조닝이 보이도록 명확하게 그리기


건축설계하시는 분들은 대부분 '단순명쾌'한 것을 좋아합니다. 그건 저도 마찬가지입니다. 아마 현상 설계 등에서 단순 명쾌한 것이 눈에 빨리 띄고 설득력있게 다가오기 때문이지 않을까 싶습니다. 이 단순 명쾌가 가장 잘 보여지는 도면이 평면입니다.


일단 각 프로그램을 대표하는 조닝이 잘 보이도록 평면을 짜십시오. 이것 저것 섞여있는 것처럼 하는 것보다 확실히 구분되게 보이는 평면이 잘 읽힙니다. 컬러링을 해도 잘 보이구요. 애매하게 섞여있는 듯한 평면은 좋지 않습니다.



3. 찌글찌글하게 그리지 말 것 - 반듯 반듯하게 줄 세우기


2번과 비슷한 이야기가 될 수도 있는데, 특별한 컨셉이 없는 한 요철이 많은 소위 '찌글찌글한' 평면을 그리지 마십시오. 외관에 드러나서 입면 요소가 되는 것이라면 괜찮겠지만, 큰 이유 없이 복잡스런 평면은 잘 읽히지 않고 설득력이 떨어집니다. 제가 학생들에게 수업을 할 때 몬드리안의 추상화를 예를 들어 설명하곤 하는데요. 정말 몬드리안의 추상화처럼 딱딱 떨어지는 평면이 잘 읽히고 좋은 평면입니다. 물론, 통상적으로 그렇다는 것입니다. 자신만의 디자인 컨셉이 있다면 그것을 내세우시면 됩니다.


몬드리안의 추상도. 이 정도까진 아니더라도 반듯하게 정리된 평면도가 좋아 보입니다.

이미지 출처: https://www.artsnculture.com/news/articleView.html?idxno=973


4. 중복도, 막힌 복도 등은 최대한 피해서 그릴 것. 복도는 길지 않게.

통상적으로 중복도는 좋지 않다고 합니다. 군대를 다녀오신 분이라면 끝없이 이어지는 막사 복도를 생각하시면 좋을 것 같은데요. 창도 나지 않은 그 공간. 굉장히 답답하고 권위적이지 않나요? 당연히 그런 공간은 좋지 않기 때문에 중복도를 하지 말라고 하는 것입니다. 같은 논리로 복도는 지나치게 길게 하지 않는 것이 좋구요. 복도 끝에는 계단이 되었든, 출입구가 되었든 나갈 수 있는 길을 틔여놓는 것이 좋습니다. 소위 막힌 복도를 하면 화재가 발생했을 때 탈출 시 좋지 않기 때문입니다.


막사 복도 사진. 역시 답답해 보입니다.

이미지출처: https://m.blog.naver.com/PostView.naver?isHttpsRedirect=true&blogId=dalin2&logNo=120112796053





배치도 - 대지 전체의 구성을 보여주는 도면



Screenshot_2022-04-28_at_14.43.01.jpg

현상설계에 제출된 배치도 사례.

이미지 출처: http://www.able-studio.com/portfolio/yecheon/#prettyPhoto[portfolio_gallery]/1/



앞서 설명드렸듯이 배치도는 건물이 앉혀지는 형상을 보여주는 도면입니다. 실무에서는 건물 위치를 결정짓고, 각종 법규가 체크되는 도면이기 때문에 상당히 신경을 많이 써야 하는 도면입니다. 하지만 학생분들은 다른 도면이 다 되고 나면 부랴 부랴 마지막으로 그릴 때가 많죠. 어쩔 수 없다곤 생각합니다만, 그래도 꼭 넣어야 하는 것들은 챙겨주셨으면 합니다. 대지 레벨, 보행 / 차량 출입구 위치 , 건물 각 부분의 레벨, 외부 공간 계획, 향 등이 그것입니다. 특히 외부공간계획은 최종 크리틱 때 많은 교수님들이 지적하시는 부분인데요. 건물 뿐만 아니라 우리 땅 모든 부분은 무엇으로 채워질지 '계획'이 되어야 합니다. 아무 생각 없이 내버려둔 땅이 있어서는 안됩니다. 특별히 생각이 안난다면 '보존 녹지'라는 이름으로 나무라도 잔뜩 그려두십시오. 건축 설계라는 것은 대지 전체를 빠짐없이 계획하는 것이 기본입니다.


건물 라인을 굵게 표시해서 입체감이 나도록 하는 것이 좋고, 시간 여유가 된다면 그림자 표현을 반드시 하는 것을 권장드립니다. 건물의 그림자가 있고 없고가 입체감에서 많은 차이를 주기 때문입니다.



건물 그림자 표현은 배치도에서 입체감에 많은 차이를 줍니다.

이미지출처: https://www.homify.co.kr/ideabooks/5831371/%EC%98%88%EB%B9%84-%EA%B1%B4%EC%B6%95%EC%A3%BC%EA%B0%80-%EA%BC%AD-%EC%95%8C%EC%95%84%EB%91%90%EB%A9%B4-%EC%A2%8B%EC%9D%80-%EA%B1%B4%EC%B6%95%EB%8F%84%EB%A9%B4-%EC%9D%BC%EA%B3%B1-%EA%B0%80%EC%A7%80



1.대지를 전부 채우자 - 빈 땅 없이 계획하기



아무 생각 없이 버려둔 땅이 있으면 안됩니다. 그러면 계획이 덜 되어 보입니다. 하다 못해 '진입광장' '만남의 공간' 하는 식으로 이름이라도 지어두고, 건물 디자인 컨셉과 어울리는 패턴을 연구해서 깔아야 합니다. 많은 학생들이 그냥 해치라도 넣어두시긴 하는데, 그것도 안한 것 보단 낫지만 약간 성의없어 보입니다. 내 건물이 정사각형의 구성이라면 비슷한 정사각형 그리드를, 방향성을 가지고 뻗어나가는 디자인이라면 같은 방향으로 직선이 뻗어나가는 패턴.. 하는 식으로 통일감을 주면 좋습니다. 그리고 중간 중간 식재할 공간, 쉽게 말해 '녹색'을 칠할 공간 등을 넣습니다. 이때 패턴의 크기는 실제 스케일에 연연하지 마시고 그냥 도면에서 보기 좋은 수준으로 그리십시오. 어차피 학생레벨에서 도면은 PT에 가깝습니다. 일단 좋아 보이는 것이 우선입니다.




건물과 어울리는 패턴을 스터디해서 깔아 봅니다.

이미지출처: https://alexandrosavlonitis.tumblr.com/post/34480006259/thessaloniki-public-square-redesign-proposal



2. 레벨정리와 계단 처리


건물 주변 레벨을 정리해서 적고, 그것들을 극복할 계단을 어디 둘 것인지 생각해서 그립니다. 계단도 아무 생각없이 그리기보다, 최대한 건물과 어울리게 그려볼 생각을 합니다.


3. 주차장 출입구 및 램프


지하 주차장이 있다면 그리로 들어갈 램프가 필요합니다. 직선구간은 약 1/6, 곡선 구간은 약 1/7 의 경사도가 필요한데, 그 위로는 슬라브, 뚜껑이 얹혀져선 안됩니다. 차가 들어갈 공간은 약 3미터의 층고가 필요하므로 18미터 혹은 21미터의 구간은 뚜껑을 얹을 수가 없는데요. 이 점을 고려하셔서 그리셔야 합니다. 차로 너비는 2차선일 경우 약 6미터 정도가 필요합니다(곡선일 경우 6.5미터).





단면도 - 각 층과 실의 공간, 높이를 보여주는 도면



JE-51170_image_02.jpg

현상설계에 제출된 단면도.

이미지출처:http://hg-architecture.com/machine-for-co-working-%EC%96%91%EC%9E%AC-rd-%ED%98%81%EC%8B%A0%EC%84%BC%ED%84%B0/


흔히 단면도는 실제 공간을 보여주는 도면이라고 합니다. 각 실의 높이와 그 변화가 드러나기 때문인 것 같습니다. 많은 학생분들이 단면 그리기를 어려워하시는데요. 평면이나 입면과 개념이 헷갈리기 때문인 것 같습니다. 단면에서 강조드리고 싶은 내용은 다음과 같습니다.


1. 건물을 잘 드러낼 부분을 골라서 자르기


건물이 케이크처럼 층층이 쌓여만 있으면 공간적으로 재미가 없습니다. 그래서 학생설계에서는 어떻게든 뚫린 공간을 만들어서 2~3개층이 소통하는 식으로 설계하라고 하는데요. 단면을 끊으실 때는 이렇게 강조하고 싶은 부분을 잘 골라서 이야기할 수 있도록 구간을 잘 선택해야 합니다. 단면 작업을 하기 전에 끊을 구간을 교수님과 먼저 상의를 하시는 게 좋은데요. 중정이 있다거나 2개동으로 분동되어 있는 프로젝트라면 중정을 가로질러 단면을 끊어서 내외부의 관계를 잘 보여주도록 하는 것이 좋습니다.


2. 잘리는 부분을 강조해서 그리기 - 건물 내외부 구분이 확실하게


학생 여러분이 단면을 그리실 때 흔히 문이나 기둥 선을 모두 그려서 오실 때가 많은데요. 이 때 정작 잘 보여야 하는 골조가 잘린 선이 잘 안보이고 이런 입면선들에 묻혀버리는 경우가 많습니다. 단면은 잘린 선을 가장 두껍고 강조되도록 보이는게 핵심입니다. 골조선이 가장 두껍고, 그 다음이 마감이나 창호선... 이런 순서로 갑니다. 기둥, 문 등의 입면선은 가장 얇고 흐릿하게 보여야 합니다. 전 이런 저런 선이 헷갈리면 그냥 기둥, 문 등 입면선을 빼버리라고 합니다. 밀도가 떨어져 보인다면 차라리 사람, 나무 등을 넣어서 스케일감을 살리는 게 낫습니다. 아무튼 가장 중요한 것은 잘린 선을 가장 정확하게 보여주는 것이구요. 그리고 건물은 당연히 비, 바람이 들어와서는 안되기 때문에 터진 부분이 있어서는 안됩니다. 즉, 단면을 잘랐을 때 외부로 트여진 부분이 없어야 된다는 것이구요. 아까 말씀드린 잘린 선이 실내를 완전히 감싸는 형상이 되어야 합니다. 학생 여러분들은 아직 개념이 잡혀있지 않으셔서 이런 걸 헷갈리실 때도 많은데요. 내, 외부 구분을 확실하게 해주시고, 외부에 있는 것들과 잘린 선 뒤편의 건물 입면은 흐릿하게, 잘 보이지 않도록 표현하시면 됩니다.


만약 골조선과 마감선을 따로 표현하신다면, 골조선은 골조선끼리, 단면선은 단면선끼리 서로 완결이 되어야 합니다. 마감선이 골재선을 완전히 감싸는 형상이 되어야 한다는 것인데요. 이것은 말로 다 설명드리기가 어렵고, 잘 그려진 도면을 자주 보시라고 말씀드릴 수 밖에 없을 것 같습니다.


3. 파라펫, 수벽 부분 표현하기


단면에서 가장 기본적인 디테일이 파라펫인데요. 옥상 상부의 마감과 방수 부분을 받아주기 위해, 또 난간 역할을 하도록 설치하는 것이 파라펫입니다. 이것이 표현되지 않으면 상당히 비현실적인 도면처럼 보입니다. 철제, 유리난간을 추가로 다실 계획이라면 파라펫을 낮게 하시면 됩니다. 켄틸레버로 뻗어나가는 식의 디자인도 많이 하시는데요. 이 때, 슬라브만 나가는 것이 아니라 보도 같이 나가야 합니다. 그리고 그 부분의 설비도 받아줘야 하기 때문에 약 800~900mm 정도 두께의 판이 같이 뻗어나간다고 보셔야 하는데요. 끝 부분은 수벽으로 표현하시면 됩니다. 이것을 설명하자면 이야기가 길어져서 다음 글에서 다시 설명드리도록 하겠습니다.



3. 층고, 계단 등이 제대로 되어 있는지 체크하기


메스가 겹쳐지고 기울어지는 디자인을 하다 보면 어느 부분에서는 사람이 들어갈 수 없는 부분이 생기기도 하고, 계단을 이용할 수 없는 높이가 나오기도 합니다. 단면은 이런 부분을 체크하기 위해서 그리는 것입니다. 단면에서 말이 되는지 체크하고, 다시 메스 디자인을 수정하는 피드백을 하는 식으로 진행하시면 좋습니다.





입면도 - 건물의 외관, 얼굴을 보여주는 도면



현상설계에 제출된 입면도.

이미지출처: https://blog.naver.com/bobbybruce/220740966236



입면도는 맨 마지막에 그리는 도면입니다. 위 도면을 다 작성하고, 3D - 스케치업이나 라이노 등 - 이 완성되면 그때 입면도를 그리시기 바랍니다. 특히 3D가 완성되기 전에 그리는 입면도는 그다지 의미가 없습니다. 솔직히 입면은 3D에서 계획하고 체크하는 것입니다. 입체적인 건물 형상을 2D로 눌러 그리는 입면은 그야말로 단순 정보전달용 도면에 가깝습니다. 학생 레벨에서 그것으로 입면을 계획하는 건 사실상 어렵습니다. 실무에서는 세부적인 치수 등을 체크하는 역할이 있습니다만, 학생 여러분은 마지막에 스케치업을 눌러서 PT용으로만 그리시면 될 것 같습니다. 정 시간이 없으면 그냥 CG를 눌러서 쓰십시오. 실무에서도 현상 설계 때 그렇게 많이 합니다. 입면용 캐드 작업을 아예 안하는 것입니다. 만약 캐드 작업을 하신다면, 메스가 드러나는 테두리선을 강조하는 정도만 신경쓰시면 될 것 같습니다.



이렇게 평면도, 배치도, 단면도, 입면도에 대해서 간략하게 설명드렸습니다. 어떤 도면이 무엇이다 라는 기본적인 것보다는 실제로 작업하실 때 어떤 부분을 신경써야 하는지 위주로 설명드리려고 했습니다. 원래 좀 더 디테일한 부분 - 창호나 파라펫 표현, 주차 구획 등 - 을 말씀드리려고 했는데, 글이 너무 길어져서 두 편으로 가야 할 것 같습니다. 다음 글에서 뵙겠습니다.


혹시 이 글을 보시고 궁금하시거나 문의하고 싶은 내용 있으시면 아래 이메일로 연락 주시기 바랍니다. 최대한 친절하게 답변 드리도록 하겠습니다. 감사합니다.






열린 설계와 소통으로 건축주, 시공사와 함께하는 건축을 만들어갑니다.

OPEN STUDIO ARCHITECTURE

글쓰는 건축가 김선동의 오픈스튜디오 건축사사무소


김선동

Kim Seondong

대표소장 / 건축사

Architect (KIRA)

M.010-2051-4980

EMAIL ratm820309@gmail.com

blog.naver.com/ratm820309




함께보시면 좋은 글 -https://brunch.co.kr/@ratm820309n85i/270



keyword