[효자바베서촌] 안녕~도리?도리!

천정을 드러냈더니 보이던 한옥의 자태. 효자바베 한옥 복각 작업 스토리.

by Studio Mountain
효자바베서촌 1편 비지니스 컨설팅 편을 보고 싶으시다면


효자바베 2편 메뉴 기획과 플레이팅 관한 이야기
효자바베 3편 공간 브랜딩에 관한 이야기




전편의 서두에서 얘기했지만 공간 작업은 꽤나 재미있는 일입니다. 그럼에도 한편으로는 어려운 일이기도 하죠. 현장에서는 예상치 못한 일들이 불쑥불쑥 튀어나옵니다. 그런 돌발 변수들을 최소화하기 위해 항상 작업 전에는 일어날 상황들을 예측하고 준비를 하지만, 그럼에도 현장은 종종 예측하지 못한 방향으로 흘러가기도 합니다.


오랜 시간 잠들어 있던 도리를 만나다


효자바베의 공간이 들어설 자리는 외관은 일반 콘크리트 건물로 보였으나, 실은 작은 한옥 두 채가 이어진 공간이었습니다. 건물의 상부면을 점검하기 위해 천장 등을 하나 빼서 한 손에 핸드폰을 잡고 전등 구멍 속으로 손을 넣어 촬영을 했습니다. 어두워서 보이지 않던 천정 상부에서는 오랜 시간 천정에 가려져 잠을 자고 있던 도리와 서까래가 민낯을 내보였습니다.


"와, 이거 생각보다 만만치 않은 작업이겠구나."


DSCN9213.JPG 플래시에 놀라 긴 잠에서 깨어난 모습입니다.
DSCN9229.JPG 안녕? 놀랐지? 사실 나 한옥이야...


도리는 서까래를 받는 부재입니다. 형태에 따라 굴도리와 납도리로 불립니다. 굴도리는 단면이 둥근 형태이고, 납도리는 단면이 사각형 형태로 네모도리라고도 불립니다. 도리는 장여와 함께 서까래에서 전달하는 하중을 받아 기둥에 전달하는 역할을 하고 건물의 간을 정하는 기준이 되기도 합니다. 몇 칸 집 몇 칸 집 들어보셨죠?


간은 한옥의 공간 구분의 기본 유닛입니다. 간이 넓어지려면 지붕의 도리가 많아져서 지붕 높이가 높아져야 합니다. 한옥집의 규모를 이야기할 때 3량가, 5량가 (지붕 제일 높은 부분 종도리가 1개가 들어가기 때문에 홀수 단위로 늘어납니다.)라고 하는 것은 단면의 도리 개수를 이야기하는 겁니다. 도리의 개수가 늘어날수록 지붕의 높이도 높아지죠.


KakaoTalk_2017-11-07-17-35-06_Photo_10.jpeg 위에가 삼분변작, 아래가 사분변작. 아래의 천정 공간이 훨씬 큰 면적으로 확보가 됩니다.


중도리의 위치에 따라 대공 높이가 달라집니다. 삼분 변작과 사분 변작으로 중도리의 위치를 잡는데요. 사분 변작의 경우 삼분 변작보다 대공 높이가 높아지면서 공간감이 더욱 크게 느껴집니다. 천정을 확인했을 때 3분 변작으로 지붕을 올린 집으로 확인됐는데요. 이 천정을 조금이라도 살려서 좁은 공간에서 개방감을 줘야겠다고 생각했습니다.



안녕? 나야 나 도리.


천정을 확인하고 바로 구조를 확인하기 위한 철거공사를 시작했습니다. 임시 천정에 가려진 한옥의 뼈대가 보이는군요. 오~ 여긴 깨끗하네 ㅜㅜ 천장 사이로 보이는 처마와 도리 모습에 가슴이 두근거리기 시작했습니다.



이전 매장의 철거 전 모습을 사진으로 함께 확인해보시죠.


DSCN9099.JPG
DSCN9092.JPG
DSCN9090.JPG
DSCN9094.JPG
DSCN9189.JPG
IMG_2885.jpg


내부에서도 그렇고 외관 파사드만 봤을 때는 전혀 한옥집이라는 것을 인식하기 어렵습니다. 내부에서 기둥 하나 발견할 수 없었으니까요. 어? 기둥? 그러고 보니까 한옥인데 기둥이 왜 없지?



뇌관을 발견하다


이제 지난 편에서 말씀드렸던 키친 - 바의 에일맥주 네온을 설치했었던 나무 기둥 기억나시죠?

그 기둥에 얽힌 비화를 소개해드린다고 했는데 그 이야기를 꺼내보고자 합니다...


IMG_6910.jpg


외부 측면을 보았을 때는 한옥이 맞는데 내부 구조를 분석했을 땐 뭔가 엇갈리기 시작했습니다. 내부에 기둥이 전혀 보이지 않아서였는데요. 천정을 철거하면서 하중을 받치기 위한 철근 골조가 드러났습니다. 그런데 상부의 하중을 받는 H빔이 없는 임시방편의 철근 골조였습니다. 지붕의 무게를 감당하기 어려운 구조이죠. 언제 무너져내려도 이상할 게 없는 마구잡이식 개조였습니다.


IMG_2880.jpg


더욱이 충격을 받은 부분은 상부 하중을 받아서 지탱해야 하는 기둥들을 다 잘라냈던 것입니다.... 오른쪽 사진에서 확인하실 수 있죠?


그런데 왼쪽 사진에서 뭔가 어색한 것이 하나 있지 않으셨나요? 관찰력이 좋으신 분들은 쉽게 발견하셨을 텐데요. 왼쪽 사진에 외롭게 혼자 서 있는 쇠파이프 하나 보이시나요?


IMG_2852.jpg 이것이 바로 이 공간의 핫버튼. 뇌관.


저 얇은 쇠파이프 하나가 건물 상부의 하중을 힘겹게 견뎌내고 있었습니다. 이 한옥집의 유일한 기둥이랄까요. 저 파이프를 치우면 집이 와르르 무너져 내릴 것만 같았습니다. 지뢰를 밟고 움직이지 못하는 전쟁터의 병사가 이런 심정일까 싶었습니다. 이쑤시개 위에 은쟁반을 올려놓고 있는 기분이었습니다.


쇠파이프를 조금이라도 건드리면 집의 균형 자체가 무너질 수 있기 때문에 천장 마감 철거는 아주 조심스럽게 진행했습니다. 그 때문에 시간도 보통의 철거보다 훨씬 많이 소요가 되었지요. 지붕 하중을 계산해서 기존의 쇠파이프에 쏠려 있는 하중을 분산시키기 위한 추가 보강 작업을 했습니다.

.

포스트미션.jpg 바의 골격을 짜던 그 와중에 우두커니 나와 있는 쇠파이프 기둥...


그리고 저 쇠파이프는 건드릴 수 없는 뇌관 같은 존재였기 때문에 키친 바를 앉힌 자리에 기둥이 하나 생기게 되었습니다.


포스트 감춤.jpg
효자바베-32.jpg


이것이 효자바베의 바에 나무기둥이 불쑥 하나 생기고 그 위에 에일맥주라는 네온사인이 올라가게 된 배경입니다. 작은 한옥 두 채를 무리하게 상가건물로 바꾸게 되면서 굳이 이런 방법을 써야 했을까 하는 안타까움도 들었습니다. 최선을 다해서 예전의 그 모습을 살려주고 싶은 마음이 더 들었습니다. 파이프 처리가 난감하긴 했지만 네온을 걸고 나니 뿌듯함이 두배로 업되더군요.



아... 황토 지붕아...


예전의 모습을 살려주고 싶은 마음은 마음이었지만, 효자바베의 한옥은 어디까지 손을 대야 할지에 대한 고민이 많이 들게 했던 공간이었습니다. 천정을 뜯어보니 지붕의 황토흙들이 세월의 흔적을 보여주듯이 부서져 내리고 있었습니다.


DSCN9217.JPG
IMG_3176.jpg
IMG_2865.jpg

그간 통풍이 되지 않고 아래 낮은 천정에 막혀 있어서 낮아진 습도로 인해 부서짐이 더 심해졌을 것이라 판단됩니다.

DSCN9397.JPG
DSCN9396.JPG


서까래 사이의 갈라진 황토들을 보강하기 위해 관련 서적들을 참고하여 진행했습니다. 그러나 파사드면에 접해 있는 한옥의 지붕 상태가 너무나도 많이 훼손되어 있었기 때문에 비용과 시간 측면에서 추가 보강 작업은 진행하지 않고 나무보와 일부 서까래만을 노출시키고 나머지는 같은 레벨에서 합판을 사용하여 면으로 덮기로 했습니다.

살리고자 하는 보와 서까래 주변으로 합판과 석고보드를 덧대어 지붕 흙의 유실을 막았습니다. 그리고 그 위에 나뭇결이 살아있는 판재를 얹혀 마감했습니다. 물이 더 새지 않도록 건물주에게 요청하여 지붕 바깥쪽은 방수포 시공을 별도로 진행되도록 하였습니다.


IMG_3217.jpg
IMG_3252.jpg
IMG_3175.jpg
IMG_3455.jpg
IMG_3458.jpg


외부로 그대로 노출되는 합판의 경우에는 판재의 무늬와 색깔에도 신경을 써서 조합하였습니다.

시간과 공을 많이 들인 작업입니다. 삼나무 루바를 함께 사용하였지요. 고생을 많이 해서 인지 다시 보아도 뿌듯합니다. 효자바베 한옥 복각 작업은 많은 고민과 시간을 들여 정성스럽게 작업한 것이에요. 어떠세요. 작업을 하고 나니 보기가 한결 나아졌지요?


IMG_3457.jpg 최대한 살려낸 한옥의 뼈대의 모습입니다.


아... 넌 또 누구니...


설계도면이 없이 막 지어진 건물은 현장에서의 돌발변수가 더 많이 발생하게 되는데요. 그러다 보니 현장에서 설계가 수정되는 경우가 생기기도 합니다. 기둥 문제를 해결하고 나니 또 문제가 생겼어요. ㅠㅠ


스크린샷 2014-07-07 오후 12.53.28.png


원래의 설계 계획은 룸 부분에 입식 의자를 8석을 배치하려고 했는데, 바닥을 드러내니 바로 주춧돌이 튀어나오게 되었습니다.

IMG_2890.jpg 저기 방 우측하단에 슬그머니 머리를 내밀고 있는 ㅜㅜ


사상누각이라는 말이 있죠? 모래 위에 집을 지으면 100% 무너집니다. 주춧돌은 그만큼 건물에서 중요한 부분인데 이게 또 다른 바닥의 레벨이랑 맞지 않게 올라와 있었습니다.


그래서 테이블에 두는 이동형 의자를 제외하고 한옥 처마 밑 툇마루 또는 평상의 형태로 벽면에 붙어 있는 붙박이형 의자를 추가 설계하여 절묘하게 가렸습니다. 의자면이 나와 있는 공간 바로 밑에 주춧돌이 되는 부분들이 숨어 있습니다.


IMG_3266.jpg



이 글을 읽고 나중에 효자바베 서촌을 가셔서 룸에서 식사를 하실 경우 아, 내가 지금 주춧돌 바로 위에 있구나 하실지도 모르겠네요^^



7평의 자리싸움


공간회의에서 클라이언트 인터뷰 내용입니다. 가장 큰 바람은 남녀 분리형 화장실이 될 것. 그리고 화장실이 좁아도 예쁘게 나올 것. 이였습니다.

공간회의 때 나온 내용. 클릭하시면 크게 보여요.


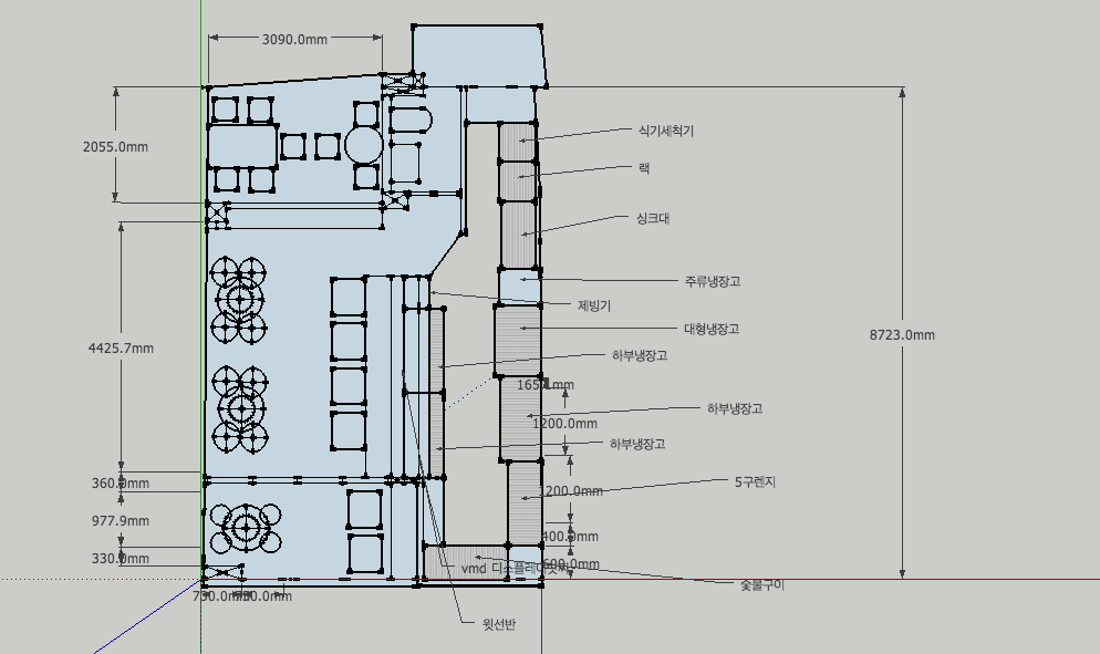
그러나 총 18평의 공간에서 주방을 7평을 잡았는데 요리 시 필요한 주방집기들이 공간에 비하여 꽤 많은 편이었습니다. (아래 동선 표 참조) 당연히 좁은 공간에서 주방집기의 물리적 사이즈 때문에 남녀 분리형 화장실이 확보될 수 있는 공간이 나오질 않았습니다. 심지어 기존 세팅하려는 주방기기들의 자리도 부족하였죠.

동선계획.png


저희는 과감히 원래 화장실의 공간을 철거하여 주방을 넓히는 방향을 제안드렸지요. 그래서 기존 화장실 벽면을 트고 안으로 조금 더 이격 하는 작업을 진행했습니다.


스크린샷 2014-07-21 오전 8.25.50.png 정수기와 주류 쇼케이스 냉장고 자리를 확보
스크린샷 2014-07-21 오전 8.27.15.png 기존의 화장실 공간을 줄여 주방집기를 배치


화장실 안쪽으로 주방집기가 더 들어갔습니다. 사각으로 칸막이를 할 경우에는 화장실 공간이 답답할 것 같아 모서리 부분을 사선으로 기획하여 화장실의 공간이 조금이라도 더 확보되도록 했는데요. 저 모서리의 모양은 화장실 거울에서 다시 반영이 되었지요.


효자바베-46.jpg


나름의 위트를 발휘하여 사선 커팅된 공간의 형태에 어울리도록 창호와 몰딩에 사용했던 목재를 가공하여 화장실의 측면에 붙였습니다. 8 각형의 모양은 전통적으로 소반이나 창호에 많이 쓰이던 형태인데 그 요소를 거울에 적용해 보았습니다. 문짝에는 고방 유리를 함께 사용하여 불빛만으로도 화장실이 한 칸이니 안에 사람이 있다는 것을 알 수 있는 기능적인 작은 창도 만들었습니다.


손수 만들어본 한옥 창호.


한옥이라는 공간에 어울리게끔, 그리고 근대 가옥이 여전히 창호를 썼다는 점에서 효자바베의 공간에도 창호를 사용하기로 했습니다. 창호는 창과 호를 아울러서 지칭하는 말입니다. 이 말은 채광을 위한 창과 출입을 위한 호를 명확히 구분하지 않는 전통 건축의 독특한 미학을 반영합니다.


IMG_2483.jpg
IMG_3071.jpg
KakaoTalk_2017-11-07-12-57-05_Photo_94.jpeg


전통 창호의 종류 중에 아자살 창호에서 영감을 받아 제작을 진행했습니다. 전통 제작 방식을 따라서 몇 가지 테스트를 해본 후 끼워 맞추는 형식의 모듈을 제작했습니다. 유리가 들어갈 홈도 고려하였고요.


창호 만들기.jpg
창호 짜맞춤 디테일.jpg
IMG_3483.jpg 보통은 기성을 사다 달기도 하는데 용감하게 직접 현장에서 작업했어요.
손이 가는데로 한국적인 곡선의 아름다움이 만들어 집니다.


왼쪽 사진에 보이시는 건 입구면 주방 쪽에 앉힐 들어열개문입니다. 고려시대까지만 해도 들어열개문의 형태가 많았었는데요. 효자바베에서는 채광의 목적보다는 외부의 테이블과 내부 공간의 연결성을 갖게 하고, 바베큐 요리의 특성상 안에서 찰 수 있는 연기를 자연스럽게 밖으로 배출시키는 용도로 디자인되었습니다.



창호 폴딩도어&천막.jpg
IMG_3517 (1).jpg


뿐만 아니라 8인 석인 방 쪽의 파티션도 창호로 제작하고 개량형 한옥에서 볼 수 있는 주름 유리를 끼워 넣어 내부의 프라이버시도 일정 부분 보장하는 역할을 하도록 고안했습니다.


효자바베-18.jpg 짜잔~! 보기와 달리 쉽게 만들어진게 아니랍니다 ㅜㅜ



검은 벽돌을 고른 이유?


위의 사진에서 들어열개문이 있는 주방 쪽 벽이 흑색 벽돌로 되어 있는 것이 보이시나요? 효자바베는 숯불 바베큐 전문점이라는 아이덴티티를 갖고 출발한 브랜드이기 때문에 공간 안에서 숯불의 아이덴티티를 보여 줄 수 있는 요소가 필요했습니다. 차콜, 숯불 아이덴티티, 숯을 생각했을 때 느껴지는 머테리얼...


IMG_3592.jpg
IMG_3037.jpg
IMG_3518 (1).jpg


그것은 바로 까만 벽돌이었습니다. 물론 숯을 연상시킬 수 있는 맥파이의 다크 비어를 메인 주류로 어필했듯이, 포인트로 검은색의 벽돌과 타일 등의 머테리얼이 적절하게 활용되면 효과적으로 아이덴티티를 전달할 수 있을 거라고 생각했습니다.


그리고 기능을 위한 디자인.


지난번 편에서도 언급했지만 재료가 디스플레이되는 부분에는 바의 경사를 주어 신선한 재료를 더 잘 보일 수 있게 함과 동시에 얼음이 녹아 물이 아래로 배수될 수 있게 디자인했습니다. 포스 선도 매립형으로 잡아서 매장에서 선이 지저분하게 보이지 않도록 신경 썼고요.


IMG_3390.jpg
IMG_3596.jpg


매장의 착석 수도 매출과 연결이 되기 때문에 최대한 많은 착석수를 확보하는 게 중요합니다. 이건 이제 많이 언급을 많이 해서 다들 아실 거라 생각합니다. 클라이언트가 원했던 착석수는 25명 이상의 착석수였습니다. 그래서 테이블 외에 주방 바에도 나무 바를 하나 덧붙여 5인이 추가로 착석할 수 있도록 설계했습니다.


자칫 좁아 보일 수 있는 동선이었기 때문에 끝부분은 곡선 형태로 처리하여 동선을 최대한 확보했습니다. 효자바베 서촌점의 착석 수는 곡선 형태의 상판을 오픈 키친에 추가하여 결국 30명까지 앉을 수 있도록 고안을 했습니다.


IMG_3548.jpg
IMG_3547.jpg
IMG_3598.jpg


그리고 가장 고객 피드백이 좋은 부분이 하나 있어요. 그건 바로... USB꽂이입니다. 효자바베는 오피스 상권에 속해있었고 퇴근 후 직장인들이 가장 필요로 하는 것이 무엇일까 생각했을 때 가장 필요했던 건 핸드폰을 충전하는 것이었습니다. 노포 집에 갔을 때 저희들이 가장 필요로 했던 부분이기도 하죠. 컨셉은 ~관~옥~정 대중식당을 재해석한 것이지만 현대 사회에서 필요로 하는 기능적인 요소는 놓치지 않는 게 가장 중요하겠죠.


1 usb콘센트.jpg USB포트가 심어져 있는 위치들


터널 타일과 집념의 보카시칠


앞면 파사드는 80년대의 감수성을 자극하기 위해 터널 타일을 선택했습니다. 한국 터널에서 많이 사용해왔던 타일인데요. 앞면의 파사드를 옛날 느낌이 들게 하는 데 가장 큰 역할을 하는 요소입니다. 간판을 올리고 나니


터널타일).jpg
IMG_3758 (1).jpg
터널타일.jpg


어느 정도 작업이 끝이 보이기 시작합니다. 하지만 아직도 중요한 작업이 남아 있습니다.

2014-04-21-오후-5.06.54.png

효자바베의 80년대 정육식당의 아이덴티티를 살리기 위해서는 옛날 가구에서 느껴지는 나무색이 올라와야 합니다. 옛날 가구들은 붉으면서도 깊은 갈색의 색이 올라오는데 이건 보카시칠을 한 겁니다. 일반 페인트들로는 그 효과가 나지 않아 보카시칠을 하기로 했습니다.


보카시칠작업.jpg
IMG_3644.jpg


일단 나무 빼고 마스킹 작업을 꼼꼼히 진행했지요. 보카시칠은 쉽게 생각하자면 우레탄에 염료를 섞어서 얇게 여러 번 바르는 건데요. 우레탄은 본드 성분이 있는데요. 나무에 코팅이 되면서 내구성도 강화시켜주면서 방수 기능도 되지요. 막상 현장에서 진행을 하려니 그 냄새 때문에 작업하시는 분들도 다 절레절레 고개를 흔들면서 거부하셔서... 결국엔 저희가 직접 진행했습니다. 몇 번 쓰러지는 경험을 했는데요.ㅜㅜ 정말로 코가 마비돼서 한 석 달 정도 냄새를 잘 맡지 못했습니다. 꼭 보카시칠은 바람이 잘 통하는 곳에서 마스크를 끼고 하세요 여러분. 실내에서는 정말 위험합니다.


IMG_3650.jpg
IMG_3651 (1).jpg
IMG_3956.jpg

나무 색깔의 톤을 잡기 위해서 테스트하는 과정의 사진들입니다. 다섯 번 정도 색을 올렸더니 가리모쿠 등에서 느낄 수 있는 깊고 그윽한 옛날 목가구의 톤이 나오게 되었습니다.

효자바베-24.jpg 어떠세요? 나무색 예쁘지 않나요? 고생한 보람이 있는 것 같습니다.



공간 Berfore & After


효자바베의 한옥은 저희가 진행한 시공 중에서 가장 난이도가 있었던 시공 중에 하나로 기억이 됩니다. 모델링 전과 후의 모습들을 비교해보세요~


IMG_2885.jpg
스크린샷 2014-06-19 오후 10.32.55.png
DSCN9188.JPG
스크린샷 2014-07-09 오후 2.31.51.png
DSCN9174.JPG
스크린샷 2014-07-07 오후 1.15.07.png
DSCN9090.JPG
스크린샷 2014-07-09 오후 2.31.59.png


효자바베는 오픈 2일 차부터 만석에 웨이팅이 생기기 시작했습니다. 그 이야기는 다음 편에서 이어가기로 하구요. 효자바베의 한옥 복각 이야기는 여기서 마무리 짓도록 하겠습니다.


자바베_보정-1.jpg 드디어 완성되었어요!! 참으로 손이 많이 간 효자바베 입니다.




다음 편에서 뵈어요!


ⓒ2017 Studio Mountain
스튜디오 마운틴은 브랜드 기획을 기반으로 2013년 설립된 토털 브랜딩 스튜디오입니다.
http://studiomountain.kr
keyword
매거진의 이전글[효자바베서촌] 지나간 시간 위에 새로움 쌓기