7. (공간) 상처의 공간

: 일곱번째 공간 | 공감 - 베를린 유대인 박물관, 다니엘 리베스킨드

by 수진
메나쉐 카디쉬만의 ‘떨어진 나뭇잎들'


#트라우마의 공간


인간성의 범주 바깥에서 일어나는 한계 사건 – 전쟁, 혐오, 차별, 살인 등 – 이 일어났을 때, 우리는 서로를 용서할 수 있을까.

데리다가 말년에 깊게 탐구한 주제이자 나에게도 개인적으로 숙제처럼 남아있는 질문이다.

인간의 존엄성 자체가 흔들리는 공격을 받았을 때, 회복 불가능한 상처는 트라우마로 남는다. 트라우마는 가해자와 피해자의 기억과 시간을 뒤틀리게 만들어 서로를 어긋나게 만든다


‘트라우마‘란 ‘상처’를 뜻하는 그리스어τραῦμα에서 비롯된 말로 외부의 강렬한 자극에 의하여 찢긴 피부의 외상을 의미한다.

‘쾌락원칙을 넘어서‘라는 저작에서 프로이트는 신체적 외상을 뜻하는 이 말을 심리학적 관점으로 재정의하였다. 프로이트에 따르면 외부적 강렬한 사건으로 인해 개인이 정신세계를 구축하는 방어기제 (protective shield)에 구멍이 뚫리는 것, 그 구멍으로 주체가 감당할 수 없는 자극이 유입되는 정신적 외상을 입는 것이 트라우마라고 한다.


이렇게 상징 세계의 균열을 통해 들어오는 상징화 될 수 없는 날것의, 바깥의 경험들은 라캉의 언어를 빌려 말하면 ‘외상적 실재‘를 형성한다. 트라우마는 상징의 세계(언어)로 통합되어 해석되기 전의 경험이며, 소유된 적 없는, 즉 정리된 기억으로 환원된 적이 없는 경험이다.

서사적 ‘기억’으로 정리되기엔 아직 너무나 끔찍하고, 미래로 나아가기엔 지금도 생생히 아픈 실재 - 트라우마의 당사자는 과거-현재-미래의 선험적 구조에서 벗어나 고통 속의 현상 그 자체, 고통의 사건 속으로 계속 돌아간다. 그 때문에 피해자는 과거에 갇혀 가해자를 용서할 수 없고, 가해자는 현재 용서받을 수 없기에 나아갈 수 없다.


그러므로 집단적 트라우마가 발생할 때 이 거대한 상실을 어떻게 진정성 있게 말하는가, 기억하는가, ‘재현‘하는가는 조심스럽게 논의가 될 수밖에 없는 문제이다.

정리된 공간의 언어이자 동시에 재현의 공간인 박물관의 설계는 그만큼 어렵다. 쉽게 접근하는 방법인 기념비, 기념관이라는 형식은 과거/역사를 기록하고 추모하지만 오히려 그 미적 승화를 통해 지금도 계속되는 트라우마의 고통은 다른 곳으로 치워지고 배제된다.


다니엘 리베스킨트는 ‘유대인 박물관‘의 건축적 시나리오를 통해 홀로코스트라는 유대인의 역사와 기억을 기록이 아닌 부재의 경험으로 표현했고, 이는 우리가 트라우마의 기억을 재현하는 방식에 대해 새로운 가능성을 열어주었다.



#Insight: Between Lines


베를린 유대인 박물관은 원래 1933년에 설립, 2차세계대전 중 폐쇄되었다가, 전쟁 후 구관이 다시 문을 열었고, 베를린 장벽이 무너지기 1년 전인 2001년에 신관이 완공되었다

리베스킨트가 이름 붙인 신관 프로젝트의 또 다른 이름은 선들 사이에서(Between Lines)’ 이다. 설계 콘셉트는 다음 3개의 통찰을 바탕으로 한다.


1. 유대인들이 끼친 공헌에 대한 이해 없이 베를린의 역사를 이야기하는 것은 불가능하다.
2. 홀로코스트의 의미는 베를린이란 현 도시의 기억과 의식 속에 통합되어야만 한다.
3. 베를린과 독일은 한 때 역사에서 유대인이 지워졌었음을 올바로 인지해야 한다.

(Resource: https://libeskind.com/work/jewish-museum-berlin/)


리베스킨드는 이러한 통찰을 통해 2개의 선과 3개의 건축적 축 (axis)을 설정하고 건축적 형태를 구축했다.



#Form: 다윗의 별


건물의 디자인은 베를린 시에 남은 유대인들의 흔적을 찾는 것부터 시작한다. 전쟁 전에 베를린에서 살았던 유대인 유명 인사들의 거주지를 이어보니 유대인의 표식인 ‘다윗의 별‘의 다이어그램이 그려졌다. 이 형상을 다시 설계의 기준인 2개의 선으로 구성, 해체, 재구성하면서 지그재그 형태가 만들어졌다.

리베느킨드의 Sketch: 다윗의 별이 건물의 평면으로 구성, 해체, 재구성 되는 과정


리베스킨트가 사고, 조직 및 관계의 노선이라고 부른 2개의 선: 첫번째 선은 직선이며 유대인의 역사를 의미한다. 이 선은 파편화되고 부서지고 결국 끊겨진 선이다.

고난의 역사를 통해 추방되어 세계 곳곳에서 자신의 정체성을 이어가고 있는 유대인 디아스포라를 상징하는 두번째 선은 계속 굴절되면서도 꿋꿋이, 그리고 영원히 이어진다.

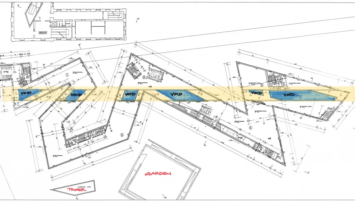
두 선이 서로 포개지고 교차하면서 건물의 핵심 형식, 정수인 Void(빈 공간)이 만들어진다.


리베스킨드는 보이드(Void)라는 건축적 형식을 통해 ‘홀로코스트(역사적 트라우마)로 생긴 유대인의 부재‘를 재현한다(Presence of absence). 막다른 선인 직선에 보이드가 놓이고 곡선의 선들에 놓인 통로를 통해 접근하거나 체험할 수 있다.

6개의 보이드 중 첫 4개는 건물 안에 존재하나 눈에 띄지 않게 숨겨져 있고 관람자는 들어갈 수 없는 곳이다. 트라우마 당사자의 경험을 우리가 온전히 경험하거나 공감할 수 없는 것을 뜻하는 듯 하다. 조각조각 부서져 배치된 보이드는 전쟁으로 지워진 생명들, 돌아오지 않는 세대, 사라진 인간성, 단절된 역사를 보여준다.


건물의 평면도 (plan): Void (부재의 공간, 파란색으로 강조)를 품고 있는 건물의 척추 (직선, 노란색으로 강조)


#Experience: 길 잃음


2개의 선(lines)이 형태를 구축하는 기준점이라면 3개의 축(axial routes)은 관람자의 동선을 이끌어주는 가이드라인이다.

각기 다른 이야기를 하는 3개의 축을 따라가면서 관람자는 설계자가 의도한 건축적 시나리오와 만나게 된다.


리베스킨트가 의도한 것은 박물관에 들어서는 사람들이 홀로코스트를 스스로 느끼고 생각하도록 등을 떠밀어 주는 것이다. 사실적 기록이나 사진의 복제하는 것이 아니라 경험과 느낌을 다시 재현함으로써 각자가 자신 마음 안에 있는 트라우마의 경험을 끄집어내고, 스스로 구체화할 수 있도록, 그래서 능동적으로 공감할 수 있도록 이끌어준다.


첫번째 길, ‘연속의 계단’ (the Axis of Continuity)은 지상의 전시 공간과 지하의 전시 공간으로 연결되며 역사의 연속성을 의미한다.

옛 빌딩(Baroque Kollegienhaus )의 지하에 숨겨진 은밀한 입구를 통해서만 건물로 들어갈 수 있다. 리베스킨트는 일부러 출입구를 지하에 숨겼다. 감추어진 기억, 트라우마, 옛 역사와 새 역사는 영원히 숨겨진 그곳에서부터 시작해야만 한다. 수직의 긴 계단을 통해 관람객은 숨겨진 상처의 구멍으로 들어간다.


날카로운 예각의 공간과 비뚤어진 사선의 벽, 보, 기둥, 그 사이의 보이드와 무질서한 창 – 여기저기 벽을 관통하고 중첩된 창과 구조물들은 감추어진 고통의 기억을 드러낸다.

건물은 그렇게 불안감을 유별하고 공격성과 상처를 경험하게 한다. 조명은 어둡고 동선은 의도적으로 방향성을 잃게끔 설계되었다. 비좁고 어두운 공간에서 길을 잃으면서 관람자는 혼돈의 시대를 지나와야 했던 유대인들의 마음을 경험하게 된다.


Photography by © SOO JIN KIM


비틀린 공간, 난도질당해 찢겨진 건물의 피부, 숨겨지거나 드러난 공허의 공간들을 따라 걷다 보면 두번째 길인 호프만 정원으로 가는 길(Garden of Exile and Emigration, the Axis of Exile)이 나온다. 베를린을 떠나 망명의 여정에 올랐어야 했던 유대인 이민자들의 역사를 기리는 길이다.

호프만 정원에는 6미터 높이의 기둥 49개가 가로 세로 7열로(하나님이 세상을 창조하시고 쉬신 일곱 날을 상징한다.) 세워져 있다. 기둥의 꼭대기에는 희망과 평화를 의미하는 올리브 나무가 심어져 자란다. 48개의 기둥은 전쟁 후 이스라엘에서 다시 국가가 설립된 1948년을 의미하고 이스라엘에서 가져온 흙으로 만든 마지막 49번째의 기둥은 +1, 즉 베를린을 의미한다.


기둥 사이의 길을 미로처럼 걸어가면서 관람객들은 육중한 현실의 벽을 헤메면서도 하늘, 그리고 그 위의 나무(희망)을 보고 계속 앞으로 갈 수밖에 없었던 유대인의 마음을 경험하게 된다. 바닥은 12도로 기울어져 있는데 이는 도저히 똑바로 걸을 수 없었던 망명의 길을 관람자가 체험할 수 있도록 의도적으로 설계된 것이다.




Photography by © SOO JIN KIM


정원 옆에는 마지막 세번째 길.

이 건물의 핵심인 홀로코스트 타워로 이어지는 막다른 길(the Axis of the Holocaust)이 있다.


묵직한 철문을 열고 안으로 들어가면 텅 빈 암흑을 만난다. 24미터 높이(7-8층 높이정도) 노출 콘크리트 탑에는 창문도 없고 조명도 없다. 사방이 벽이다. 냉난방 시설도 없어서 들어가는 순간 갑자기 서늘한 추위, 무거운 침묵과 마주친다. 어둠 속. 심연을 밝히는 것은 꼭대기에 살짝 열린 창 – 창이라기보다는 틈- 이다.

이 틈에서 내려오는 가느다란 빛이 그 어떠한 전시보다도 기록보다도 더 처절하게, 더 정확하게 더 진정성 있게 이 건물의 마음을 보여준다.


홀로코스트의 공포, 절망, 부재는 벌거벗은 공허로 적나라하게 드러난다. Absence, emptiness, invisibility. 보이지 않은 사람들, 지워진 시간이 절박하게 바랬던 가느다란 희망이 차가운 어둠 끝에, 닿지 않는 그곳에 있다.


Photography by © SOO JIN KIM


#Voice – 메아리. 비명. 목소리


베를린 유대인 박물관이 처음 완공되었을 때, 어떠한 기록, 사진, 전시 없이 텅 빈 건물 그 자체로 대중에게 공개되었다.

건물은 그 자체로 어떠한 기록보다도 역사의 큰 상처, 구멍 그리고 부재의 기억을 적나라하게 드러내고 말한다. 이미 답을 정해놓고 설명하고 있는 권위주의적인 기념 공간이 아닌, 스스로 빠지는 어둡고 모호한 미로. 구불거리는 건물의 동선을 따라서 이리저리 걷고, 60개의 다리를 건너면서 보이드를 만나다 보면 왜 이렇게 불편하고 어디가 어디인지 모르겠는 곳에 헤메고 있는가란 질문을 던질 수 밖에 없다.

이러한 체험을 통해 질문과 답이 메아리치는 마음의 미로가 열린다. 편안하게 수동적으로 역사의 기록과 설명을 읽고, 공부하기보다, 스스로의 느낌을 찾아가고, 길을 찾아가면서. 훨씬 더 능동적으로 그 시대를 만나게 된다.


이러한 내적 체험이 극대화되는 공간적 장치 중 하나는 체험할 수 있는 또다른 보이드인 ‘공백의 기억 (Memory of Void)‘이다.

베를린의 역사를 보여주는 구관과 홀로코스트의 역사를 보여주는 신관이 만나는 곳에 생긴 빈 공간으로 박물관 지하 바닥부터 천장 꼭대기까지 높은 벽을 양 옆에 두고 바닥에는 이스라엘 현대미술가인 메나쉐 카디쉬만의 ‘떨어진 나뭇잎들‘ 이란 작품이 설치되어 있다.

높이는 28미터 정도, 폭은 1미터 조금 넘을 듯한 이 좁고 깊은 공간에는 10,000개의 원형의 강철 조각이 낙엽처럼 바닥에 불규칙적으로 깔려 있는데, 금속 나뭇잎 하나하나는 입을 벌리고 울고 있는 듯한 사람의 형상이다.


관람객이 이 낙엽들을 밟고 지나갈 때마다 마치 비명처럼 챙, 챙, 하는 금속의 마찰음이 텅 빈 공간에 울려 퍼진다.

가해자가 되므로 피해자의 마음을 더 처절하게 느끼는 공감각적 경험을 통해 관람자는 차마 밟을 수 없는 것을 밟았던 과거를 엄숙하게 직시하게 된다.

말할 수 없었던 말은 금속의 비명으로, 작품으로, 공간의 시로 메아리친다. 언어가 아닌 목소리. 이 비명에서 무엇을 듣는가는 각 사람의 경험에 따라 달라질 것이다.


경험으로 만들어내는 기념비는 교조적인 수직 구조가 아닌, 낮은 곳으로 내려와 함께 비를 맞는 수평의 구조이다.

희생의 모습을 재현하지도 않고 위에서 위로하지도 않는다. 그저 추상적인 파편들로 각자의 고통을 환기함으로 공감할 수 있는 자리를 만들어준다. 불편함을 통해 낯설게 바라보고, 스스로 생각하게 한다.


빈 자리를 채우는 것은 각자의 고통과 견딤의 이야기이다. 공간은 그 옆에서 조용히 기다려주고 손을 잡고 다음 곳으로 같이 걸어간다.

홀로코스트의 기억은 나의 기억과 섞이고 내가 들은 소리 없는 목소리, 침묵의 음악은 나만의 공감을 통해 언젠가 다른 목소리로 ‘말해질 것이다’.

그런 목소리들이 모이고 섞이면서 시간은, 역사는 또 앞으로 나아간다.



메나쉐 카디쉬만의 ‘떨어진 나뭇잎들', Photography by © SOO JIN KIM


#목소리들이 속삭이는 곳*

(다니엘 리베스킨트는 건축이 다양한 목소리들이 속삭이는 곳이라고 정의했다)


리베스킨트는 원래 어릴 때 음악을 공부했다. 이후 데생, 역사, 건축이론을 공부하면서 설치미술과 무대 디자인도 했다가 결국 건축가로 이름을 알렸다.

음악가같이 태도로 건축을 접근하기에 그의 작품은 일종의 악보 같다.

악보(건축)를 읽고, 연주하고(경험하고) 음악을 (공간을) 느끼는 것이 동시에 일어난다. 이를 통하여 끌어내는 것은 각자의 해석과 공감, 그리하여 같이 만들어가는 문제 의식과 연대 의식이다.


“건물은 하나의 텍스트로서 의식에 의해서 또한 무의식에 의해서도 해석되어야 한다. 베를린 유대인 박물관에서 방문자들은 걸으면서 가두어져 있고, 불안하며, 불균형적인 상황을 느꼈으면 좋겠다.

- 다니엘 리베스킨트


말하는 순간 그 사건은 고통의 현장에서 떠나 이미 다른 것으로 승화된다. 그 때문에 트라우마같이 크고 어긋난 상처를 입고 입힌 경우, 용서를 빌 수 있고, 할 수 있는 당사자는 사건을 직접 "(정리된) 언어로 말할 수 없기에", 말하기엔 아직 너무 가깝고, 아직 너무 아프기에 진정한 용서와 재현은 불가능하다.


그럼에도 불구하고 불가능한 용서를 끊임없이 바라는 것, 시도하는 것, 그를 위해 지나간 역사를 올바로 환기하고, 사죄받을수없는 사죄를 시도하고, 용서받을 수 없는 용서를 계속 비는 것은 필요하다. 그것만이 우리가 앞으로 나아갈 수 있는 길이기 때문이다.


기억은 과거 사건의 저장이 아니라 앞으로 나아가기 위한 표현이다.

이렇게 역사의 트라우마를 진정성 있게 바라보고, 기억하고, 말할 수 있는 사람들은 그 상처의 후예들이다.

박수치기 전에 같이 울 수 있는 세대. 그러나 상처로부터의 거리도 지킬 수 있는.

윗세대의 상처를 공감할 수 있지만 앞으로 나갈 힘도 기를 수 있는 손자 손녀의 세대 – 우리는 기억하면서 말할 수 있는 유일한, 절묘한 세대이다. 용서는 불가능하지만, 화해를 꿈꿀 수 있다. 지나간 상처를 당사자처럼 경험할 수는 없지만, 나의 경험으로 공감할 수는 있는 위치, 새로운 상처를 만들지 않도록 나아갈수 있는 자리에 우리가 서 있다.


부재의 공간은 막연하고 추상적인 상징의 기념비가 아니라 관람객 개개인의 경험을 통해 이러한 적극적인 애도를 끌어내는 무대 장치이다.

애도와 공감을 통해 트라우마의 역사는 여전히 현재적인 것, 개인적인 것으로 간직될 수 있다. 개별 존재들이 모여서 만들어가는 사회적인 성찰로 새롭게 재구성 될 수 있다.

진정성과 공감 속에서 상처가 연결로 이어질 때, 가해의 역사와 피해의 역사는 그제야 같은 선상에서 만난다. 치유는, 용서의 가능성은 여기부터 시작된다.


Photography by © SOO JIN KIM


#용서할 수 없는 것을 용서하는, 말할 수 없는 것을 말하는,


베를린을 보면서, 데리다의 강의를 들으면서 서울을 생각하지 않을 수 없었다.

유대인의 역사를 느끼면서, 일제강점기를 겪은 내 할머니의 세대, 전쟁과 그 이후 급성장을 통해 비틀린 사회의 상처를 안고 있는 내 아버지의 세대, 그리고 한국인 디아스포라로 경계에서 흔들리고 있는 나의 위치를 떠올릴 수밖에 없었다.


상처를 품고 있는 도시. 트라우마의 기억이 아직도 생생하게 서려 있는 공간에서

어떤 이야기를 하는가. 어떤 이야기를 살리고 어떤 이야기를 멈추는가.

모두가 생각이 다르고 방향이 다를 때, 결국 건축가는 어떤 도시를 만들어야 하는가.


그 이전에 선행되는 질문은 “나는 말할 수 있는가”이다. 데리다의 강의장에서 말할 수 없어서 나는 울었다. 우선 울어야 했다.

그러나 울음 후에는 말해야만 한다. 나만의 진실한 언어로 말하기 위해서 최선을 다해 고민해야 한다.

매번 나는 도망가거나 주저했고, 쉽게 울었다. 사건이 터질 때마다 매번 뭔가 말하려다 그만두고, 말해서 창피하고 후회하고 반목하느니 편하게, 쿨하게 방관하는 것을 택했다. 그러나 힘들어도 끝끝내 말해야 한다. 말하면서 나의 목소리도 다른 이의 목소리도 들어야 한다.


공감이란, 타인의 아픔에 스며드는 여정이며,여전히 나의 슬픔이 깊을 때에도 타인의 아픔을 듣겠다는 선택이다.
- 레슬리 제이미슨

답은 건축적 양식이나 예술적 디자인이 아니라 상처를 대하는 자세에 있다.

낮은 자리도 돌아보는 공감의 마음, 최선을 다하는 고민의 깊이.

잘못을 솔직히 직시하고 진심으로 용서를 구하는 태도.

과거를 담고 앞으로 나아가려는 용기, 민주적인 담론과 투명한 과정,


이를 통해 같은 자리에서 각자 자신의 감각으로 비슷하지만 다른 이야기를 속삭일 때, 서로의 목소리가 모여서 새로운 역사가 된다. 상처는 그때야 물길을 타고 시간의 바다로 흘러간다.

그러한 성찰의 공간을 품는 것. 공간의 마음을 함께 느끼는 것. 그것이 도시의 품격이다.






# 더 나누고 싶은 것:

영화: "Wings of Desire" (베를린 천사의 시, 빔 벤더스 감독): Trailer

https://youtu.be/hAzzR2Uklok

영화 음악을 맡은 Nick Cave의 웹페이지:

https://www.nickcave.com/films/wings-of-desire/


# 더 더 나누고 싶은 것:

자크 데리다 - Portrait drawn by SOO JIN KIM

Covid Lockdown동안 하루 한명씩 연필초상화를 그렸어요. 저에게 힘이 되어주신 가족, 친구, 지인, 그리고 영혼의 스승님들을 그리면서 어둠을 바라봤습니다. 74번째로 그렸던 데리다의 초상입니다.




0+12개의 공간 이야기