평화로운 2층 단독주택 라이프

by 한글주택

도심에서 바쁜 삶을 사셨던 건축주님의 바람은 은퇴 후 한적한 곳에서 평화로운 전원주택 라이프를 즐기는 것이었다. 자연스럽게 빽빽한 아파트가 보이는 도심이 아닌 자연과 가까운 곳에 새로운 터전을 마련하기를 희망하셨고, 병풍처럼 이어지는 산과 바다를 볼 수 있는 곳에 2층단독주택을 건축하기로 마음먹으셨다.


2층전원주택-1층평면도.jpg
2층전원주택-2층평면도.jpg

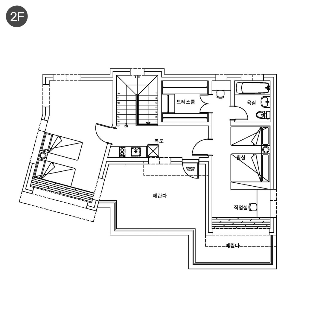
House Plan

위치: 강원도 양양군

건축형태: 철근 콘크리트

건축규모: 지상 2층

대지면적: 204평[676.90㎡]

건축면적: 29.1평[93.48㎡]

연면적: 51평[169.48㎡(1층 29평 / 2층 22평)]


Exterior - 외관


2층단독주택100.gif


따스한 색감의 스타코플렉스가 주변의 평화로운 풍경과 조화를 이룬 2층단독주택이다. 무채색의 난간과 창틀이 더해져 모던함과 고급스러움을 더한다. 전체적으로 단정한 직선을 사용했으나 1층과 대각선으로 살짝 틀어진 위층 구조는 독특하고 개성있는 무드를 만들기에 충분하다.


2층단독주택.jpg


2층단독주택 앞에는 차량 2대를 보관할 수 있는 실내 주차장을 설치했다. 동시에 자유로운 야외활동을 지원해줄 넓은 마당을 만들어 벌써부터 풍요로운 매일이 보이는 느낌이다. 이미 완벽에 가깝지만 애정을 갖고 지은 집인만큼 시간을 들여 하나하나 정성스럽게 꾸며 나가시는 건축주님의 모습이 즐거워 보인다.



Interior - 1층


2층단독주택2.jpg


문을 열고 1층으로 들어가면 새하얀 벽 사이로 파란 중문이 눈에 들어온다. 시원하면서도 무게감있는 컬러가 집의 첫인상을 세련되게 연출한다.



2층단독주택3.jpg


내부는 현관문을 기준으로 좌우로 나누어져있다. 우측에는 여러 사람이 사용할 수 있는 주방과 거실을 만들었으며, 전체적으로 화사한 기운을 느낄 수 있게 밝은 컬러로 기획했다. 중간중간 따스한 색감의 가구와 의자들이 흰색 특유의 차가운 기운을 눌러 더 아늑해보인다.


따뜻한 느낌을 선호하시는 건축주님의 취향에 맞춰 거실은 완전한 화이트가 아닌 베이지가 살짝 섞인 모습이다. 여기에 큰 창을 통하여 들어오는 햇빛은 내부에 기분 좋은 따스함을 더하고, 한적한 강원도의 시골 풍경은 자꾸만 거실에 머물고싶은 차분하고 편안한 분위기를 만든다.


2층단독주택101.gif


뒤쪽에 위치한 주방은 은은한 소재의 흰생 상하부장을 설치해 깔끔하고 모던하게 꾸몄다. 벽면 위주로 상하부장을 짜임새있게 넣어 현관을 통해 들어왔을 때 시원해 보인다. 한편, 거실과는 조리대를 이용해 공간 분리 효과를 줘 정돈되어 보이는 첫인상을 연출했다.


2층단독주택102.gif


구조는 ㄷ자로 배치하고 높이차를 이용하여 틈새 공간을 형성, 간단한 조리가전을 설치할 수 있게 세심히 계획한 흔적이 엿보인다. 주방 뒤편에는 별도의 다용도실을 추가하여 냉장고와 같은 큰 가전이나 잘 사용하지 않는 짐을 깔끔히 보관할 수 있게 했다.


2층단독주택103.gif


거실 반대편에 위치한 개인공간으로 가기 전에는 건식 세면대와 욕실을 볼 수 있다. 집의 중앙에 위치하고 있어 들어오자마자 손을 씻기 편하며, 1층의 생활동선을 줄이는데도 기여했다. 단, 너무 개방되어 있을 경우 사용하기 부담스러울 수 있어 간살 파티션을 설치해 적절히 분리감을 줬다.


2층단독주택4.jpg


개인공간은 들어가기 전 복도가 있어 비교적 조용하고 차분한 느낌이 든다. 내부 분위기도 휴식에 집중할 수 있게 편안한 화이트 컬러로 인테리어를 진행하고, 다른 용도의 공간은 벽으로 분리했다.


분리된 공간에는 독특하게도 미니주방이 설치되어 있다. 덕분에 아침에 일어나 마실 모닝커피나 브런치를 준비하러 주방까지 가야하는 수고스러움을 덜 수 있다. 여기서부터 시작되는 여유로움은 건축주님에게 일반적인 아파트에서는 누리기 어려웠던 편안함을 선사한다.



Interior - 2층


2층단독주택5.jpg


2층으로 올라가는 계단실은 단독주택의 전체적인 무드와 잘 어울리는 흰색과 나무로 꾸렸다. 두 소재가 만들어내는 밝고 아늑한 느낌에 채광창으로 들어오는 햇살이 따스함을 더한다.


2층단독주택6.jpg


윗층도 아래층과 똑같이 중앙에 복도를 두고 좌우로 공간을 분리했다. 복도에 생긴 여유공간에는 미니주방을 설치하여 2층에서도 대부분의 일상생활이 가능하도록 만들었다.


2층단독주택104.gif


복도의 양 옆에는 침실이 하나씩 준비되어 있다. 그 중 우측은 침실 겸 작업실로 건축주님의 자녀분이 사용하실 공간이다. 악기와 PC, 책장 등을 놓아둘 수 있게 창 아래쪽에 여유공간을 만들었다.


덕분에 책상이나 긴 바 테이블을 놓을 수 있어 여러 인테리어를 시도해볼 수 있다. 현재 자녀분께서는 긴 테이블을 놓아 2층단독주택에서만 누릴 수 있는 멋진 풍경을 매일 감상하는 중이다. 또한 작업 중간중간 기분을 환기시키거나 집을 방문한 손님들과 여유롭게 이야기를 나누는 즐거움도 만끽하고 있다.


DSC03027.jpg


문을 기준으로 작업실과 분리된 뒤쪽은 휴식을 위한 공간으로 활용 중이다. 침대 위치로부터 어느정도 거리가 있는 곳에 창을 두어 낮에도 아늑하고 편하게 쉴 수 있다. 창 아래에는 벤치나 의자 등 가구를 놓아둘 수 있게 여유공간을 만들어 식사나 티타임용 공간으로 쓸 수 있게 만들었다.


2층단독주택105.gif


반대편 침실은 편안히 휴식을 취하는 곳으로 기획했다. 긴 직사각형 구조 사이에 붙박이장을 설치하여 앞과 뒤 공간을 분리해 쉴 때만큼은 다른 생각없이 쉴 수 있다. 침대 옆에는 큰 창이 있어 주변의 풍경을 감상하며 여유를 부리기 좋다.


2층단독주택7.jpg


뒤쪽에는 욕실과 드레스룸이 있어 휴식을 취하다가도 편히 이용할 수 있고, 프라이빗한 느낌도 받아볼 수 있다. 외출 후 집으로 오자마자 방으로 올라가 샤워를 하고 조용하고 차분히 쉴 수 있는 집은 건축주님의 가족들에게 많은 위안을 줄 것이다. 이러한 효과를 극대화할 수 있도록 욕실에는 따스한 패턴과 색감의 타일을 이용했으며, 줄눈이 덜 드러나는 큰 크기를 선택해 관리의 번거로움도 줄였다.



Interior - 베란다


2층단독주택8.jpg


2층단독주택의 꽃인 베란다는 복도를 통하여 나갈 수 있게 만들었다. 넓은 공간의 벽은 따스한 색으로 채우고, 깔끟만 바닥과 나선형 계단으로 독특함과 여유로움을 표현했다. 이곳에서만 즐길 수 있는 강원도 양양의 푸른 풍경은 도심에서는 찾아보기 어려운 단독주택만의 기쁨이다.




무료 건축상담신청 바로가기


2층단독주택 하단배너.jpg


keyword
매거진의 이전글경기도 단독주택 ,자연을 마주한 건강한 일상을 만들다