쿠리만수토 / 카사와비 갤러리

24.08.03_Galeria Kurimanzutto/Casa Wab

by 리리송

위치 : 멕시코시티 (C. Gobernador Rafael Rebollar 94, San Miguel Chapultepec I Secc, Miguel Hidalgo, 11850, CDMX)

설계 : TAX

준공 : 2008 (설계기간 : 2006)

연면적 : 1,300 sqm

용도 : 갤러리 (문화 및 집회시설)


쿠리만수토 갤러리 중정 (출처 : Archdaily)

주말 간 집과 가까이에 있는 두 개의 갤러리를 다녀왔다. 하나는 리모델링 프로젝트, 하나는 신축 프로젝트이고, 두 건물 모두 TAX 건축사사무소에서 설계를 하였다. 새로운 사무소를 출근하기 전, 내가 다니게 될 곳에서 설계한 건물을 직접 답사해보고 싶었다.


쿠리만수토 갤러리는 콘스티투얀테(Constituyentes) 역에서 0.5km 떨어져 있어서 5분 정도 걸어가면 도착할 수 있다. 이 지역은 주거지역으로 도로를 중심으로 2-3층 주택이 줄지어있었다. 그리고 나무가 많이 자라 기분 좋게 걸을 수 있었고, 1층에는 중간중간 음식점, 식료품점, 빵집 등이 위치하고 있어서 활력이 있는 주거지역이었다. 다만 주차문제가 심각해 보이는 전형적인 주거지역의 경관이었다.

쿠리만수토 갤러리 앞 거리

핸드폰 구글지도를 따라 갤러리 주변에 도착했는데, 건물을 찾기 힘들었다. 우리나라처럼 간판이 있는 것도 아니었고, 도로에 접한 파사드는 주변 건물에 비해 독특한 디자인이 아니었다. 앞에서 서성이니 살짝 열려있는 문 사이로 보안관이 들어와도 된다는 손짓을 해주었고, 그제야 이 건물이 쿠리만수토 갤러리라는 것을 알게 되었다. 들어가기 전에 건물 파사드를 살펴보니 1층은 목재, 2-3층은 하얀 스타코 마감으로 디자인되어 있었다. 그리고 2-3층은 네 개의 서로 다른 창이 나 있었다. 1층과 2층의 재료와 형태가 달라지는 건물의 대부분은 그 공간의 용도와 기능의 차이에 연유하기에 이번 건물의 내부는 어떻게 사용되고 있는지 궁금해하면서 내부로 진입하였다.

쿠리만수토 갤러리 전면부

두꺼운 목재문을 지나니 왼쪽에는 서점 및 기념품샵이 있었고, 정면에는 중정이 보였다. 마지막에 서점을 들리기로 하고, 중정을 향해 걸어가니 인터넷에서 많이 보았던 공간이 나타났다. 천천히 안쪽으로 걸어 들어가 통로에 의자가 있어 잠시 앉아 중정을 구경하였다. 여기서 보니 건물 밖에서 보였던 전면부 2-3층은 쿠리만수토 갤러리를 운영하는 오피스로 사용되고 있었고, 중정을 지나 안쪽에는 전시공간으로 사용되고 있었다.

입구에서 이어진 통로 / 2층으로 올라가는 계단

중정은 참 단순하지만 기분이 좋은 공간이었다. 먼저 좌측으로는 오피스, 우측으로는 전시공간으로 나누어지는 중간 지점에 완충공간으로서 중정을 계획하여 기능적으로 명확하게 공간을 분리하는 평면 구성이었다. 그리고 TAX가 설계한 건물에서 자주 볼 수 있는 자스민 아마리오 (캐롤라인 자스민)가 많이 자라 공간의 분위기를 생기 있게 변화시켜 주었다. 콘크리트와 목재로도 충분히 아름다운 재료 조합이지만, 조경과 빛이 들어오니 공간 자체가 더욱 근사하게 다가왔다. 외부에서는 건물 안쪽에 이렇게 오픈 보이드가 있을 줄은 예상하지 못했고, 타다오 안도의 스미요시 주택이 떠오르는 구성이었다. 멕시코시티는 우리나라처럼 우기(6-8월)가 있지만 비가 한꺼번에 많이 오지 않기 때문에 이런 공간이 가능하지 않나 하는 생각도 들었다.

중정01 / 중정02
중정03 / 중정04

중정을 경험한 후에 우측 갤러리 내부로 들어갔다. TAX에서 리모델링에서 집중한 부분이 전시공간이었고, 하얀 벽체에 목구조 지붕이 꽤 인상적이었다. 멕시코에서 목구조 건축을 볼 것이라 예상을 못했기 때문에 신선하게 느껴졌다. (그러나 나중에 알고 보니 TAX에서는 목구조 프로젝트를 꽤 많이 진행했다) 그리고 한옥처럼 가구식 구조가 아니라, 스페이스 프레임 방식으로 디자인되어 있었고, 이를 통해 지붕 모서리에 틈을 만들어 내부로 빛이 들어올 수 있는 독특한 지붕이 형성되었다. 가구식 구조에서는 지붕의 끝 점이 양쪽으로 지지하는 방식이기에 지붕 모서리에 틈을 만들어내기가 쉽지 않지만, 새로운 방식으로 목구조를 해석하여 완전히 새로운 공간을 만들어냈다는 점도 무척 인상적이었다. 이 건물을 답사하며 내가 보고 경험한 한옥이 목구조의 가능성을 제한하고 있지 않나 하는 생각이 들었다.

전시공간 입구
전시공간 천장 목구조

천장을 제외하면 내부는 다른 특이한 점은 없었다. 다만 목구조가 양쪽의 기둥으로 힘을 전달하는 것이라 이해했는데, 나중에 도면을 보니 양쪽에 콘크리트 벽이 서있어서 지붕의 자중이 양쪽 콘크리트 벽으로 힘을 전달하고 있었다. 그리고 다른 재료를 사용하여 이전과 같은 공간을 구현해 내는 방식을 통해서 새로운 리모델링 방식을 제안했다는 점도 인상적이었다. 아쉬운 점은 전시공간 뒤쪽으로 다시 야외 전시공간과 화장실이 나오는데, 현재에는 진입이 불가능한 점이 아쉬웠다. 특별전시가 있을 때 다시 열린다고 하니 이 부분은 나중에 업데이트를 해야 할 것 같다.

내부에서 본 전시공간 입구 / 전시공간01
전시공간 02

쿠리만수토 갤러리는 작은 전시공간이었지만, 중정에 앉아있을 수 있고, 독특한 전시공간을 구경하며 꽤 오랜 시간을 보냈다. 무거운 콘크리트와 독특한 목구조, 이를 연결시켜 주는 조경과 빛이 무척 인상적인 갤러리였다. 다만 전면부 오피스 건물과 후면부 외부 전시공간을 둘러보지 못한 점이 아쉬웠기 때문에 특별전시가 이루어지면 다시 방문하여 건물 전체를 다시 한번 구경하며 새로운 점들을 발견하고 싶다.



<참고 도면 및 자료들>

52_Archdaily.jpg 평면도 (출처 : Archdaily)
입면도_정면도 (출처 : Archdaily)
단면도 (출처 : Archdaily)



#세줄요약

- 열린 중정의 기능과 분위기

- 스페이스 프레임을 따른 목구조 디자인

- 새로운 리모델링 방식의 제안




위치 : 멕시코시티 (C. Sabino 336, Atlampa, Cuauhtémoc, 06450, CDMX)

설계 : TAX

준공 : 2023 (설계기간 : 2019-2021)

연면적 : 7,050 sqm

용도 : 갤러리 (문화 및 집회시설)


카사와비(CDMX) 정면샷 (출처 : TAX)

TAX에 입사를 앞두고 인사차 방문한 날, 주말에 카사와비(CDMX)에서 TAX의 건축모형 전시가 있다는 이야기를 들었다. 그리고 주말에 건축 답사 겸, 모형을 구경할 겸 이곳에 다녀왔다. 어떠한 정보가 있었던 것은 아니었기에 특별한 궁금증을 갖기보다, 최근에 완공된 TAX 건물을 구경한다는 느낌으로 다녀왔다.


카사와비 CDMX 갤러리는 노르말(Normal) 역에서 2.3km 떨어져 있어서 30분 정도 걸어가면 도착할 수 있다. 역에서 내려 걸어가는 동안 주변지역은 허름한 주거지역이었고, 갤러리에 가까워지니 공장도 여럿 보였다. 추측컨대 서울 성수동처럼 도시가 확대되며 과거 공장단지가 외부로 이주하고, 공장 부지를 새롭게 개발하는 지역이 아닐까 생각해 보았다.

카사와비로 가는 길 / 카사와비 입구

카사와비에 도착하니 노출 콘크리트와 벽돌의 조합으로 지어진 건물 하나가 보였다. 최근에 지어진 건물이라 현대적인 재료를 사용하지 않았을까 하는 추측에서 완전히 벗어났다. 현대적인 방향이 아니라 근현대 건축의 방향성을 유지하는 TAX의 지향점에 기쁨의 안도를 하며 건물을 둘러보기 시작하였다. 노출 콘크리트와 벽돌의 조합의 대표주자로 루이스 칸의 도서관이나 뮤지엄이 떠오르기에 거장의 재료 조합이라는 고정관념이 있고, 또한 우리나라에서는 두 재료가 만나는 부분에서의 단열 처리가 문제가 되기에 은근히 보기 힘들다는 점도 이번 건물이 기대가 되었다. (나중에 알게 되었지만 멕시코는 따뜻한 나라이다 보니 단열에 대한 규정이 없어 구조문제만 해결된다면 재료의 전환이 자유롭게 이루어질 수 있다. 그래서 TAX에서는 꽤 여러 건물에서 노출콘크리트와 벽돌의 조합으로 설계한 건물이 많았다.)

카사와비 전면부

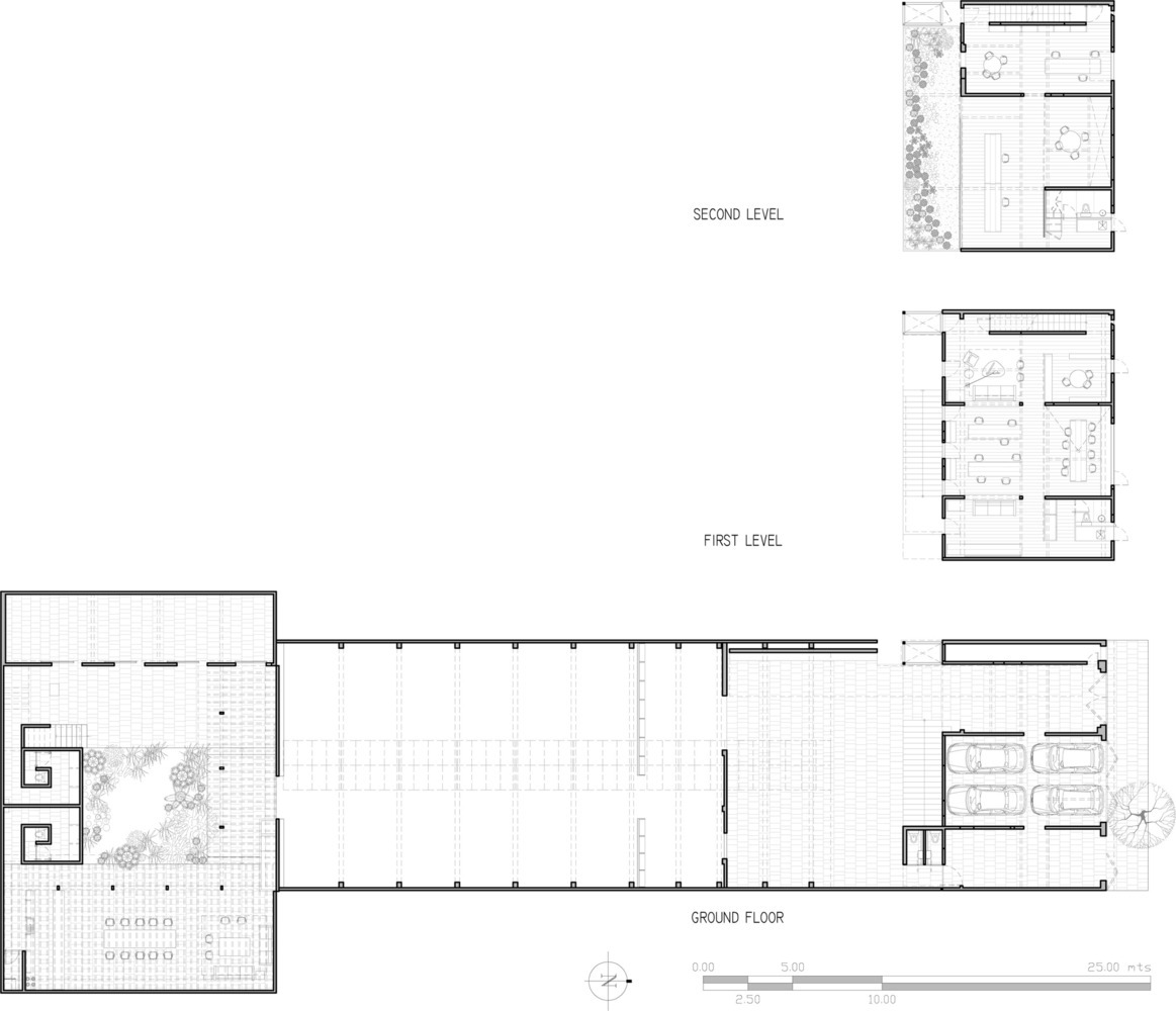
입구를 지나 내부로 들어가자마자 중정, 계단과 엘리베이터가 시선을 사로잡았다. 외부에서는 사각형 박스 건물이라고 예상했는데 내부가 생각보다 역동적이어서 놀랐다. 전면부와 후면부 건물을 잇는 긴 철골계단과 누드엘리베이터는 외부의 단단한 재료와 상반되는 느낌이었고, 이곳이 과거 공장단지였다는 흔적을 남기는 듯 재료를 선정한 것 같았다. 전시회 첫날이라 많은 사람이 방문하여 계단을 걸어 다니는 모습은 공간을 더욱 역동적으로 만들어주었고, 수직으로 뻗은 엘리베이터도 하나의 멋진 오브제 같았다. 전시공간에 들어가기에 앞서 중정에 서서 걸어 다니는 사람을 멍하니 관찰하였다. 이후 중정을 거쳐 일층 전시공간으로 진입하며 문득, 어제 다녀왔던 쿠리만수토 갤러리와 마찬가지로 외부 중정을 거쳐 전시공간으로 진입하는 과정이 데자뷔처럼 느껴졌다. 약 15년 간격으로 지어진 소규모 갤러리에서 일관된 공간구성으로 계획되었다는 점이 무척 인상 깊었다.

카사와비 중정
카사와비 입구 / 카사와비 코어부

갤러리 안으로 들어가니 콘크리트 벽으로 구성된 심플한 전시공간이 나타났다. 특별할 것 없는 공간이었지만, 탄 목재와 같은 색으로 페인트 칠해진 철골빔으로 인해 독특한 공간으로 변모하였다. 내부 공간에 들어오니 건축가 칼라치의 정체성이 드러났다. 그의 건축에서는 항상 구조가 건물을 지지하는 역할을 넘어서서 공간의 분위기를 결정하고 있다는 점이었다. 이 공간에서 어떠한 장식이나 마감도 사용하지 않았지만, 구조의 색감을 통해 독특한 전시공간이 탄생하였다.

갤러리_1층

그리고 뒤쪽으로 야외 중정으로 이어져있었다. 작은 외부공간에 큐빅 벽돌이 전시되어 있으며, 노출콘크리트와 벽돌, 그리고 칼라치의 시그니처 레일이 아주 멋진 공간을 만들어내고 있었다. 그리고 콘크리트에서 벽돌로 전환되는 부분과 벽돌이 쌓여있는 부분에서 어떻게 디테일이 처리되었는지 궁금해졌다. 외부 입면에서부터 느껴졌지만, 노출 콘크리트와 고벽돌의 조화, 그리고 중간중간 패턴의 변화는 그 자체로 묵직한 느낌을 자아내고 있었기에 바로 2층으로 올라가지 못하고 계단에 앉아 얼마간 공간을 감상하였다.

갤러리 후면부 야외 중정 01 / 02
갤러리 후면부 얗외 중정 03 / 04

이후 계단을 따라 2층으로 올라갔다. 2층에는 앞서 말한 대로 알베르토 칼라치의 건축모형 전시가 이루어지고 있었다. 공간의 형태 자체는 1층과 크게 다르지 않았지만, 3층으로 뚫려있는 보이를 통해 내려오는 빛이 또 다른 공간을 경험하게 해 주었다. 빛과 그림자로 인하여 공간의 밀도가 점진적으로 변하였고, 이곳에 놓인 다양한 건축 모형으로 공간이 활기차게 느껴졌다. 전시를 보면서 학생 때부터 궁금했던 건축모형과 실제 건축사이의 관계를 연결 지으며 전시를 구경하였다.

갤러리 2층 01 / 02
갤러리 2층 03 (칼라치 건축 모형 전시)

2층 구경을 마치고 이번에는 전면부 중정 쪽의 외부계단을 이용하여 3층으로 올라갔다. 도로에 접한 전면부 건물과 스킵플로우 형태로 공간이 계획되어 있었고, 전면부 건물은 카페, 작업실 등으로, 후면부 건물은 갤러리로 사용되고 있었다. 계단을 오르며 중정을 둘러보는데, 단이 높지 않고 야외에 있어서 마치 램프처럼 산책하는 느낌이 들었다. 그리고 2.5층부터 우측 노출 콘크리트 재료가 벽돌로 바뀌며 또 다른 분위기를 만들어내고 있었다. 당연히 계단이 우측 콘크리트 벽에 지지되어 있을 것이라 예상했는데, 갑자기 벽돌로 재료가 바뀌는 것을 보니 이를 해결하기 위하여 독특한 구조계획이 필요했을 것이다. 계단이 단변축으로 지지되고 있지 않고, 전면부-후면부 건물을 연결하는 장변축으로 힘이 전달되도록 계획한 것이다. 재료의 변화를 위하여 특수한 구조 해결책을 제안했다는 점이 꽤 인상적이었다.

중정 외부계단01 / 02

3층으로 올라오니 천창으로 인하여 2층보다 더 밝은 공간이 나타났다. 앞서 언급했듯이 1-3층은 비슷하게 공간이 구성되어 있었지만, 3층의 천창에서 투과된 빛의 양에 따라 공간의 분위기가 달라지고 있었다. 특히 3층에는 사선으로 만들어지는 그림자 패턴이 마치 공간의 한 요소로 여겨졌다. 전시 자체도 관심이 있었지만, 빛과 그림자로 만들어진 패턴과 공간은 또 다른 전시 요소처럼 느껴졌다. 그리고 3층에는 바깥으로 나갈 수 있는 베란다가 있어 작은 야외 전시장까지 계획되어 있었다. 밖에서 보기에는 박스 건물이었지만, 열린 보이드 공간과 셋백 되는 공간을 활용하여 다양한 공간을 구성한 점도 무척 흥미로웠다.

3층 / 그림자 패턴이 형성된 모습
3층 / 외부 베란다 전시공간

최상층으로 가기 전에 전면부 건물의 옥상정원에 도착하였다. 이 공간은 벽돌로만 이루어진 공간으로 전면부와 후면부 건물을 완전히 대비시켰다. 전면부는 2.5층부터 벽돌로 이루어졌고, 옥상정원에서 바닥까지 벽돌을 활용하여 노출콘크리트-벽돌에서 벽돌을 적극적으로 부각했다. 그리고 후면부 건물은 콘크리트와 철골을 활용하여 노출콘크리트를 적극적으로 부각하고 있었다. 옥상정원에는 조그만 조각이 전시되어 있었고, 난간부에 조경이 심어져 있어 가까이 가지 못하도록 안전에 대비하였다. 이곳에서 전면부 중정과 계단부를 구경하고 최상층 전시공간으로 이동하였다.

전면부 건물 옥상정원
옥상정원에서 본 중정 / 최상층 입구에서 본 정면부 건물

최상층 공간은 경사진 천장을 통해 또 다른 공간으로 변모하였다. 북쪽으로 지붕을 들어 올린 외쪽지붕 형태로 디자인하여 반사광이 들어오도록 계획하였다. 최상층에 와서야 선홈통과 설비가 눈에 들어왔다. 이는 외쪽지붕을 통해 한쪽에서만 물을 처리해도 되도록 계획하였고, 이 주변에 설비시설을 배치하여 난잡하게 설비시설이 가로지르지 않아도 되도록 정리하였다. 천장 디자인을 통해 채광과 설비를 정리하는 섬세한 디자인이 이 건물이 깔끔하게 느껴졌던 것이다.

갤러리_4층
후면부 건물 입구에 위치한 설비 01 / 02

외부 모습은 단순한 박스 형태에 노출 콘크리트와 벽돌의 조합으로 디자인된 건물이라고 생각되었지만, 이 둘 간의 비례감과 어디서 재료의 전환이 이루어지는지 등을 결정한 디자인을 자세히 관찰하였다. 또한 앞선 쿠리만수토 갤러리와 마찬가지로 ‘전면부 건물-전면부 중정-갤러리-후면부 중정’의 반복되는 공간구성이 인상적이었고, 이번에는 갤러리가 수직으로 적용되며 다양한 오픈 스페이스와 중정, 지붕 디자인을 통해 다양한 전시 공간을 계획한 점도 재미있었다. 특히 겉보기에 박스형 건물이 내부의 다양한 공간으로 구성되어 있는 반전이 인상 깊었다. 두 건물을 답사하며 TAX에서 일하기 전에 설계사무소에서 디자인한 건물을 답사하여 조금이나마 그의 건축요소를 이해했다는 점이 뜻깊었다.

카사와비 정면뷰 (출처 : Archeyes)



<참고 도면 및 자료들>

1층 평면도 (출처 : Archeyes)
단면도_01 (출처 : Archeyes)
단면도_02 (출처 : Archeyes)



#세줄요약

- 노출 콘크리트와 벽돌의 조화로움

- 중정의 역동적인 계단과 엘리베이터

- 다양한 전시공간 구성과 빛

keyword
이전 11화바스콘셀로스 도서관