brunch

양평 이층 집 (2)

2016년, 먹고 자는 것에 관심 없이 사는 곳만 만들겠다던 건축인

by 최지원

전에 살던 구의동집에 비하면 모든 것이 너무도 넓었다.

이사 가기 전 집에 방문에 실측을 하고 도면을 그리고 기존 가구와 구매할 가구들을 미리 배치해 두었다.



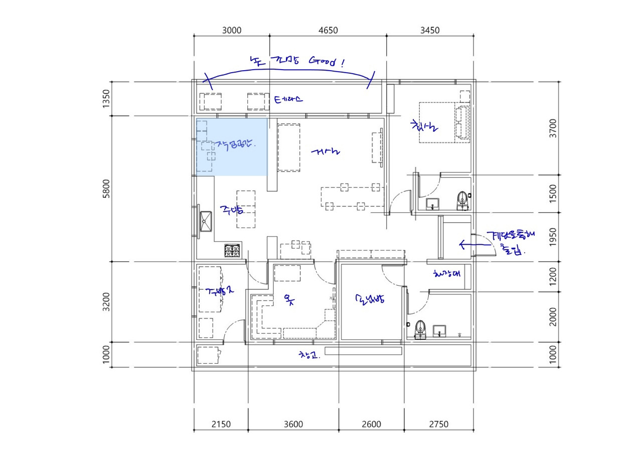
거실과 주방을 가르는 장식벽

거실과 주방을 가르는 장식벽

개별공간을 언급하기에 앞서 이 집을 보고 제일 의문이 들었던 것이 이 장식벽이다.

이 장식벽은 왜 있는거지

설계자도 공간이 너무 커서 어찌할 바 모르고 중간에 괜히 파티션을 집어넣은 걸까

3000, 4500 비율로 거실과 주방을 나누고 있는 장식벽이 아쉬웠다.

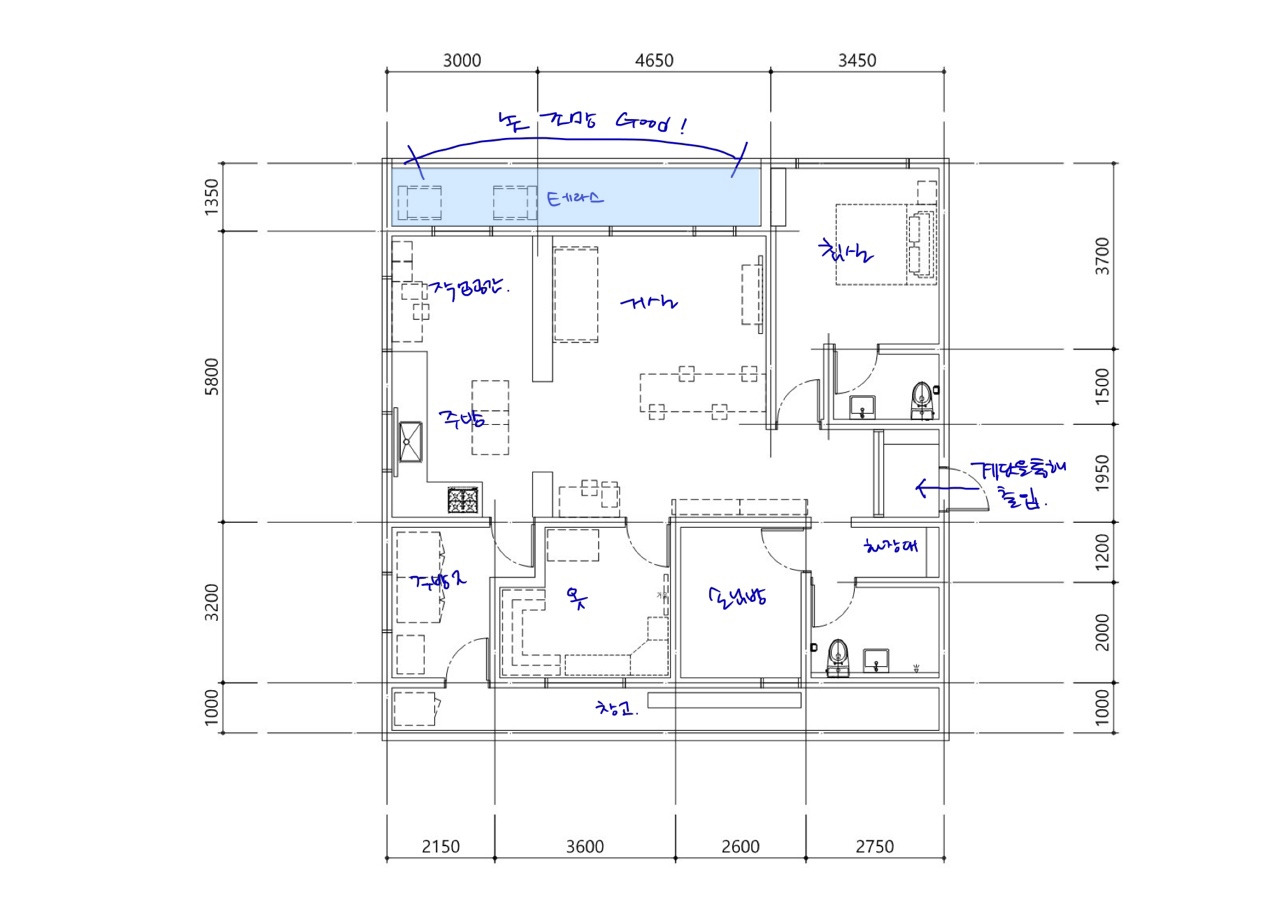
현관을 진입해서 장식벽을 바라보면 이런모습이다.

모든 건축가는 자신의 마음한구석에 집의 원형이 있는 것 같다. 각자가 생각하는 최선의 평면이 나와야 완성되는 느낌을 갖는다. 주로 자신이 어린 시절 살던 집의 평면과 비슷해지기도 한다. 마음속에 공간이 각인되는게 아닐까 내심 추정한다.

나로 예를 들자면 주거 평면을 설계하다 보면 단독주택임에도 84 아파트처럼 평면이 나와야 마무리가 되는 느낌이 든다. 자신이 살아온 집이 자기도 모르게 자신의 건축의식 속에 원형으로 자리 잡아 평면을 기능에 맞게 고치다보면 어린시절이나 제일 익숙한 평면으로 회귀하게 되는 소름돋는 일이다.

그런 맥락으로 이 집을 설계한 사람의 입장을 생각해본다. 아무래도 이렇게 집안에 대공간이 벽으로 나뉘지 않는 것은 그냥 둘 수 없었던 것 같다. 벽 선반의 마감이나 칸의 구성이 거슬린것도 있지만 볼때마다 납득이 되지않는 디자인이라 (공사비를 써가면서? 구조벽도 아닌데? 예쁘지도 않은데...? 기능적이지도 않잖아?) 커튼으로 가리고 살았다. 집에 들어오자마자 설거지가 정면으로 보이는 구조였던 이유도 있다. 왼쪽 편은 르꼬르뷔제의 포스터를 폼보드에 붙여두었다.

커튼으로 가림




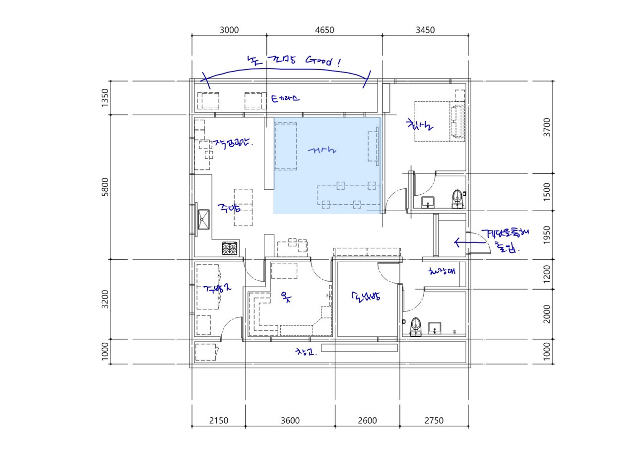
거실

거실

이케아에서 8명이 넉넉하게 앉을 수 있는 테이블을 구매했다. 평소에는 남편과 내가 각자의 노트북과 서브 모니터를 올려놓고 작업했다. 나는 글을(주로 블로그) 쓰고 남편은 의뢰받은 건축설계 일을 했다. 회사를 그만두면 개인 프로젝트가 많이 생길 줄 알았는데 남편만 그랬다. 나는 회사를 그만두고 나니 개인적인 프로젝트가 하나도 안 생겨서 혼자 공모전을 하거나 건축사 시험공부를 했다.

거실

한 명이 딱 눕기 좋은 침대처럼 생긴 소파에 종새와 자리싸움을 하다 뒤엉킨 상태로 정지해서 텔레비전을 봤다. 몸의 어디 한부분이 저릴 때까지 그 자세로 있었다. 아래층 근생은 계속 비어있어서 층간소음걱정은 커녕 집에서 장구랑 꽹과리를 광광쳐도 될 정도로 집간의 거리도 멀고 주변에 아무도 안 사는 느낌이었다. 아침마다 방방 뛰며 새천년 건강체조를 하고 집에서 노래를 부르려고 블루투스 마이크를 샀다.




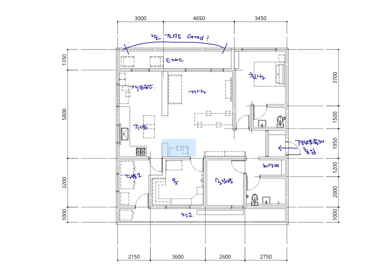
주방 옆 작업공간

주방 옆 작업공간

집안에서 창문을 열면 새소리만 들렸다.

새소리는 나에게는 소음이 아니다 보니 필요 이상으로 고요하다는 생각이 들었다. 집에서 방문을 닫고 어딘가로 들어가면 고요함이 한도초과가 될 거 같아 모든 것을 거실에서 했다. 주방옆에 넉넉한 폭의 공간이 있어서 작업공간을 만들었다. 꿀 같은 시간을 더 꾸덕꾸덕하게 만들고 싶어 가죽공예를 배웠고 햇살이 잘 드는 자리에 출근하듯이 몇주 연속 눈을 뜨자마자 찾아가서 베지터블 가죽에 망치질과 바느질을 했다.




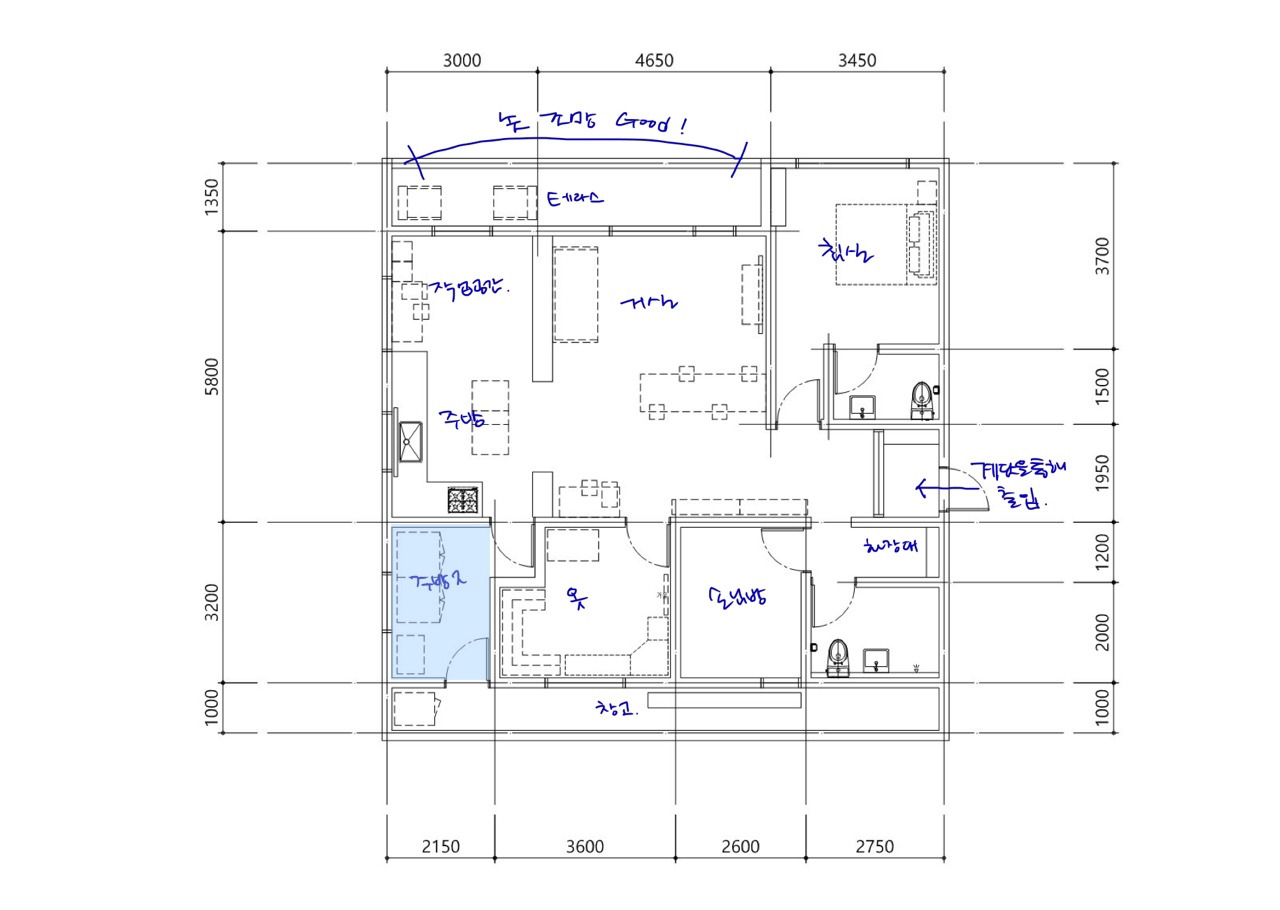
건축사 시험준비 존

건축사 시험준비 존
건축사 시험준비 존

공간도 남고 책상이 남아서 거실로 꺼내 제도판을 설치해 건축사 시험공부를 했다.




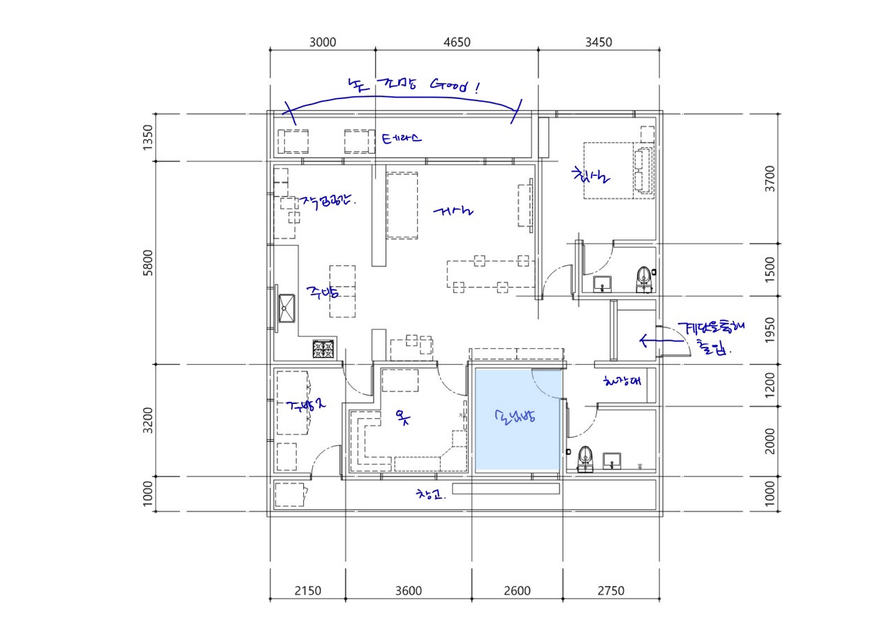
다용도룸-주방2

다용도룸-주방2

요리도 많이 하게 되어 김치냉장고를 샀다.




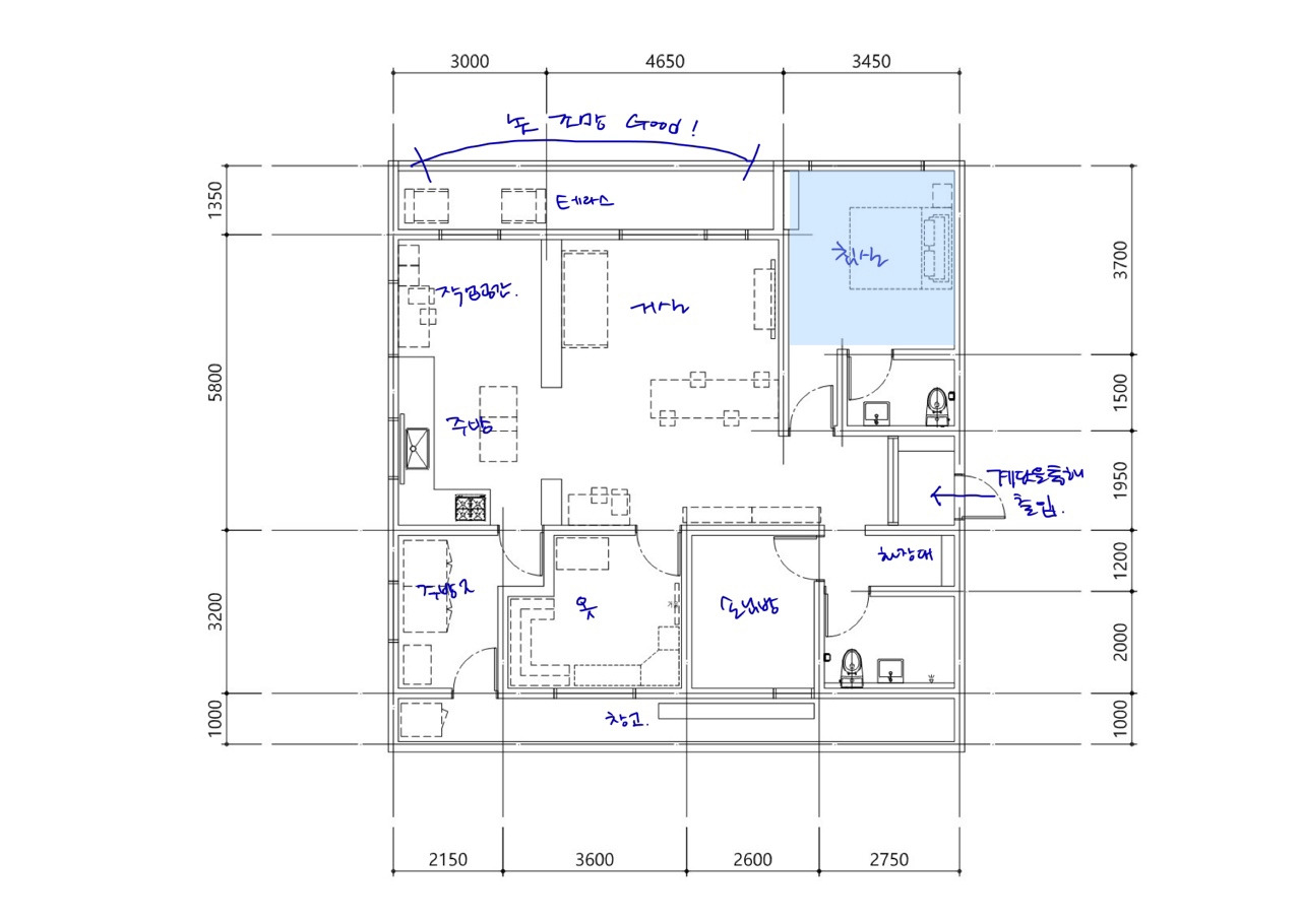
침실

구의동에 살 때는 벽 쪽에 붙어 자다가 화장실이라도 가려면 누군가를 조심히 넘어가야 했다. 아무리 흔들리지 않는 편안함의 시몬스 침대라고 해도 종새는 잠을 깼다. 구의동에 살동안 나의 소원은 통로, 침대 양측의 통로확보였다. 양평이층 살면서 통로를 얻었다.

침대를 두고도 운동장 같은 침실





테라스

누구라도 우리 집에 오면 테라스를 보며 환호했다. 테라스에 소파를 내놓고 날씨가 좋으면 논을 바라보며 커피를 마시기도 했다.




옥상

집의 평수 그대로 집의 머리 위에 반듯한 옥상이 있었다. 거대옥상에서 우리는 불꽃놀이를 하고 셔터스피드를 잔뜩 느리게 해서 불꽃으로 글씨를 만들었다. 시골에 오면 다들 마음이 따뜻해지는지 대부분 4명이서 짝을 지어 LOVE를 만들었다. 기분이 울적한 날이었는데 종새는 코튼볼을 잔뜩 달아놓고 그 한가운데 치킨 한 마리를 두고 옥상에서 나를 불렀다. 나는 우주의 중심에서 닭 뜯는 느낌이라 신난다고 말했다. 과거 함께 야근하던 친구들이 집에 놀러 오면 낮에는 옥상에서 병맥주를 마시고 저녁에는 거실의 큰 테이블에서 와인을 마셨다. 그리고 웨버그릴을 사서 꼬치를 잔뜩 만들어놓고 남편의 직장동료 열댓 명이 도착하기를 기다렸다가 함께 파티를 했다.




손님방

방이 4개, 집에 사는 사람은 두 명이고 문 닫고 방에 들어가기 싫어 매우 큰 거실에서 주로 상주하다 보니 아무것도 들어있지 않은 방이 있었다. 이 시기에 세간살이들이 한계를 못 느끼고 늘어나고 있었는데도 말이다. 비어있는 이방을 손님방이라 하였다. 응당 펜션이라면 손님방이 있어야지, 손님용 이불을 구비해 두었다.




호스트

파티가 흔했다

좋은 일도 축하할 일이 있는 것도 아니었는데

대부분의 전원생활을 하는 사람들이 자주 겪는 일이다.

전원생활을 해서 당연 축하할 일이 많은 것은 아니다 한강에 가면 치킨을 먹고 싶듯 공간이 저절로 만드는 이벤트다.

나는 이런 기분이 자주 들곤 했는데

다 같이 펜션으로 놀러 갔다가 바비큐를 하고 불꽃놀이를 하고 노래방기계로 노래를 부르고 난 내일 출근해야 돼서 이만 - 하며 하나둘씩 떠나고 그럼 나도 이제 가야지 하고 짐을 챙기려는데 펜션에 짐을 너무 많이 싸왔다.

책상도 싸 오고 침대도 싸왔다.

어라.. 여기가 내 집이네 나 지금 펜션에 살고 있는 건가?

딱히 축하할 일도 없는데 나는 왜 그리 호스트 역할을 했는지 큰 공간을 점유하고 있으니 사람으로 채워야 할 것 만 같고 그런 시간들이 적립되는 것이 뿌듯했다. 이 당시 가족모임 장소로 우리 집을 활용했다. 엄마의 환갑잔치에는 조카들이 마이크로 노래를 부르고 아버지가 어머니께 편지를 낭독하고 어머니에게 꽃머리띠를 만들어 드렸다. 사람들에게 생활을 공유하고 넉넉하게 보이며 살았다.


주말마다 서울의 교회에 갔다.

평일에는 남편이 성수동으로 차를 끌고 출근을 했다. 차가 한 대밖에 없어서 남편이 차를 끌고 가면 나는 아무 데도 가지 못했기에 양수역으로 종새를 데려다주고 돌아왔다. 양수역에서 경의중앙선을 타고 경기도민의 설움을 느낄 종새가 안쓰러웠다. 그건 1 사분면에 속해있는 사람 같았다. 많이 멀긴 멀었다. 회사까지 40킬로 가까이 되었으니 말이다.


놀만큼 놀았다는 생각이 들기 시작했다.

다시 설계를 하고 싶었다. 나는 꽤 뾰족했는지 조직의 어느 포지션에 갖다 놓아야만 빛나는 사람이었다. 스스로도 빛나는 줄 알았는데 혼자서 시작과 끝을 만들어내는 추진력과 절박함은 부족했다. 소속감을 느끼고 매일아침 졸린 눈을 비비며 어디론가 가고 싶어 논현동에 있는 어느 공간디자인 회사로 장거리 출퇴근을 하게 되었다.


갑자기 담배연기가 왜 여기서 나와…

1년 넘게 공실로 있던 1층 카페에 결국 집주인 분이 카페를 차리셨다. 평일에는 안타깝게도 손님이 두 팀정도 왔다. 주말에는 자전거 타는 사람들이 들렀는데 도시사람의 부류 중

카페 문 앞에서 담배 피우는 사람들 중

인적 드문 시골이면 아무 데서나 담배 피우고 침 뱉어도 된다고 생각하는 사람들만 그 카페에 온 것 같았다. 누군가의 sns계정에 그런 글이 있나 찾아봐야 하나 싶었다.

‘여기 커피 마시고 바로 나와서 담배 피우기 좋은 카페 있음’이라고

날씨가 좋아도 창문을 닫고 살기 시작했다.


숨어있던 용적률을 왜 갑자기 찾아...

우리의 옥상 엄밀히 말하면 집주인이 용적률을 다 채우지 않아 미완성이었던 3층 바닥슬라브다. 한층 더 지을 수 있던 이 집의 마지막 남은 용적률이 채워졌다. 3층 지붕까지 지어졌다. 샌드위치 패널로 속전속결의 집이 생겼다. 저 멀리서 2층이었는데요 3층입이었습니다? 어리둥절하며 집을 바라보며 걸어오며 보고 있는데 사실 뭔가 다 그리지 않았던 그림이 다 완결된 느낌을 받았다.

근데 다지으니까 건물은 좀 보기가 괜찮네? 하고 웃기는 웃었다. 남편과 나는 다시 부동산에 갔다.

카페의 손님들, 위층에 집주인이 들어와 살기 시작해 더 이상 같은 퀄리티의 전원생활은 힘들 거 같아서 이사를 하기로 했다. 2년의 계약기간이 끝나가는 시점이었다.




"먹고 자는 것에 관심 없이 사는 곳만 만들겠다는 것은 그릇만 만들겠다는 얘기잖아? 그러니까 나는 부엌일을 안 하는 건축가 따위 신용하지 않아. 부엌일, 빨래, 청소를 하지 않는 건축가에게 적어도 내가 살 집을 설계해 달라고 부탁할 수는 없어." - 마쓰이에 마사시 <여름은 오래 그곳에 남아>

먹고 자고 사는 어렴풋했던 감각을 양평에 산 뒤로 계속 이어갔다.

구의동에 살 때는 자는일만하기 위한 집생활을 했다면 양평 이층 집에서는 건축법의 거실의 요건(“거실”이란 건축물 안에서 거주, 집무, 작업, 집회, 오락, 그 밖에 이와 유사한 목적을 위하여 사용되는 방을 말한다.-건축법 제2조 1항 6호)에 나오는 많은 활동을 한 것 같다. 집에 머무는 시간이 늘어나고 공간의 구획이 많아짐에 따라 집에서 할 수 있는 행위가 늘어나고 기억의 지점이 늘어나고 장면으로 남아 삶이 풍요로워지는 걸 느꼈다.

내가 음식을 해 먹고 집안일을 해서 스스로를 먹여 살리는 경험, 그저 나는 회사일 아니면 아무것도 못해를 무심하게 말해버리는 사람이 아니게 되었다. 이제 와서 생각해 보니 집안일을 해보지 않고 주택을 설계해 온 것도 과연 제대로 된 설계였는지 뒷골이 서늘하긴 하다.

keyword
이전 02화양평 이층 집 (1)